東久留米市浅間町2丁目 全1棟 新築分譲住宅の物件詳細
| 土地面積 | 66.47m² | 建物面積 | 64.26m² |
|---|---|---|---|
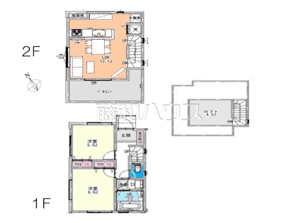
| 間取り | 2LDK(+ロフト) | ||
| 完成年月 | 2026年1月 | ||

外観 【東久留米市浅間町2丁目】 周辺環境はもちろん、日当たりや設備仕様など、実際に行ってみないと分からないことも多くございます。営業担当がご案内いたしま...

間取図 【東久留米市浅間町2丁目】日当たりや設備仕様など、実際に行ってみないと分からないことも多くございます。お気軽にお問い合わせください。

1階よりも光が差し込みやすい2階にリビングを設置することで、明るいリビングを実現! 【東久留米市浅間町2丁目】

2階にリビングを設置することで道路や外からの視線が届きにくい、プライバシー性の高いリビングでゆっくりと寛ぐことができます。 【東久留米市浅間町2丁目】

日差しもたっぷり注ぎ、お洗濯物もよく乾きます。【東久留米市浅間町2丁目】

ロフト 【東久留米市浅間町2丁目】

夫婦そろってキッチンに立っても調理がしやすい余裕の広さ 【東久留米市浅間町2丁目】

対面式のカウンターキッチンは、いつでもご家族を感じられる空間作りの重要ポイントになりそうです。 【東久留米市浅間町2丁目】

洗面室 【東久留米市浅間町2丁目】

浴室 【東久留米市浅間町2丁目】

トイレ 【東久留米市浅間町2丁目】

居室 【東久留米市浅間町2丁目】

居室 【東久留米市浅間町2丁目】

玄関【東久留米市浅間町2丁目】

玄関【東久留米市浅間町2丁目】

外観 【東久留米市浅間町2丁目】 物件の事、諸費用の事など、小さな疑問もお気軽にご連絡・ご相談下さい。

外観 【東久留米市浅間町2丁目】

外観 【東久留米市浅間町2丁目】

接道状況および現場風景 【東久留米市浅間町2丁目】ここに住む方を想像して、着々と建築しております!

接道状況および現場風景 【東久留米市浅間町2丁目】

外観 【東久留米市浅間町2丁目】 見学はしたいけど、なかなか時間が取れない・・・そんな方に出勤前や仕事終わりにマイホームを見学できるサポートをいたします。

外観 【東久留米市浅間町2丁目】

外観 【東久留米市浅間町2丁目】

接道状況および現場風景 【東久留米市浅間町2丁目】

外観 【東久留米市浅間町2丁目】

外観 【東久留米市浅間町2丁目】

玄関 【東久留米市浅間町2丁目】

全体区画図 【東久留米市浅間町2丁目】 平日のご案内も可能です。まずはお気軽にお問合せ下さいませ。

リビング 【東久留米市浅間町2丁目】

リビング 【東久留米市浅間町2丁目】

その他内観 【東久留米市浅間町2丁目】

バルコニー 【東久留米市浅間町2丁目】

キッチン 【東久留米市浅間町2丁目】

キッチン 【東久留米市浅間町2丁目】

キッチン 【東久留米市浅間町2丁目】

キッチン 【東久留米市浅間町2丁目】

キッチン 【東久留米市浅間町2丁目】

キッチン 【東久留米市浅間町2丁目】

キッチン 【東久留米市浅間町2丁目】

浴室 【東久留米市浅間町2丁目】

洗面室 【東久留米市浅間町2丁目】

居室 【東久留米市浅間町2丁目】

居室 【東久留米市浅間町2丁目】

収納 【東久留米市浅間町2丁目】
●さまざまな用途に利用できるロフトつき
●使いやすくスタイリッシュなシステムキッチンには、毎日お使いになる方の視点が存分に活かされています。
●見学はしたいけど、なかなか時間が取れない…そんな方に出勤前や仕事終わりにマイホームを見学できるサポートをいたします。
●日当たりや設備仕様など、実際に行ってみないと分からないことも多くございます。お気軽にお問い合わせください。
●経験豊かなスタッフが分譲地だけでなく学校、スーパー、公園と周辺環境も合わせてご案内致します。
周辺環境
ひばりヶ丘駅まで約1,220m
東久留米市立第二小学校まで約930m
東久留米市立大門中学校まで約610m
なかよし保育園まで約860m
ヤオコー 新座栗原店まで約510m
ライフ新座店まで約870m
ひばりが丘PARCOまで約1,160m
新座栗原郵便局まで約720m
栗原公園まで約490m
東京ドームスポーツセンター東久留米まで約630m
神山幼稚園まで約890m
落合幼稚園まで約930m
しんかわ保育園まで約1,000m
トレジャーキッズ東久留米保育園まで約1,060m
東久留米市立東部図書館まで約1,000m
ひばりが丘図書館まで約1,240m
東久留米市 東部地域センターまで約1,010m
ひばりが丘北児童センターまで約1,200m
肉のハナマサひばりヶ丘店まで約810m
オリンピック ひばりヶ丘店まで約910m
西友 ひばりヶ丘店まで約1,250m
ファミリーマート 東久留米東本町店まで約1,220m
クリエイトS・D 新座栗原店まで約740m
ドラッグセイムス 西武ひばりヶ丘店まで約900m
ミネドラッグ ひばりヶ丘店まで約1,090m
スポーツクラブ ルネサンス ひばりヶ丘まで約1,140m
ひばりが丘北郵便局まで約1,020m
栗原緑地公園まで約450m
不動橋広場まで約880m
金山第二緑地まで約1,010m
物件概要
| 種別 | 新築一戸建て | ||
|---|---|---|---|
| 所在地 | 東京都東久留米市浅間町2丁目MAP | ||
| 交通 | 西武池袋線『ひばりヶ丘』駅 徒歩15分 東武東上線『朝霞台』駅 バス31分「新座栗原郵便局」停歩8分 JR武蔵野線『新座』駅 バス29分「大門町一丁目」停歩12分 西武池袋線『東久留米』駅 徒歩18分 | ||
| 価格 | 3,799万円<税込> | 間取り | 2LDK(+ロフト) |
| 土地面積 | 66.47m²(実測) | 建物面積 | 64.26m²(実測) |
| 総戸数 | 1戸 | 販売戸数 | 1戸 |
| 構造・規模 | 木造 2階建 | 完成年月 | 2026年1月 |
| 現況 | 未完成 | 引渡時期 | 期日指定(2026年1月) |
| 土地権利 | 所有権 | 私道面積 | 10.45m²(実測) |
| 地目 | 宅地 | 用途地域 | 第一種低層住居専用地域 |
| 最適用途 | 住宅用地 | 建ぺい率・容積率 | 40%/80% |
| 都市計画 | 市街化区域 | 建築確認番号 | 第25UDI1T建01912号 |
| 国土法届出 | 不要 | 駐車スペース | あり |
| ライフライン | ガス:都市/水道:公営/排水:下水 | ||
| 省エネ性能表示 省エネ性能ラベル | |||
| 接道 | 接道状況:角地 北東4m私道 北西4m公道 | ||
| スクール情報 | 東久留米市立第二小学校 東久留米市立大門中学校 | ||
| 取引態様 | 媒介 | ||
| 情報更新日 | 2026年1月15日 |
物件QRコード
お手持ちのスマートフォンで右のQRコードを読み取るとスマートフォンサイトで、再度物件の検索しなくてもこちらの物件情報へ直接アクセスする事ができます。
※スマートフォンでQRコードを読み取る場合別途アプリのインストールが必要な場合がございます。 ※ご利用アプリや、機種等によりQRコードが正しく読み取れない場合がございます。 | |
| 次回更新予定日 | 2026年1月29日 | ||
| 取引条件有効期限 | 2026年1月29日 | ||
| お問合せ番号 | 1HK002212 | ||
- 物件の特徴・設備
- 2沿線以上利用可
- システムキッチン
- 対面キッチン
- 浴室1坪以上
- 温水洗浄便座
- TVモニタ付インターホン
- 都市ガス
- ロフト
- 全居室収納
- 南面バルコニー
- ルーフバルコニー
- 2階建
- スーパー800m以内
支払い例・住宅ローンシミュレーション
周辺MAP
- 幼稚園・保育園
- 公園
- スーパー
- 幼稚園・保育園
- 公園
- スーパー
- 幼稚園・保育園
- 公園
- スーパー
- 幼稚園・保育園
※地図上に表示される物件の位置は付近住所に所在することを表すものであり、実際の物件所在地とは異なる場合がございます。
掲載物件に関する注意事項
- 価格は物件代金の総額を表示しており、建物(建物プラン例等を含む)等の消費税が課税される場合には、税込み価格(最終情報更新日時点の確認)となります。消費税率は物件のお引き渡しの時期、お支払い時期等により異なります。各物件の詳細につきましてはお問合せ下さい。
- 情報更新日から現在までの間に売却済となった場合はご容赦下さい。
- 掲載情報は情報更新日時点のものです。お客様がご覧になるタイミングによって、掲載されている内容から変更されている場合がございます。タイムラグにより最新の情報とは若干差異(価格変更や販売終了等)が生じる場合がありますので、予めご了承頂けますようお願い申し上げます。
- 当サイトでは、掲載情報の正確さには万全を期しておりますが、万一入力ミス等により誤った内容が掲載されていた場合は、速やかに確認のうえ訂正をいたしますので、予めご了承頂けますようお願い申し上げます。
- 公開している物件は広告表示規約に基づいて表示していますが、私道負担面積、セットバック面積、路地状部分面積等について一部表示がされていない場合もございますので、詳しくはお問合せの際にご確認下さい。
- 完成予想図については、外構、植栽、外観等実際のものとは多少異なることがあります。
- 写真、または完成予想図や間取り図に描かれている家具や車等は、特にコメントがない場合、販売対象には含まれません。
- 掲載している写真につきましては、プライバシー保護のために画像を加工処理しているものがあります。
- 建築条件付き売地の販売価格には、建物価格は含まれません。
- 物件の特徴や設備につきましては、販売戸数・区画数が複数の物件は、全ての住戸・区画に該当しない項目もあります。
- 建築条件付き売地の情報内に掲載されている「建物プラン例」は、土地購入者の設計プランの参考一例であって、そのプランの採用可否は任意です。
- 土地(建築条件なし)の「建物プラン例」等を掲載している時、その設計プランは特定の建築請負会社によるもので、当該建築請負会社以外で建築した場合、同様のものが同価格で建築出来るとは限りません。また建築請負会社を特定するものではありません。
- 間取り図や間取り表記のLDKは「リビングダイニングキッチン」、DKは「ダイニングキッチン」、Kは「キッチン」、Sは「納戸・サービスルーム」、WICは「ウォークインクローゼット」、SICは「シューズインクローゼット」を表します。
- CG合成している画像、写真、パノラマ、VRの場合、実際とは多少異なる場合があります。
- 陽当り、眺望、通風、採光についての説明は将来にわたって保証されるものではありません。
- 徒歩所要時間は80m=1分として換算したもので、距離は地図上の概算によるものです。





























































![学区情報[ガッコム]](/images/common/side_school.jpg)





