八王子市楢原町 全1棟 新築分譲住宅の物件詳細
| 土地面積 | 142.1m² | 建物面積 | 103.62m² |
|---|---|---|---|
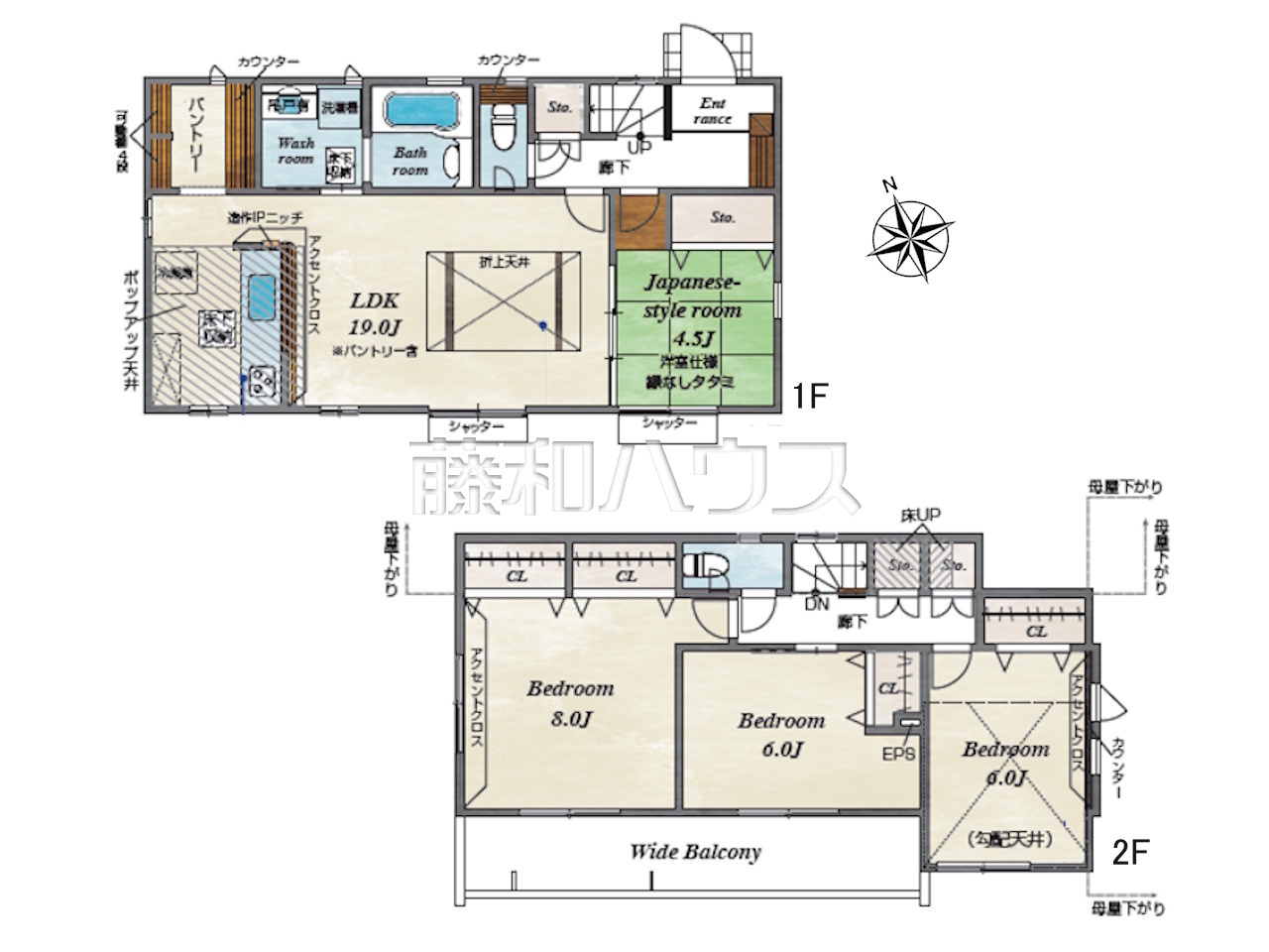
| 間取り | 4LDK(+パントリー) | ||
| 完成年月 | 2025年12月 | ||

●全居室南向きの4LDK住宅です♪
●約19帖のゆとりを確保した広々LDK
●滑らかな人造大理石カウンターキッチン
●対面式キッチンには便利な食洗機付き
●調味料や食器を収納できるパントリー
●お子様のお昼寝にもちょうど良い和室
●洗濯物をたっぷり干せるワイドバルコニー
●掃除道具や季節用品等がしまえる廊下収納
●来客時にも便利な駐車2台可能(車種による)
●約16m道路面につき車の出し入れも楽々です。
●ZEH水準の快適住宅
●ぜひお気軽にご連絡・ご相談ください!
【ライフインフォメーション】
・スーパーアルプス甲の原店約1040m
・ジェーソン八王子楢原店 約1165m
・ファミリーマート八王子秋川街道店 約324m
周辺環境
なかの幼稚園まで約470m
八王子隣保館保育園まで約2,790m
横川保育園まで約2,160m
八王子市立楢原小学校まで約430m
八王子市立楢原中学校まで約740m
八王子中野郵便局まで約1,030m
フォルテ八王子まで約1,610m
スーパーアルプス甲の原店まで約1,030m
ジェーソン 八王子楢原店まで約1,170m
ビッグエー八王子横川店まで約1,840m
ベルク フォルテ八王子店まで約1,610m
スーパーアルプス横川店まで約2,500m
シモダディスカウントセンター 八王子店まで約1,720m
セブン-イレブン 八王子東楢原店まで約660m
セブンイレブン 八王子楢原店まで約660m
クリエイトS・D 八王子元本郷店まで約1,510m
ドラッグストアコスモス 叶谷店まで約2,680m
サンドラッグ 八王子楢原店まで約770m
サンドラッグ 八王子中野町店まで約830m
マクドナルド 八王子楢原店まで約950m
カレーそば 大河まで約700m
清川1号公園まで約460m
はなみずきちびっこ公園まで約860m
清川2号公園まで約490m
清川3号公園まで約360m
南楢原児童遊園まで約250m
甲の原公園まで約1,100m
物件概要
| 種別 | 新築一戸建て | ||
|---|---|---|---|
| 所在地 | 東京都八王子市楢原町MAP | ||
| 交通 | JR中央線『八王子』駅 バス20分「東楢原」停歩4分 JR横浜線『八王子』駅 バス20分「東楢原」停歩4分 JR八高線『八王子』駅 バス20分「東楢原」停歩4分 | ||
| 価格 | 4,080万円<税込> | 間取り | 4LDK(+パントリー) |
| 土地面積 | 142.1m²(実測) | 建物面積 | 103.62m²(実測) |
| 総戸数 | 1戸 | 販売戸数 | 1戸 |
| 構造・規模 | 木造 2階建 | 完成年月 | 2025年12月 |
| 現況 | 未完成 | 引渡時期 | 期日指定(2025年12月下旬) |
| 土地権利 | 所有権 | 地目 | 宅地 |
| 用途地域 | 第一種低層住居専用地域 | 最適用途 | 住宅用地 |
| 建ぺい率・容積率 | 40%/80% | 都市計画 | 市街化区域 |
| 建築確認番号 | 第R07SHC116126号 | 国土法届出 | 不要 |
| 駐車スペース | 2台可(車種による) | ||
| ライフライン | ガス:都市/水道:公営/排水:下水 | ||
| 省エネ性能表示 省エネ性能ラベル | |||
| 接道 | 接道状況:一方 東16m公道 | ||
| 特記事項 | 景観法 航空法 文化財保護法 宅地造成及び特定盛土等規制法 | ||
| スクール情報 | 八王子市立楢原小学校 八王子市立楢原中学校 | ||
| 取引態様 | 媒介 | ||
| 情報更新日 | 2025年11月6日 |
物件QRコード
お手持ちのスマートフォンで右のQRコードを読み取るとスマートフォンサイトで、再度物件の検索しなくてもこちらの物件情報へ直接アクセスする事ができます。
※スマートフォンでQRコードを読み取る場合別途アプリのインストールが必要な場合がございます。 ※ご利用アプリや、機種等によりQRコードが正しく読み取れない場合がございます。 | |
| 次回更新予定日 | 2025年11月20日 | ||
| 取引条件有効期限 | 2025年11月20日 | ||
| お問合せ番号 | 1HO001312 | ||
- 物件の特徴・設備
- 2沿線以上利用可
- 全室南向き
- LDK15帖以上
- システムキッチン
- 対面キッチン
- 食器洗乾燥機
- 浴室1坪以上
- 都市ガス
- パントリー
- 全居室収納
- 南面バルコニー
- 設計住宅性能評価付
- 長期優良住宅
- 高気密高断熱住宅
- 耐震
- 2階建
- 駐車場2台以上
- 小学校800m以内
支払い例・住宅ローンシミュレーション
周辺MAP
- 幼稚園・保育園
- 公園
- スーパー
- 幼稚園・保育園
- 公園
- スーパー
- 幼稚園・保育園
- 公園
- スーパー
- 幼稚園・保育園
※地図上に表示される物件の位置は付近住所に所在することを表すものであり、実際の物件所在地とは異なる場合がございます。
掲載物件に関する注意事項
- 価格は物件代金の総額を表示しており、建物(建物プラン例等を含む)等の消費税が課税される場合には、税込み価格(最終情報更新日時点の確認)となります。消費税率は物件のお引き渡しの時期、お支払い時期等により異なります。各物件の詳細につきましてはお問合せ下さい。
- 情報更新日から現在までの間に売却済となった場合はご容赦下さい。
- 掲載情報は情報更新日時点のものです。お客様がご覧になるタイミングによって、掲載されている内容から変更されている場合がございます。タイムラグにより最新の情報とは若干差異(価格変更や販売終了等)が生じる場合がありますので、予めご了承頂けますようお願い申し上げます。
- 当サイトでは、掲載情報の正確さには万全を期しておりますが、万一入力ミス等により誤った内容が掲載されていた場合は、速やかに確認のうえ訂正をいたしますので、予めご了承頂けますようお願い申し上げます。
- 公開している物件は広告表示規約に基づいて表示していますが、私道負担面積、セットバック面積、路地状部分面積等について一部表示がされていない場合もございますので、詳しくはお問合せの際にご確認下さい。
- 完成予想図については、外構、植栽、外観等実際のものとは多少異なることがあります。
- 写真、または完成予想図や間取り図に描かれている家具や車等は、特にコメントがない場合、販売対象には含まれません。
- 掲載している写真につきましては、プライバシー保護のために画像を加工処理しているものがあります。
- 建築条件付き売地の販売価格には、建物価格は含まれません。
- 物件の特徴や設備につきましては、販売戸数・区画数が複数の物件は、全ての住戸・区画に該当しない項目もあります。
- 建築条件付き売地の情報内に掲載されている「建物プラン例」は、土地購入者の設計プランの参考一例であって、そのプランの採用可否は任意です。
- 土地(建築条件なし)の「建物プラン例」等を掲載している時、その設計プランは特定の建築請負会社によるもので、当該建築請負会社以外で建築した場合、同様のものが同価格で建築出来るとは限りません。また建築請負会社を特定するものではありません。
- 間取り図や間取り表記のLDKは「リビングダイニングキッチン」、DKは「ダイニングキッチン」、Kは「キッチン」、Sは「納戸・サービスルーム」、WICは「ウォークインクローゼット」、SICは「シューズインクローゼット」を表します。
- CG合成している画像、写真、パノラマ、VRの場合、実際とは多少異なる場合があります。
- 陽当り、眺望、通風、採光についての説明は将来にわたって保証されるものではありません。
- 徒歩所要時間は80m=1分として換算したもので、距離は地図上の概算によるものです。







































![学区情報[ガッコム]](/images/common/side_school.jpg)





