| 土地面積 | 83.31m² | 建物面積 | 66.42m² | 完成年月 | 2026年10月 |
|---|---|---|---|---|---|
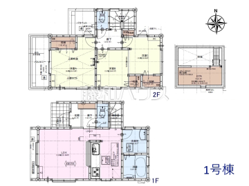
| 間取り | 2LDK(+ロフト) | ||||
●JR中央線「東小金井駅」より徒歩10分
●カウンターキッチン越しでの会話が、家族団らんのスタートです。
●2部屋からバルコニーへ出られるため、洗濯物を干す際にも家族が寝ている部屋を通らずに出入りができて便利です。
●さまざまな用途に利用できるロフトつき
●お住まい探しは、家の良し悪しだけでなく周辺環境も重要なポイントです。ぜひ一度お客様の目でご覧ください。
●周辺環境はもちろん、日当たりや設備仕様など、実際に行ってみないと分からないことも多くございます。
営業担当がご案内いたしますので、お気軽にお問い合わせください。
●カウンターキッチン越しでの会話が、家族団らんのスタートです。
●2部屋からバルコニーへ出られるため、洗濯物を干す際にも家族が寝ている部屋を通らずに出入りができて便利です。
●さまざまな用途に利用できるロフトつき
●お住まい探しは、家の良し悪しだけでなく周辺環境も重要なポイントです。ぜひ一度お客様の目でご覧ください。
●周辺環境はもちろん、日当たりや設備仕様など、実際に行ってみないと分からないことも多くございます。
営業担当がご案内いたしますので、お気軽にお問い合わせください。
周辺環境

東小金井駅まで約890m

小金井市立けやき保育園まで約980m

十八コスモ保育園まで約640m

小金井市立小金井第三小学校まで約490m

小金井市立緑中学校まで約580m

小金井市図書館 緑分室まで約1,160m

緑児童館 みどり学童保育所まで約630m

オーケー 梶野町店まで約730m

ピーコックストア 東小金井店まで約710m

マルエツ 東小金井駅北口店まで約700m

魚勝・グレース 東小金井店まで約670m

トモズ 東小金井店まで約730m

ウェルパーク 小金井緑町店まで約820m

サンドラッグ小金井梶野町店まで約990m

梶野公園まで約1,040m

浴恩館公園まで約910m

小金井北プチ・クレイシュまで約1,050m

小金井緑町郵便局まで約440m

久滋医院まで約280m

nonowa東小金井まで約920m

いなげや小金井本町店まで約1,270m

ファミリーマート小金井法政大学前店まで約420m

セブンイレブン 西東京新町6丁目まで約1,370m

サンドラッグ 小金井梶野町店まで約980m

西松屋小金井緑町店まで約350m

小金井公園まで約990m

栗山公園まで約1,070m

武蔵野市立上水南公園まで約1,080m

上水桜通RI貫井北町付近まで約1,330m

玉川上水緑道(武蔵野市桜堤)まで約1,350m
物件概要
| 種別 | 新築一戸建て | ||
|---|---|---|---|
| 所在地 | 東京都小金井市梶野町4丁目 | ||
| 交通 | JR中央線『東小金井』駅 徒歩10分 西武多摩川線『新小金井』駅 徒歩21分 JR中央線『武蔵小金井』駅 徒歩25分 | ||
| 価格 | 6,480万円<税込> | 間取り | 2LDK(+ロフト) |
| 土地面積 | 83.31m²(実測) | 建物面積 | 66.42m²(実測) |
| 総戸数 | 2戸 | 販売戸数 | 2戸 |
| 構造・規模 | 木造 2階建 | 完成年月 | 2026年10月 |
| 現況 | 未完成 | 引渡時期 | 期日指定(2026年11月) |
| 土地権利 | 所有権 | 私道面積 | 17.56m²(実測) |
| 地目 | 宅地 | 用途地域 | 第一種低層住居専用地域 |
| 最適用途 | 住宅用地 | 建ぺい率・容積率 | 40%/80% |
| 都市計画 | 市街化区域 | 建築確認番号 | 第25UDI1W建14234号 |
| 国土法届出 | 不要 | ||
| ライフライン | 水道:公営/排水:下水 | ||
| 省エネ性能表示 省エネ性能ラベル | |||
| 接道 | 接道状況:角地 西5m公道 北4m私道(位置指定あり) | ||
| 特記事項 | 下水道処理区域 宅地造成等工事規制区域 1号地:角地緩和により建ぺい率50パーセントに緩和 前面道路に電柱及び標識あります。 | ||
| スクール情報 | 小金井市立小金井第三小学校 小金井市立緑中学校 | ||
| 取引態様 | 媒介 | ||
| 情報更新日 | 2026年4月28日 |
物件QRコード
お手持ちのスマートフォンで右のQRコードを読み取るとスマートフォンサイトで、再度物件の検索しなくてもこちらの物件情報へ直接アクセスする事ができます。
※スマートフォンでQRコードを読み取る場合別途アプリのインストールが必要な場合がございます。 ※ご利用アプリや、機種等によりQRコードが正しく読み取れない場合がございます。 | |
| 次回更新予定日 | 2026年5月12日 | ||
| 取引条件有効期限 | 2026年5月12日 | ||
| お問合せ番号 | 1KG002416(1号棟) | ||
- 物件の特徴・設備
- 2沿線以上利用可
- 角地
- 全居室フローリング
- システムキッチン
- 対面キッチン
- 浴室乾燥機
- 浴室1坪以上
- 温水洗浄便座
- TVモニタ付インターホン
- ロフト
- 設計住宅性能評価付
- 2階建
- スーパー800m以内
- 小学校800m以内
掲載物件に関する注意事項
- 価格は物件代金の総額を表示しており、建物(建物プラン例等を含む)等の消費税が課税される場合には、税込み価格(最終情報更新日時点の確認)となります。消費税率は物件のお引き渡しの時期、お支払い時期等により異なります。各物件の詳細につきましてはお問合せ下さい。
- 情報更新日から現在までの間に売却済となった場合はご容赦下さい。
- 掲載情報は情報更新日時点のものです。お客様がご覧になるタイミングによって、掲載されている内容から変更されている場合がございます。タイムラグにより最新の情報とは若干差異(価格変更や販売終了等)が生じる場合がありますので、予めご了承頂けますようお願い申し上げます。
- 当サイトでは、掲載情報の正確さには万全を期しておりますが、万一入力ミス等により誤った内容が掲載されていた場合は、速やかに確認のうえ訂正をいたしますので、予めご了承頂けますようお願い申し上げます。
- 公開している物件は広告表示規約に基づいて表示していますが、私道負担面積、セットバック面積、路地状部分面積等について一部表示がされていない場合もございますので、詳しくはお問合せの際にご確認下さい。
- 完成予想図については、外構、植栽、外観等実際のものとは多少異なることがあります。
- 写真、または完成予想図や間取り図に描かれている家具や車等は、特にコメントがない場合、販売対象には含まれません。
- 掲載している写真につきましては、プライバシー保護のために画像を加工処理しているものがあります。
- 建築条件付き売地の販売価格には、建物価格は含まれません。
- 物件の特徴や設備につきましては、販売戸数・区画数が複数の物件は、全ての住戸・区画に該当しない項目もあります。
- 建築条件付き売地の情報内に掲載されている「建物プラン例」は、土地購入者の設計プランの参考一例であって、そのプランの採用可否は任意です。
- 土地(建築条件なし)の「建物プラン例」等を掲載している時、その設計プランは特定の建築請負会社によるもので、当該建築請負会社以外で建築した場合、同様のものが同価格で建築出来るとは限りません。また建築請負会社を特定するものではありません。
- 間取り図や間取り表記のLDKは「リビングダイニングキッチン」、DKは「ダイニングキッチン」、Kは「キッチン」、Sは「納戸・サービスルーム」、WICは「ウォークインクローゼット」、SICは「シューズインクローゼット」を表します。
- CG合成している画像、写真、パノラマ、VRの場合、実際とは多少異なる場合があります。
- 陽当り、眺望、通風、採光についての説明は将来にわたって保証されるものではありません。
- 徒歩所要時間は80m=1分として換算したもので、距離は地図上の概算によるものです。
支払い例・住宅ローンシミュレーション











