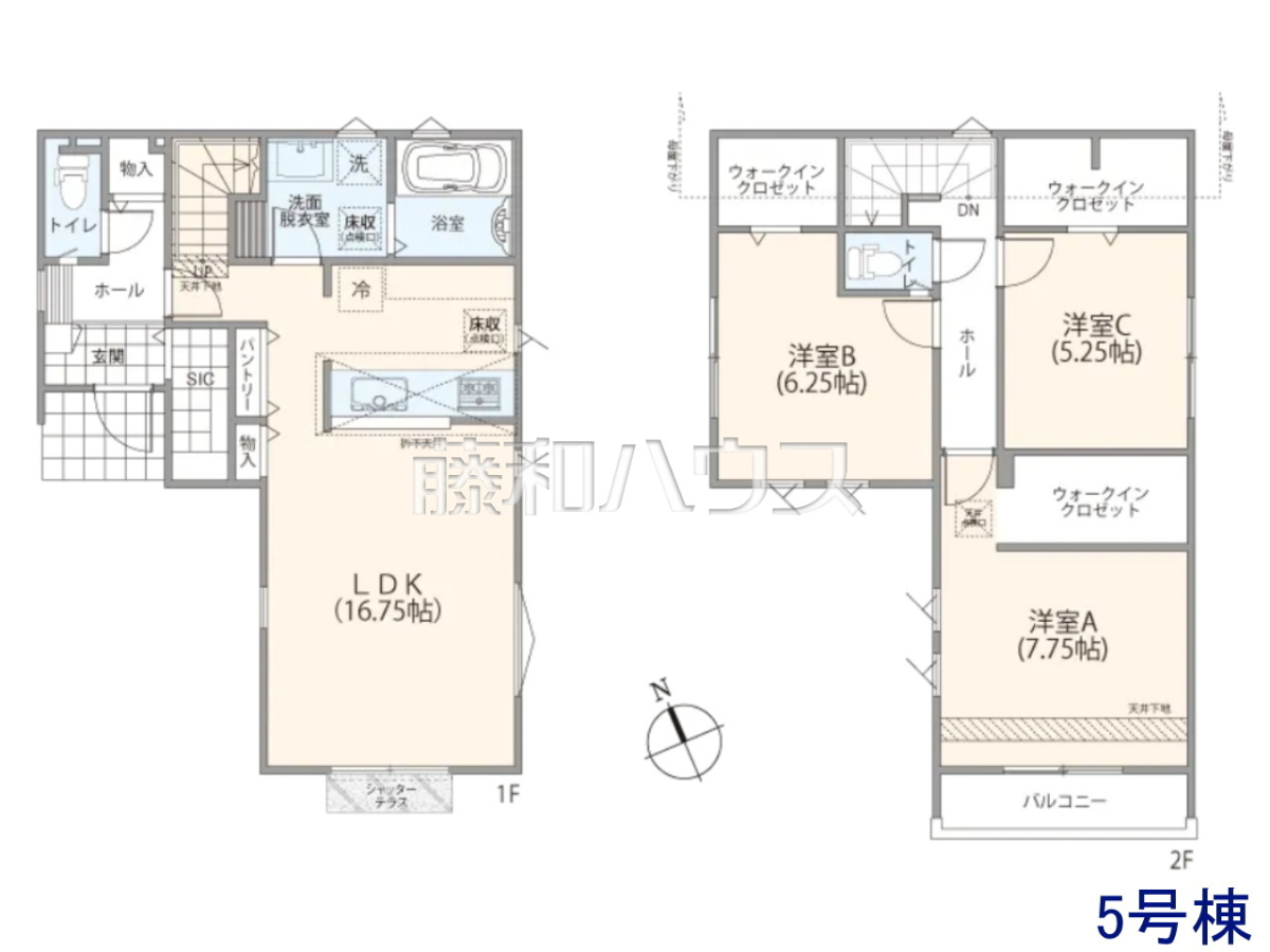
●約15帖以上のゆったりリビング。家族でテーブルを囲む素敵な時間をお愉しみ下さい。
●雨天時の洗濯物や浴室内のカビ防止としても活躍する浴室換気乾燥機
●キッチンにはエコと家事時間短縮、一石二鳥の食洗機付です。
●ご家族の様子がわかり、会話も楽しめる対面式システムキッチン
●木目が美しいウッディなフローリングの居室は、穏やかで心安らぐ空間となるでしょう。
●建物の仕様・設備など「プレゼン」をさせていただきますので、
際の完成イメージを思い描くことができます。
●住友ゴム工業「ミライエ」標準搭載!万が一の地震時もミライエが
揺れを軽減させます。安心・安全のお住まいです!
- 2025/10/27
- おかげ様で8号棟がご成約致しました!
- 2025/10/6
- おかげ様で2号棟がご成約致しました!
- 2025/9/27
- *★毎週【土・日・祝日】現地見学会開催★*

- 担当:渡部 敏哉
- 中央線・京王線が徒歩圏内の立地です! 全8区画の開発分譲地・理想の暮らしを実現する為にはどんな間取りが良いか。多様な間取りプランをご用意しております 。














































































