●多摩都市モノレール「砂川七番」駅 徒歩3分
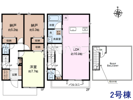
●家族が揃って食事できるゆとりある大きさのLDK16帖以上
●南向きのバルコニーは日差しもたっぷり注ぎ、お洗濯物もよく乾きます。
●全居室収納スペース付き
●大容量のシューズインクロークで玄関もスッキリ
●窓付きで換気もできちゃう納戸
●ゆったり1坪サイズの浴室で1日の疲れをリセット
●平日のご案内も可能です。まずはお気軽にお問合せ下さいませ。
- 2025/9/6
- ☆*毎週【土・日・祝日】予約制見学会開催*☆

- 担当:山田 亮太
- 多摩都市モノレール「砂川七番」駅 徒歩3分! 毎週、土・日・祝日の11:00~16:00に予約制見学会を開催中。お気軽にお問合せくださいませ。























