◆第一工区がいよいよ販売開始となりました!
◆公道5mに面した全19区画!ライフプランを是非お聞かせください。
◆36坪超のゆとりある敷地ですので、カースペース2台分確保や庭付きのプラン等ご検討できます。
◆建築条件付売地なので、ライフスタイルに合わせたマイホームづくりが可能です。
◆プレゼンを随時受け付けております。まずはお話しだけでも聞いてみませんか?
◆建築条件無しでの販売も可能です。お客様がお選びいただいた、お好きなハウスメーカーで建築可能です。
◆住宅ローンの相談可・資金計画書を作成して、月々のお支払いについてシュミレーションもできます。
- 2026/1/23
- 1月22日撮影の現地写真をUPいたしました!
- 2025/5/16
- *★毎週【土・日・祝日】現地見学会開催★*

- 担当:東久留米店
- 建築条件付売地!参考間取りプランもございます。プレゼン随時受付中ですので、詳細はお気軽にお問合せください。 近隣の完成例の建物もご案内しますので、是非ご見学くださいませ!













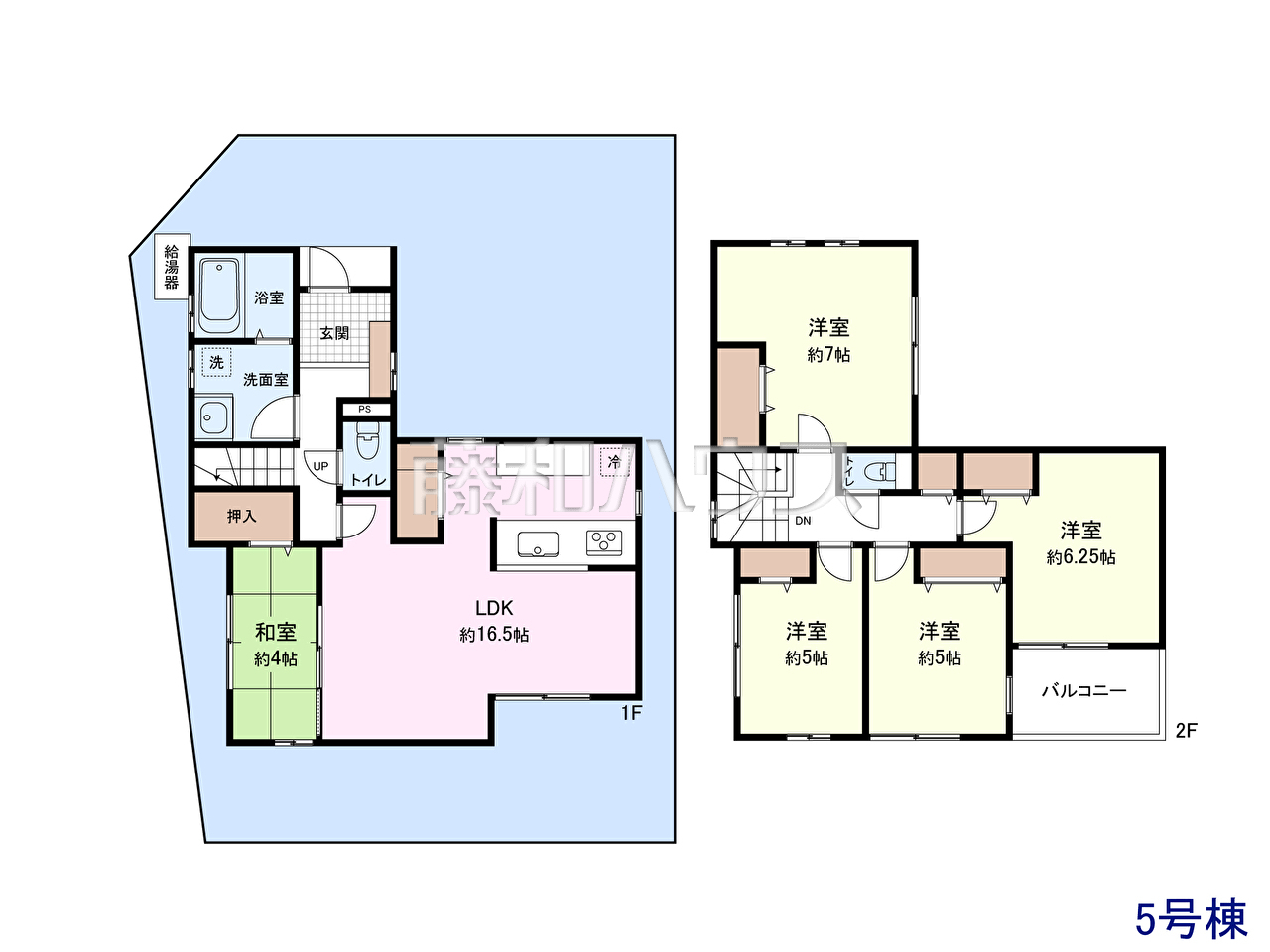
![5号地 建物プラン例(間取図) 【清瀬市下宿2丁目】
[参考プラン]
建物価格:1,500万円(税込) 建物面積:101.25m²](/img_out/?img=/img/obj/1107014/e0d14236e8_1107014.jpg&w=440&h=330)



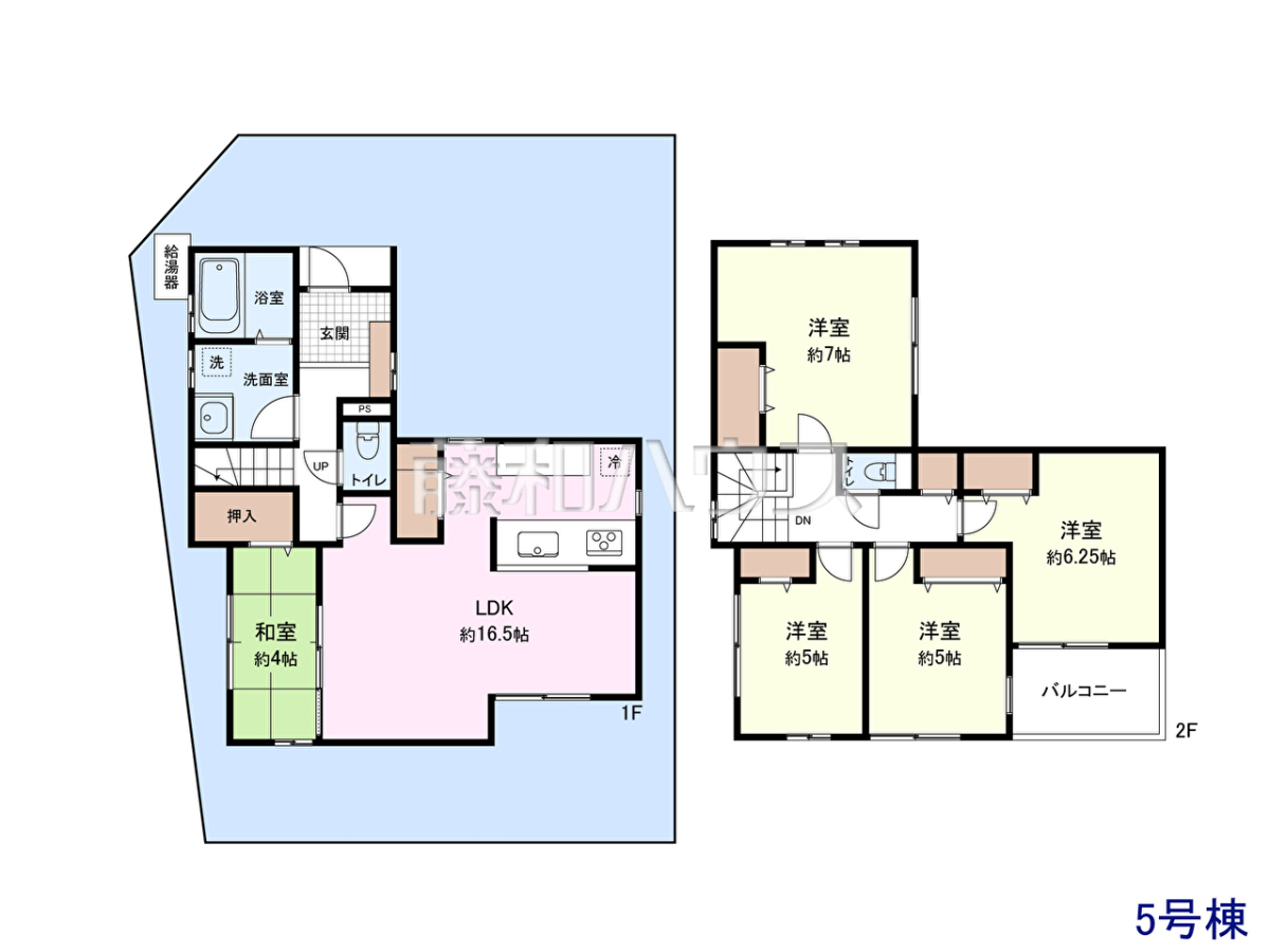
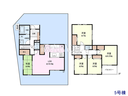
![5号地 建物プラン例(間取図) 【清瀬市下宿2丁目】
[参考プラン]
建物価格:1,500万円(税込) 建物面積:101.25m²](/img_out/?img=/img/obj/1107014/67877849a6_1107014.jpg&w=440&h=330)














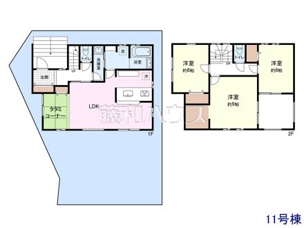
![11号地 建物プラン例(間取図) 【清瀬市下宿2丁目】
[参考プラン]
建物価格:1,500万円(税込) 建物面積:96.39m²](/img_out/?img=/img/obj/1107023/51b2c5aa52_1107023.jpg&w=440&h=330)





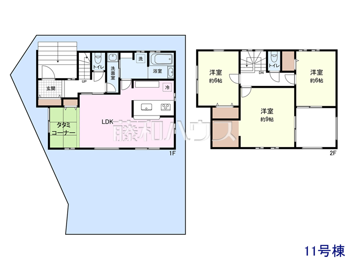
![11号地 建物プラン例(間取図) 【清瀬市下宿2丁目】
[参考プラン]
建物価格:1,500万円(税込) 建物面積:96.39m²](/img_out/?img=/img/obj/1107023/c600951923_1107023.jpg&w=440&h=330)




