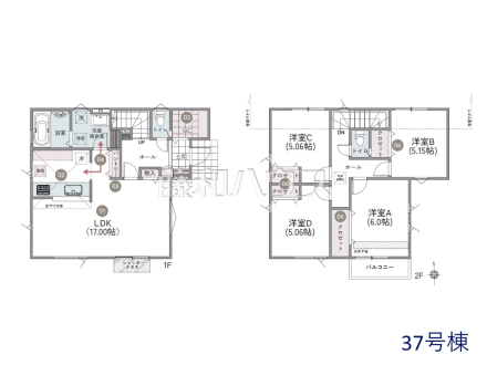
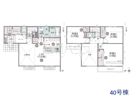
●後片付けの手間を削減し、趣味の時間や家族との時間を増やせる食器洗い乾燥機を標準装備
●換気機能によってバスルーム内のカビの発生を抑制できます。夜間や雨天時の洗濯物の乾燥に便利な乾燥機能も装備。
●居住スペースを邪魔しない床下は隠れた収納スペース。特に乾燥した冬の時期の保管に活躍、効率的な利用で収納力アップ!
●住まいの事なら地元で豊富な実績を誇る、地域密着の藤和ハウスへお任せ下さい!
●ご家族やお友達とのお食事やティータイムを楽しめる対面キッチン。お食事やお茶の準備をしながらでも、自然と会話の輪が広がります。

- スマイルタウン玉川上水12期/全43棟 MONO RESORT パノラマ・VR
- パノラマ・VR公開中
※手軽な操作で実際の内見に近い情報をお伝え出来る様、物件を360度カメラで撮影した画像になります。
PC・スマートフォン・VRゴーグルなどで、お客様のご覧になりたい様々な角度で閲覧が可能なバーチャルツアーです。
CG合成画像・写真の場合には実際とは多少異なる場合があります。

- 「ルームツアー動画」/スマイルタウン玉川上水12期/全43棟 MONO RESORT
- 動画・ムービー公開中
- 2026/4/23
- おかげ様で8、9号棟ご成約いただきました
- 2026/4/10
- おかげ様で36号棟ご成約いただきました
- 2026/3/16
- おかげ様で7、12号棟ご成約いただきました
- 2026/3/15
- 36号棟 写真(内観)公開しました!
- 2026/2/13
- おかげ様で25棟ご成約いただきました!
- 2025/12/20
- GRAY RESORT×BLACK RESORT の街並みが見えてまいりました!!
- 2025/9/29
- 10/5(日)ケーキイベント開催致します!ご来場をお待ちしております
- 2025/8/17
- 3号棟~21号棟(グレーリゾート×ブラックリゾート)の販売を開始いたしました!!
- 2025/7/17
- 27号棟にお申込み入りました!
- 2025/7/14
- 24・25・31・35号棟にお申込み入りました!
- 2025/4/18
- 「スマイルタウン玉川上水12期」特設ページ公開!

- 担当:山田 亮太
- スマイルタウン玉川上水12期「MONO RESORT」は、「Simple&Stylish」をデザインコンセプトとしてつくられた新たな街です。ホワイトリゾート・ブラックリゾート・グレーリゾートの3つのエリアで構成されております。

































































































































































































































































































