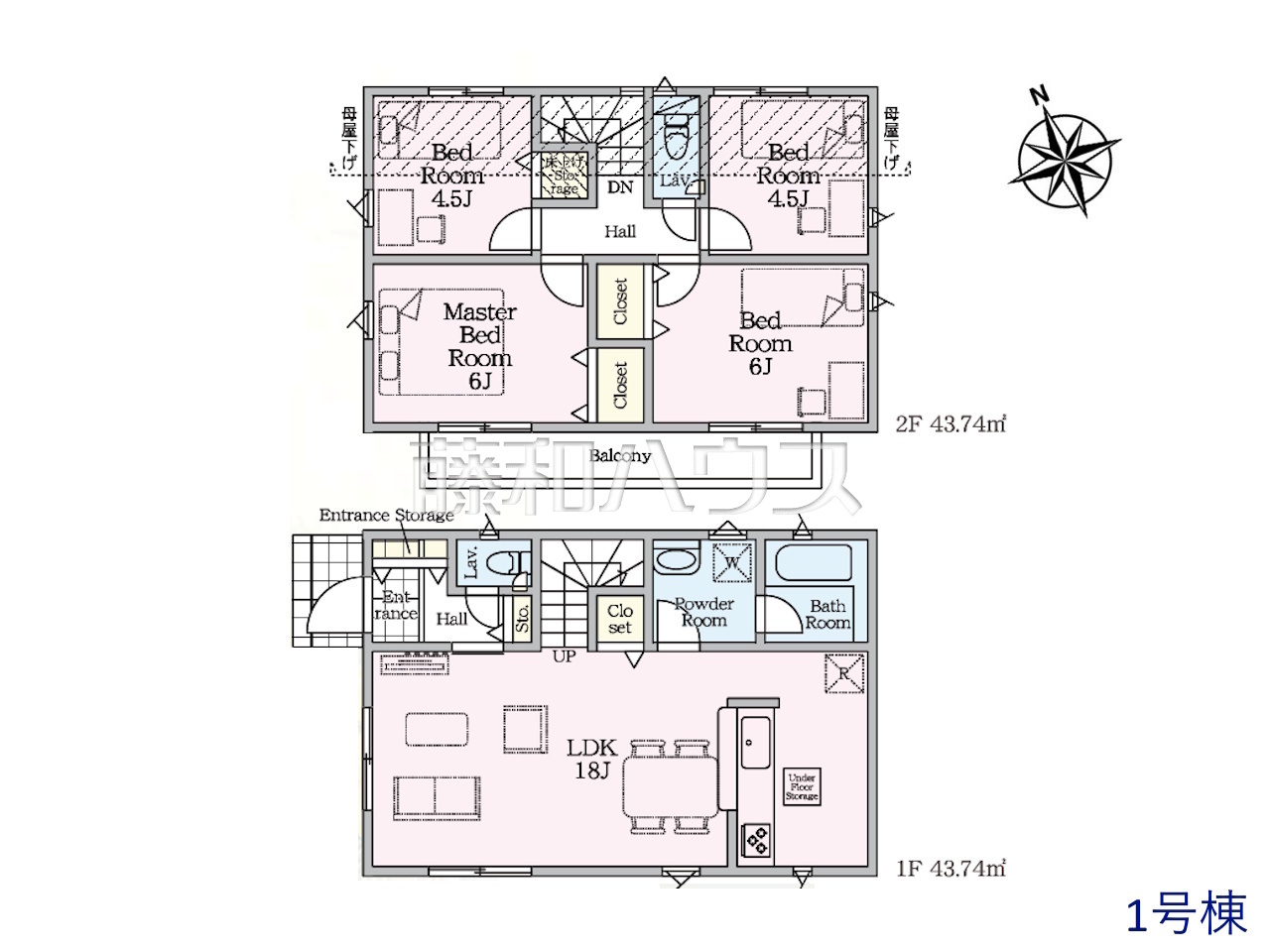
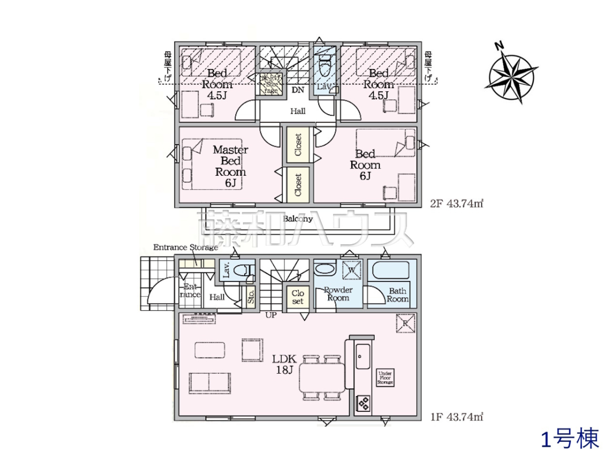
■設備仕様■
・使いやすくスタイリッシュなシステムキッチンには、毎日お使いになる方の視点が存分に活かされています。
・雨の日の強い味方!浴室換気乾燥機付きユニットバスで洗濯物が乾かせます。
・ウォシュレット付きトイレ!リビング・お風呂に続いて意外と癒しの空間かも!?
・防犯に役立つTVモニター付インターフォン
・南向きのバルコニーは日差しもたっぷり注ぎ、お洗濯物もよく乾きます。
■アクセス■
多摩都市モノレール『上北台』駅 徒歩18分
西武多摩湖線『武蔵大和』駅 バス8分「東大和一小南」停歩4分
多摩都市モノレール『桜街道』駅 徒歩27分

- 担当:岡田 孝憲
- 西武多摩湖線『武蔵大和』駅 バス8分「東大和一小南」停歩4分♪リビングは広々約16.75帖~周辺もあわせてご案内いたします。お気軽にお問い合わせください。
















