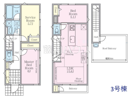
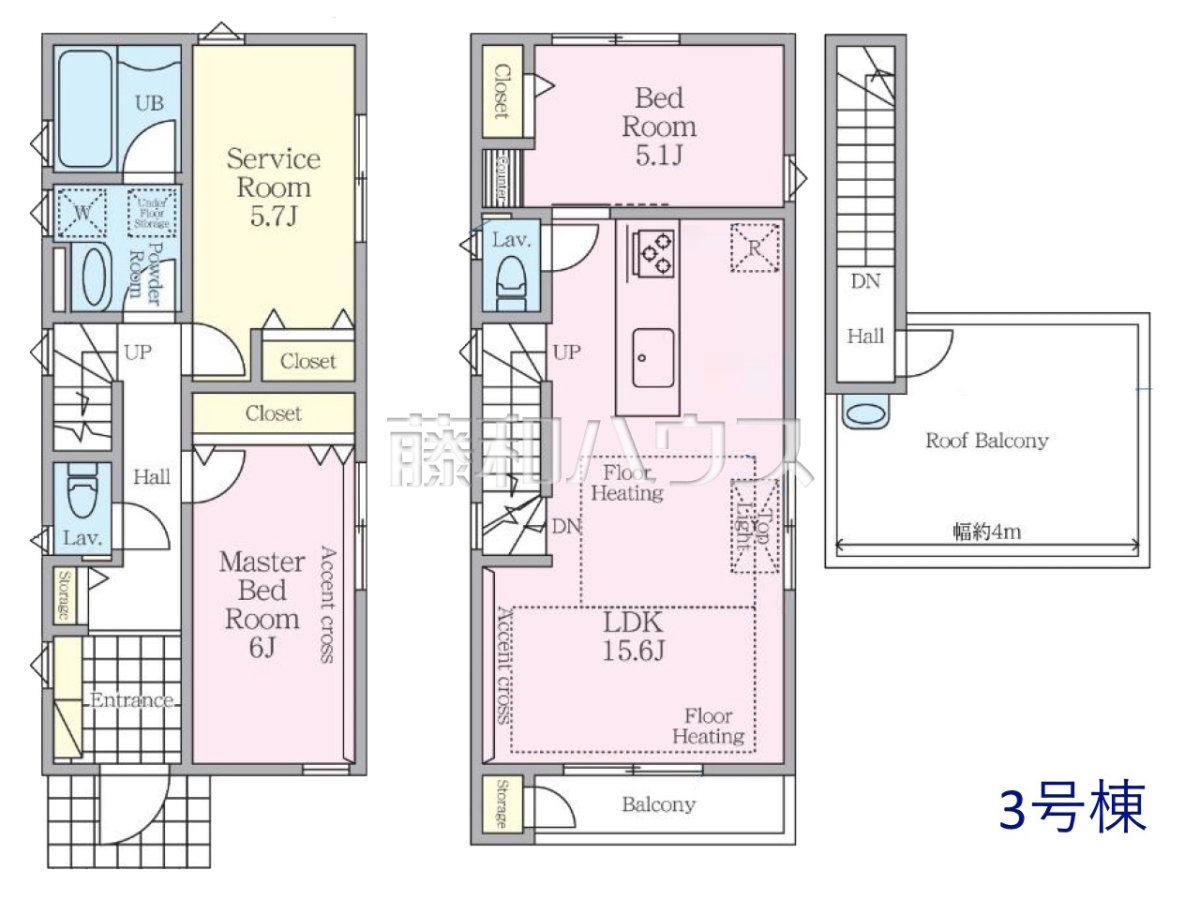
●ビルトイン食洗機を標準完備し、家事時間が短縮できます。
●ゆったり1坪サイズの浴室で1日の疲れをリセット
●埃を巻き上げにくく、心地よい温かさで快適に過ごせる床暖房
●きれいでさわやか、ウォシュレット付きトイレ
●埃を巻き上げにくく、心地よい温かさで快適に過ごせる床暖房
●リビングイン階段で自然と家族が集う憩の空間になります。
●平日のご案内も可能です。まずはお気軽にお問合せ下さいませ。
●物件の事、諸費用の事など、小さな疑問もお気軽にご連絡・ご相談下さい。

- 国立市西2丁目 全3棟/2号棟 新築分譲住宅 パノラマ・VR
- パノラマ・VR公開中
※手軽な操作で実際の内見に近い情報をお伝え出来る様、物件を360度カメラで撮影した画像になります。
PC・スマートフォン・VRゴーグルなどで、お客様のご覧になりたい様々な角度で閲覧が可能なバーチャルツアーです。
CG合成画像・写真の場合には実際とは多少異なる場合があります。
- 2025/12/1
- 特設ページを開設致しました!

- 担当:高橋 遥眞
- 周辺環境含めご案内させて頂きます。 お気軽にお問い合わせください。









































































































