日野市平山2丁目 全1棟 新築分譲住宅の物件詳細
| 土地面積 | 234.2m² | 建物面積 | 108.47m² |
|---|---|---|---|
| 間取り | 4LDK(+WIC・SIC ) | ||
| 完成年月 | 2026年7月 | ||

完成予想図(外観) 【日野市平山2丁目】 モノトーンを中心とした配色の現代的なデザイン。直線的ですっきりとしたスクエアなデザインが、お客様のお住まいを都...

外観 【日野市平山2丁目】

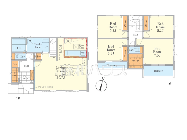
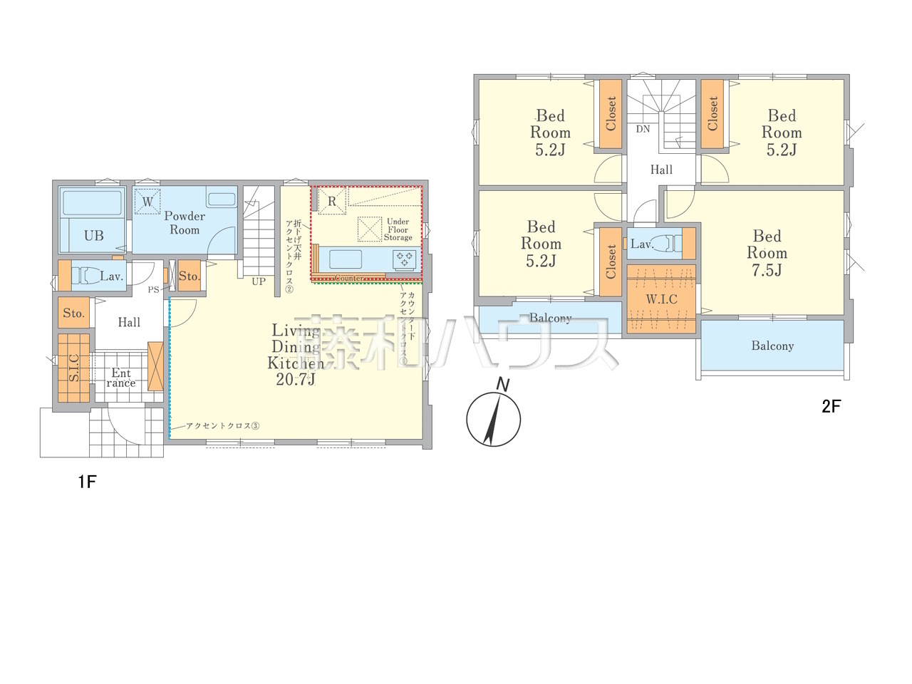
間取図 【日野市平山2丁目】WICやSICなど収納豊富な4LDKの間取りです。南面に配置したバルコニーは2面あるため、お洗濯ものもたっぷり干せます!

全体区画図 【日野市平山2丁目】 平日のご案内も可能です。まずはお気軽にお問合せ下さいませ。

外観 【日野市平山2丁目】

外観 【日野市平山2丁目】

外観 【日野市平山2丁目】

外観 【日野市平山2丁目】

外観 【日野市平山2丁目】

外観 【日野市平山2丁目】

外観 【日野市平山2丁目】

外観 【日野市平山2丁目】

外観 【日野市平山2丁目】

接道状況および現場風景 【日野市平山2丁目】

接道状況および現場風景 【日野市平山2丁目】

外観 【日野市平山2丁目】

外観 【日野市平山2丁目】

外観 【日野市平山2丁目】

外観 【日野市平山2丁目】

接道状況および現場風景 【日野市平山2丁目】

接道状況および現場風景 【日野市平山2丁目】

接道状況および現場風景 【日野市平山2丁目】

●LDK20.7帖のゆとりある4LDK
●リビングイン階段で、自然とコミュニケーションが広がります
●掃除用具やお子様のおもちゃなどをしまえるリビング収納
●食洗機+浄水器搭載の、一体型システムキッチン♪
●LDを見渡せる対面式キッチンは、料理中も会話が弾みます
●いつでも洗濯物を干せるのが嬉しい浴室換気乾燥機!
●洗面室は、急いでいる朝でも二人で使える広さになっております
●ハンドシャワー付き洗面化粧台で、朝の身支度も楽ちん!
●各居室にクローゼット完備。
家具を置くスペースが確保しやすい設計です
●7.5帖の主寝室には約2帖のWIC付で、大きなお荷物も片付きます
●南向きのバルコニーは日差しもたっぷり注ぎ、お洗濯物もよく乾きます
●24時間換気システムにより、花粉・PM2.5などの
微小粒子物質の侵入を防ぎ、快適な室内を保ちます
●訪問者がひと目でわかるカラーTVモニターホン
物件概要
| 種別 | 新築一戸建て | ||
|---|---|---|---|
| 所在地 | 東京都日野市平山2丁目MAP | ||
| 交通 | 京王線『平山城址公園』駅 徒歩13分 京王線『南平』駅 徒歩23分 京王線『長沼』駅 徒歩29分 京王動物園線『多摩動物公園』駅 徒歩28分 多摩都市モノレール『多摩動物公園』駅 徒歩28分 | ||
| 価格 | 5,799万円<税込> | 間取り | 4LDK(+WIC・SIC ) |
| 土地面積 | 234.2m²(実測) | 建物面積 | 108.47m²(実測) |
| 総戸数 | 1戸 | 販売戸数 | 1戸 |
| 構造・規模 | 木造 2階建 | 完成年月 | 2026年7月 |
| 現況 | 未完成 | 引渡時期 | 期日指定(2026年7月) |
| 土地権利 | 所有権 | 地目 | 宅地 |
| 用途地域 | 第一種低層住居専用地域 | 最適用途 | 住宅用地 |
| 建ぺい率・容積率 | 60%/100% | 都市計画 | 市街化調整区域 |
| 建築確認番号 | 第25UDI1W建12819号 | 国土法届出 | 不要 |
| 駐車スペース | 3台 | ||
| ライフライン | ガス:都市/水道:公営/排水:下水 | ||
| 省エネ性能表示 省エネ性能ラベル | |||
| 接道 | 接道状況:角地 東6m公道 南6m公道 | ||
| 特記事項 | 地区計画区域内(京王平山地区地区計画) 下水道処理区域 宅地造成等工事規制区域 敷地内に電柱あり | ||
| スクール情報 | 日野市立平山小学校 日野市立平山中学校 | ||
| 取引態様 | 媒介 | ||
| 情報更新日 | 2026年5月14日 |
物件QRコード
お手持ちのスマートフォンで右のQRコードを読み取るとスマートフォンサイトで、再度物件の検索しなくてもこちらの物件情報へ直接アクセスする事ができます。
※スマートフォンでQRコードを読み取る場合別途アプリのインストールが必要な場合がございます。 ※ご利用アプリや、機種等によりQRコードが正しく読み取れない場合がございます。 | |
| 次回更新予定日 | 2026年5月28日 | ||
| 取引条件有効期限 | 2026年5月28日 | ||
| お問合せ番号 | 1HN004116 | ||
- 物件の特徴・設備
- 2沿線以上利用可
- 角地
- 整形地
- 南道路
- 高台に立地
- 南向き
- LDK15帖以上
- 全居室フローリング
- システムキッチン
- 対面キッチン
- 食器洗乾燥機
- 浄水器
- 浴室乾燥機
- 浴室暖房
- 追焚機能
- 浴室1坪以上
- 温水洗浄便座
- 省エネ給湯器
- TVモニタ付インターホン
- 都市ガス
- シューズインクローゼット
- ウォークインクローゼット
- 全居室収納
- 南面バルコニー
- 南庭
- バリアフリー
- 2階建
- 駐車場2台以上
- フラット35・S適合
支払い例・住宅ローンシミュレーション
周辺MAP
- 幼稚園・保育園
- 公園
- スーパー
- 幼稚園・保育園
- 公園
- スーパー
- 幼稚園・保育園
- 公園
- スーパー
- 幼稚園・保育園
※地図上に表示される物件の位置は付近住所に所在することを表すものであり、実際の物件所在地とは異なる場合がございます。
掲載物件に関する注意事項
- 価格は物件代金の総額を表示しており、建物(建物プラン例等を含む)等の消費税が課税される場合には、税込み価格(最終情報更新日時点の確認)となります。消費税率は物件のお引き渡しの時期、お支払い時期等により異なります。各物件の詳細につきましてはお問合せ下さい。
- 情報更新日から現在までの間に売却済となった場合はご容赦下さい。
- 掲載情報は情報更新日時点のものです。お客様がご覧になるタイミングによって、掲載されている内容から変更されている場合がございます。タイムラグにより最新の情報とは若干差異(価格変更や販売終了等)が生じる場合がありますので、予めご了承頂けますようお願い申し上げます。
- 当サイトでは、掲載情報の正確さには万全を期しておりますが、万一入力ミス等により誤った内容が掲載されていた場合は、速やかに確認のうえ訂正をいたしますので、予めご了承頂けますようお願い申し上げます。
- 公開している物件は広告表示規約に基づいて表示していますが、私道負担面積、セットバック面積、路地状部分面積等について一部表示がされていない場合もございますので、詳しくはお問合せの際にご確認下さい。
- 完成予想図については、外構、植栽、外観等実際のものとは多少異なることがあります。
- 写真、または完成予想図や間取り図に描かれている家具や車等は、特にコメントがない場合、販売対象には含まれません。
- 掲載している写真につきましては、プライバシー保護のために画像を加工処理しているものがあります。
- 建築条件付き売地の販売価格には、建物価格は含まれません。
- 物件の特徴や設備につきましては、販売戸数・区画数が複数の物件は、全ての住戸・区画に該当しない項目もあります。
- 建築条件付き売地の情報内に掲載されている「建物プラン例」は、土地購入者の設計プランの参考一例であって、そのプランの採用可否は任意です。
- 土地(建築条件なし)の「建物プラン例」等を掲載している時、その設計プランは特定の建築請負会社によるもので、当該建築請負会社以外で建築した場合、同様のものが同価格で建築出来るとは限りません。また建築請負会社を特定するものではありません。
- 間取り図や間取り表記のLDKは「リビングダイニングキッチン」、DKは「ダイニングキッチン」、Kは「キッチン」、Sは「納戸・サービスルーム」、WICは「ウォークインクローゼット」、SICは「シューズインクローゼット」を表します。
- CG合成している画像、写真、パノラマ、VRの場合、実際とは多少異なる場合があります。
- 陽当り、眺望、通風、採光についての説明は将来にわたって保証されるものではありません。
- 徒歩所要時間は80m=1分として換算したもので、距離は地図上の概算によるものです。

















































![学区情報[ガッコム]](/images/common/side_school.jpg)





