清瀬市中里2丁目 全1棟 新築分譲住宅の物件詳細
| 土地面積 | 293.18m² | 建物面積 | 86.75m² |
|---|---|---|---|
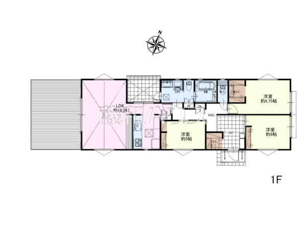
| 間取り | 3LDK(+WIC、SIC、ロフト) | ||
| 完成年月 | 2026年5月 | ||

外観 【清瀬市中里2丁目】

間取図 【清瀬市中里2丁目】 周辺環境はもちろん、日当たりや設備仕様など、実際に行ってみないと分からないことも多くございます。営業担当がご案内いたしますの...

全体区画図 【清瀬市中里2丁目】 平日のご案内も可能です。まずはお気軽にお問合せ下さいませ

外観 【清瀬市中里2丁目】

外観 【清瀬市中里2丁目】

外観 【清瀬市中里2丁目】

外観 【清瀬市中里2丁目】

外観 【清瀬市中里2丁目】

接道状況および現場風景 【清瀬市中里2丁目】

接道状況および現場風景 【清瀬市中里2丁目】

外観 【清瀬市中里2丁目】

外観 【清瀬市中里2丁目】

外観 【清瀬市中里2丁目】

外観 【清瀬市中里2丁目】

外観 【清瀬市中里2丁目】

外観 【清瀬市中里2丁目】

外観 【清瀬市中里2丁目】

接道状況および現場風景 【清瀬市中里2丁目】

現地写真 【清瀬市中里2丁目】 平日のご案内も可能です。まずはお気軽にお問合せ下さいませ。

接道状況および現場風景 【清瀬市中里2丁目】 物件の事、諸費用の事など、小さな疑問もお気軽にご連絡・ご相談下さい。

現地写真 【清瀬市中里2丁目】

現地写真 【清瀬市中里2丁目】

現地写真 【清瀬市中里2丁目】

現地写真【清瀬市中里2丁目】

現地写真 【清瀬市中里2丁目】 平日のご案内も可能です。まずはお気軽にお問合せ下さいませ。

現地写真 【清瀬市中里2丁目】

現地写真 【清瀬市中里2丁目】

接道状況および現場風景 【清瀬市中里2丁目】

- おすすめコメント
- 広々敷地にカースペース4台分駐車可能!贅沢な平屋作りを是非ご見学くださいませ。
平日のご案内も可能ですので、お気軽にお問い合わせください。
●使いやすくスタイリッシュなシステムキッチンには、
毎日お使いになる方の視点が存分に活かされています。
●収納量ばっちりのウォークインクローゼット!
この機会に古い家具とはお別れできるかも!?
●防犯に役立つTVモニター付インターフォン
●各居室にはクローゼットを完備し、家具を置くスペースが
確保しやすい設計がされております。
●火を使わないオール電化の家。IHクッキングヒーターで空気もきれいです。
●雨の日の強い味方!浴室換気乾燥機付きユニットバスで
洗濯物が乾かせます
●いつでもおいしいお水が飲める浄水器一体型水栓も完備
●ゆったり1坪サイズの浴室で1日の疲れをリセット
●温水洗浄機能付きトイレで清潔にご使用いただけます。
物件概要
| 種別 | 新築一戸建て | ||
|---|---|---|---|
| 所在地 | 東京都清瀬市中里2丁目MAP | ||
| 交通 | 西武池袋線『清瀬』駅 徒歩19分 JR武蔵野線『東所沢』駅 徒歩23分 西武池袋線『秋津』駅 徒歩25分 | ||
| 価格 | 7,800万円<税込> | 間取り | 3LDK(+WIC、SIC、ロフト) |
| 土地面積 | 293.18m²(公簿) | 建物面積 | 86.75m²(公簿) |
| 総戸数 | 1戸 | 販売戸数 | 1戸 |
| 構造・規模 | 木造 1階建 | 完成年月 | 2026年5月 |
| 現況 | 未完成 | 引渡時期 | 期日指定(2026年5月) |
| 土地権利 | 所有権 | 私道面積 | 46.1m²(公簿) |
| 地目 | 宅地 | 用途地域 | 第一種低層住居専用地域 |
| 最適用途 | 住宅用地 | 建ぺい率・容積率 | 50%/100% |
| 都市計画 | 市街化区域 | 建築確認番号 | TKK確済25-132号 |
| 国土法届出 | 不要 | 駐車スペース | 3台以上 |
| ライフライン | ガス:都市/水道:公営/排水:下水 | ||
| 省エネ性能表示 省エネ性能ラベル | |||
| 接道 | 接道状況:一方 南4m私道(位置指定あり) | ||
| 特記事項 | 地目:宅地、雑種地 公簿売買:土地実測面積約297.3平米(地積更生は行いません) | ||
| スクール情報 | 清瀬市立清瀬第四小学校 清瀬市立清瀬第四中学校 | ||
| 取引態様 | 媒介 | ||
| 情報更新日 | 2026年4月30日 |
物件QRコード
お手持ちのスマートフォンで右のQRコードを読み取るとスマートフォンサイトで、再度物件の検索しなくてもこちらの物件情報へ直接アクセスする事ができます。
※スマートフォンでQRコードを読み取る場合別途アプリのインストールが必要な場合がございます。 ※ご利用アプリや、機種等によりQRコードが正しく読み取れない場合がございます。 | |
| 次回更新予定日 | 2026年5月14日 | ||
| 取引条件有効期限 | 2026年5月14日 | ||
| お問合せ番号 | 1KS001443 | ||
- 物件の特徴・設備
- 2沿線以上利用可
- 南道路
- 南向き
- LDK15帖以上
- 全居室フローリング
- システムキッチン
- 浄水器
- IHクッキングヒーター
- 浴室乾燥機
- 浴室1坪以上
- 温水洗浄便座
- オール電化
- 省エネ給湯器
- TVモニタ付インターホン
- 都市ガス
- 全居室収納
- 南庭
- ウッドデッキ
- 駐車場2台以上
支払い例・住宅ローンシミュレーション
周辺MAP
- 幼稚園・保育園
- 公園
- スーパー
- 幼稚園・保育園
- 公園
- スーパー
- 幼稚園・保育園
- 公園
- スーパー
- 幼稚園・保育園
※地図上に表示される物件の位置は付近住所に所在することを表すものであり、実際の物件所在地とは異なる場合がございます。
掲載物件に関する注意事項
- 価格は物件代金の総額を表示しており、建物(建物プラン例等を含む)等の消費税が課税される場合には、税込み価格(最終情報更新日時点の確認)となります。消費税率は物件のお引き渡しの時期、お支払い時期等により異なります。各物件の詳細につきましてはお問合せ下さい。
- 情報更新日から現在までの間に売却済となった場合はご容赦下さい。
- 掲載情報は情報更新日時点のものです。お客様がご覧になるタイミングによって、掲載されている内容から変更されている場合がございます。タイムラグにより最新の情報とは若干差異(価格変更や販売終了等)が生じる場合がありますので、予めご了承頂けますようお願い申し上げます。
- 当サイトでは、掲載情報の正確さには万全を期しておりますが、万一入力ミス等により誤った内容が掲載されていた場合は、速やかに確認のうえ訂正をいたしますので、予めご了承頂けますようお願い申し上げます。
- 公開している物件は広告表示規約に基づいて表示していますが、私道負担面積、セットバック面積、路地状部分面積等について一部表示がされていない場合もございますので、詳しくはお問合せの際にご確認下さい。
- 完成予想図については、外構、植栽、外観等実際のものとは多少異なることがあります。
- 写真、または完成予想図や間取り図に描かれている家具や車等は、特にコメントがない場合、販売対象には含まれません。
- 掲載している写真につきましては、プライバシー保護のために画像を加工処理しているものがあります。
- 建築条件付き売地の販売価格には、建物価格は含まれません。
- 物件の特徴や設備につきましては、販売戸数・区画数が複数の物件は、全ての住戸・区画に該当しない項目もあります。
- 建築条件付き売地の情報内に掲載されている「建物プラン例」は、土地購入者の設計プランの参考一例であって、そのプランの採用可否は任意です。
- 土地(建築条件なし)の「建物プラン例」等を掲載している時、その設計プランは特定の建築請負会社によるもので、当該建築請負会社以外で建築した場合、同様のものが同価格で建築出来るとは限りません。また建築請負会社を特定するものではありません。
- 間取り図や間取り表記のLDKは「リビングダイニングキッチン」、DKは「ダイニングキッチン」、Kは「キッチン」、Sは「納戸・サービスルーム」、WICは「ウォークインクローゼット」、SICは「シューズインクローゼット」を表します。
- CG合成している画像、写真、パノラマ、VRの場合、実際とは多少異なる場合があります。
- 陽当り、眺望、通風、採光についての説明は将来にわたって保証されるものではありません。
- 徒歩所要時間は80m=1分として換算したもので、距離は地図上の概算によるものです。


























































![学区情報[ガッコム]](/images/common/side_school.jpg)





