西東京市南町3丁目 全1棟 新築分譲住宅の物件詳細
| 土地面積 | 46.48m² | 建物面積 | 79.72m² |
|---|---|---|---|
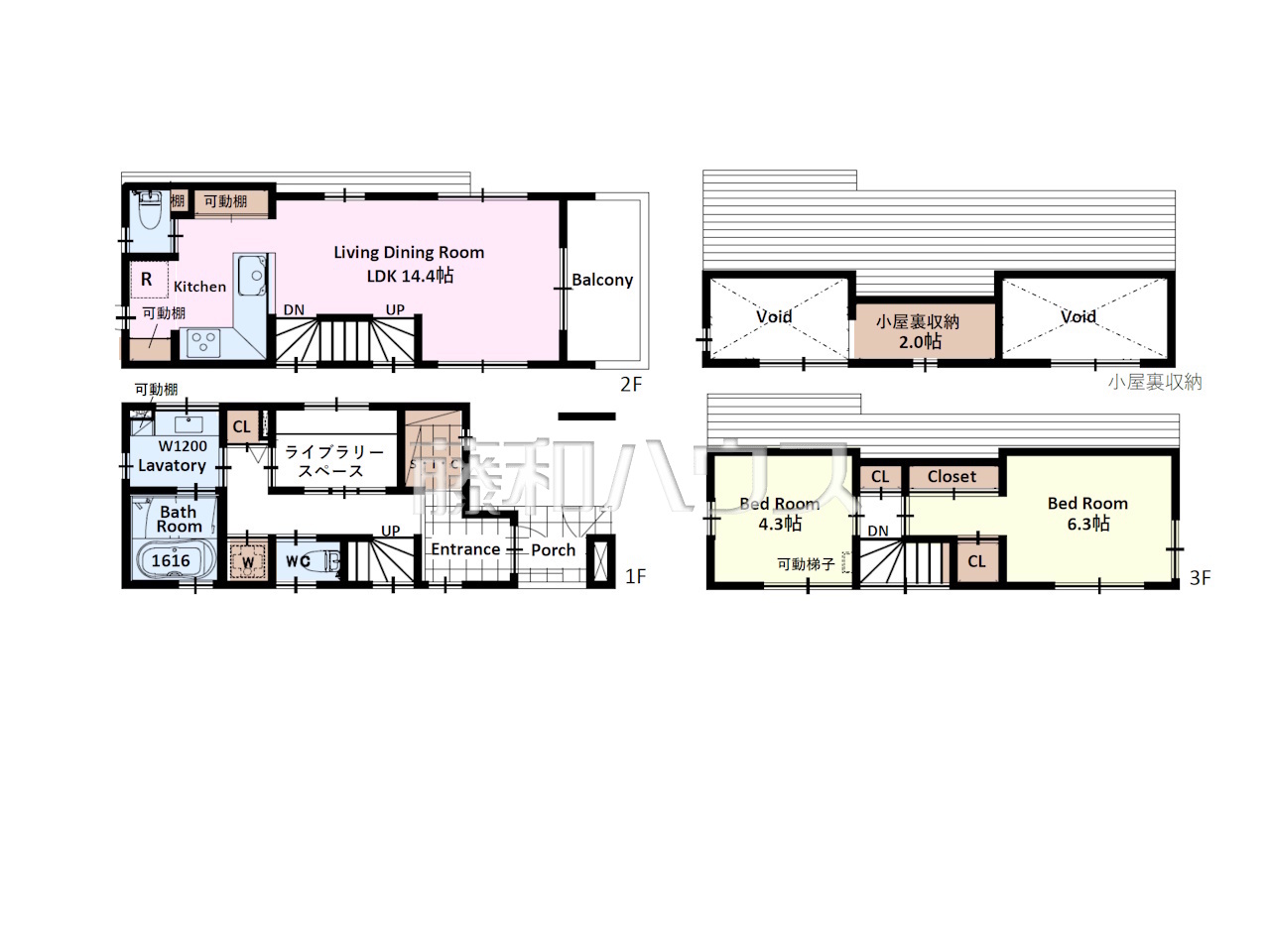
| 間取り | 2LDK(+小屋裏収納、SIC、ライブラリースペース) | ||
| 完成年月 | 2026年5月 | ||
●さまざまな用途に利用できる小屋裏収納つき
●SICはたくさんある靴を収納でき、玄関をスッキリ綺麗な空間に保てます
●使いやすくスタイリッシュなシステムキッチンには、
毎日お使いになる方の視点が存分に活かされています。
●家族との会話も弾む対面式キッチン
●防犯に役立つTVモニター付インターフォン
●雨の日の強い味方!浴室換気乾燥機付きユニットバスで
洗濯物が乾かせます
●いつでもおいしいお水が飲める浄水器一体型水栓も完備
●ゆったり1坪サイズの浴室で1日の疲れをリセット
●温水洗浄機能付きトイレで清潔にご使用いただけます。
周辺環境
田無駅まで約760m
こみね幼稚園まで約570m
西東京市立向台保育園まで約450m
田無すくすく保育園まで約370m
西東京市立柳沢小学校まで約540m
西東京市立田無第四中学校まで約870m
田無南町二郵便局 まで約250m
薫風会山田病院まで約470m
エミオ田無まで約710m
リヴィン田無店まで約710m
田無アスタ専門店街まで約710m
成城石井 エミオ田無店まで約710m
ファミリーマート 田無駅前店まで約530m
ローソン 西東京南町一丁目店まで約240m
セブンイレブン 西東京南町3丁目店まで約390m
コクミンドラッグ 田無店まで約700m
三菱UFJ銀行田無支店まで約580m
田無神社まで約620m
田無山 總持寺まで約630m
佐々総合病院まで約860m
物件概要
| 種別 | 新築一戸建て | ||
|---|---|---|---|
| 所在地 | 東京都西東京市南町3丁目MAP | ||
| 交通 | 西武新宿線『田無』駅 徒歩9分 西武新宿線『西武柳沢』駅 徒歩14分 西武新宿線『東伏見』駅 徒歩31分 | ||
| 価格 | 5,580万円<税込> | 間取り | 2LDK(+小屋裏収納、SIC、ライブラリースペース) |
| 土地面積 | 46.48m²(実測) | 建物面積 | 79.72m²(実測) |
| 総戸数 | 1戸 | 販売戸数 | 1戸 |
| 構造・規模 | 木造 3階建 | 完成年月 | 2026年5月 |
| 現況 | 未完成 | 引渡時期 | 期日指定(2026年5月) |
| 土地権利 | 所有権 | セットバック面積 | 0.71m² |
| 地目 | 宅地 | 用途地域 | 第一種中高層住居専用地域 |
| 最適用途 | 住宅用地 | 建ぺい率・容積率 | 60%/160% |
| 都市計画 | 市街化区域 | 建築確認番号 | 第FBC建確済25-0327号 |
| 国土法届出 | 不要 | 駐車スペース | あり |
| ライフライン | ガス:都市/水道:公営/排水:下水 | ||
| 省エネ性能表示 省エネ性能ラベル | |||
| 接道 | 接道状況:一方 東4m公道 | ||
| 特記事項 | 建物面積に車庫部分約5.17平米と備蓄倉庫面積約1.58平米を含む、別途小屋裏収納面積約3.3平米有 土地面積にセットバック面積約0.71平米含む(持分) 現況有姿 前面道路の幅員はセットバック後のものです | ||
| スクール情報 | 西東京市立柳沢小学校 西東京市立田無第四中学校 | ||
| 取引態様 | 媒介 | ||
| 情報更新日 | 2026年4月23日 |
物件QRコード
お手持ちのスマートフォンで右のQRコードを読み取るとスマートフォンサイトで、再度物件の検索しなくてもこちらの物件情報へ直接アクセスする事ができます。
※スマートフォンでQRコードを読み取る場合別途アプリのインストールが必要な場合がございます。 ※ご利用アプリや、機種等によりQRコードが正しく読み取れない場合がございます。 | |
| 次回更新予定日 | 2026年5月7日 | ||
| 取引条件有効期限 | 2026年5月7日 | ||
| お問合せ番号 | 1NT004315 | ||
- 物件の特徴・設備
- 全居室フローリング
- システムキッチン
- 対面キッチン
- 浄水器
- 浴室乾燥機
- 浴室1坪以上
- 温水洗浄便座
- 省エネ給湯器
- TVモニタ付インターホン
- 都市ガス
- シューズインクローゼット
- 小屋裏収納
- バリアフリー
- 3階建以上
- スーパー800m以内
- 小学校800m以内
支払い例・住宅ローンシミュレーション
周辺MAP
- 幼稚園・保育園
- 公園
- スーパー
- 幼稚園・保育園
- 公園
- スーパー
- 幼稚園・保育園
- 公園
- スーパー
- 幼稚園・保育園
※地図上に表示される物件の位置は付近住所に所在することを表すものであり、実際の物件所在地とは異なる場合がございます。
掲載物件に関する注意事項
- 価格は物件代金の総額を表示しており、建物(建物プラン例等を含む)等の消費税が課税される場合には、税込み価格(最終情報更新日時点の確認)となります。消費税率は物件のお引き渡しの時期、お支払い時期等により異なります。各物件の詳細につきましてはお問合せ下さい。
- 情報更新日から現在までの間に売却済となった場合はご容赦下さい。
- 掲載情報は情報更新日時点のものです。お客様がご覧になるタイミングによって、掲載されている内容から変更されている場合がございます。タイムラグにより最新の情報とは若干差異(価格変更や販売終了等)が生じる場合がありますので、予めご了承頂けますようお願い申し上げます。
- 当サイトでは、掲載情報の正確さには万全を期しておりますが、万一入力ミス等により誤った内容が掲載されていた場合は、速やかに確認のうえ訂正をいたしますので、予めご了承頂けますようお願い申し上げます。
- 公開している物件は広告表示規約に基づいて表示していますが、私道負担面積、セットバック面積、路地状部分面積等について一部表示がされていない場合もございますので、詳しくはお問合せの際にご確認下さい。
- 完成予想図については、外構、植栽、外観等実際のものとは多少異なることがあります。
- 写真、または完成予想図や間取り図に描かれている家具や車等は、特にコメントがない場合、販売対象には含まれません。
- 掲載している写真につきましては、プライバシー保護のために画像を加工処理しているものがあります。
- 建築条件付き売地の販売価格には、建物価格は含まれません。
- 物件の特徴や設備につきましては、販売戸数・区画数が複数の物件は、全ての住戸・区画に該当しない項目もあります。
- 建築条件付き売地の情報内に掲載されている「建物プラン例」は、土地購入者の設計プランの参考一例であって、そのプランの採用可否は任意です。
- 土地(建築条件なし)の「建物プラン例」等を掲載している時、その設計プランは特定の建築請負会社によるもので、当該建築請負会社以外で建築した場合、同様のものが同価格で建築出来るとは限りません。また建築請負会社を特定するものではありません。
- 間取り図や間取り表記のLDKは「リビングダイニングキッチン」、DKは「ダイニングキッチン」、Kは「キッチン」、Sは「納戸・サービスルーム」、WICは「ウォークインクローゼット」、SICは「シューズインクローゼット」を表します。
- CG合成している画像、写真、パノラマ、VRの場合、実際とは多少異なる場合があります。
- 陽当り、眺望、通風、採光についての説明は将来にわたって保証されるものではありません。
- 徒歩所要時間は80m=1分として換算したもので、距離は地図上の概算によるものです。




















![学区情報[ガッコム]](/images/common/side_school.jpg)





