新座市片山1丁目 全1棟 新築分譲住宅の物件詳細
| 土地面積 | 73.88m² | 建物面積 | 81m² |
|---|---|---|---|
| 間取り | 2SLDK | 完成年月 | 2026年1月 |

愛車を守るビルトインガレージ!アウトドア用品のお手入れにも便利です!【新座市片山1丁目】

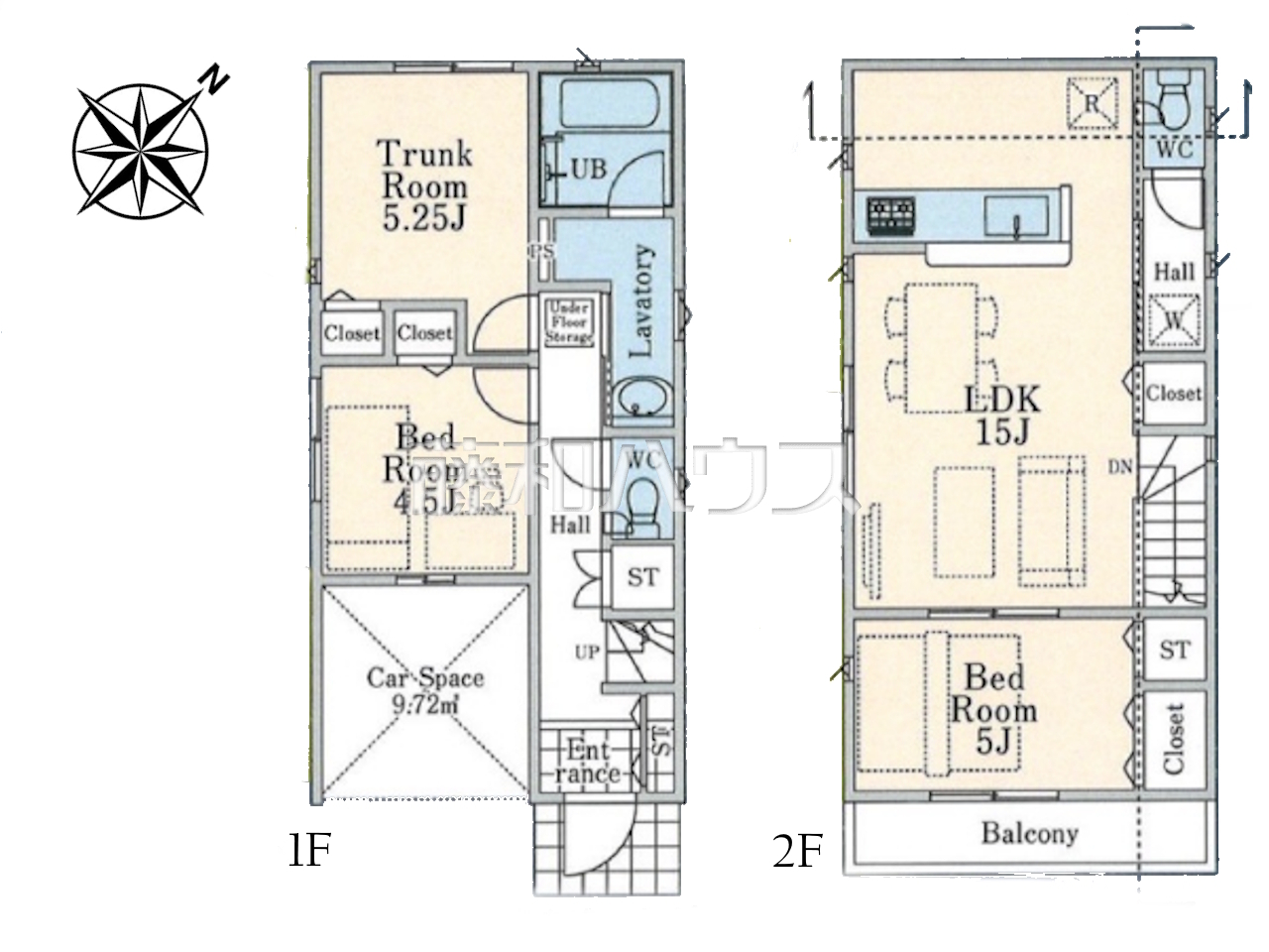
間取図 【新座市片山1丁目】周辺環境の併せてご案内致しますので、お気軽にお問い合わせくださいませ。

全体区画図 【新座市片山1丁目】 見学はしたいけど、なかなか時間が取れない・・・そんな方に出勤前や仕事終わりにマイホームを見学できるサポートをいたします。

リビング 【新座市片山1丁目】バス便利用で3路線3駅利用可。

ご家族やお友達とのお食事やティータイムを楽しめる対面キッチン。お食事やお茶の準備をしながらでも、自然と会話の輪が広がります。 【新座市片山1丁目】

カウンターキッチン越しでの会話が、家族団らんのスタートです♪ 【新座市片山1丁目】

いつでもおいしいお水が飲める浄水器一体型水栓も完備 【新座市片山1丁目】

三面鏡付きの洗面台。鏡の裏にも収納があり、歯ブラシや化粧品等もすっきり収納できます。 【新座市片山1丁目】

落ち着いた色合いで疲れたからだを癒す、贅沢なくつろぎ空間です。 【新座市片山1丁目】

温水洗浄機能付きトイレで清潔にご使用いただけます。各階にトイレがあると、朝の忙しい時間帯などに便利です。 また、夜中も1階まで下りずにすみます。【新座市片...

明るいカラーが採用されたお部屋は居室やワークスペースとして気持ち良く過ごせそうですね。 【新座市片山1丁目】

各居室にはクローゼットを完備し、家具を置くスペースが確保しやすい設計がされております。 【新座市片山1丁目】

各居室は2面採光により、明るく開放的な空間となっています。【新座市片山1丁目】

奥行きのあるバルコニーでお洗濯物の多い日でもいっきに干せますね。 【新座市片山1丁目】

自然光を取り入れ明るい空間になるよう設計された玄関です。 【新座市片山1丁目】

玄関 【新座市片山1丁目】

郵便受け 【新座市片山1丁目】

周辺環境はもちろん、日当たりや設備仕様など、実際に行ってみないと分からないことも多くございます。営業担当がご案内いたしますので、お気軽にお問い合わせくださ...

リビング 【新座市片山1丁目】

リビング 【新座市片山1丁目】

リビング 【新座市片山1丁目】

キッチン 【新座市片山1丁目】

キッチン 【新座市片山1丁目】

レンジフード 【新座市片山1丁目】

洗濯機置き場 【新座市片山1丁目】

トイレ 【新座市片山1丁目】

居室 【新座市片山1丁目】

2面採光で明るく風通しの良いお部屋 【新座市片山1丁目】

居室 【新座市片山1丁目】

居室 【新座市片山1丁目】

バルコニー 【新座市片山1丁目】

外観 【新座市片山1丁目】

外観 【新座市片山1丁目】

接道状況および現場風景 【新座市片山1丁目】

接道状況および現場風景 【新座市片山1丁目】

リビングに併設された収納スペースには、お子様の本やおもちゃ、掃除機やちょっとした小物などがスッキリ収納できます。あったら便利なうれしい収納ですね! 【新...

カースペース 【新座市片山1丁目】

外観 【新座市片山1丁目】
●防犯カメラでセキュリティ面も安心です
●システムキッチンには、毎日お使いになる方の視点が存分に活かされています。
●浴室換気乾燥機は梅雨の時期等、なかなか乾かない洗濯物を干すのに役立ちます!
●ウォシュレット付きトイレ!リビング・お風呂に続いて意外と癒しの空間かも!?
●平日のご案内も可能です。まずはお気軽にお問合せ下さいませ。
●物件の事、諸費用の事など、小さな疑問もお気軽にご連絡・ご相談下さい。
周辺環境
新座市立片山小学校まで約287m
新座市立第三中学校まで約1,030m
みき保育園まで約790m
ベルク池田店まで約776m
ドラッグセイムス 新座片山店まで約690m
新座片山郵便局まで約520m
静風荘病院まで約1,330m
新座市立中央公民館図書室まで約860m
ファッションセンターしまむら片山店まで約630m
サミットストア新座片山店まで約1,060m
堀ノ内病院まで約1,490m
いなげや 新座野寺店まで約1,020m
ヨークフーズ 新座馬場店まで約1,100m
ジェーソン練馬西大泉まで約1,350m
業務スーパー 新座店まで約1,490m
美鈴幼稚園まで約906m
ファミリーマート 新座馬場店まで約1,290m
セブン-イレブン 新座栄1丁目店まで約1,530m
ドラッグセイムス新座片山3丁目店まで約880m
ドラッグセイムス 新座南店まで約1,310m
新座市立中央公民館まで約850m
新座市立歴史民俗資料館まで約800m
新座セントラルキッズパークまで約890m
西六いこい公園まで約1,180m
西六ふれあい公園まで約1,200m
おざく児童遊園まで約1,230m
物件概要
| 種別 | 新築一戸建て | ||
|---|---|---|---|
| 所在地 | 埼玉県新座市片山1丁目MAP | ||
| 交通 | 西武池袋線『ひばりヶ丘』駅 バス12分「片山小学校」停歩6分 東武東上線『朝霞台』駅 バス27分「片山小学校」停歩6分 JR武蔵野線『北朝霞』駅 バス23分「あけぼの住宅前」停歩6分 | ||
| 価格 | 2,880万円<税込> | 間取り | 2SLDK |
| 土地面積 | 73.88m²(公簿) | 建物面積 | 81m²(実測) |
| 総戸数 | 1戸 | 販売戸数 | 戸 |
| 構造・規模 | 木造 2階建 | 完成年月 | 2026年1月 |
| 現況 | 完成済 | 引渡時期 | 即時 |
| 土地権利 | 所有権 | 私道面積 | 24m²(公簿) |
| 地目 | 宅地 | 用途地域 | 第一種低層住居専用地域 |
| 最適用途 | 住宅用地 | 建ぺい率・容積率 | 60%/100% |
| 都市計画 | 市街化区域 | 建築確認番号 | 第24UDI1W建07821号 |
| 国土法届出 | 不要 | 駐車スペース | あり |
| ライフライン | ガス:その他/水道:公営/排水:下水 | ||
| 省エネ性能表示 省エネ性能ラベル | |||
| 接道 | 接道状況:一方 南東4.2m私道(位置指定あり) | ||
| 特記事項 | 建物面積に車庫面積約9.72平米含む 片山・西堀地区地区計画 | ||
| スクール情報 | 新座市立片山小学校 新座市立第三中学校 | ||
| 取引態様 | 媒介 | ||
| 情報更新日 | 2026年4月10日 |
物件QRコード
お手持ちのスマートフォンで右のQRコードを読み取るとスマートフォンサイトで、再度物件の検索しなくてもこちらの物件情報へ直接アクセスする事ができます。
※スマートフォンでQRコードを読み取る場合別途アプリのインストールが必要な場合がございます。 ※ご利用アプリや、機種等によりQRコードが正しく読み取れない場合がございます。 | |
| 次回更新予定日 | 2026年4月24日 | ||
| 取引条件有効期限 | 2026年4月24日 | ||
| お問合せ番号 | 1NZ002635 | ||
- 物件の特徴・設備
- 2沿線以上利用可
- 全室2面採光
- LDK15帖以上
- 全居室フローリング
- システムキッチン
- 対面キッチン
- 浴室乾燥機
- 浴室暖房
- 温水洗浄便座
- TVモニタ付インターホン
- 全居室収納
- 制震
- 耐震
- 2階建
- フラット35・S適合
- 即入居可
- スーパー800m以内
- 小学校800m以内
支払い例・住宅ローンシミュレーション
周辺MAP
- 幼稚園・保育園
- 公園
- スーパー
- 幼稚園・保育園
- 公園
- スーパー
- 幼稚園・保育園
- 公園
- スーパー
- 幼稚園・保育園
※地図上に表示される物件の位置は付近住所に所在することを表すものであり、実際の物件所在地とは異なる場合がございます。
掲載物件に関する注意事項
- 価格は物件代金の総額を表示しており、建物(建物プラン例等を含む)等の消費税が課税される場合には、税込み価格(最終情報更新日時点の確認)となります。消費税率は物件のお引き渡しの時期、お支払い時期等により異なります。各物件の詳細につきましてはお問合せ下さい。
- 情報更新日から現在までの間に売却済となった場合はご容赦下さい。
- 掲載情報は情報更新日時点のものです。お客様がご覧になるタイミングによって、掲載されている内容から変更されている場合がございます。タイムラグにより最新の情報とは若干差異(価格変更や販売終了等)が生じる場合がありますので、予めご了承頂けますようお願い申し上げます。
- 当サイトでは、掲載情報の正確さには万全を期しておりますが、万一入力ミス等により誤った内容が掲載されていた場合は、速やかに確認のうえ訂正をいたしますので、予めご了承頂けますようお願い申し上げます。
- 公開している物件は広告表示規約に基づいて表示していますが、私道負担面積、セットバック面積、路地状部分面積等について一部表示がされていない場合もございますので、詳しくはお問合せの際にご確認下さい。
- 完成予想図については、外構、植栽、外観等実際のものとは多少異なることがあります。
- 写真、または完成予想図や間取り図に描かれている家具や車等は、特にコメントがない場合、販売対象には含まれません。
- 掲載している写真につきましては、プライバシー保護のために画像を加工処理しているものがあります。
- 建築条件付き売地の販売価格には、建物価格は含まれません。
- 物件の特徴や設備につきましては、販売戸数・区画数が複数の物件は、全ての住戸・区画に該当しない項目もあります。
- 建築条件付き売地の情報内に掲載されている「建物プラン例」は、土地購入者の設計プランの参考一例であって、そのプランの採用可否は任意です。
- 土地(建築条件なし)の「建物プラン例」等を掲載している時、その設計プランは特定の建築請負会社によるもので、当該建築請負会社以外で建築した場合、同様のものが同価格で建築出来るとは限りません。また建築請負会社を特定するものではありません。
- 間取り図や間取り表記のLDKは「リビングダイニングキッチン」、DKは「ダイニングキッチン」、Kは「キッチン」、Sは「納戸・サービスルーム」、WICは「ウォークインクローゼット」、SICは「シューズインクローゼット」を表します。
- CG合成している画像、写真、パノラマ、VRの場合、実際とは多少異なる場合があります。
- 陽当り、眺望、通風、採光についての説明は将来にわたって保証されるものではありません。
- 徒歩所要時間は80m=1分として換算したもので、距離は地図上の概算によるものです。
























































![学区情報[ガッコム]](/images/common/side_school.jpg)





