ライオンズマンション武蔵境の物件詳細
| 専有面積 | 56.67m² | 所在階 | 地上5階建 4階部分 |
|---|---|---|---|
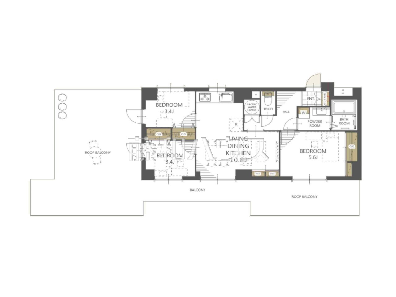
| 間取り | 3LDK | 築年月 | 1983年9月(築42年7ヶ月) |
●使いやすくスタイリッシュなシステムキッチン
●全居室収納スペース付きで、お部屋が片付きます
●足を伸ばして入れるバスタブで、ゆっくり一日の疲れを癒して下さい
●ガーデニングや家庭菜園、オープンカフェ気分も楽しめるルーフバルコニー
●角部屋で2面に窓やバルコニーを設けることで風通しがよく、効率よく換気ができます
●現地だけでなく、周辺環境もご案内いたします♪
●物件や諸費用の事など、地域密着の当社へご相談ください!
物件概要
| 種別 | マンション | ||
|---|---|---|---|
| 所在地 | 東京都武蔵野市境南町5丁目MAP | ||
| 交通 | JR中央線『武蔵境』駅 徒歩14分 西武多摩川線『武蔵境』駅 徒歩13分 西武多摩川線『新小金井』駅 徒歩18分 | ||
| 価格 | 4,990万円<税込> | 間取り | 3LDK |
| 専有面積 | 56.67m²(壁芯) | バルコニー | 4.48m²(西向き) |
| ルーフバルコニー | 31.97m² 使用料:640円/月 | 総戸数 | 35戸 |
| 構造・規模・所在階 | 鉄筋コンクリート造 地上5階建 4階部分 | 築年月 | 1983年9月(築42年7ヶ月) |
| 現況 | 空室 | 引渡時期 | 即時 |
| 土地権利 | 所有権 | 駐車場 | なし |
| 管理形態 | 全部委託 | 管理人 | 巡回 |
| 管理費 | 14,300円/月 | 修繕積立金 | 19,890円/月 |
| ライフライン | ガス:都市/水道:公営/排水:下水 | ||
| 省エネ性能表示 省エネ性能ラベル | |||
| スクール情報 | 武蔵野市立境南小学校 三鷹市立第二中学校 | ||
| 取引態様 | 媒介 | ||
| 情報更新日 | 2026年4月9日 |
物件QRコード
お手持ちのスマートフォンで右のQRコードを読み取るとスマートフォンサイトで、再度物件の検索しなくてもこちらの物件情報へ直接アクセスする事ができます。
※スマートフォンでQRコードを読み取る場合別途アプリのインストールが必要な場合がございます。 ※ご利用アプリや、機種等によりQRコードが正しく読み取れない場合がございます。 | |
| 次回更新予定日 | 2026年4月23日 | ||
| 取引条件有効期限 | 2026年4月23日 | ||
| お問合せ番号 | 5MS005504 | ||
- 物件の特徴・設備
- 2沿線以上利用可
- 全居室フローリング
- システムキッチン
- 食器洗乾燥機
- 都市ガス
- 全居室収納
- ルーフバルコニー
- 2面以上バルコニー
- 角部屋
- 2階以上
- エレベーター
- 即入居可
- スーパー800m以内
- 小学校800m以内
支払い例・住宅ローンシミュレーション
周辺MAP
- 幼稚園・保育園
- 公園
- スーパー
- 幼稚園・保育園
- 公園
- スーパー
- 幼稚園・保育園
- 公園
- スーパー
- 幼稚園・保育園
※地図上に表示される物件の位置は付近住所に所在することを表すものであり、実際の物件所在地とは異なる場合がございます。
掲載物件に関する注意事項
- 価格は物件代金の総額を表示しており、建物(建物プラン例等を含む)等の消費税が課税される場合には、税込み価格(最終情報更新日時点の確認)となります。消費税率は物件のお引き渡しの時期、お支払い時期等により異なります。各物件の詳細につきましてはお問合せ下さい。
- 情報更新日から現在までの間に売却済となった場合はご容赦下さい。
- 掲載情報は情報更新日時点のものです。お客様がご覧になるタイミングによって、掲載されている内容から変更されている場合がございます。タイムラグにより最新の情報とは若干差異(価格変更や販売終了等)が生じる場合がありますので、予めご了承頂けますようお願い申し上げます。
- 当サイトでは、掲載情報の正確さには万全を期しておりますが、万一入力ミス等により誤った内容が掲載されていた場合は、速やかに確認のうえ訂正をいたしますので、予めご了承頂けますようお願い申し上げます。
- 公開している物件は広告表示規約に基づいて表示していますが、私道負担面積、セットバック面積、路地状部分面積等について一部表示がされていない場合もございますので、詳しくはお問合せの際にご確認下さい。
- 完成予想図については、外構、植栽、外観等実際のものとは多少異なることがあります。
- 写真、または完成予想図や間取り図に描かれている家具や車等は、特にコメントがない場合、販売対象には含まれません。
- 掲載している写真につきましては、プライバシー保護のために画像を加工処理しているものがあります。
- 建築条件付き売地の販売価格には、建物価格は含まれません。
- 物件の特徴や設備につきましては、販売戸数・区画数が複数の物件は、全ての住戸・区画に該当しない項目もあります。
- 建築条件付き売地の情報内に掲載されている「建物プラン例」は、土地購入者の設計プランの参考一例であって、そのプランの採用可否は任意です。
- 土地(建築条件なし)の「建物プラン例」等を掲載している時、その設計プランは特定の建築請負会社によるもので、当該建築請負会社以外で建築した場合、同様のものが同価格で建築出来るとは限りません。また建築請負会社を特定するものではありません。
- 間取り図や間取り表記のLDKは「リビングダイニングキッチン」、DKは「ダイニングキッチン」、Kは「キッチン」、Sは「納戸・サービスルーム」、WICは「ウォークインクローゼット」、SICは「シューズインクローゼット」を表します。
- CG合成している画像、写真、パノラマ、VRの場合、実際とは多少異なる場合があります。
- 陽当り、眺望、通風、採光についての説明は将来にわたって保証されるものではありません。
- 徒歩所要時間は80m=1分として換算したもので、距離は地図上の概算によるものです。
































![学区情報[ガッコム]](/images/common/side_school.jpg)





