ブロッサムコートむさし野ビューウイングの物件詳細
| 専有面積 | 70.82m² | 所在階 | 地上10階建 3階部分 |
|---|---|---|---|
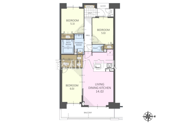
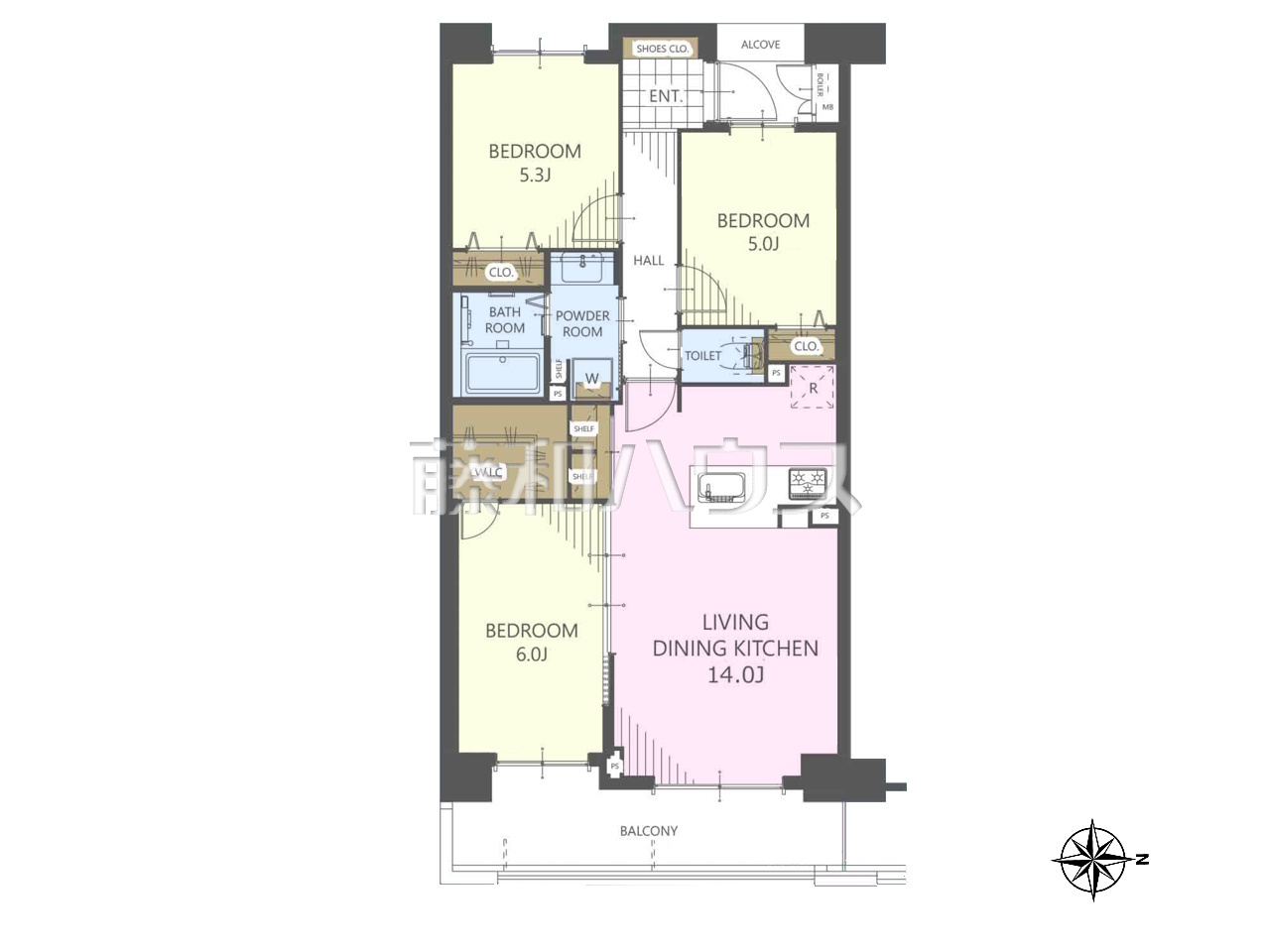
| 間取り | 3LDK(+WIC) | ||
| 築年月 | 2000年10月(築25年6ヶ月) | ||
●大切なご家族の一員であるペットと一緒に暮らせるマンション!(細則有)
●安心のオートロック付きマンション
●ウォークインクローゼットは、お洋服等がたくさん収納できて便利です。
●ご家族の様子がわかり、会話も楽しめる対面式システムキッチン
●リビングに隣接する居室の引き戸を開ければさらに開放感が広がります。
●2025年10月リノベーション完了済
システムキッチン/ユニットバス/洗面化粧台/トイレ
建具/床材/クロス/ハウスクリーニング 等
●見学はしたいけど、なかなか時間が取れない・・・
そんな方に出勤前や仕事終わりにマイホームを見学できるサポートをいたします。
周辺環境
武蔵関駅まで約960m
上石神井幼稚園まで約530m
関町第三保育園まで約480m
練馬区立関町北小学校まで約470m
練馬区立関中学校まで約590m
練馬南大泉一郵便局まで約180m
さとう内科医院まで約960m
エミオ武蔵関まで約910m
いなげや練馬南大泉店まで約220m
三徳 関町店まで約940m
サミットストア石神井台店まで約920m
業務スーパー石神井台店まで約1,110m
ウェルパーク練馬南大泉店まで約220m
ウェルパーク西東京富士町店まで約830m
オザキフラワーパークまで約920m
練馬区立南泉公園まで約320m
練馬区立梅の木児童遊園まで約380m
東伏見駅まで約1,690m
大泉生協病院まで約1,250m
練馬区立武蔵関公園まで約1,660m
物件概要
| 種別 | マンション | ||
|---|---|---|---|
| 所在地 | 東京都練馬区関町北5丁目MAP | ||
| 交通 | 西武新宿線『武蔵関』駅 徒歩13分 西武新宿線『東伏見』駅 徒歩22分 西武池袋線『保谷』駅 徒歩25分 西武新宿線『上石神井』駅 徒歩29分 西武池袋線『大泉学園』駅 徒歩28分 | ||
| 価格 | 5,790万円<税込> | 間取り | 3LDK(+WIC) |
| 専有面積 | 70.82m²(壁芯) | バルコニー | 9.93m²(東向き) |
| 総戸数 | 130戸 | 構造・規模・所在階 | 鉄筋コンクリート造 地上10階建 3階部分 |
| 築年月 | 2000年10月(築25年6ヶ月) | 現況 | 空室 |
| 引渡時期 | 即時 | 土地権利 | 所有権 |
| 駐車場 | 敷地内に空なし 料金:11,000〜18,000円/月 | 管理形態 | 全部委託 |
| 管理人 | 日勤 | 管理費 | 8,500円/月 |
| 修繕積立金 | 12,960円/月 | ||
| ライフライン | ガス:都市/水道:公営/排水:下水 | ||
| 省エネ性能表示 省エネ性能ラベル | |||
| リフォーム |
| ||
| リノベーション | 施工完了年月:2025年10月 リノベーション済 | ||
| その他費用 | 団地修繕積立金 : 8,070円/月、ハムレットクラブ負担金 : 500円/月、テレビシステム維持管理費 : 400円/月 | ||
| 特記事項 | 防犯カメラ使用料金/月額200円 別途アルコープ面積約2.4平米有 駐車場の状況は2026年3月時点のものです | ||
| スクール情報 | 練馬区立関町北小学校 練馬区立関中学校 | ||
| 取引態様 | 媒介 | ||
| 情報更新日 | 2026年4月30日 |
物件QRコード
お手持ちのスマートフォンで右のQRコードを読み取るとスマートフォンサイトで、再度物件の検索しなくてもこちらの物件情報へ直接アクセスする事ができます。
※スマートフォンでQRコードを読み取る場合別途アプリのインストールが必要な場合がございます。 ※ご利用アプリや、機種等によりQRコードが正しく読み取れない場合がございます。 | |
| 次回更新予定日 | 2026年5月14日 | ||
| 取引条件有効期限 | 2026年5月14日 | ||
| お問合せ番号 | 5NM019570 | ||
- 物件の特徴・設備
- 2沿線以上利用可
- 全居室フローリング
- システムキッチン
- 対面キッチン
- 食器洗乾燥機
- 都市ガス
- ウォークインクローゼット
- 全居室収納
- 2階以上
- オートロック
- エレベーター
- 即入居可
- ペット相談
- 内装リフォーム
- リノベーション
- スーパー800m以内
- 小学校800m以内
支払い例・住宅ローンシミュレーション
周辺MAP
- 幼稚園・保育園
- 公園
- スーパー
- 幼稚園・保育園
- 公園
- スーパー
- 幼稚園・保育園
- 公園
- スーパー
- 幼稚園・保育園
※地図上に表示される物件の位置は付近住所に所在することを表すものであり、実際の物件所在地とは異なる場合がございます。
掲載物件に関する注意事項
- 価格は物件代金の総額を表示しており、建物(建物プラン例等を含む)等の消費税が課税される場合には、税込み価格(最終情報更新日時点の確認)となります。消費税率は物件のお引き渡しの時期、お支払い時期等により異なります。各物件の詳細につきましてはお問合せ下さい。
- 情報更新日から現在までの間に売却済となった場合はご容赦下さい。
- 掲載情報は情報更新日時点のものです。お客様がご覧になるタイミングによって、掲載されている内容から変更されている場合がございます。タイムラグにより最新の情報とは若干差異(価格変更や販売終了等)が生じる場合がありますので、予めご了承頂けますようお願い申し上げます。
- 当サイトでは、掲載情報の正確さには万全を期しておりますが、万一入力ミス等により誤った内容が掲載されていた場合は、速やかに確認のうえ訂正をいたしますので、予めご了承頂けますようお願い申し上げます。
- 公開している物件は広告表示規約に基づいて表示していますが、私道負担面積、セットバック面積、路地状部分面積等について一部表示がされていない場合もございますので、詳しくはお問合せの際にご確認下さい。
- 完成予想図については、外構、植栽、外観等実際のものとは多少異なることがあります。
- 写真、または完成予想図や間取り図に描かれている家具や車等は、特にコメントがない場合、販売対象には含まれません。
- 掲載している写真につきましては、プライバシー保護のために画像を加工処理しているものがあります。
- 建築条件付き売地の販売価格には、建物価格は含まれません。
- 物件の特徴や設備につきましては、販売戸数・区画数が複数の物件は、全ての住戸・区画に該当しない項目もあります。
- 建築条件付き売地の情報内に掲載されている「建物プラン例」は、土地購入者の設計プランの参考一例であって、そのプランの採用可否は任意です。
- 土地(建築条件なし)の「建物プラン例」等を掲載している時、その設計プランは特定の建築請負会社によるもので、当該建築請負会社以外で建築した場合、同様のものが同価格で建築出来るとは限りません。また建築請負会社を特定するものではありません。
- 間取り図や間取り表記のLDKは「リビングダイニングキッチン」、DKは「ダイニングキッチン」、Kは「キッチン」、Sは「納戸・サービスルーム」、WICは「ウォークインクローゼット」、SICは「シューズインクローゼット」を表します。
- CG合成している画像、写真、パノラマ、VRの場合、実際とは多少異なる場合があります。
- 陽当り、眺望、通風、採光についての説明は将来にわたって保証されるものではありません。
- 徒歩所要時間は80m=1分として換算したもので、距離は地図上の概算によるものです。

























![学区情報[ガッコム]](/images/common/side_school.jpg)





