日商岩井方南町マンションの物件詳細
| 専有面積 | 91.49m² | 所在階 | 地上11階建 9階部分 |
|---|---|---|---|
| 間取り | 3LDK(+WIC) | ||
| 築年月 | 1971年3月(築55年1ヶ月) | ||

≪リビング≫約20.3帖のゆったりリビング。家族でテーブルを囲む素敵な時間をお愉しみ下さい。 【日商岩井方南町マンション】

≪外観≫東京メトロ丸ノ内線「方南町」駅 徒歩9分!この恵まれたロケーションによる幸福感は、毎朝の通勤時にしっかりと感じられるのではないでしょうか。 【日商...

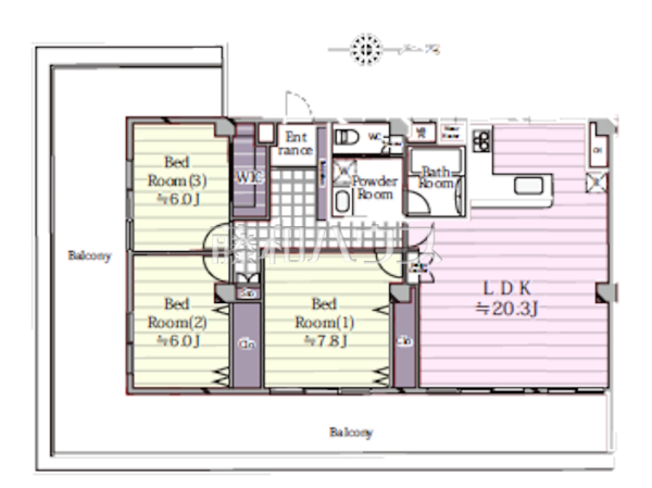
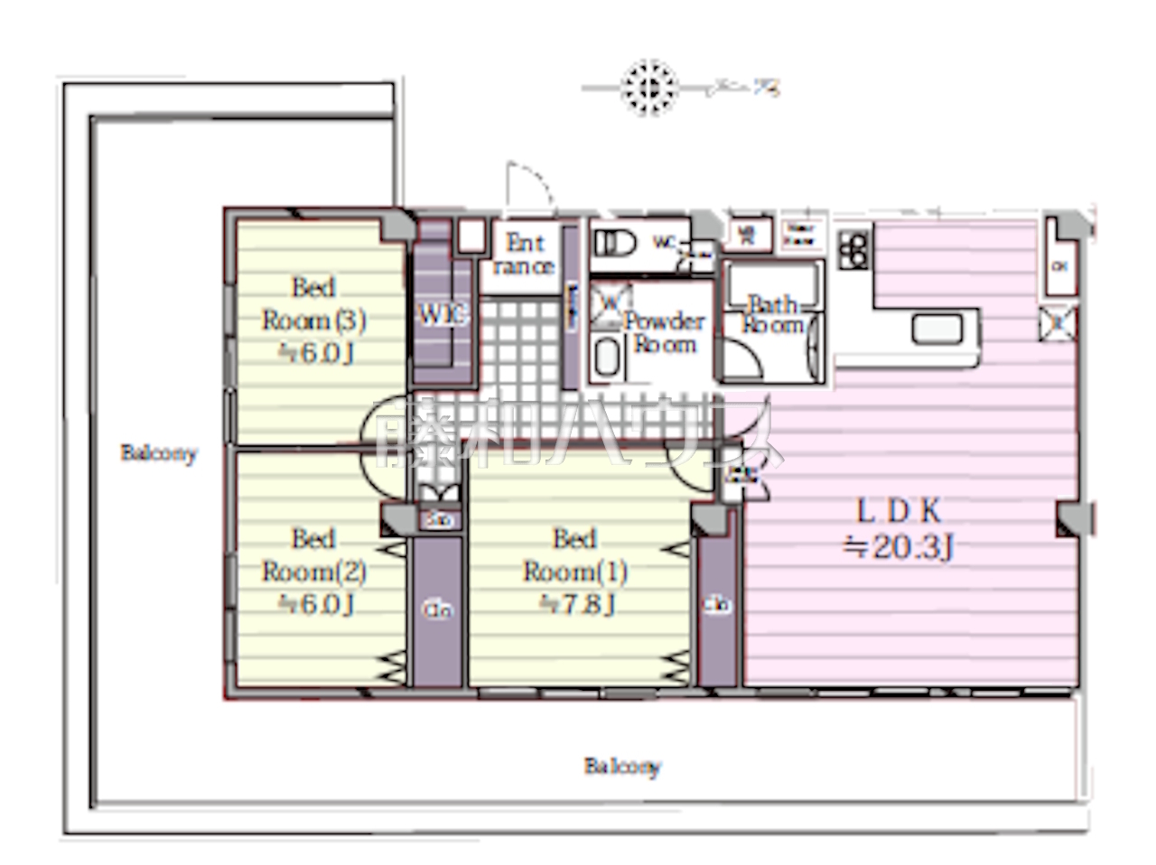
間取図 【日商岩井方南町マンション】

エントランス 【日商岩井方南町マンション】

≪キッチン≫ 毎日のお料理を効率的にしてくれるL字型キッチン。「1秒でも家事の時間を短縮したい」という思いを叶えてくれます。

≪リビング≫ リビングに併設された収納スペースには、お子様の本やおもちゃ、掃除機やちょっとした小物などがスッキリ収納できます。あったら便利なうれしい収納で...

≪リビング≫ ナチュラルな色を基調とした落ち着きのあるリビングダイニングは、リラックスできる癒し空間です。 【日商岩井方南町マンション】

≪キッチン≫家事をしながらご家族との会話も楽しめる対面キッチン ♪ 【日商岩井方南町マンション】

≪浴室≫ 白を基調とした清潔感あふれるバスルームです 【日商岩井方南町マンション】

≪洗面室≫ 【日商岩井方南町マンション】

≪トイレ≫温水洗浄機能付きトイレで清潔にご使用いただけます。 【日商岩井方南町マンション】

≪居室≫ 各居室にはクローゼットを完備し、家具を置くスペースが確保しやすい設計がされております。 【日商岩井方南町マンション】

≪居室≫落ち着いた色味のアクセントクロスが、ワンランク上の空間を演出します。【日商岩井方南町マンション】

≪ウォークインクローゼット≫収納力豊富なウォークインクローゼットで、バッグや小物類も片付きます 【日商岩井方南町マンション】

≪居室≫木目が美しいウッディなフローリングの居室は、穏やかで心安らぐ空間となるでしょう。 【日商岩井方南町マンション】

≪居室≫部屋の雰囲気や広さ・眺望・間取りの使い勝手など、是非一度、ご自身の目で確かめてみてください。 【日商岩井方南町マンション】

≪居室≫ 各居室にはクローゼットを完備し、家具を置くスペースが確保しやすい設計がされております。 【日商岩井方南町マンション】

玄関付近 【日商岩井方南町マンション】

≪居室≫木目が美しいウッディなフローリングの居室は、穏やかで心安らぐ空間となるでしょう。 【日商岩井方南町マンション】

≪居室≫ 各居室にはクローゼットを完備し、家具を置くスペースが確保しやすい設計がされております。 【日商岩井方南町マンション】

≪洗面室≫三面鏡付きの洗面台。鏡の裏にも収納があり、歯ブラシや化粧品等もすっきり収納できます。 【日商岩井方南町マンション】

収納 【日商岩井方南町マンション】

収納 【日商岩井方南町マンション】

収納 【日商岩井方南町マンション】

収納 【日商岩井方南町マンション】

キッチン コンロ 【日商岩井方南町マンション】

キッチン 収納【日商岩井方南町マンション】

住戸からの眺望写真 【日商岩井方南町マンション】

玄関 【日商岩井方南町マンション】

≪エレベーター≫手荷物が多い時にも嬉しいエレベーター 【日商岩井方南町マンション】

外観 【日商岩井方南町マンション】

玄関 【日商岩井方南町マンション】

エントランス 【日商岩井方南町マンション】

外観 【日商岩井方南町マンション】

外観 【日商岩井方南町マンション】

外観 【日商岩井方南町マンション】

●東京メトロ丸ノ内線「方南町」駅徒歩9分
●家族が揃って食事できるゆとりある大きさのLDK約20.3帖
●収納量ばっちりのウォークインクローゼット!
●南・東向きのL字バルコニーはお洗濯物も良く乾きます
●防犯に役立つカラーモニター付インターフォン
●ペットと一緒に暮らせるマンション!(細則有)
●2025年11月リノベーション済
フローリング貼替、クロス貼替、フロアタイル貼替、シューズボックス交換
システムバス、システムキッチン、洗面化粧台、シャワートイレ、建具交換など
周辺環境
方南町駅まで約740m
代田橋駅まで約1,170m
笹塚駅まで約1,180m
杉並区立方南小学校まで約110m
杉並区立泉南中学校まで約900m
サミットストア笹塚店まで約1,170m
業務スーパー 笹塚店まで約910m
サミットストア 中野南台店まで約560m
ミニストップ 南台5丁目店まで約510m
セブン-イレブン 和泉店まで約330m
スギ薬局 南台三丁目店まで約1,170m
マツモトキヨシ 中野南台店まで約470m
ココカラファイン 方南町店まで約680m
中野区立広町みらい公園まで約860m
ファミリーマート 杉並和泉店まで約800m
みずほ銀行 方南町支店まで約710m
明大前駅まで約1,920m
杉並区 和田区民集会所まで約1,710m
永福駅前みんなのクリニックまで約1,870m
オオゼキ杉並和田店まで約1,600m
ライフ幡ヶ谷店まで約1,790m
ライフ南台店まで約1,410m
まいばすけっと 中野弥生町5丁目店まで約1,250m
セブンイレブン 南台店まで約1,170m
ファミリーマート 中野南台店まで約1,070m
セブン-イレブン 杉並和田1丁目店まで約1,550m
ココカラファイン中野南台店まで約1,300m
ココカラファイン 杉並堀ノ内店まで約1,640m
ツルハドラッグ 杉並和田店まで約1,350m
渋谷区立幡ヶ谷新道公園 (オレンジロード)まで約1,710m
設備・構造
食洗器【日商岩井方南町マンション】
ペットと一緒に暮らせるマンション!(細則有) 【日商岩井方南町マンション】 大切なご家族の一員である…
エレベーター 【日商岩井方南町マンション】 荷物が多いときにも嬉しいエレベーター付き
全居室収納付き【日商岩井方南町マンション】 各居室にはクローゼットを完備し、家具を置くスペースが確保し…
ウォークインクローゼット 【日商岩井方南町マンション】 収納力豊富なウォークインクローゼットで、バッグや…
全居室フローリング 【日商岩井方南町マンション】 木目が美しいウッディなフローリングの居室は、穏やかで心…
二面バルコニー 【日商岩井方南町マンション】 奥行きのある二面バルコニー!お洗濯物の多い日でもいっきに…
人感センサー付き玄関灯【日商岩井方南町マンション】 玄関照明は人感センサー付きのため消し忘れの心配がな…
温水洗浄機能付きトイレ【日商岩井方南町マンション】 温水洗浄機能付きトイレで清潔にご使用いただけます。
システムキッチン 【日商岩井方南町マンション】 使いやすくスタイリッシュなシステムキッチンには、毎日お使…
浄水器一体型水栓【日商岩井方南町マンション】 いつでもおいしいお水が飲める浄水器一体型水栓も完備
ビルトイン食洗機 【日商岩井方南町マンション】 ビルトイン食洗機を標準完備し、家事時間が短縮できます…
対面キッチン 【日商岩井方南町マンション】 家事をしながらご家族との会話も楽しめる対面キッチン ♪
物件概要
| 種別 | マンション | ||
|---|---|---|---|
| 所在地 | 東京都杉並区方南1丁目MAP | ||
| 交通 | 東京メトロ丸ノ内線『方南町』駅 徒歩9分 京王線『代田橋』駅 徒歩16分 京王線『笹塚』駅 徒歩15分 京王新線『笹塚』駅 徒歩15分 | ||
| 価格 | 8,780万円<税込> | 間取り | 3LDK(+WIC) |
| 専有面積 | 91.49m²(壁芯) | バルコニー | 47.69m²(南向き) |
| 総戸数 | 182戸 | 構造・規模・所在階 | 鉄筋コンクリート造 地上11階建 9階部分 |
| 築年月 | 1971年3月(築55年1ヶ月) | 現況 | 空室 |
| 引渡時期 | 相談 | 土地権利 | 所有権 |
| 駐車場 | 敷地内に空あり 料金:21,000円/月 | 管理形態 | 全部委託 |
| 管理人 | 日勤 | 管理費 | 17,980円/月 |
| 修繕積立金 | 25,940円/月 | ||
| ライフライン | ガス:都市/水道:公営/排水:下水 | ||
| 省エネ性能表示 省エネ性能ラベル | |||
| リフォーム |
| ||
| 特記事項 | 構造に一部鉄骨鉄筋コンクリート造含む 駐車場の状況は令和7年3月現在です | ||
| スクール情報 | 杉並区立方南小学校 杉並区立泉南中学校 | ||
| 取引態様 | 媒介 | ||
| 情報更新日 | 2026年4月30日 |
物件QRコード
お手持ちのスマートフォンで右のQRコードを読み取るとスマートフォンサイトで、再度物件の検索しなくてもこちらの物件情報へ直接アクセスする事ができます。
※スマートフォンでQRコードを読み取る場合別途アプリのインストールが必要な場合がございます。 ※ご利用アプリや、機種等によりQRコードが正しく読み取れない場合がございます。 | |
| 次回更新予定日 | 2026年5月14日 | ||
| 取引条件有効期限 | 2026年5月14日 | ||
| お問合せ番号 | 5SN017351 | ||
- 物件の特徴・設備
- 2沿線以上利用可
- 南向き
- LDK15帖以上
- システムキッチン
- 都市ガス
- ウォークインクローゼット
- 全居室収納
- 南面バルコニー
- 2面以上バルコニー
- 2階以上
- エレベーター
- ペット相談
- 内装リフォーム
- スーパー800m以内
- 小学校800m以内
支払い例・住宅ローンシミュレーション
周辺MAP
- 幼稚園・保育園
- 公園
- スーパー
- 幼稚園・保育園
- 公園
- スーパー
- 幼稚園・保育園
- 公園
- スーパー
- 幼稚園・保育園
※地図上に表示される物件の位置は付近住所に所在することを表すものであり、実際の物件所在地とは異なる場合がございます。
掲載物件に関する注意事項
- 価格は物件代金の総額を表示しており、建物(建物プラン例等を含む)等の消費税が課税される場合には、税込み価格(最終情報更新日時点の確認)となります。消費税率は物件のお引き渡しの時期、お支払い時期等により異なります。各物件の詳細につきましてはお問合せ下さい。
- 情報更新日から現在までの間に売却済となった場合はご容赦下さい。
- 掲載情報は情報更新日時点のものです。お客様がご覧になるタイミングによって、掲載されている内容から変更されている場合がございます。タイムラグにより最新の情報とは若干差異(価格変更や販売終了等)が生じる場合がありますので、予めご了承頂けますようお願い申し上げます。
- 当サイトでは、掲載情報の正確さには万全を期しておりますが、万一入力ミス等により誤った内容が掲載されていた場合は、速やかに確認のうえ訂正をいたしますので、予めご了承頂けますようお願い申し上げます。
- 公開している物件は広告表示規約に基づいて表示していますが、私道負担面積、セットバック面積、路地状部分面積等について一部表示がされていない場合もございますので、詳しくはお問合せの際にご確認下さい。
- 完成予想図については、外構、植栽、外観等実際のものとは多少異なることがあります。
- 写真、または完成予想図や間取り図に描かれている家具や車等は、特にコメントがない場合、販売対象には含まれません。
- 掲載している写真につきましては、プライバシー保護のために画像を加工処理しているものがあります。
- 建築条件付き売地の販売価格には、建物価格は含まれません。
- 物件の特徴や設備につきましては、販売戸数・区画数が複数の物件は、全ての住戸・区画に該当しない項目もあります。
- 建築条件付き売地の情報内に掲載されている「建物プラン例」は、土地購入者の設計プランの参考一例であって、そのプランの採用可否は任意です。
- 土地(建築条件なし)の「建物プラン例」等を掲載している時、その設計プランは特定の建築請負会社によるもので、当該建築請負会社以外で建築した場合、同様のものが同価格で建築出来るとは限りません。また建築請負会社を特定するものではありません。
- 間取り図や間取り表記のLDKは「リビングダイニングキッチン」、DKは「ダイニングキッチン」、Kは「キッチン」、Sは「納戸・サービスルーム」、WICは「ウォークインクローゼット」、SICは「シューズインクローゼット」を表します。
- CG合成している画像、写真、パノラマ、VRの場合、実際とは多少異なる場合があります。
- 陽当り、眺望、通風、採光についての説明は将来にわたって保証されるものではありません。
- 徒歩所要時間は80m=1分として換算したもので、距離は地図上の概算によるものです。














































![学区情報[ガッコム]](/images/common/side_school.jpg)





