物件トップ写真・区画・間取

- 小金井市梶野町4丁目 全2棟 新築分譲住宅 区画図


- 小金井市梶野町4丁目 全2棟 新築分譲住宅 各棟情報
-
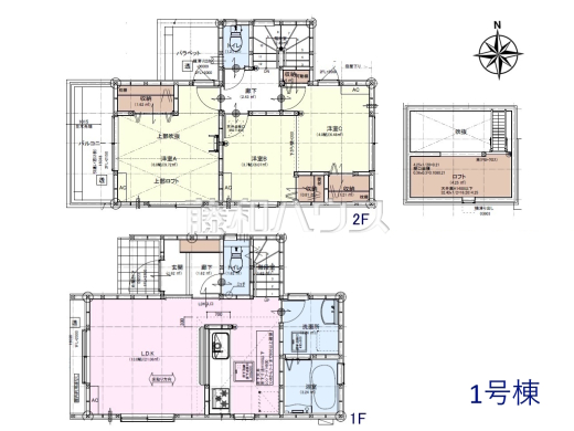
1号棟
詳細を見る(画像12点有)- 価 格
- 6,480万円<税込>
- 土地面積
- 83.31m²
- 建物面積
- 66.42m²
- 間取り
- 2LDK(+ロフト)
-
2号棟
詳細を見る(画像10点有)- 価 格
- 6,180万円<税込>
- 土地面積
- 81.9m²
- 建物面積
- 64.8m²
- 間取り
- 1SLDK(+ロフト)
号棟名
価格
土地面積
建物面積
間取り
- 1号棟 6,480万円<税込> 83.31m² 66.42m² 2LDK(+ロフト) 詳細を見る(画像12点有)
- 2号棟 6,180万円<税込> 81.9m² 64.8m² 1SLDK(+ロフト) 詳細を見る(画像10点有)

- 小金井市梶野町4丁目 全2棟 新築分譲住宅 現場写真・画像
現場風景 【小金井市梶野町4丁目】
全体区画図 【小金井市梶野町4丁目】
現場風景【小金井市梶野町4丁目】
接道状況および現場風景 【小金井市梶野町4丁目】
掲載物件に関する注意事項
- 価格は物件代金の総額を表示しており、建物(建物プラン例等を含む)等の消費税が課税される場合には、税込み価格(最終情報更新日時点の確認)となります。消費税率は物件のお引き渡しの時期、お支払い時期等により異なります。各物件の詳細につきましてはお問合せ下さい。
- 情報更新日から現在までの間に売却済となった場合はご容赦下さい。
- 掲載情報は情報更新日時点のものです。お客様がご覧になるタイミングによって、掲載されている内容から変更されている場合がございます。タイムラグにより最新の情報とは若干差異(価格変更や販売終了等)が生じる場合がありますので、予めご了承頂けますようお願い申し上げます。
- 当サイトでは、掲載情報の正確さには万全を期しておりますが、万一入力ミス等により誤った内容が掲載されていた場合は、速やかに確認のうえ訂正をいたしますので、予めご了承頂けますようお願い申し上げます。
- 公開している物件は広告表示規約に基づいて表示していますが、私道負担面積、セットバック面積、路地状部分面積等について一部表示がされていない場合もございますので、詳しくはお問合せの際にご確認下さい。
- 完成予想図については、外構、植栽、外観等実際のものとは多少異なることがあります。
- 写真、または完成予想図や間取り図に描かれている家具や車等は、特にコメントがない場合、販売対象には含まれません。
- 掲載している写真につきましては、プライバシー保護のために画像を加工処理しているものがあります。
- 建築条件付き売地の販売価格には、建物価格は含まれません。
- 物件の特徴や設備につきましては、販売戸数・区画数が複数の物件は、全ての住戸・区画に該当しない項目もあります。
- 建築条件付き売地の情報内に掲載されている「建物プラン例」は、土地購入者の設計プランの参考一例であって、そのプランの採用可否は任意です。
- 土地(建築条件なし)の「建物プラン例」等を掲載している時、その設計プランは特定の建築請負会社によるもので、当該建築請負会社以外で建築した場合、同様のものが同価格で建築出来るとは限りません。また建築請負会社を特定するものではありません。
- 間取り図や間取り表記のLDKは「リビングダイニングキッチン」、DKは「ダイニングキッチン」、Kは「キッチン」、Sは「納戸・サービスルーム」、WICは「ウォークインクローゼット」、SICは「シューズインクローゼット」を表します。
- CG合成している画像、写真、パノラマ、VRの場合、実際とは多少異なる場合があります。
- 陽当り、眺望、通風、採光についての説明は将来にわたって保証されるものではありません。
- 徒歩所要時間は80m=1分として換算したもので、距離は地図上の概算によるものです。
















