-
オープンハウス開催中! 2026年4月4日(土)〜2026年4月12日(日) 10:30〜16:00
◆設備仕様◆
・対面式キッチン+食洗機
・一坪サイズの浴室
◆周辺もあわせてご案内いたします。お気軽にお問い合わせください。
- 朝霞店/鍵市 大将
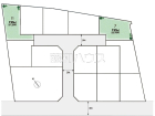
- 全61区画の大型現場が販売開始となります♪
全区画・敷地面積【115平米超え】のゆとりある土地となっていま…
- 価 格
-
4,280万円〜4,380万円<税込>
- 交 通
- JR武蔵野線『新座』駅 徒歩17分
西武池袋線『清瀬』駅 バス27分「障害者就労移行スワン工舎」停歩5分
- 所在地
- 埼玉県新座市野火止3丁目10-34付近
- 土地面積
- 116.07m²〜116.11m²
- 建物面積
- 92.22m²〜92.74m²
- 間取り
- 3SLK〜4LDK
(8号棟/+SIC…) - 完成年月
- 2026年11月
-
現地見学会開催中! 2026年4月4日(土)〜2026年4月12日(日) 10:30〜16:00
≪全61区画の新しい街並みが誕生いたします!≫
◇同時期に生活をスタートさせるご家族の多い分譲地
◇敷地面積35坪を超えるゆとりある土地
◇安心の前面道路幅員5.5m~6.02m
- 朝霞店/鍵市 大将
- 全61区画の大型現場が販売開始となります♪
全区画・敷地面積【115平米超え】のゆとりある土地となっていま…
- 価 格
-
1,990万円〜3,360万円
- 交 通
- JR武蔵野線『新座』駅 徒歩16分〜18分
西武池袋線『清瀬』駅 バス27分「障害者就労移行スワン工舎」停歩3分〜6分
- 所在地
- 埼玉県新座市野火止3丁目10-34付近
- 土地面積
- 115.79m²〜136.1m²
- 土地権利
- 所有権
- 現況
- 造成中
- 建築条件
- 建築条件付き
-
予約制見学会開催中! 2026年4月4日(土)〜2026年4月12日(日) 11:00〜16:00
●2路線利用可!
・JR中央線『国立』駅 徒歩17分
・JR南武線『谷保』駅 徒歩12分
●LDKは約21.2帖、上部は広く吹き抜けがあるゆとりの空間
●床暖房で足元ぽかぽか
●ウォークインクローゼットが2か所あり、たっぷり収納できます!
●雨の日の強い味方!浴室換気乾燥機付きユニットバスで洗濯物が乾かせます
●訪問者がひと目でわかるカラーTVモニターホン
●コミュニケーション重視のリビングイン階段
- 立川店/渡部 敏哉
- JR中央線と南武線の2路線利用可!ZEH水準使用の高性能住宅です。
約21.2帖のLDKは上部吹き抜けで開…
- 価 格
-
9,099万円<税込>
- 交 通
- JR中央線『国立』駅 徒歩17分
JR南武線『谷保』駅 徒歩12分
- 所在地
- 東京都国立市中3丁目
- 土地面積
- 100m²
- 建物面積
- 125.74m²
- 間取り
- 4LDK
(+WIC×2、リ…) - 完成年月
- 2026年4月
-
現地見学会開催中! 2026年4月4日(土)〜2026年4月12日(日) 10:30〜16:00
●約16帖のゆったりリビング。家族でテーブルを囲む素敵な時間をお愉しみ下さい
●家事をしながらご家族との会話も楽しめる対面キッチン
●さまざまな用途に利用できるロフトつき
- 仙川店/土屋 賢治
- 調布市深大寺北町2丁目に全5棟の新築戸建が登場!毎週【土曜日・日曜日・祝日】現地見学会中です!物件のことはも…
- 価 格
-
5,790万円〜5,990万円<税込>
- 交 通
- 京王線『調布』駅 バス11分「北ノ台小学校」停歩4分
JR中央線『三鷹』駅 バス13分「北ノ台小学校」停歩4分
- 所在地
- 東京都調布市深大寺北町2丁目35付近
- 土地面積
- 141.43m²〜143.06m²
- 建物面積
- 84.24m²〜85.04m²
- 間取り
- 3LDK〜4LDK
(1号棟、3号棟、…) - 完成年月
- 2026年7月
-
現地見学会開催中! 2026年4月4日(土)〜2026年4月12日(日) 11:00〜16:00
●雨の日の強い味方!浴室換気乾燥機付きユニットバスで洗濯物が乾かせます。
●いつでもおいしいお水が飲める浄水器一体型水栓も完備
●後片付けの救世主! 食洗機付きシステムキッチン
●各居室にはクローゼットを完備し、家具を置くスペースが確保しやすい設計がされております。
●ご家族の様子がわかり、会話も楽しめる対面式システムキッチン
- 八王子店/森田 信育
- 毎週、土・日・祝日の11:00~16:00に現地見学会を開催中。営業スタッフが現地でお客様のご来場をお待ちし…
- 価 格
-
5,199万円<税込>
- 交 通
- JR中央線『高尾』駅 徒歩10分
京王高尾線『高尾』駅 徒歩11分
- 所在地
- 東京都八王子市高尾町1747
- 土地面積
- 93.49m²
- 建物面積
- 103.08m²
- 間取り
- 4LDK
- 完成年月
- 2026年4月
-
現地見学会開催中! 2026年4月4日(土)〜2026年4月12日(日) 11:00〜16:00
●来客時にも便利な駐車2台可能(車種による)
●大容量のシューズインクロークで玄関もスッキリ
●家族との会話も弾む対面式システムキッチン
●全居室収納スペース付き
●固定階段式小屋裏収納は、季節物やスーツケース等かさばる物の収納に役立ちます。
●住まいの事なら地元で豊富な実績を誇る、地域密着の藤和ハウスへお任せ下さい!
●平日のご案内も可能です。まずはお気軽にお問合せ下さいませ
- 立川店/山田 亮太
- 毎週、土・日・祝日の11:00~16:00に現地見学会を開催中。営業スタッフが現地でお客様のご来場をお待ちし…
- 価 格
-
5,980万円〜6,280万円<税込>
- 交 通
- JR南武線『谷保』駅 徒歩7分
JR南武線『西府』駅 徒歩18分
- 所在地
- 東京都国立市谷保4173-13
- 土地面積
- 122.04m²〜123.31m²
- 建物面積
- 96.88m²〜97.32m²
- 間取り
- 4LDK〜4LDK
(+WIC、SIC…) - 完成年月
- 2026年3月
-
オープンハウス開催中! 2026年4月4日(土)〜2026年4月12日(日) 11:00〜16:00
●雨天時の洗濯物や浴室内のカビ防止としても活躍する浴室換気乾燥機
●ビルトイン食洗機を標準完備し、家事時間が短縮できます。
●来客時や駐輪スペースとしても利用可能なカースペース2台可(車種による)
●家族が揃って食事できるゆとりある大きさのLDK約16帖以上
●ご家族の様子がわかり、会話も楽しめる対面式システムキッチン
●いつでもおいしいお水が飲める浄水器も完備
- 八王子店/森田 信育
- 毎週、土・日・祝日の11:00~16:00に現地見学会を開催中。営業スタッフが現地でお客様のご来場をお待ちし…
- 価 格
-
3,699万円〜3,999万円<税込>
- 交 通
- JR中央線『西八王子』駅 徒歩34分
JR横浜線『八王子』駅 バス21分「新清水橋」停歩4分
- 所在地
- 東京都八王子市中野町3004-10
- 土地面積
- 117.21m²〜117.83m²
- 建物面積
- 93.19m²〜94.81m²
- 間取り
- 4LDK〜4LDK
(1号棟+WIC/…) - 完成年月
- 2026年4月
-
予約制見学会開催中! 2026年4月4日(土)〜2026年4月12日(日) 10:30〜17:30
*~ 2駅が徒歩10分圏内の地に全3棟が誕生します!~*
●西武新宿線「久米川」駅まで徒歩約9分
●西武多摩湖線「八坂」駅まで徒歩約7分
●ご家族の様子がわかり、会話も楽しめる対面式システムキッチン
●ゆったり寛げる1坪タイプのユニットバスで、疲れたからだを癒してあげて下さい。
●クリーンな太陽エネルギーを活かす太陽光発電システムを搭載
- 久米川店/西條 航
- 2駅が徒歩10分圏内の好立地!お住まい探しは、家の良し悪しだけでなく周辺環境も重要なポイントです。ぜひ一度お…
- 価 格
-
5,290万円<税込>
- 交 通
- 西武新宿線『久米川』駅 徒歩9分
西武多摩湖線『八坂』駅 徒歩7分
- 所在地
- 東京都東村山市美住町1丁目
- 土地面積
- 124.9m²
- 建物面積
- 92.53m²
- 間取り
- 4LDK
- 完成年月
- 2026年4月
-
予約制見学会開催中! 2026年4月4日(土)〜2026年4月12日(日) 10:30〜17:00
*~ 生活しやすい閑静な住宅街 全14棟の新築分譲住宅 ~*
●急行停車駅・西武新宿線「田無」駅
●繰り返す地震に効果を発揮する制震ダンパーが標準装備!
●建物を「面」で支える耐震性に優れたベタ基礎。
●雨の日の強い味方!浴室換気乾燥機付きユニットバスで洗濯物が乾かせます。
●キッチン横にある収納は食品等のストックに便利
●防犯に役立つTVモニター付インターフォン
- 田無店/小川 基文
- 【全工期分譲!】~閑静な住宅街~繰り返す地震に効果を発揮する制震ダンパーが標準装備!建物を「面」で支える耐震…
- 価 格
-
6,090万円<税込>
- 交 通
- 西武新宿線『田無』駅 徒歩14分
西武新宿線『花小金井』駅 徒歩24分
- 所在地
- 東京都西東京市南町6丁目9-3
- 土地面積
- 100.04m²
- 建物面積
- 90.46m²
- 間取り
- 2SLDK
(14号棟/+SI…) - 完成年月
- 2026年3月
-
現地見学会開催中! 2026年4月4日(土)〜2026年4月12日(日) 10:30〜17:00
●使い勝手の良いロフトは、シーズンオフの荷物もたっぷり収納できます。
●ご家族の様子がわかり、会話も楽しめる対面式システムキッチン
●ゆったり寛げる1坪タイプのユニットバスで、疲れたからだを癒してあげて下さい。
●納戸は収納としてだけでなくテレワークにも活用できます。
クローズドな空間だから仕事にも集中できますね!
●リビングイン階段で自然と家族が集う憩の空間になります。
- 田無店/佐藤 慎太郎
- 西武新宿線「花小金井」駅 徒歩18分。生活空間の可能性を広げることができるロフト付き新築分譲住宅。お気軽にお…
- 価 格
-
4,490万円〜4,490万円<税込>
- 交 通
- 西武新宿線『花小金井』駅 徒歩18分
西武新宿線『田無』駅 徒歩20分
- 所在地
- 東京都西東京市向台町6丁目8-16
- 土地面積
- 88.23m²〜89.75m²
- 建物面積
- 70.38m²〜70.38m²
- 間取り
- 1SLDK〜1SLDK
(1号棟+ロフト、…) - 完成年月
- 2026年3月
-
現地見学会開催中! 2026年4月4日(土)〜2026年4月12日(日) 10:30〜16:00
●ご家族が揃うリビングは、南からの暖かい日差しが射し込む2Fに配置しました。
●対面式のカウンターキッチンは、いつでもご家族を感じられる空間作りの重要ポイントになりそうです。
●隙間のないなめらかな人造大理石の一体型システムキッチン
●雨の日の強い味方!浴室換気乾燥機付きユニットバスで洗濯物が乾かせます。
●ゆったり寛げる1坪タイプのユニットバスで、疲れたからだを癒してあげて下さい。
- 朝霞店/鍵市 大将
- ZEH水準住宅♪
◆食洗機、浄水器など充実の設備仕様~
・周辺もあわせてご案内いたします。お気軽にお問い…
- 価 格
-
5,399万円〜5,599万円<税込>
- 交 通
- 東京メトロ有楽町線『地下鉄成増』駅 徒歩20分
東京メトロ副都心線『地下鉄成増』駅 バス6分「団地西口」停歩4分
- 所在地
- 埼玉県和光市南1丁目
- 土地面積
- 65.1m²〜67.28m²
- 建物面積
- 95.63m²〜113.02m²
- 間取り
- 3LDK〜4LDK
(1号棟/+WIC…) - 完成年月
- 2026年4月
-
予約制見学会開催中! 2026年4月4日(土)〜2026年4月12日(日) 11:00〜17:00
●前面道路5mなので、運転が少し苦手な方でも
運転・駐車がしやすそうですね。
●ビルトイン食洗機を標準完備し、家事時間が短縮できます。
●浴室換気乾燥機付きユニットバスで洗濯物が乾かせます
●きれいでさわやか、ウォシュレット付きトイレ
●ゆったり寛げる1坪タイプのユニットバスで、疲れたからだを癒してあげて下さい
●TVモニター付きインターホンのため訪問者がひと目で分かります
- 国分寺店/榎本 信吾
- JR武蔵野線「新小平」駅 徒歩6分!建物は長期優良住宅に認定、太陽光パネル搭載、住宅性能評価書取得が標準です…
- 価 格
-
5,490万円〜6,090万円<税込>
- 交 通
- JR武蔵野線『新小平』駅 徒歩7分
西武多摩湖線『青梅街道』駅 徒歩8分
- 所在地
- 東京都小平市小川町2丁目
- 土地面積
- 110.09m²〜116.39m²
- 建物面積
- 85.7m²〜91.9m²
- 間取り
- 4LDK〜4LDK
(+WIC) - 完成年月
- 2026年4月
-
現地見学会開催中! 2026年4月4日(土)〜2026年4月12日(日) 10:30〜16:00
●京王線・京王競馬場線「東府中」駅徒歩15分!
●綺麗な整形地のため、思い描いているイメージをカタチにしやすい土地
●家族みんなで創る、楽しむ、自由設計分譲地!
●我が家に合った暮らしを追及できるフリープランの建築条件付き土地で、夢のマイホームを建築してみませんか?
●セミオーダー型住宅のご提案です。「こんな部屋を作りたい」「こんな風に暮らしたい」というお客様の夢をぜひお聞かせください。
- 府中店/平川 賢和
- 京王線【東府中】駅徒歩15分☆ 新宿まで約30分と都心までのアクセスも楽々です!南東角地で40坪越えの敷地面…
- 価 格
-
6,470万円
- 交 通
- 京王線『東府中』駅 徒歩15分
京王線『多磨霊園』駅 徒歩21分
- 所在地
- 東京都府中市若松町4丁目6‐32
- 土地面積
- 147.97m²
- 土地権利
- 所有権
- 現況
- 更地
- 建築条件
- 建築条件付き
-
予約制見学会開催中! 2026年4月4日(土)〜2026年4月12日(日) 11:00〜17:00
■セミオーダー型住宅のご提案です。「こんな部屋を作りたい」「こんな風に暮らしたい」というお客様の夢をぜひお聞かせください。
■前面道路6mなので、運転が少し苦手な方でも運転・駐車がしやすそうですね。
■見学はしたいけど、なかなか時間が取れない…そんな方に出勤前や仕事終わりにマイホームを見学できるサポートをいたします。
- 国分寺店/永宮 卓
- □JR中央線「西国分寺」駅 徒歩10分
□建築条件付売地となっております
□平日のご案内も可能となってお…
- 価 格
-
5,900万円
- 交 通
- JR中央線『西国分寺』駅 徒歩10分
西武国分寺線『恋ヶ窪』駅 徒歩9分
- 所在地
- 東京都国分寺市西恋ヶ窪4丁目
- 土地面積
- 134.37m²
- 土地権利
- 所有権
- 現況
- 更地
- 建築条件
- 建築条件付き
-
現地見学会開催中! 2026年4月4日(土)〜2026年4月12日(日) 11:00〜16:00
●ビルトイン食洗機を標準完備し、家事時間が短縮できます。
●雨天時の洗濯物や浴室内のカビ防止としても活躍する浴室換気乾燥機
●きれいでさわやか、ウォシュレット付きトイレ
●埃を巻き上げにくく、心地よい温かさで快適に過ごせる床暖房
●きれいでさわやか、ウォシュレット付きトイレ
●ご家族の様子がわかり、会話も楽しめる対面式システムキッチン
- 荻窪店/梅崎 薫
- 京王井の頭線「三鷹台」駅徒歩3分の好立地
土地面積約43坪、建物面積約33坪のゆとりのある広さ
SIC、…
- 価 格
-
1億4,990万円<税込>
- 交 通
- 京王井の頭線『三鷹台』駅 徒歩3分
京王井の頭線『久我山』駅 徒歩14分
- 所在地
- 東京都三鷹市井の頭1丁目
- 土地面積
- 142.42m²
- 建物面積
- 110.13m²
- 間取り
- 3LDK
(+パントリー、ウ…) - 完成年月
- 2026年7月
-
予約制見学会開催中! 2026年4月4日(土)〜2026年4月12日(日) 11:00〜17:00
●長期優良住宅♪
●西武多摩湖線「一橋学園」駅 徒歩4分!
●大容量のウォークインクローゼットでお部屋をスッキリきれいに保てます
●全居室収納スペース付き
●床下には収納スペースも確保。収納が豊富な住まいです
●約15.12帖のゆったりリビング
家族でテーブルを囲む素敵な時間をお愉しみ下さい
●いつでもおいしいお水が飲める浄水器一体型水栓も完備
- 国分寺店/榎本 信吾
- 長期優良住宅です◎新生活は徒歩4分の「一橋学園」駅から始めませんか?前面道路幅も約5.4mあるので、全体とし…
- 価 格
-
6,180万円<税込>
- 交 通
- 西武多摩湖線『一橋学園』駅 徒歩4分
西武多摩湖線『青梅街道』駅 徒歩16分
- 所在地
- 東京都小平市学園東町1丁目
- 土地面積
- 98.23m²
- 建物面積
- 104.49m²
- 間取り
- 4LDK
(+WIC) - 完成年月
- 2026年3月
-
現地見学会開催中! 2026年4月4日(土)〜2026年4月12日(日) 10:30〜16:00
●小田急小田原線「喜多見」駅 徒歩15分
●リビングに床暖房があるので足元ぽかぽか、家族の集まる空間を暖めます
●家事をしながらご家族との会話も楽しめる対面キッチンはタッチスイッチ水栓・食洗機付き
●収納力豊富なウォークインクローゼットで、バッグや小物類も片付きます
●浴室は換気・乾燥・暖房機付きで、入浴前も入浴後も快適
- 調布店/荒井 亨
- 狛江市岩戸南の新築分譲住宅が全2棟で登場!毎週【土曜日・日曜日・祝日】現地見学会中です!物件のことはもちろん…
- 価 格
-
7,799万円〜7,799万円<税込>
- 交 通
- 小田急小田原線『喜多見』駅 徒歩15分
小田急小田原線『狛江』駅 徒歩20分
- 所在地
- 東京都狛江市岩戸南3丁目20‐4 付近
- 土地面積
- 105.93m²〜105.94m²
- 建物面積
- 84.46m²〜84.46m²
- 間取り
- 2SLDK〜2SLDK
(1、2号棟/+2…) - 完成年月
- 2026年5月
-
予約制見学会開催中! 2026年3月28日(土)〜2026年4月5日(日) 11:00〜16:30
●「三鷹台」駅 徒歩19分と少し距離はございますが、
毎日の通勤通学で駅まで歩けば、運動不足も解消されて一石二鳥です!
●注文住宅ほどはこだわらないが、家族の意見や好みを取り入れた家にしたい
●家族構成や生活スタイルに合わせてセミオーダーで建設可能
●新築一戸建て、建売でお探しの方にもおススメです
- 三鷹店/岩永 健一
- 「三鷹台」駅 徒歩19分。
小学校・中学校・スーパーが徒歩10分圏内。周辺は落ち着いた雰囲気の住宅地です。…
- 価 格
-
6,090万円
- 交 通
- 京王井の頭線『三鷹台』駅 徒歩19分
京王井の頭線『井の頭公園』駅 徒歩21分
- 所在地
- 東京都三鷹市牟礼6丁目
- 土地面積
- 95.03m²
- 土地権利
- 所有権
- 現況
- 上物有
- 建築条件
- 建築条件付き
-
現地見学会開催中! 2026年4月4日(土)〜2026年4月12日(日) 10:30〜17:00
●各居室にはクローゼットを完備し、家具を置くスペースが確保しやすい設計がされております。
●使いやすくスタイリッシュなシステムキッチンには、毎日お使いになる方の視点が存分に活かされています。
●周辺環境もご案内いたしますので、お気軽にお問い合わせください♪
●物件の事、諸費用の事など、お気軽に地域密着の弊社へご相談下さい!
- 田無店/長内 伸行
- 【藤和ハウス田無店にて現地見学会実施中】
現地のご案内はもちろん周辺の環境もご案内させて頂きます!是非お問…
- 価 格
-
5,390万円〜6,190万円<税込>
- 交 通
- 西武池袋線『保谷』駅 徒歩14分
西武池袋線『ひばりヶ丘』駅 徒歩23分
- 所在地
- 東京都西東京市泉町6丁目4-6
- 土地面積
- 82.55m²〜92.61m²
- 建物面積
- 80.73m²〜91.6m²
- 間取り
- 2SLDK〜4LDK
- 完成年月
- 2026年5月
-
現地見学会開催中! 2026年4月4日(土)〜2026年4月12日(日) 10:30〜16:00
◆18帖超のゆったりリビング!家族でテーブルを囲む素敵な時間をお愉しみ下さい。
- 清瀬店/松浦 剛志
- 6m公道面の解放感!「広さ」が家族の集まる場所になる。心のゆとりと解放感の広々贅沢リビング!!
平日のご案…
- 価 格
-
3,780万円〜4,280万円<税込>
- 交 通
- 西武池袋線『清瀬』駅 バス17分「団地交番前」停歩3分
JR武蔵野線『新座』駅 バス17分「団地交番前」停歩3分
- 所在地
- 東京都清瀬市下宿1丁目
- 土地面積
- 120.89m²〜124.61m²
- 建物面積
- 95.23m²〜102.06m²
- 間取り
- 3LDK〜3LDK
- 完成年月
- 2026年5月
-
現地見学会開催中! 2026年4月4日(土)〜2026年4月12日(日) 10:30〜16:30
◆次世代の快適性能!ZEH水準の省エネ仕様の建物です。
◆太陽光をエネルギーに換える「太陽光発電」でエコな暮らしを!
- 清瀬店/松浦 剛志
- ZEH水準の省エネ性能!太陽光発電システム搭載・長期優良住宅認定・地震に強い耐震性能!!
平日のご案内も可…
- 価 格
-
4,490万円〜4,590万円<税込>
- 交 通
- 西武池袋線『清瀬』駅 徒歩19分
西武新宿線『花小金井』駅 バス29分「竹丘南団地」停歩5分
- 所在地
- 東京都清瀬市竹丘2丁目2-17
- 土地面積
- 112.84m²〜120.08m²
- 建物面積
- 98.32m²〜98.95m²
- 間取り
- 3SLDK〜4LDK
- 完成年月
- 2026年6月
-
オープンハウス開催中! 2026年4月4日(土)〜2026年4月12日(日) 10:30〜17:00
●ウォークインクローゼットは、お洋服等がたくさん収納できて便利です
●家族の集まるLDKはゆったり約21.75帖
●いつでもおいしいお水が飲める浄水器一体型水栓も完備
●使い勝手のよい全居室6帖以上
●全居室2面採光で明るいお部屋
●ゆったり寛げる1坪タイプのユニットバスで、疲れたからだを癒してあげて下さい
●浴室換気乾燥機は梅雨の時期等、なかなか乾かない洗濯物を干すのに役立ちます!
- 東久留米店/加藤 颯汰
- 大容量のウォークインクローゼットでお部屋をスッキリきれいに保てます!徒歩5分圏内にスーパーやコンビニ、ドラッ…
- 価 格
-
4,280万円<税込>
- 交 通
- 西武新宿線『花小金井』駅 バス6分「前沢四丁目」停歩7分
西武池袋線『東久留米』駅 バス11分「前沢四丁目」停歩7分
- 所在地
- 東京都東久留米市滝山1丁目
- 土地面積
- 127.46m²
- 建物面積
- 97.2m²
- 間取り
- 1SLDK
(+WIC×2、S…) - 完成年月
- 2025年11月
-
現地見学会開催中! 2026年4月4日(土)〜2026年4月12日(日) 10:30〜16:00
●ご家族が集うリビングは広さゆったり約16帖以上☆
●家族との会話も弾む対面式システムキッチンは浄水器完備
●浴室暖房乾燥機を備えた1坪サイズのゆったりバスルーム
●来客時にも便利なカースペース2台可(車種による)
●南向きバルコニーは洗濯物もよく乾きます◎
●太陽光をエネルギーに換える太陽光発電システム標準装備
●平日のご案内も可能です!お気軽にお問い合わせください♪
- 府中店/平川 賢和
- JR南武線「西府」駅徒歩12分!日新町に全16棟の新しい街並みが誕生します!ご家族皆様のライフスタイルに合っ…
- 価 格
-
5,190万円〜5,690万円<税込>
- 交 通
- JR南武線『西府』駅 徒歩12分
京王線『中河原』駅 徒歩19分〜20分
- 所在地
- 東京都府中市日新町3丁目4‐27
- 土地面積
- 100.01m²〜113.94m²
- 建物面積
- 87.77m²〜100.94m²
- 間取り
- 3SLDK〜4LDK
- 完成年月
- 2026年6月
-
現地見学会開催中! 2026年4月4日(土)〜2026年4月12日(日) 10:30〜16:00
●JR南武線・武蔵野線「府中本町」駅徒歩15分~16分の立地!
●約16帖以上のゆったりリビング。家族でテーブルを囲む素敵な時間をお愉しみ下さい。
●会話の弾む対面キッチンは自然とご家族の中心に。家族団らんの時間が増えることでしょう。
●幼い子供がいると汚れものが多く、いつでも洗濯物を干せるのが嬉しい浴室換気乾燥機!
●キッチンの床下収納は、パントリー代わりのストック場所としても活用できます!
- 府中店/平川 賢和
- JR南武線・武蔵野線「府中本町」駅徒歩15分~16分の立地!ご家族皆様のライフスタイルに合った間取りが見つか…
- 価 格
-
5,290万円〜5,790万円<税込>
- 交 通
- JR南武線『府中本町』駅 徒歩15分
JR武蔵野線『府中本町』駅 徒歩15分
- 所在地
- 東京都府中市南町6丁目5-2
- 土地面積
- 100.04m²〜101.19m²
- 建物面積
- 90.25m²〜94.81m²
- 間取り
- 3LDK〜4LDK
(G号棟/+書斎) - 完成年月
- 2026年5月
-
現地見学会開催中! 2026年4月4日(土)〜2026年4月12日(日) 10:30〜16:00
●来客時や駐輪スペースとしても利用可能なカースペース2台可(車種による)
●対面式のカウンターキッチンは、いつでもご家族を感じられる空間作りの重要ポイントになりそうです
●隙間のないなめらかな人造大理石の一体型システムキッチン
●ウォークインクローゼットには衣類はもとより、キャリーケース等の大物や衣装ケースなども収まりお家がスッキリ!
●天気を気にせずお洗濯ができるガス衣類乾燥機付き♪
- 府中店/平川 賢和
- 京王線「中河原」駅徒歩11分の立地に新築分譲住宅が全2棟で登場!ガス衣類乾燥機が標準搭載!パワフル乾燥で家事…
- 価 格
-
5,880万円〜5,980万円<税込>
- 交 通
- 京王線『中河原』駅 徒歩11分
JR南武線『分倍河原』駅 徒歩19分
- 所在地
- 東京都府中市南町3丁目39-1
- 土地面積
- 104.58m²〜104.58m²
- 建物面積
- 83.62m²〜83.62m²
- 間取り
- 2SLDK〜3LDK
(全棟/+WIC) - 完成年月
- 2026年5月
-
現地見学会開催中! 2026年4月4日(土)〜2026年4月12日(日) 10:30〜17:00
≪ 現在建築中の物件です!物件の内部構造などは今しか見られません。完成前の状態もご確認ください。是非ご見学のお問合せを! ≫
●安心の長期優良住宅
●太陽光をエネルギーに換える「太陽光発電」でエコな暮らしを!
●LDKはゆったり約16~18帖
●ご家族の様子がわかり、会話も楽しめる対面式システムキッチン
●花粉症の時期は外干しできない!そんなご家庭に便利な浴室換気乾燥機!
- 東久留米店/伊藤 淳
- お探しの物件に出会うためには、早めのご確認をオススメします。建物のプレゼン・施工例のご案内をさせていただき…
- 価 格
-
3,630万円〜4,580万円<税込>
- 交 通
- 西武池袋線『清瀬』駅 バス11分「全生園角」停歩1分
JR武蔵野線『新秋津』駅 徒歩30分
- 所在地
- 東京都清瀬市竹丘3丁目24‐22
- 土地面積
- 120.1m²〜127.39m²
- 建物面積
- 96.46m²〜98.33m²
- 間取り
- 3LDK〜4LDK
- 完成年月
- 2026年7月
-
現地見学会開催中! 2026年4月4日(土)〜2026年4月12日(日) 10:30〜16:00
●ゆったり1坪サイズの浴室で1日の疲れをリセット
●家族との会話も弾む対面式キッチン
●平日のご案内も可能です。まずはお気軽にお問合せ下さいませ。
◆アクセス◆
西武池袋線『富士見台』駅 徒歩11分
西武新宿線『下井草』駅 徒歩15分
西武池袋線『練馬高野台』駅 徒歩16分
- 荻窪店/梅崎 薫
- 一度、現地でのご見学はいかがでしょうか。
いつでもご対応出来ますので
お気軽にご連絡下さい!
物件のご…
- 価 格
-
7,890万円〜8,590万円<税込>
- 交 通
- 西武池袋線『富士見台』駅 徒歩11分
西武新宿線『下井草』駅 徒歩15分
- 所在地
- 東京都練馬区南田中1丁目
- 土地面積
- 101.48m²〜103.09m²
- 建物面積
- 84.41m²〜95.33m²
- 間取り
- 3LDK〜4LDK
(3号棟/+パント…) - 完成年月
- 2026年7月
-
予約制見学会開催中! 2026年3月28日(土)〜2026年4月5日(日) 11:00〜16:00
◆忙しい朝や遅い帰宅時にも嬉しい「保谷」駅徒歩8分!
◆10家族のための新しい街区が誕生します
◆お好きな間取りで理想のマイホームを建ててみませんか?
◆全区画参考プランをご用意しました!ぜひお役立てください
- 大泉学園店/非々 慎平
- 忙しい朝や遅い帰宅時にも嬉しい「保谷」駅徒歩8分!我が家に合った暮らしを追及できるフリープランの分譲地です。…
- 価 格
-
5,190万円
- 交 通
- 西武池袋線『保谷』駅 徒歩8分
西武新宿線『東伏見』駅 バス6分「保谷駅南口」停歩9分
- 所在地
- 東京都西東京市下保谷5丁目
- 土地面積
- 110m²
- 土地権利
- 所有権
- 現況
- 上物有
- 建築条件
- 建築条件付き
-
予約制見学会開催中! 2026年4月4日(土)〜2026年4月12日(日) 11:00〜17:00
●カースペース並列2台駐車可(車種による)
●家族の集まるLDKは約17.12帖
●床暖房で足元ぽかぽか
●全居室2面採光で明るいお部屋
●全居室収納スペース付き
●床下には収納スペースも確保。収納が豊富な住まいです♪
●いつでも洗濯物を干せるのが嬉しい浴室換気乾燥機!
●ゆったり寛げる1坪タイプのユニットバス
●JR中央線・西武多摩湖線・西武国分寺線「国分寺」駅 徒歩14分!
- 国分寺店/榎本 信吾
- JR中央線「国分寺」駅 徒歩14分の立地です♪
マイカーを2台所有されているご家庭に嬉しいカースペース2台…
- 価 格
-
8,888万円<税込>
- 交 通
- JR中央線『国分寺』駅 徒歩14分
西武多摩湖線『国分寺』駅 徒歩14分
- 所在地
- 東京都国分寺市本多4丁目
- 土地面積
- 173.09m²
- 建物面積
- 100.43m²
- 間取り
- 3LDK
(+タタミコーナー…) - 完成年月
- 2026年3月
-
予約制見学会開催中! 2026年4月4日(土)〜2026年4月12日(日) 11:00〜17:00
【全12画の新街区♪閑静な住宅街♪教育環境充実♪生活利便施設が揃ったロケーション♪】
■思い描くライフスタイルを自由にカタチにする自由設計分譲地
■思い描いていた理想の家を、この土地で実現させてみませんか?
■運転、駐車が苦手な方にも嬉しい前面道路5m以上!
■見学はしたいけど、なかなか時間が取れない…そんな方に出勤前や仕事終わりにマイホームを見学できるサポートをいたします。
- 国分寺店/榎本 信吾
- □西武拝島線「小川」駅 徒歩21分
□全12画の整った街並み
□我が家に合った暮らしを追及できるフリープ…
- 価 格
-
3,240万円〜3,640万円
- 交 通
- 西武拝島線『小川』駅 徒歩21分
西武国分寺線『小川』駅 徒歩21分
- 所在地
- 東京都小平市小川町1丁目
- 土地面積
- 112.03m²〜115.74m²
- 土地権利
- 所有権
- 現況
- 更地
- 建築条件
- 建築条件付き
-
現地見学会開催中! 2026年4月4日(土)〜2026年4月12日(日) 10:30〜16:00
●京王線「つつじヶ丘」駅徒歩12分・京王線「柴崎」駅徒歩9分
●2階に水回りがあるので洗濯物を干すのに大変便利な南向きバルコニー!日差しもたっぷり、お洗濯物もよく乾きます
●約18.5帖のゆったりリビング。家族でテーブルを囲む素敵な時間をお愉しみ下さい
●家事をしながらご家族との会話も楽しめる対面キッチンは浄水器完備
●各階、温水洗浄機能付きトイレで清潔にご使用いただけます
- 調布店/木下 淳一
- 急行停車の京王線「つつじヶ丘」駅徒歩12分!毎週【土曜日・日曜日・祝日】現地見学会中です!物件のことはもちろ…
- 価 格
-
6,590万円<税込>
- 交 通
- 京王線『つつじヶ丘』駅 徒歩12分
京王線『柴崎』駅 徒歩9分
- 所在地
- 東京都調布市菊野台3丁目39-6、-32、-33
- 土地面積
- 109.81m²
- 建物面積
- 84.24m²
- 間取り
- 3SLDK
- 完成年月
- 2026年4月
-
予約制見学会開催中! 2026年4月4日(土)〜2026年4月12日(日) 11:00〜17:00
*・* 断熱性能を高めた、 ZEH水準の快適住宅 *・*
●長期優良住宅です♪
●ビルトイン食洗機を標準完備し、家事時間が短縮できます。
●会話の弾む対面キッチンは自然とご家族の中心に。
家族団らんの時間が増えることでしょう。
●南東向きのバルコニーは日差しもたっぷり注ぎ、お洗濯物もよく乾きます。
●来客時にも便利な駐車2台可能(車種による)
- 国分寺店/永宮 卓
- 来客時や駐輪スペースとしても利用可能なカースペース2台可(車種による)
後片付けの手間を削減し、趣味の時間…
- 価 格
-
5,490万円〜5,890万円<税込>
- 交 通
- 多摩都市モノレール『泉体育館』駅 徒歩20分
多摩都市モノレール『立飛』駅 徒歩21分
- 所在地
- 東京都立川市栄町2丁目
- 土地面積
- 106.31m²〜115.16m²
- 建物面積
- 84.46m²〜91.29m²
- 間取り
- 3LDK〜4LDK
- 完成年月
- 2026年3月
-
予約制見学会開催中! 2026年4月4日(土)〜2026年4月12日(日) 11:00〜17:00
\徒歩17分の「国分寺」駅は、JR中央線・西武国分寺線・西武多摩湖線の複数路線が使えて便利!/
■会話を楽しみながら、家事が出来る対面式システムキッチン
■LDKには大きな窓が施され、明るさと通風を確保した快適な空間です
■家族の集まるLDKはゆったり約15帖以上
■ロフトは収納だけでなく、様々な用途で活用できます
- 国分寺店/永宮 卓
- □JR中央線・西武国分寺線・西武多摩湖線「国分寺」駅 徒歩17分!
□全3棟
□平日のご案内も可能となっ…
- 価 格
-
5,980万円<税込>
- 交 通
- JR中央線『国分寺』駅 徒歩17分
西武多摩湖線『国分寺』駅 徒歩17分
- 所在地
- 東京都国分寺市本多3丁目
- 土地面積
- 110.13m²
- 建物面積
- 81.14m²
- 間取り
- 3LDK
(+パントリー、W…) - 完成年月
- 2026年3月
-
予約制見学会開催中! 2026年4月4日(土)〜2026年4月12日(日) 11:00〜17:00
\長期優良住宅◎断熱性能を高めた、ZEH基準の住まい♪/
●来客時や駐輪スペースとしても利用可能なカースペース2台可(車種による)
●いつでもおいしいお水が飲める浄水器一体型水栓も完備
●床下には収納スペースも確保。収納が豊富な住まいです
●浴室換気乾燥機を使用すると浴室がジメジメしないので、お掃除が楽になるというメリットもございます!
●防犯に役立つTVモニター付インターフォン
- 国分寺店/榎本 信吾
- JR中央線「国立」駅 徒歩21分!長期優良住宅◎マイカーを2台所有されているご家庭に嬉しいカースペース2台駐…
- 価 格
-
6,480万円〜6,680万円<税込>
- 交 通
- JR中央線『国立』駅 徒歩21分
JR中央線『国立』駅 バス9分「国分寺第三中学入口」停歩4分
- 所在地
- 東京都国分寺市高木町2丁目
- 土地面積
- 131.03m²〜132.24m²
- 建物面積
- 99.99m²〜102.15m²
- 間取り
- 3LDK〜4LDK
(1号棟/+WIC…) - 完成年月
- 2026年3月
-
予約制見学会開催中! 2026年3月28日(土)〜2026年4月5日(日) 11:00〜16:30
\\ 。*。 三鷹市上連雀・全10区画のビッグタウン 。*。//
建築条件はございません♪
ライフスタイルに合わせた自由なマイホームづくりが可能です
◆参考プラン
理想の暮らしを実現する為にはどんな間取りが良いか。
希望を叶える為に参考プランをご用意しておりますので、是非お役立て下さい!
◆ハウス会の紹介
- 三鷹店/岩永 健一
- 整備された街区、近隣に広がる美しい自然たち。
空間のみのこだわりだけではなく、ここに暮らす方々にとって素敵…
- 価 格
-
6,190万円
- 交 通
- JR中央線『三鷹』駅 バス14分「山中住宅」停歩3分
JR中央線『吉祥寺』駅 バス27分「医師会館」停歩7分
- 所在地
- 東京都三鷹市上連雀9丁目
- 土地面積
- 111.01m²
- 土地権利
- 所有権
- 現況
- 造成中
- 建築条件
- 建築条件なし
-
予約制見学会開催中! 2026年3月28日(土)〜2026年4月5日(日) 11:00〜16:30
【「東小金井」駅 徒歩14分・南側に新設道路を設けた陽光溢れる敷地♪】
■全区画120平米以上のゆとりある敷地
■前面道路5.48mなので、運転が少し苦手な方でも運転・駐車がしやすそうですね。
■見学はしたいけど、なかなか時間が取れない…そんな方に出勤前や仕事終わりにマイホームを見学できるサポートをいたします。
- 三鷹店/渡邊 啓志
- ■JR中央線「東小金井」駅 徒歩14分
■南側に新設道路あり♪
■全区画ゆとりある120平米以上ある敷地…
- 価 格
-
6,890万円〜7,290万円
- 交 通
- JR中央線『東小金井』駅 徒歩14分
JR中央線『武蔵小金井』駅 徒歩17分
- 所在地
- 東京都小金井市緑町4丁目
- 土地面積
- 120.05m²〜120.12m²
- 土地権利
- 所有権
- 現況
- 造成中
- 建築条件
- 建築条件付き
-
現地見学会開催中! 2026年4月4日(土)〜2026年4月12日(日) 10:30〜16:30
■「花小金井」駅徒歩21分
■全区画37坪以上のゆとりある敷地です♪
■物件より10分圏内に小学校・保育園・スーパー揃う好住環境
■お好きなハウスメーカーで建築可能です
■一括でのご購入もご相談ください
- 東久留米店/伊藤 淳
- 全区画37坪以上のゆとりある敷地が全4区画登場致します。
周辺環境も併せてご案内いたしますので、お気軽にお…
- 価 格
-
4,880万円〜5,280万円
- 交 通
- 西武新宿線『花小金井』駅 徒歩20分
西武新宿線『田無』駅 徒歩20分
- 所在地
- 東京都西東京市向台町6丁目
- 土地面積
- 122.88m²〜125.1m²
- 土地権利
- 所有権
- 現況
- 造成中
- 建築条件
- 建築条件なし
-
予約制見学会開催中! 2026年4月4日(土)〜2026年4月12日(日) 11:00〜17:00
*・* 待望の第2期分譲開始です!全59区画のビッグスケールの新規開発分譲地 *・*
●思い描いていた理想の家を、この土地で実現させてみませんか?
●参考プランをご用意いたしました♪
●家族みんなで創る、楽しむ、自由設計分譲地!
●ぜひ皆様の「こんな家に住みたい!」をお聞かせ下さい。
- 国分寺店/榎本 信吾
- 第2期分譲開始!全59区画の大型分譲地です♪思い描いていた理想の家を、この土地で実現させてみませんか?多彩な…
- 価 格
-
3,340万円〜4,840万円
- 交 通
- 西武国分寺線『恋ヶ窪』駅 徒歩13分〜15分
JR中央線『国立』駅 徒歩22分〜23分
- 所在地
- 東京都国分寺市戸倉4丁目
- 土地面積
- 125m²〜135.01m²
- 土地権利
- 所有権
- 現況
- 造成中
- 建築条件
- 建築条件付き
-
予約制見学会開催中! 2026年4月4日(土)〜2026年4月12日(日) 11:00〜17:00
*・*――― 全59区画のビッグスケールの新規開発分譲地 ―――*・*
●フリースタイル分譲地で、個性あふれる住まいを実現いたしませんか?
●家族みんなで創る、楽しむ、自由設計分譲地!
●ハウスメーカーからプランまでフルオーダーで自由にマイホームがつくれる、建築条件のない宅地分譲
●同時期に生活をスタートさせるご家族の多い分譲地は、困ったときも心強い存在になりそうですね!
- 国分寺店/榎本 信吾
- ご家族の夢を思いのままにかなえるため、自由設計プランを採用。ご家族お一人お一人にマッチした、世界に一つだけの…
- 価 格
-
4,490万円〜4,590万円
- 交 通
- 西武国分寺線『恋ヶ窪』駅 徒歩14分
JR中央線『国立』駅 徒歩22分
- 所在地
- 東京都国分寺市戸倉4丁目
- 土地面積
- 132.35m²〜134.71m²
- 土地権利
- 所有権
- 現況
- 造成中
- 建築条件
- 建築条件なし
-
現地見学会開催中! 2026年4月4日(土)〜2026年4月12日(日) 10:30〜16:00
●セミオーダー型住宅のご提案です。
「こんな部屋を作りたい」「こんな風に暮らしたい」というお客様の夢をぜひお聞かせください。
◆アクセス◆
西武池袋線『大泉学園』駅 バス8分「都民農園」停歩11分
東武東上線『朝霞』駅 バス24分「都民農園」停歩11分
- 朝霞店/鍵市 大将
- 我が家に合った暮らしを追及できるフリープランの建築条件付き土地で、夢のマイホームを建築してみませんか?
- 価 格
-
2,180万円
- 交 通
- 西武池袋線『大泉学園』駅 バス8分「都民農園」停歩11分
東武東上線『朝霞』駅 バス24分「都民農園」停歩11分
- 所在地
- 埼玉県新座市栄5丁目10-27
- 土地面積
- 75.28m²
- 土地権利
- 所有権
- 現況
- 更地
- 建築条件
- 建築条件付き
-
オープンハウス開催中! 2026年4月4日(土)〜2026年4月12日(日) 11:00〜17:00
◆おすすめ設備仕様◆
・床暖房で足元ぽかぽか
・対面式キッチン+食洗器
・システムキッチン
・一坪サイズの浴室
◆アクセス◆
JR中央線『国立』駅 徒歩約22分
- 国分寺店/榎本 信吾
- JR中央線『国立』駅 徒歩約22分の立地です。
お気軽にお問合せくださいませ。
- 価 格
-
5,499万円〜5,999万円<税込>
- 交 通
- JR中央線『国立』駅 徒歩22分
西武国分寺線『恋ヶ窪』駅 徒歩35分
- 所在地
- 東京都国分寺市高木町1丁目
- 土地面積
- 115.05m²〜115.05m²
- 建物面積
- 91.08m²〜91.22m²
- 間取り
- 3SLDK〜3SLDK
(全棟/+土間収納) - 完成年月
- 2026年3月
-
現地見学会開催中! 2026年4月4日(土)〜2026年4月12日(日) 11:00〜16:00
●思い描くライフスタイルを自由にカタチにする自由設計分譲地
●約6m道路面につき車の出し入れも楽々です。
●ご家族の夢を思いのままにかなえるため、自由設計プランを採用。ご家族お一人お一人にマッチした、世界に一つだけのオリジナル住宅を実現してみませんか?
●我が家に合った暮らしを追及できるフリープランの分譲地です。ぜひ皆様の「こんな家に住みたい!」をお聞かせ下さい。
- 豊田店/渡部 敏哉
- 日野市西平山5丁目に全2区画の新たな街区が誕生します。前面道路はゆとりの約6m♪セミオーダー型住宅のご提案で…
- 価 格
-
1,950万円
- 交 通
- JR中央線『豊田』駅 徒歩26分
JR八高線『北八王子』駅 徒歩20分
- 所在地
- 東京都日野市西平山5丁目50-4
- 土地面積
- 110.74m²
- 土地権利
- 所有権
- 現況
- 更地
- 建築条件
- 建築条件付き
-
オープンハウス開催中! 2026年4月4日(土)〜2026年4月12日(日) 11:00〜16:00
●JR中央線「豊田」駅 徒歩11分!
●全居室収納スペース付き
●納戸は収納としてだけでなくテレワークにも活用でき、クローズドな空間♪
●使いやすくスタイリッシュなシステムキッチン
●動線が短いL字型キッチンで、準備も料理もテキパキとはかどります!
- 豊田店/田中 一彦
- JR中央線「豊田」駅 徒歩11分の物件です!経験豊かなスタッフが分譲地だけでなく学校、スーパー、公園と周辺環…
- 価 格
-
4,380万円<税込>
- 交 通
- JR中央線『豊田』駅 徒歩11分
多摩都市モノレール『高幡不動』駅 バス20分「東豊田」停歩7分
- 所在地
- 東京都日野市東豊田3丁目
- 土地面積
- 65.96m²
- 建物面積
- 64.8m²
- 間取り
- 2SLDK
- 完成年月
- 2026年3月
-
オープンハウス開催中! 2026年4月4日(土)〜2026年4月12日(日) 11:00〜16:00
●家族が揃って食事できるゆとりある大きさのLDK約18.1帖
●キッチンからリビング全体が見渡せ、目の離せない小さなお子様の様子を見ながら家事ができます。
●耐震等級3取得。震度6強~7の地震でも、軽い補修程度で住み続けられるレベルの建物です。
●南向きのバルコニーは日差しもたっぷり注ぎ、お洗濯物もよく乾きます。
●来客時や駐輪スペースとしても利用可能なカースペース2台可(車種による)
- 豊田店/近藤 雄樹
- 京王線【長沼】駅徒歩17分、JR中央線【豊田】駅も利用可能!
完成しておりますので、いつでもご見学可能でご…
- 価 格
-
3,980万円<税込>
- 交 通
- 京王線『長沼』駅 徒歩17分
京王線『平山城址公園』駅 徒歩17分
- 所在地
- 東京都日野市東平山2丁目31-14
- 土地面積
- 95.8m²
- 建物面積
- 73.69m²
- 間取り
- 2LDK
(+納戸) - 完成年月
- 2025年11月
-
予約制見学会開催中! 2026年4月4日(土)〜2026年4月12日(日) 11:00〜16:00
\JR中央線「豊田」駅 徒歩12分♪/
●前面道路はゆとりの約6m。車の出し入れも楽々です。
●建築条件はございませんので、ライフスタイルに合わせた自由なマイホームづくりが可能です。
- 豊田店/渡部 敏哉
- ターミナル駅の「豊田」駅が最寄り駅!ショッピングやお出かけのアクセスも良好で、休日の行動範囲が広がります。
…
- 価 格
-
5,980万円〜6,980万円
- 交 通
- JR中央線『豊田』駅 徒歩12分
JR八高線『北八王子』駅 徒歩19分
- 所在地
- 東京都日野市多摩平3丁目
- 土地面積
- 197m²〜216m²
- 土地権利
- 所有権
- 現況
- 更地
- 建築条件
- 建築条件なし
-
予約制見学会開催中! 2026年4月4日(土)〜2026年4月12日(日) 11:00〜16:00
●夢に描いたわが家。あなたの「想い」を「カタチ」にするフリー設計分譲地
●我が家に合った暮らしを追及できるフリープランの分譲地です。
●セミオーダー型住宅のご提案です。
「こんな部屋を作りたい」「こんな風に暮らしたい」というお客様の夢をぜひお聞かせください。
- 豊田店/渡部 敏哉
- これから新たな街区が誕生します!思い描いていた理想の家を、この土地で実現させてみませんか?物件の事、諸費用の…
- 価 格
-
3,930万円〜3,980万円
- 交 通
- JR中央線『豊田』駅 徒歩17分
京王線『南平』駅 徒歩18分
- 所在地
- 東京都日野市東豊田1丁目
- 土地面積
- 138.21m²〜138.53m²
- 土地権利
- 所有権
- 現況
- 更地
- 建築条件
- 建築条件付き
-
現地見学会開催中! 2026年4月4日(土)〜2026年4月12日(日) 11:00〜16:00
●キッチンから見渡せるリビングダイニングで、お料理中も会話が弾みます
●隙間のないなめらかな人造大理石の一体型システムキッチン
●約20.75帖のゆったりリビング。家族でテーブルを囲む素敵な時間をお愉しみ下さい。
●リビングに階段を配置しました。いつでも家族の顔が見えるのがメリットとして喜ばれています。
●平日のご案内も可能です。まずはお気軽にお問合せ下さいませ。
- 豊田店/田中 一彦
- 免振建売住宅のご紹介です。仕様・設備について詳しくご案内させていただきます。
また周辺環境も併せてご案内い…
- 価 格
-
6,580万円〜6,980万円<税込>
- 交 通
- JR中央線『日野』駅 徒歩8分
京王線『高幡不動』駅 バス21分「日野駅」停歩7分
- 所在地
- 東京都日野市大坂上3丁目21-23
- 土地面積
- 110.07m²〜119.34m²
- 建物面積
- 99.57m²〜103.5m²
- 間取り
- 2SLDK〜4LDK
(1号棟+S(納戸…) - 完成年月
- 2026年9月
-
予約制見学会開催中! 2026年4月4日(土)〜2026年4月12日(日) 11:00〜16:00
●「豊田」駅 徒歩10分
●家族の集まるLDKはゆったり約18帖
●ご家族が揃うリビングは、南からの暖かい日差しが射し込む2Fに配置しました。
●対面式キッチン
●全居室収納スペース付き
●ゆったり寛げる1坪タイプのユニットバス
●浴室は換気・乾燥・暖房機付きで、入浴前も入浴後も快適です
- 豊田店/川崎 健
- JR中央線【豊田駅】徒歩10分の好立地
2階リビングで明るいリビングを実現!水回りも広々としていてお子様が…
- 価 格
-
4,880万円<税込>
- 交 通
- JR中央線『豊田』駅 徒歩10分
京王線『南平』駅 徒歩21分
- 所在地
- 東京都日野市東豊田3丁目
- 土地面積
- 109.95m²
- 建物面積
- 93.96m²
- 間取り
- 1SLDK
(+S) - 完成年月
- 2026年10月
-
現地見学会開催中! 2026年4月4日(土)〜2026年4月12日(日) 11:00〜16:00
●建築条件はございませんので、ライフスタイルに合わせた自由なマイホームづくりが可能です。
●あなたの「夢」を「カタチ」にできるフリースタイル分譲地で、夢のマイホームを建築してみませんか?
●注文住宅は高いのでは?と不安があるかもしれません。当社オリジナルの
注文住宅建築システム「ハウス会」では、お客様のご要望に合わせて最適な建築会社をご紹介させていただきます。
- 豊田店/田中 一彦
- 毎週、土・日・祝日の11:00~16:00に現地見学会を開催中。 営業スタッフが現地でお客様のご来場をお待ち…
- 価 格
-
1,880万円
- 交 通
- JR八高線『小宮』駅 徒歩5分
JR中央線『日野』駅 バス17分「多摩大橋」停歩6分
- 所在地
- 東京都八王子市小宮町918-8
- 土地面積
- 141.05m²
- 土地権利
- 所有権
- 現況
- 更地
- 建築条件
- 建築条件なし
-
現地見学会開催中! 2026年4月4日(土)〜2026年4月12日(日) 11:00〜16:00
\ 安心して長く住める長期優良認定住宅 /
●家族の集まるLDKはゆったり約20.5帖
●折上げ天井で視覚的に広さを感じる上質なリビング空間
●ビルトイン食洗機を標準完備し、家事時間が短縮できます
●雨の日の強い味方!浴室換気乾燥機付きユニットバス
●荷物の受け取り時間を気にせず外出できる宅配ボックス付き!
●来客時にも便利な駐車2台可能(車種による)
●防犯に役立つTVモニター付インターフォン
- 豊田店/近藤 雄樹
- 「日野市内で不動産を探すなら」地元密着の藤和ハウスへお任せください。経験豊かなスタッフが分譲地だけでなく学校…
- 価 格
-
3,980万円<税込>
- 交 通
- JR八高線『北八王子』駅 徒歩17分
JR中央線『豊田』駅 徒歩28分
- 所在地
- 東京都日野市西平山5丁目
- 土地面積
- 103.56m²
- 建物面積
- 82.62m²
- 間取り
- 3LDK
- 完成年月
- 2026年5月
-
現地見学会開催中! 2026年4月4日(土)〜2026年4月12日(日) 11:00〜16:00
~ 断熱性能を高めた、ZEH基準の住まい ~
●京王線「長沼」駅徒歩2分
●4LDKの間取りでプライベート空間を満喫!
●約20帖のゆったりリビング
●家族との会話も弾む対面式キッチン
●キッチン横にある収納は食品等のストックに便利
- 豊田店/田中 一彦
- 京王線「長沼」駅徒歩2分の駅近物件のご紹介です。
リビングに併設された収納スペースには、お子様の本やおもち…
- 価 格
-
5,590万円<税込>
- 交 通
- 京王線『長沼』駅 徒歩2分
京王線『北野』駅 徒歩16分
- 所在地
- 東京都八王子市長沼町395-8
- 土地面積
- 138.3m²
- 建物面積
- 109.3m²
- 間取り
- 4LDK
(+SIC、パント…) - 完成年月
- 2026年4月
-
現地見学会開催中! 2026年4月4日(土)〜2026年4月12日(日) 11:00〜16:00
●JR中央線「豊田」駅徒歩20分
●京王線「南平」駅徒歩17分
●セミオーダー型住宅のご提案です。
「こんな部屋を作りたい」「こんな風に暮らしたい」というお客様の夢をぜひお聞かせください。
□■「建築条件付き土地」のポイント■□
・時間の取られる建築会社探しの手間いらず!
- 豊田店/近藤 雄樹
- 周辺環境はもちろん、日当たりや設備仕様など、実際に行ってみないと分からないことも多くございます。営業担当がご…
- 価 格
-
2,300万円
- 交 通
- JR中央線『豊田』駅 徒歩20分
京王線『南平』駅 徒歩17分
- 所在地
- 東京都日野市東豊田1丁目2-52
- 土地面積
- 93.48m²
- 土地権利
- 所有権
- 現況
- 更地
- 建築条件
- 建築条件付き
-
予約制見学会開催中! 2026年4月4日(土)〜2026年4月12日(日) 11:00〜16:00
●南西側が開けているため、お日様の日差しもサンサンと降り注ぎます
●JR中央線『豊田』駅 徒歩24分
●JR八高線『北八王子』駅 徒歩10分
- 豊田店/松本 治隆
- 最寄りの小学校まで徒歩3分程度の立地!物件周辺にはスーパーマーケットやドラッグストアなどが複数あり日常の買い…
- 価 格
-
2,480万円
- 交 通
- JR中央線『豊田』駅 徒歩24分
JR八高線『北八王子』駅 徒歩10分
- 所在地
- 東京都八王子市高倉町
- 土地面積
- 83.1m²
- 土地権利
- 所有権
- 現況
- 造成中
- 建築条件
- 建築条件付き
-
現地見学会開催中! 2026年4月4日(土)〜2026年4月12日(日) 10:30〜16:00
●京王線「府中」駅徒歩13分
●JR武蔵野線「北府中」駅徒歩15分
●大きなソファーを置いても圧迫感がない約16.7帖の広々LDK
●カウンターキッチン越しでの会話が、家族団らんのスタートです
●後片付けの救世主!食洗機付きシステムキッチン
●ウォークインクローゼットは、お洋服等がたくさん収納できて便利です
●クリーンな太陽エネルギーを活かす太陽光発電システムを搭載
- 府中店/平川 賢和
- 府中市幸町に新築分譲住宅が全1棟で登場!物件のことはもちろん、周辺環境なども含めてご案内いたしますので、お気…
- 価 格
-
8,499万円<税込>
- 交 通
- 京王線『府中』駅 徒歩13分
JR武蔵野線『北府中』駅 徒歩15分
- 所在地
- 東京都府中市幸町1丁目21‐14
- 土地面積
- 99m²
- 建物面積
- 110.23m²
- 間取り
- 3SLDK
(+WIC×2) - 完成年月
- 2026年7月
-
オープンハウス開催中! 2026年4月4日(土)〜2026年4月12日(日) 10:30〜16:00
\全16棟のビックコミュニティが誕生!/
●第三者機関により住宅の品質や性能を評価し「安心・安全」を保証する【住宅性能評価書】を取得
●雨の日の強い味方!浴室換気乾燥機付きユニットバスで洗濯物が乾かせます。
●ゆったり1坪サイズの浴室で1日の疲れをリセット
●防犯に役立つTVモニター付インターフォン
- 朝霞店/鍵市 大将
- 全16棟の新築一戸建てが堂々誕生! 同時期に生活をスタートさせるご家族の多い分譲地は、困ったときも心強い存在…
- 価 格
-
3,780万円〜4,580万円<税込>
- 交 通
- 東武東上線『志木』駅 徒歩28分
JR武蔵野線『北朝霞』駅 徒歩25分
- 所在地
- 埼玉県朝霞市宮戸3丁目20
- 土地面積
- 108.1m²〜112.82m²
- 建物面積
- 86.67m²〜98.4m²
- 間取り
- 3LDK〜4LDK
- 完成年月
- 2026年3月
-
現地見学会開催中! 2026年4月4日(土)〜2026年4月12日(日) 10:30〜16:00
●東武東上線「志木」駅 徒歩17分
●ウォークインクローゼットは、お洋服等がたくさん収納できて便利です。
●大容量のシューズインクロークで玄関もスッキリ
- 朝霞店/鈴木 大輔
- ウォークインクローゼットやシューズインクロークなどが、日々の暮らしやすさをアップしてくれます。
遮熱性の高…
- 価 格
-
3,970万円<税込>
- 交 通
- 東武東上線『志木』駅 徒歩17分
東武東上線『朝霞台』駅 徒歩19分
- 所在地
- 埼玉県朝霞市宮戸2丁目10‐21
- 土地面積
- 54.95m²
- 建物面積
- 95.94m²
- 間取り
- 3LDK
(+WIC、SIC) - 完成年月
- 2026年3月
-
オープンハウス開催中! 2026年4月4日(土)〜2026年4月12日(日) 10:30〜16:00
◇家族が揃って食事できるゆとりある大きさのLDK約21.2帖
◇リビングにいるご家族を見渡せる対面キッチン♪
◇ビルトイン食洗機を標準完備し、家事時間が短縮できます。
◇夜間や雨天時の洗濯物の乾燥に便利な浴室乾燥機能も装備
◇階段の上り下りをせずに済むため就寝時なども便利な各階トイレあり
◇各居室収納スペースを確保!お部屋を広く使えるようになります。
- 朝霞店/鍵市 大将
- コミュニケーション重視のリビングイン階段!リビングに設けたカウンターデスクは、お子様の勉強スペースやデスクワ…
- 価 格
-
5,999万円<税込>
- 交 通
- 東京メトロ有楽町線『和光市』駅 徒歩19分
東武東上線『和光市』駅 徒歩19分
- 所在地
- 埼玉県和光市新倉4丁目2058-1
- 土地面積
- 99.41m²
- 建物面積
- 113.44m²
- 間取り
- 4LDK
(+WIC、SIC…) - 完成年月
- 2026年3月
-
オープンハウス開催中! 2026年4月4日(土)〜2026年4月12日(日) 10:30〜16:00
●家族が揃って食事できるゆとりある大きさのLDK約16帖以上
●雨天時の洗濯物や浴室内のカビ防止としても活躍する浴室換気乾燥機
●きれいでさわやか、ウォシュレット付きトイレ
●いつでもおいしいお水が飲める浄水器も完備
●ビルトイン食洗機を標準完備し、家事時間が短縮できます。
●TVモニター付きインターホンのため訪問者がひと目で分かります
- 朝霞店/先崎 柚希
- 広々LDKと4部屋の居室
朝霞第四小学校まで約170mなど、周辺環境もおすすめポイントです!
お車を守れ…
- 価 格
-
5,199万円〜5,299万円
- 交 通
- 東武東上線『朝霞』駅 徒歩15分
- 所在地
- 埼玉県朝霞市幸町1丁目8-4
- 土地面積
- 62.53m²〜62.53m²
- 建物面積
- 110.74m²〜110.95m²
- 間取り
- 4LDK〜4LDK
- 完成年月
- 2026年3月
-
現地見学会開催中! 2026年4月4日(土)〜2026年4月12日(日) 10:30〜16:00
◆家族が揃って食事できるゆとりある大きさのLDK約17.24帖
◆リビングにいるご家族を見渡せる対面キッチン
◆雨の日の強い味方!浴室換気乾燥機付きユニットバス
◆階段の上り下りをせずに済むため就寝時なども便利な各階トイレあり
◆リビング内にはテレワークやお子様の学習スペースとしても使える納戸付き
◆バッグや小物類も片付く収納力豊富なウォークインクローゼット
◆防犯に役立つTVモニター付インターフォン
- 朝霞店/鍵市 大将
- 急行停車駅「朝霞」より徒歩12分!池袋駅まで乗り換えなしで約20分と、都心へのアクセスが便利です。家族が自然…
- 価 格
-
5,280万円<税込>
- 交 通
- 東武東上線『朝霞』駅 徒歩12分
東京メトロ有楽町線『和光市』駅 徒歩18分
- 所在地
- 埼玉県朝霞市栄町2丁目5-38
- 土地面積
- 73.64m²
- 建物面積
- 108.54m²
- 間取り
- 3SLDK
(+WIC×2、納戸) - 完成年月
- 2026年3月
-
オープンハウス開催中! 2026年4月4日(土)〜2026年4月12日(日) 10:30〜16:00
◆おすすめ設備仕様◆
・対面式キッチン+食洗機、浄水器
・いつでも洗濯物を干せるのが嬉しい浴室換気乾燥機!
・きれいでさわやか、ウォシュレット付きトイレ
・キッチン横にある収納は食品等のストックに便利
・大容量のウォークインクローゼットでお部屋をスッキリきれいに保てます。
◆駐車スペース◆
来客時にも便利な駐車2台可能(車種による)
◆アクセス◆
JR武蔵野線『新座』駅 徒歩19分
- 朝霞店/鍵市 大将
- ◆現地見学会開催中!!◆リビングは広々約19帖あり!!ウォークインクローゼットやパントリーなど収納豊富なお住…
- 価 格
-
4,999万円<税込>
- 交 通
- JR武蔵野線『新座』駅 徒歩19分
- 所在地
- 埼玉県新座市野火止3丁目12-15
- 土地面積
- 119.05m²
- 建物面積
- 95.61m²
- 間取り
- 3LDK
- 完成年月
- 2026年3月
-
オープンハウス開催中! 2026年4月4日(土)〜2026年4月12日(日) 10:30〜17:00
■□この物件の魅力□■
・長期優良住宅認定物件(一部の建物は対象外の場合あり)
・住宅性能表示制度(設計性能評価・建設性能評価)取得!
・約15~20帖のゆったりリビング
・ゆったり1坪サイズの浴室
・浴室換気乾燥機付きユニットバスで洗濯物が乾かせます
☆ご内覧可!オープンハウス開催中☆
◆多彩なバリエーションの間取り・全19区画の新規大型分譲地!◆
営業担当がご案内いたしますので、お気軽にお問い合わせください。
- 価 格
-
3,780万円〜3,880万円<税込>
- 交 通
- 西武池袋線『清瀬』駅 バス14分「台田団地」停歩10分〜11分
JR武蔵野線『新座』駅 バス13分「団地交番前」停歩9分〜10分
- 所在地
- 東京都清瀬市下宿2丁目462付近
- 土地面積
- 120.1m²〜123.91m²
- 建物面積
- 98.82m²〜110.97m²
- 間取り
- 3LDK〜5LDK
(1号棟+ランドリ…) - 完成年月
- 2026年1月
-
オープンハウス開催中! 2026年4月4日(土)〜2026年4月12日(日) 10:30〜16:00
*・*―――断熱性能を高めた、 ZEH水準の快適住宅 ―――*・*
●リビングに床暖房があるので足元ぽかぽか、家族の集まる空間を暖めます。
●コミュニケーション重視のリビングイン階段
●約17帖+5帖のゆったりリビング。家族でテーブルを囲む素敵な時間をお愉しみ下さい。
●カウンターキッチン越しでの会話が、家族団らんのスタートです。
●静音性や省エネ性に優れ、時間短縮に活躍する食器洗浄乾燥機
- 調布店/荒井 亨
- 小田急小田原線「喜多見」駅徒歩16分の立地に新築分譲住宅が誕生!毎週【土曜日・日曜日・祝日】現地見学会開催☆…
- 価 格
-
8,999万円<税込>
- 交 通
- 小田急小田原線『喜多見』駅 徒歩16分
小田急小田原線『狛江』駅 徒歩20分
- 所在地
- 東京都狛江市岩戸南3丁目20‐3
- 土地面積
- 135m²
- 建物面積
- 108.26m²
- 間取り
- 4LDK
(+WIC、土間収…) - 完成年月
- 2025年12月
-
現地見学会開催中! 2026年4月4日(土)〜2026年4月12日(日) 10:30〜16:30
◆住宅性能評価書付・地震に強い耐震等級3の建物です。
- 清瀬店/松浦 剛志
- 最新!新規未公開情報!!建物プレゼン・完成施工例のご見学も随時受付中です。
平日のご案内も可能ですので、お…
- 価 格
-
4,080万円<税込>
- 交 通
- 西武池袋線『東久留米』駅 徒歩17分
JR武蔵野線『新座』駅 バス25分「上清戸一丁目」停歩10分
- 所在地
- 埼玉県新座市新堀1丁目8-17
- 土地面積
- 93.08m²
- 建物面積
- 101.25m²
- 間取り
- 4LDK
(+WIC、パント…) - 完成年月
- 2026年6月
-
予約制見学会開催中! 2026年3月28日(土)〜2026年4月5日(日) 11:00〜16:30
● LDKには大きな窓が施され、明るさと通風を確保した快適な空間です。
●建築中のため、完成後には確認できなくなる構造部分などが今ならご覧いただけます。入居後のマイホームへの愛着も違うかもしれませんね!
●各居室にはクローゼットを完備し、家具を置くスペースが確保しやすい設計がされております。
●物件の事、諸費用の事など、小さな疑問も担当までお気軽にご連絡・ご相談下さい。
- 三鷹店/渡邊 啓志
- 経験豊かなスタッフが分譲地だけでなく学校、スーパー、公園と周辺環境も合わせてご案内致します。
お客様お一人…
- 価 格
-
6,790万円〜6,890万円<税込>
- 交 通
- 京王線『仙川』駅 徒歩30分
京王線『仙川』駅 バス7分「新川団地中央」停歩16分
- 所在地
- 東京都三鷹市北野3丁目
- 土地面積
- 115.04m²〜115.05m²
- 建物面積
- 85.86m²〜87.48m²
- 間取り
- 4LDK〜4LDK
- 完成年月
- 2026年5月
-
予約制見学会開催中! 2026年4月4日(土)〜2026年4月12日(日) 11:00〜16:00
●JR中央線「豊田」駅 徒歩3分
●セミオーダー型住宅のご提案です。
「こんな部屋を作りたい」「こんな風に暮らしたい」というお客様の夢をぜひお聞かせください。
□■「建築条件付き土地」のポイント■□
・時間の取られる建築会社探しの手間いらず!
・建売よりも自由度が高く、生活スタイルにあった家を建てられる!
- 豊田店/近藤 雄樹
- 「豊田」駅徒歩3分の好立地物件です!
周辺環境はもちろん、日当たりや設備仕様など、実際に行ってみないと分か…
- 価 格
-
5,600万円
- 交 通
- JR中央線『豊田』駅 徒歩3分
京王線『平山城址公園』駅 徒歩19分
- 所在地
- 東京都日野市豊田3丁目
- 土地面積
- 104.59m²
- 土地権利
- 所有権
- 現況
- 更地
- 建築条件
- 建築条件付き
-
予約制見学会開催中! 2026年3月28日(土)〜2026年4月5日(日) 11:00〜16:30
◇◆ 三鷹台駅徒歩19分!アクセス良好!自然豊富 ◆◇
・閑静な住宅街
・教育環境充実
・子育て環境充実
◇◆ 建築条件付き土地はこんな方におすすめです ◆◇
・建売は嫌だけと、注文住宅には予算が届かない
・理想の間取の物件が見つからない
理想の暮らしを実現する為にはどんな間取りが良いか。
希望を叶える為に参考プランをご用意しておりますので是非お役立て下さい!
- 三鷹店/岩永 健一
- 周辺環境はもちろん、日当たりや設備仕様など、実際に行ってみないと分からないことも多くございます。営業担当がご…
- 価 格
-
6,790万円〜7,390万円
- 交 通
- 京王井の頭線『三鷹台』駅 徒歩19分
京王井の頭線『井の頭公園』駅 徒歩24分
- 所在地
- 東京都三鷹市牟礼5丁目
- 土地面積
- 125.01m²〜133.05m²
- 土地権利
- 所有権
- 現況
- 更地
- 建築条件
- 建築条件付き
-
予約制見学会開催中! 2026年3月28日(土)〜2026年4月5日(日) 11:00〜16:30
●注文住宅ほどはこだわらないが、家族の意見や好みを取り入れた家にしたい
●家族構成や生活スタイルに合わせてセミオーダーで建設可能
●新築一戸建て、建売でお探しの方にもおススメです
- 三鷹店/岩永 健一
- JR中央線「東小金井」駅まで徒歩10分と通勤・通学に便利な立地となっております。理想をかなえる自由設計の土地…
- 価 格
-
4,680万円〜4,980万円
- 交 通
- JR中央線『東小金井』駅 徒歩10分
西武多摩川線『新小金井』駅 徒歩21分
- 所在地
- 東京都小金井市梶野町4丁目
- 土地面積
- 82m²〜83.27m²
- 土地権利
- 所有権
- 現況
- 更地
- 建築条件
- 建築条件付き
-
現地見学会開催中! 2026年3月28日(土)〜2026年4月5日(日) 11:00〜16:30
●あなたの「夢」を「カタチ」にできるフリースタイル分譲地で、夢のマイホームを建築してみませんか?
●注文住宅は高いのでは?と不安があるかもしれません。当社オリジナルの注文住宅建築システム
「ハウス会」では、お客様のご要望に合わせて最適な建築会社をご紹介させていただきます。
- 三鷹店/岩永 健一
- 三鷹市井口5丁目に全4区画の新たな街区が誕生!
建築条件はございませんので、ライフスタイルに合わせた自由な…
- 価 格
-
6,499万円〜7,399万円
- 交 通
- JR中央線『武蔵境』駅 徒歩15分
JR中央線『東小金井』駅 徒歩15分
- 所在地
- 東京都三鷹市井口5丁目2-26
- 土地面積
- 127.64m²〜134.19m²
- 土地権利
- 所有権
- 現況
- 上物有
- 建築条件
- 建築条件なし
-
現地見学会開催中! 2026年3月28日(土)〜2026年4月5日(日) 11:00〜16:30
*~ 自然と文化が寄り添う 穏やかな暮らし ~*
●ソファーを置いて寛げるLDKは約15帖以上
●会話を楽しみながら、家事ができる対面式システムキッチン
●各階にトイレがあるので、朝の忙しい時間帯や就寝時に便利です
●衣類の収納に役立つクローゼットは、全居室に設置があります
- 三鷹店/渡邊 啓志
- バス便や商業施設が多く利便性を求める方にお勧めの立地です!三鷹店にて現地見学会を開催♪物件の事、諸費用の事な…
- 価 格
-
7,690万円<税込>
- 交 通
- JR中央線『三鷹』駅 バス16分「上連雀八丁目」停歩4分
JR総武線『三鷹』駅 バス16分「上連雀八丁目」停歩4分
- 所在地
- 東京都三鷹市上連雀8丁目12-18
- 土地面積
- 100.84m²
- 建物面積
- 79.48m²
- 間取り
- 3LDK
- 完成年月
- 2025年12月
-
予約制見学会開催中! 2026年3月28日(土)〜2026年4月5日(日) 11:00〜16:30
●「三鷹台」駅 徒歩18分
●セミオーダー型住宅のご提案です。
「こんな部屋を作りたい」「こんな風に暮らしたい」というお客様の夢をぜひお聞かせください。
●注文住宅ほどはこだわらないが、家族の意見や好みを取り入れた家にしたい
●新築一戸建て、建売でお探しの方にもおススメです!
- 三鷹店/岩永 健一
- 三鷹市牟礼6丁目に全4区画の新たな街区が誕生します。
小学校・中学校・スーパーが徒歩10分圏内と好立地!
…
- 価 格
-
5,390万円〜6,490万円
- 交 通
- 京王井の頭線『三鷹台』駅 徒歩18分
JR中央線『吉祥寺』駅 徒歩29分
- 所在地
- 東京都三鷹市牟礼6丁目
- 土地面積
- 105.09m²〜105.28m²
- 土地権利
- 所有権
- 現況
- 更地
- 建築条件
- 建築条件付き
-
オープンハウス開催中! 2026年4月4日(土)〜2026年4月12日(日) 11:00〜16:00
●雨の日の強い味方!浴室換気乾燥機付きユニットバスで洗濯物が乾かせます。
●いつでもおいしいお水が飲める浄水器一体型水栓も完備
●後片付けの救世主! 食洗機付きシステムキッチン
●各居室にはクローゼットを完備し、家具を置くスペースが確保しやすい設計がされております。
●ご家族の様子がわかり、会話も楽しめる対面式システムキッチン
- 八王子店/渡部 敏哉
- 毎週、土・日・祝日の11:00~16:00にオープンハウスを開催中。営業スタッフが現地でお客様のご来場をお待…
- 価 格
-
4,299万円<税込>
- 交 通
- JR中央線『西八王子』駅 徒歩20分
京王高尾線『めじろ台』駅 徒歩31分
- 所在地
- 東京都八王子市長房町268付近
- 土地面積
- 130.64m²
- 建物面積
- 103.92m²
- 間取り
- 4LDK
- 完成年月
- 2026年1月
-
予約制見学会開催中! 2026年3月28日(土)〜2026年4月5日(日) 11:00〜16:30
●土地面積134.04平米と十分な広さがございます
●綺麗な整形地のため、思い描いているイメージをカタチにしやすい土地
●前面道路は公道で、ゆとりの5m幅。車の出し入れも楽々です
●我が家に合った暮らしを追及できるフリープランの建築条件付き土地で、夢のマイホームを建築してみませんか?
●建物参考プランございます
- 三鷹店/渡邊 啓志
- 全3区画、ご好評につきラスト1区画!広々とした整った形の区画です。
建物参考プランのご用意もございますので…
- 価 格
-
7,790万円
- 交 通
- JR中央線『三鷹』駅 徒歩24分
JR中央線『武蔵境』駅 徒歩22分
- 所在地
- 東京都武蔵野市関前2丁目27
- 土地面積
- 134.04m²
- 土地権利
- 所有権
- 現況
- 更地
- 建築条件
- 建築条件付き
-
現地見学会開催中! 2026年3月28日(土)〜2026年4月5日(日) 11:00〜16:30
*~ 都心でありながら豊かな自然を存分に感じられるエリアです ~*
●建築条件なし。ライフスタイルに合わせた自由なマイホームづくりが可能です
●フリースタイル分譲地で、個性あふれる住まいを実現いたしませんか?
●平日のご案内も可能です。まずはお気軽にお問合せ下さいませ
【交通】
JR中央線 / JR総武線『三鷹』駅 徒歩21分
JR中央線 / 西武多摩川線『武蔵境』駅 徒歩22分
- 三鷹店/岩永 健一
- 藤和ハウス【三鷹店】にて現地見学会を開催♪見学はしたいけど、なかなか時間が取れない・・・そんな方に出勤前や仕…
- 価 格
-
7,390万円
- 交 通
- JR中央線『三鷹』駅 徒歩21分
JR総武線『三鷹』駅 徒歩21分
- 所在地
- 東京都武蔵野市関前3丁目37-33
- 土地面積
- 133.67m²
- 土地権利
- 所有権
- 現況
- 更地
- 建築条件
- 建築条件なし
-
現地見学会開催中! 2026年4月4日(土)〜2026年4月12日(日) 10:30〜17:00
●勾配天井を生かした大きな吹き抜けのあるリビング
●空気を汚さず暖かい床暖房
●家族の集まるLDKはゆったり約20帖以上
●コミュニケーション重視のリビングイン階段
●リビングにいるご家族を見渡せる対面システムキッチン
●パントリーは災害用の備蓄品を置く場所としても活用できます
●浴室換気乾燥機は梅雨の時期等、なかなか乾かない洗濯物を干すのに役立ちます!
●ゆったり1坪サイズの浴室で1日の疲れをリセット
- 東久留米店/伊藤 淳
- 西武池袋線「ひばりヶ丘」駅 徒歩6分 新築戸建が12月に完成しました!お気軽にお問い合わせくださいませ♪
- 価 格
-
7,999万円<税込>
- 交 通
- 西武池袋線『ひばりヶ丘』駅 徒歩6分
西武池袋線『東久留米』駅 徒歩27分
- 所在地
- 東京都西東京市谷戸町3丁目
- 土地面積
- 86.12m²
- 建物面積
- 95.11m²
- 間取り
- 2SLDK
- 完成年月
- 2025年12月
-
現地見学会開催中! 2026年3月28日(土)〜2026年4月5日(日) 11:00〜16:30
*~ JR中央線 武蔵境駅 徒歩13分!全区画36坪超のゆとりある敷地 ~*
近隣には公園が多数あり、
憩いと安らぎに満ちた暮らしをお楽しみいただけるロケーションです♪
【建築条件なし♪】ハウス会 / セレシスの紹介
「デザインにはこだわりたいけど注文住宅は予算オーバー」という方は
ご要望に合わせて最適な建築会社をお選びいただける「ハウス会」、
- 三鷹店/岩永 健一
- 【全11区画】建築条件なしの新規開発分譲地が登場♪ハウスメーカーから建物プランまで、あなたの「夢」を「カタチ…
- 価 格
-
8,290万円
- 交 通
- JR中央線『武蔵境』駅 徒歩13分
JR中央線『三鷹』駅 徒歩18分
- 所在地
- 東京都武蔵野市境南町1丁目
- 土地面積
- 120.04m²
- 土地権利
- 所有権
- 現況
- 更地
- 建築条件
- 建築条件なし
-
オープンハウス開催中! 2026年4月4日(土)〜2026年4月12日(日) 11:00〜16:00
*~ ご家族が安心・安全に暮らせる家 ~*
創業51周年の藤和ハウスおすすめ物件です
Point ・‥…━━━━☆
●階段の無いバリアフリーな平屋建て
●土間リビング(2号棟)などまるで注文住宅のような設計
●1号棟にはBBQやお子様の遊びに活躍するウッドデッキ付き
●食洗器+タッチレス水栓のシステムキッチン
●来客時にも嬉しいカースペース2台分
・‥…━━━━☆
- 日野店/町田 琢巳
- 毎週、土・日・祝日の11:00~16:00に現地見学会を開催中。 営業スタッフが現地でお客様のご来場をお待ち…
- 価 格
-
5,780万円〜6,580万円<税込>
- 交 通
- JR八高線『小宮』駅 徒歩9分
JR中央線『八王子』駅 バス25分「小宮駅入口」停歩6分
- 所在地
- 東京都八王子市小宮町681
- 土地面積
- 181.82m²〜224.11m²
- 建物面積
- 74.94m²〜87.77m²
- 間取り
- 3LDK〜3LDK
(1号棟+小屋裏収…) - 完成年月
- 2025年12月
-
現地見学会開催中! 2026年3月28日(土)〜2026年4月5日(日) 11:00〜16:30
\\ 自然と利便性が調和した住環境が魅力の三鷹市 //
大型分譲地ならではの多彩なバリエーションの間取りで、
ご家族皆様のライフスタイルに合った邸宅がきっと見つかるはず♪
◆京王井の頭線「三鷹台」駅 徒歩約17分
◆前面道路はゆとりの5m。車の出し入れも楽々です
◆21家族のために、明るく寛ぎに満ちた間取りをご用意しています
- 三鷹店/岩永 健一
- 【全21区画の大型分譲地が誕生】 同時期 に生活をスタートさせるご家族の多い分譲地は、困ったときも心強い存在…
- 価 格
-
7,290万円<税込>
- 交 通
- 京王井の頭線『三鷹台』駅 徒歩17分
JR中央線『吉祥寺』駅 バス16分「三鷹台団地」停歩5分
- 所在地
- 東京都三鷹市牟礼5丁目11
- 土地面積
- 112.66m²
- 建物面積
- 89.9m²
- 間取り
- 4LDK
- 完成年月
- 2026年5月
-
予約制見学会開催中! 2026年4月4日(土)〜2026年4月12日(日) 10:30〜17:30
*~ 北東角地!敷地ひろびろ40坪/全室南向き設計 ~*
西武新宿線・西武池袋線『所沢』駅 徒歩20分
JR武蔵野線『東所沢』駅 バス16分「市営住宅前」停歩10分
●ご家族が揃うリビングは南からの暖かい日差しが射し込む2Fにございます
●リビング隣の和室は憩いの場としても、引き戸を開けてリビングの延長としても使えます
●後片付けの救世主!食洗機付きシステムキッチン
- 久米川店/加藤 卓也
- ◎北東角地につき解放感があります!◎全居室南向き
◎リフォーム内容:クロス全張替、食洗器交換、洗面化粧台交…
- 価 格
-
3,480万円<税込>
- 交 通
- 西武新宿線『所沢』駅 徒歩20分
西武池袋線『所沢』駅 徒歩20分
- 所在地
- 埼玉県所沢市東新井町
- 土地面積
- 133.29m²
- 建物面積
- 102.89m²
- 間取り
- 4LDK
- 築年月
- 2002年6月
-
現地見学会開催中! 2026年4月4日(土)〜2026年4月12日(日) 10:30〜16:00
●JR南武線「西府」駅徒歩17分!
●カースペースは2台駐車可能(車種による)
●約16帖以上のゆったりリビング。家族でテーブルを囲む素敵な時間をお愉しみ下さい。
●家族の為に料理をしてくれる人を考えたカウンターキッチン。料理中も会話が弾みます。
●いつでもおいしいお水が飲める浄水器一体型水栓も完備
●雨天時の洗濯物や浴室内のカビ防止としても活躍する浴室換気乾燥機
- 府中店/平川 賢和
- 室内は開放感あふれる16帖以上の広々LDKで、家族がゆったりくつろげます。
南向きで陽当たり良好のため、一…
- 価 格
-
5,090万円〜5,390万円<税込>
- 交 通
- JR南武線『西府』駅 徒歩17分
JR南武線『谷保』駅 徒歩23分
- 所在地
- 東京都府中市日新町5丁目16-14
- 土地面積
- 110.01m²〜115.04m²
- 建物面積
- 87.56m²〜91.9m²
- 間取り
- 4LDK〜4LDK
(1・2号棟/+S…) - 完成年月
- 2026年3月
-
現地見学会開催中! 2026年4月4日(土)〜2026年4月12日(日) 10:30〜17:30
●西武西武園線「西武園」駅 徒歩13分
●クリーンな太陽エネルギーを活かす太陽光発電システムを搭載
●収納量ばっちりのウォークインクローゼット!この機会に古い家具とはお別れできるかも!?
- 久米川店/岡田 孝憲
- ● 角地ならではの開放感と陽当たりの良さが魅力
● 土地126.48㎡・建物100.96㎡、ゆとりある4L…
- 価 格
-
5,280万円<税込>
- 交 通
- 西武西武園線『西武園』駅 徒歩13分
西武新宿線『東村山』駅 徒歩17分
- 所在地
- 東京都東村山市廻田町4丁目
- 土地面積
- 126.48m²
- 建物面積
- 100.96m²
- 間取り
- 4LDK
(+2WIC) - 完成年月
- 2026年4月
-
予約制見学会開催中! 2026年4月2日(木)〜2026年4月12日(日) 11:00〜17:00
■我が家に合った暮らしを追及できるフリープランの建築条件付き土地で、
夢のマイホームを建築してみませんか?
■平日のご案内も可能です。まずはお気軽にお問合せ下さいませ。
■見学はしたいけど、なかなか時間が取れない・・・
そんな方に出勤前や仕事終わりにマイホームを見学できるサポートをいたします
- 国分寺店/榎本 信吾
- 「花小金井」駅徒歩23分と少し距離はございますが、毎日の通勤通学で駅まで歩けば、運動不足も解消されて一石二鳥…
- 価 格
-
3,580万円〜4,080万円
- 交 通
- 西武新宿線『花小金井』駅 徒歩23分
西武新宿線『小平』駅 徒歩23分
- 所在地
- 東京都小平市鈴木町1丁目
- 土地面積
- 114.77m²〜132.36m²
- 土地権利
- 所有権
- 現況
- 更地
- 建築条件
- 建築条件付き
-
予約制見学会開催中! 2026年4月4日(土)〜2026年4月12日(日) 10:30〜17:30
●西武西武園線「西武園」駅 徒歩13分
●ウォークインクローゼットは、お洋服等がたくさん収納できて便利です。
●釣り・キャンプ・ゴルフ用品など、多趣味なご家族には土間収納が便利
- 価 格
-
4,780万円<税込>
- 交 通
- 西武西武園線『西武園』駅 徒歩13分
西武新宿線『東村山』駅 徒歩17分
- 所在地
- 東京都東村山市廻田町4丁目
- 土地面積
- 119.61m²
- 建物面積
- 98m²
- 間取り
- 4LDK
(+WIC、土間収納) - 完成年月
- 2026年4月
-
現地見学会開催中! 2026年4月4日(土)〜2026年4月12日(日) 11:00〜16:00
≪おすすめポイント≫
●京王線「百草園」駅徒歩約8分の駅近
●安心して長く住める長期優良認定住宅
●家族の集まるLDKはゆったり約17.5帖
●食品のストックに便利なキッチンパントリー
●折上げ天井で視覚的に広さを感じる上質なリビング空間
●LDK隣の和室はお子様の遊び場としても使えます
●全居室南向きのため、どこにいても明るく快適です
●主寝室にはハンガーパイプ付きのWICがございます
- 日野店/竹下 志弘
- 京王線「百草園」駅まで徒歩約8分!特急停車駅の「聖蹟桜ヶ丘」駅も徒歩圏内です。
パントリーやWICなど収納…
- 価 格
-
5,580万円<税込>
- 交 通
- 京王線『百草園』駅 徒歩8分
京王線『聖蹟桜ヶ丘』駅 徒歩22分
- 所在地
- 東京都日野市落川
- 土地面積
- 113.07m²
- 建物面積
- 100.79m²
- 間取り
- 4LDK
(+WIC、パント…) - 完成年月
- 2026年6月
-
現地見学会開催中! 2026年4月4日(土)〜2026年4月12日(日) 11:00〜16:00
●新生活は徒歩14分の「日野」駅から始めませんか?
●スーパー徒歩4分、小学校9分と利便性の高い立地
●運転、駐車が苦手な方にも嬉しい前面道路6m!
●リビングは解放感のある吹抜け構造
●家族の集うLD部分には、足元から暖かい床暖房付き
●システムキッチンには食洗機+浄水器一体型水栓
●シーズンオフの荷物などがスッキリ片付く小屋裏収納(1.2号棟)
●お洗濯やガーデニングも楽しめる屋上ルーフバルコニー(3号棟)
- 日野店/渡部 敏哉
- JR中央線「日野」駅徒歩14分の好立地に先進設備整う新邸3棟が誕生します!
太陽光発電設備搭載!省エネ+エ…
- 価 格
-
5,280万円〜5,380万円<税込>
- 交 通
- JR中央線『日野』駅 徒歩14分
多摩都市モノレール『甲州街道』駅 徒歩11分
- 所在地
- 東京都日野市大字日野531-6
- 土地面積
- 75.57m²〜80.48m²
- 建物面積
- 107.95m²〜110.64m²
- 間取り
- 2SLDK〜3SLDK
(1号棟/+S、W…) - 完成年月
- 2026年4月
-
予約制見学会開催中! 2026年4月4日(土)〜2026年4月12日(日) 11:00〜16:00
●南東角地のため通風採光良好です
●嬉しいカースペース2台分!!
●家族の集まるLDKはゆったり約17.4帖
●人造大理石の一体型システムキッチンには食洗器+浄水器付き
●家族との会話も弾む対面式キッチン
●ゆったり1坪サイズの浴室で1日の疲れをリセット
●浴室内のカビ防止としても活躍する浴室換気乾燥機
●シャワードレッサーで寝ぐせ直しも楽ちん!
●全居室クローゼット付き
- 日野店/阿野 周一郎
- 京王線「百草園」駅徒歩9分と駅チカのロケーションに新邸が誕生します。
駅周辺にはスーパーやドラッグストアの…
- 価 格
-
5,499万円<税込>
- 交 通
- 京王線『百草園』駅 徒歩9分
京王線『聖蹟桜ヶ丘』駅 徒歩20分
- 所在地
- 東京都日野市百草
- 土地面積
- 118.83m²
- 建物面積
- 94.4m²
- 間取り
- 4LDK
- 完成年月
- 2026年6月
-
現地見学会開催中! 2026年4月4日(土)〜2026年4月12日(日) 11:00〜16:00
●衣類や帽子、カバンなども収納可能なウォークインクローゼット
●食洗機は水仕事を軽減するとともに、手洗いに比べ節水効果も期待できます。
●雨の日の強い味方!浴室換気乾燥機付きユニットバスで洗濯物が乾かせます。
●いつでもおいしいお水が飲める浄水器も完備
●埃を巻き上げにくく、心地よい温かさで快適に過ごせる床暖房
- 八王子店/森田 信育
- 毎週、土・日・祝日の11:00~16:00に現地見学会を開催中。営業スタッフが現地でお客様のご来場をお待ちし…
- 価 格
-
5,699万円<税込>
- 交 通
- JR中央線『八王子』駅 徒歩15分
京王線『京王八王子』駅 徒歩13分
- 所在地
- 東京都八王子市北野町506‐4
- 土地面積
- 85.13m²
- 建物面積
- 113.77m²
- 間取り
- 1SLDK
(+納戸、WIC) - 完成年月
- 2026年5月
-
予約制見学会開催中! 2026年3月28日(土)〜2026年4月5日(日) 11:00〜16:30
●建築条件はございません!
●JR中央線「三鷹」駅 徒歩7分。
ショッピングやお出かけのアクセスも良好で、休日の行動範囲が広がります。
●ハウスメーカーからプランまでフルオーダーで自由にマイホームがつくれる、建築条件のない宅地分譲
●綺麗な整形地のため、思い描いているイメージをカタチにしやすい土地
●前面道路はゆとりの5.31m。車の出し入れも楽々です。
- 三鷹店/阿部 修一
- JR中央線「三鷹駅」徒歩7分で毎日の通勤・通学が便利な立地
接道幅員も約5.3で周辺の環境も開放感がござい…
- 価 格
-
1億2,800万円
- 交 通
- JR中央線『三鷹』駅 徒歩7分
JR総武線『三鷹』駅 徒歩7分
- 所在地
- 東京都三鷹市上連雀2丁目
- 土地面積
- 127.42m²
- 土地権利
- 所有権
- 現況
- 更地
- 建築条件
- 建築条件なし
-
予約制見学会開催中! 2026年4月4日(土)〜2026年4月12日(日) 10:30〜17:30
■セミオーダー型住宅のご提案です。
「こんな部屋を作りたい」「こんな風に暮らしたい」というお客様の夢をぜひお聞かせください。
●全区画:約38坪超のゆとりある敷地
■アクセス■
JR武蔵野線『新秋津』駅 徒歩18分
西武池袋線『秋津』駅 徒歩21分
■平日のご案内も可能です。まずはお気軽にお問合せ下さいませ。
- 久米川店/岡田 孝憲
- 我が家に合った暮らしを追及できるフリープランの建築条件付き土地で、夢のマイホームを建築してみませんか?平日の…
- 価 格
-
2,680万円〜3,280万円
- 交 通
- JR武蔵野線『新秋津』駅 徒歩18分
西武池袋線『秋津』駅 徒歩21分
- 所在地
- 東京都東村山市久米川町1丁目
- 土地面積
- 127.73m²〜133.88m²
- 土地権利
- 所有権
- 現況
- 更地
- 建築条件
- 建築条件付き
-
オープンハウス開催中! 2026年3月28日(土)〜2026年4月5日(日) 11:00〜16:30
*・*――― 暖かな光かがやく「家族の絆を育む街」 ―――*・*
●全27区画の大型分譲地の誕生です
●全区画100平米以上
●関東バス・西武バス・小田急バス・京王バスなどバス便充実!
●建物ZEH水準
- 三鷹店/渡邊 啓志
- 【全27区画の大型分譲地】同時期に生活をスタートさせるご家族の多い分譲地は、困ったときも心強い存在になりそう…
- 価 格
-
5,080万円〜5,580万円<税込>
- 交 通
- JR中央線『三鷹』駅 バス27分「大沢公会堂」停歩4分
JR中央線『武蔵境』駅 バス19分「大沢台小学校前」停歩5分
- 所在地
- 東京都三鷹市大沢2丁目5-3付近
- 土地面積
- 100.04m²〜103.05m²
- 建物面積
- 79.07m²〜81.97m²
- 間取り
- 3LDK〜3LDK
- 完成年月
- 2025年11月
-
予約制見学会開催中! 2026年4月4日(土)〜2026年4月12日(日) 10:30〜17:30
●西武池袋線・西武狭山線「西所沢」駅まで徒歩約16分
●家族の集まるLDKはゆったり約18帖
●リビングイン階段で自然と家族が集う憩の空間になります。
●ご家族団らんの対面式キッチン
●浴室は換気・乾燥・暖房機付きで、入浴前も入浴後も快適です。
●居室のサッシにはペアガラスを採用。断熱性が高いことにより、省エネや結露対策にもなります。
- 久米川店/三上 知穂
- 周辺環境はもちろん、日当たりや設備仕様など、実際に行ってみないと分からないことも多くございます。喜んでご案内…
- 価 格
-
3,480万円<税込>
- 交 通
- 西武池袋線『西所沢』駅 徒歩16分
西武狭山線『西所沢』駅 徒歩16分
- 所在地
- 埼玉県所沢市大字荒幡
- 土地面積
- 114.17m²
- 建物面積
- 87.48m²
- 間取り
- 3LDK
(+テレワークルーム) - 完成年月
- 2026年4月
-
予約制見学会開催中! 2026年4月4日(土)〜2026年4月12日(日) 10:30〜17:30
■おすすめ設備・仕様■
・パントリーは災害用の備蓄品を置く場所としても活用できます
・温水洗浄便座
・ペアガラス
・浴室乾燥機付ユニットバス
・家族との会話も弾む対面式キッチン
■駐車スペース■
・来客時にも便利な駐車2台可能(車種による)
■アクセス■
・西武新宿線『久米川』駅 徒歩25分
- 久米川店/岡田 孝憲
- 全8区画の新街区が誕生します!同時期に生活をスタートさせるご家族の多い分譲地は、困ったときも心強い存在になり…
- 価 格
-
4,190万円〜4,890万円<税込>
- 交 通
- 西武新宿線『久米川』駅 徒歩25分
西武新宿線『久米川』駅 バス15分「恩多町一丁目」停歩2分
- 所在地
- 東京都東村山市恩多町1丁目
- 土地面積
- 111.56m²〜122.04m²
- 建物面積
- 99.78m²〜101.85m²
- 間取り
- 4LDK〜4LDK
(2号棟/+WIC…) - 完成年月
- 2026年4月
-
予約制見学会開催中! 2026年4月4日(土)〜2026年4月12日(日) 11:00〜16:00
多摩モノレール「甲州街道」駅9分/JR中央線「日野」駅14分
便利な2路線にアクセス可能な好立地!!
●南側道路のため、日当たり通風良好!
●セミオーダー型住宅のご提案です。
「こんな風に暮らしたい」というお客様の夢をぜひお聞かせください。
●夢に描いたわが家。あなたの「想い」を「カタチ」にするセミオーダー型住宅です。
●一戸建ての多いエリアのため、静かで落ち着いた雰囲気の街並みです。
- 日野店/渡部 敏哉
- 多摩都市モノレール「甲州街道」駅 徒歩9分の立地。 地元を熟知したスタッフが周辺環境もご案内いたします。 是…
- 価 格
-
4,390万円
- 交 通
- 多摩都市モノレール『甲州街道』駅 徒歩9分
JR中央線『日野』駅 徒歩14分
- 所在地
- 東京都日野市日野本町6丁目
- 土地面積
- 131.8m²
- 土地権利
- 所有権
- 現況
- 更地
- 建築条件
- 建築条件付き
-
オープンハウス開催中! 2026年4月4日(土)〜2026年4月12日(日) 11:00〜16:30
*~ 安心・充実・満足!暮らしを彩る建物仕様 ~*
3・6・10号棟:LDKにキャットウォークを完備!猫ちゃんも快適^^♪
9・10・11号棟:特別仕様【HYGGE】まるで注文住宅のような住まい
◆TES床暖房
◆発泡ウレタン吹付断熱
◆玄関ドアFamiLock(電池錠)
◆木造住宅用制震ユニットMIRAIE
◆タカラスタンダード製システムキッチン(オフェリア)
◆食器洗乾燥機
◆TOTO製ウォシュレットトイレ
- 荻窪店/梅崎 薫
- ■床暖房や食洗機など充実の設備仕様♪リビングは広々約17帖~運転、駐車が苦手な方にも嬉しい前面道路6m!周辺…
- 価 格
-
6,690万円〜7,390万円<税込>
- 交 通
- JR中央線『吉祥寺』駅 バス23分「北野小東」停歩4分
京王井の頭線『久我山』駅 バス7分「真福寺」停歩12分
- 所在地
- 東京都三鷹市北野2丁目4-50付近
- 土地面積
- 115.3m²〜115.33m²
- 建物面積
- 89.42m²〜91.08m²
- 間取り
- 2SLDK〜4LDK
- 完成年月
- 2026年3月
-
オープンハウス開催中! 2026年3月28日(土)〜2026年4月5日(日) 11:00〜16:30
\\ 省エネ基準適合住宅 //
全棟完成済・建物内覧可能です!
●リビングイン階段によりいつも家族を身近に感じられます。
「行ってきます」「お帰りなさい」を感じ、コミュニケーションの取れる空間となりそうです。
●使い勝手の良い固定階段式グルニエは、シーズンオフの荷物もたっぷり収納できます。
●南向きのバルコニーは日差しもたっぷり注ぎ、お洗濯物もよく乾きます。
- 三鷹店/岩永 健一
- 「三鷹台」駅バス16分。リビングに生活動線の中心となるリビングイン階段を設置し、家族の絆を育む住まいとなって…
- 価 格
-
6,480万円〜6,480万円<税込>
- 交 通
- JR中央線『吉祥寺』駅 バス24分「天神前」停歩9分
JR中央線『三鷹』駅 バス27分「新川団地中央」停歩11分
- 所在地
- 東京都三鷹市北野3丁目13-26付近
- 土地面積
- 104.01m²〜104.02m²
- 建物面積
- 110.12m²〜110.13m²
- 間取り
- 4LDK〜4LDK
(1号棟+パントリ…) - 完成年月
- 2025年3月
-
予約制見学会開催中! 2026年4月4日(土)〜2026年4月12日(日) 11:00〜16:00
~ZEH水準住宅!
◆おすすめ設備・仕様◆
・リビングは広々約17.06帖!コミュニケーション重視リビングイン階段
・雨天時の洗濯物や浴室内のカビ防止としても活躍する浴室換気乾燥機
・使い勝手の良いロフトは、シーズンオフの荷物もたっぷり収納できます。
・サービスルームは収納としてだけでなくテレワークにも活用できます。
・床暖房で足元ぽかぽかです
- 荻窪店/梅崎 薫
- 西武新宿線【都立家政駅】まで徒歩8分の好立地!
物件の詳細ご希望ございましたら、どうぞお気軽にご連絡下さい…
- 価 格
-
7,790万円<税込>
- 交 通
- 西武新宿線『都立家政』駅 徒歩8分
西武新宿線『鷺ノ宮』駅 徒歩13分
- 所在地
- 東京都練馬区中村南1丁目
- 土地面積
- 84.48m²
- 建物面積
- 102.61m²
- 間取り
- 3SLDK
(+ロフト) - 完成年月
- 2026年3月
-
予約制見学会開催中! 2026年3月28日(土)〜2026年4月5日(日) 11:00〜16:00
●減税+控除【長期優良住宅】
●家族の集まるLDKはゆったり約18帖
●来客時や駐輪スペースとしても利用可能な
カースペース2台可(車種による)
●収納量ばっちりのウォークインクローゼット!
●大容量のシューズインクロークで玄関もスッキリ
●エコジョーズで省エネを実現
●耐震等級3を取得した地震に強い家
●前面道路5mなので、運転が少し苦手な方でも
運転・駐車がしやすそうですね。
- 大泉学園店/非々 慎平
- 駅までバス便ですが、お天気の良い日には健康のためウォーキングがてら歩くのもオススメです。ウォークインクローゼ…
- 価 格
-
3,480万円<税込>
- 交 通
- 西武池袋線『ひばりヶ丘』駅 バス14分「あけぼの住宅前」停歩4分
JR武蔵野線『北朝霞』駅 バス23分「あけぼの住宅前」停歩4分
- 所在地
- 埼玉県新座市道場1丁目
- 土地面積
- 104.14m²
- 建物面積
- 95.22m²
- 間取り
- 3LDK
(+WIC、SIC) - 完成年月
- 2026年3月
-
現地見学会開催中! 2026年4月4日(土)〜2026年4月12日(日) 10:30〜16:00
◇旧川越街道沿いの利便性に優れた好立地
◇家族の集まるLDKはゆったり16帖以上!
◇リビングにいるご家族を見渡せる対面キッチン
◇各居室にはクローゼットを完備
◇雨の日の強い味方!浴室換気乾燥機付きユニットバス
◇就寝時なども便利な各階トイレあり
◇防犯に役立つTVモニター付インターフォン
- 朝霞店/鍵市 大将
- 小学校まで8分、中学校まで10分と子育て世帯も安心の住まいです。家事動線を考え、水回りをまとめた間取りです。…
- 価 格
-
3,980万円〜4,980万円<税込>
- 交 通
- 東武東上線『朝霞』駅 バス11分「膝折坂下」停歩1分
東武東上線『朝霞』駅 バス6分「幸町三丁目交差点」停歩6分
- 所在地
- 埼玉県朝霞市膝折町2丁目2-25
- 土地面積
- 107.02m²〜119m²
- 建物面積
- 85.39m²〜97.71m²
- 間取り
- 1LDK〜4LDK
- 完成年月
- 2026年4月
-
オープンハウス開催中! 2026年4月4日(土)〜2026年4月12日(日) 10:30〜16:00
●エコジョーズで省エネを実現
●来客時にも便利な駐車2台可能(車種による)
●リビングにいるご家族を見渡せる対面キッチン
●ビルトイン食洗機を標準完備し、家事時間が短縮できます。
●雨の日の強い味方!浴室換気乾燥機付きユニットバスで洗濯物が乾かせます。
- 朝霞店/鍵市 大将
- 志木市中宗岡5丁目に全4区画の新たな街区が誕生します。
スーパー・コンビニ徒歩10分圏内。南東側道路に接道…
- 価 格
-
4,299万円〜4,499万円<税込>
- 交 通
- 東武東上線『志木』駅 バス18分「北美町」停歩9分
東武東上線『志木』駅 徒歩29分
- 所在地
- 埼玉県志木市中宗岡5丁目22-31
- 土地面積
- 117.65m²〜121.27m²
- 建物面積
- 105.32m²〜105.36m²
- 間取り
- 4LDK〜4LDK
(全棟/+WIC …) - 完成年月
- 2025年12月
-
オープンハウス開催中! 2026年4月4日(土)〜2026年4月12日(日) 10:30〜16:00
◇リビングにいるご家族を見渡せる対面キッチン
◇夜間や雨天時の洗濯物の乾燥に便利な浴室乾燥機能
◇就寝時にも便利な各階トイレあり
◇全居室2面採光で明るく風通しの良いお部屋
◇訪問者がひと目でわかるカラーTVモニターホン
- 朝霞店/鍵市 大将
- 朝霞市田島2丁目に全3棟の新築一戸建てが堂々誕生!!家族や仲間が集うLDKは約20帖あり、ゆったりと寛げる空…
- 価 格
-
4,099万円<税込>
- 交 通
- JR武蔵野線『北朝霞』駅 徒歩29分
東武東上線『朝霞台』駅 徒歩30分
- 所在地
- 埼玉県朝霞市田島2丁目16-6
- 土地面積
- 100.04m²
- 建物面積
- 103.51m²
- 間取り
- 4LDK
- 完成年月
- 2026年2月
-
オープンハウス開催中! 2026年4月4日(土)〜2026年4月12日(日) 10:30〜16:00
●開放感ある対面式キッチンに立てば、リビングで寛ぐ家族の表情を確認することができます。
●まとめ洗いができ、乾燥まで行ってくれる食器洗い乾燥機で食事の後片付けが楽になります。
●雨天時の洗濯物や浴室内のカビ防止としても活躍する浴室換気乾燥機
●訪問者がわかるTVモニター付インターホンは、お子様のお留守番にも活躍するかも?!
●手すり付き階段でお子様やお年寄りの昇降も安心です。
- 朝霞店/鍵市 大将
- 南向きワイドスパンの広々LDKが魅力です。洗面室・浴室・キッチンがコンパクトにまとまっているので、効率よく家…
- 価 格
-
5,899万円<税込>
- 交 通
- 東武東上線『成増』駅 徒歩22分
東京メトロ有楽町線『地下鉄成増』駅 徒歩22分
- 所在地
- 埼玉県和光市白子3丁目8‐12
- 土地面積
- 100m²
- 建物面積
- 101.03m²
- 間取り
- 4LDK
- 完成年月
- 2025年12月
-
オープンハウス開催中! 2026年4月4日(土)〜2026年4月12日(日) 10:30〜16:00
●全居室南向きで明るく、冬場でも太陽の日差しで室内ぽかぽかです!
●ご家族が揃うリビングは、南からの暖かい日差しが射し込む2Fに配置しました。
●雨の日の強い味方!浴室換気乾燥機付きユニットバスで洗濯物が乾かせます。
●対面式のカウンターキッチンは、いつでもご家族を感じられる空間作りの重要ポイントになりそうです。
- 朝霞店/鈴木 大輔
- 急行停車駅・志木駅14分! 近くにはオーケー新座北野店がございます。 長期優良認定住宅、耐震強度3 家庭内…
- 価 格
-
4,780万円<税込>
- 交 通
- 東武東上線『志木』駅 徒歩14分
東武東上線『柳瀬川』駅 徒歩24分
- 所在地
- 埼玉県志木市幸町1丁目15-11
- 土地面積
- 89.91m²
- 建物面積
- 82.8m²
- 間取り
- 2SLDK
(+ロフト・パント…) - 完成年月
- 2026年1月
-
現地見学会開催中! 2026年4月4日(土)〜2026年4月12日(日) 10:30〜16:00
◆新生活は徒歩7分の「志木」駅から始めませんか?
◆前面道路はゆとりの6m。車の出し入れも楽々です。
◆駅までの距離と陽当りをぜひお確かめ下さい♪
◆分譲地だけでなく学校、スーパー、公園と周辺環境も合わせてご案内致します。
- 朝霞店/鍵市 大将
- 東武東上線「志木」駅徒歩7分!池袋駅まで急行で約22分と都心への通勤・通学にも便利です。駅周辺には大型商業施…
- 価 格
-
4,680万円
- 交 通
- 東武東上線『志木』駅 徒歩7分
東武東上線『朝霞台』駅 徒歩17分
- 所在地
- 埼玉県朝霞市三原4丁目13-24
- 土地面積
- 90.79m²
- 土地権利
- 所有権
- 現況
- 更地
- 建築条件
- 建築条件付き
-
現地見学会開催中! 2026年4月4日(土)〜2026年4月12日(日) 11:00〜16:00
■夢に描いたわが家。あなたの「想い」を「カタチ」にするフリー設計分譲地
■ご家族お一人お一人にマッチした、世界に一つだけのオリジナル住宅を実現してみませんか?
■「こんな部屋を作りたい」「こんな風に暮らしたい」というお客様の夢をぜひお聞かせください。
■ご希望を叶える為に参考プランをご用意しておりますので、是非お役立て下さい。
- 朝霞店/鍵市 大将
- 理想をかなえる自由設計の土地!ぜひ皆様の「こんな家に住みたい!」をお聞かせ下さい。 スーパー・コンビニ・ドラ…
- 価 格
-
3,700万円〜3,900万円<税込>
- 交 通
- 東武東上線『成増』駅 バス10分「和光市南」停歩3分
東武東上線『和光市』駅 バス9分「和光市総合体育館」停歩14分
- 所在地
- 埼玉県和光市南1丁目
- 土地面積
- 100.04m²〜100.25m²
- 土地権利
- 所有権
- 現況
- 更地
- 建築条件
- 建築条件付き
-
現地見学会開催中! 2026年4月4日(土)〜2026年4月12日(日) 10:30〜16:00
■おすすめ設備仕様■
・家族の集まるLDKはゆったり約17.7帖
・ご家族団らんの対面式キッチン
・雨の日の強い味方!浴室換気乾燥機付きユニットバス
・階段の上り下りをせずに済むため就寝時なども便利な各階トイレあり
・奥行のあるウォークインクローゼットでたっぷり収納
・防犯に役立つTVモニター付インターフォン
■駐車スペース■
・来客時にも便利な駐車2台可能(車種による)
- 朝霞店/鍵市 大将
- 洗面室・浴室・キッチンがコンパクトにまとまっているので、効率よく家事ができます。リビングには空気を汚さず暖か…
- 価 格
-
4,990万円<税込>
- 交 通
- JR武蔵野線『新座』駅 徒歩23分
西武池袋線『清瀬』駅 バス13分「旭が丘二丁目」停歩2分
- 所在地
- 埼玉県新座市あたご3丁目8-12付近
- 土地面積
- 195.66m²
- 建物面積
- 111.37m²
- 間取り
- 4LDK
(+WIC×2) - 完成年月
- 2026年6月
-
現地見学会開催中! 2026年4月4日(土)〜2026年4月12日(日) 10:30〜16:00
☆ZEH水準の高い断熱性と省エネ性で快適な暮らしを☆
□家族の集まるLDKはゆったり約19.3帖
□空気を汚さず暖かい床暖房
□キッチンには家事時間を短縮する食洗機付き
□手をかざすだけで操作できるキッチンハンズフリー水栓
□雨の日の強い味方!浴室換気乾燥機付きユニットバス
□階段の上り下りをせずに済むため就寝時なども便利な各階トイレあり
- 朝霞店/鍵市 大将
- 忙しい朝や遅い帰宅時にも嬉しい「本蓮沼」駅徒歩3分!道路や外からの視線が届きにくい、プライバシー性の高い2階…
- 価 格
-
8,480万円<税込>
- 交 通
- 都営三田線『本蓮沼』駅 徒歩3分
東武東上線『ときわ台』駅 バス10分「小豆沢一丁目」停歩11分
- 所在地
- 東京都板橋区蓮沼町8-10
- 土地面積
- 89.12m²
- 建物面積
- 92.85m²
- 間取り
- 4LDK
- 完成年月
- 2026年6月
-
現地見学会開催中! 2026年4月4日(土)〜2026年4月12日(日) 10:30〜16:00
☆家族の集まるLDKはゆったり約16帖
☆リビングにいるご家族を見渡せる対面キッチン
☆階段の上り下りをせずに済むため就寝時なども便利な各階トイレあり
☆各居室にはクローゼットを完備
☆キッチンにあるパントリーは食品等のストックに便利
☆お洗濯物もよく乾く南面バルコニー
- 朝霞店/鈴木 大輔
- リビングイン階段で自然と家族が集う憩の空間になります。洗面室・浴室・キッチンがコンパクトにまとまっているので…
- 価 格
-
3,680万円<税込>
- 交 通
- 西武池袋線『東久留米』駅 徒歩23分
西武池袋線『清瀬』駅 バス9分「コミュニティプラザひまわり入口」停歩15分
- 所在地
- 埼玉県新座市西堀2丁目
- 土地面積
- 78.28m²
- 建物面積
- 75.97m²
- 間取り
- 3LDK
- 完成年月
- 2026年11月
-
現地見学会開催中! 2026年4月4日(土)〜2026年4月12日(日) 10:30〜16:30
◆ZEH水準の省エネ住宅!快適な新生活が始まります。
◆ご家族の様子がわかり、会話も楽しめる対面式システムキッチン
◆パントリーは災害用の備蓄品を置く場所としても活用できます。
- 清瀬店/松浦 剛志
- 幅員6mの開発分譲地の全7区画!ゆとりある区画が魅力です。 詳細はお気軽にお問合せください。
市内にモデ…
- 価 格
-
3,690万円〜4,290万円<税込>
- 交 通
- 西武池袋線『清瀬』駅 バス11分「団地交番前」停歩2分
JR武蔵野線『新座』駅 バス17分「団地交番前」停歩2分
- 所在地
- 東京都清瀬市旭が丘1丁目277-8
- 土地面積
- 137.85m²〜146.22m²
- 建物面積
- 97.29m²〜105.57m²
- 間取り
- 3LDK〜5LDK
- 完成年月
- 2026年3月
-
オープンハウス開催中! 2026年3月28日(土)〜2026年4月5日(日) 11:00〜16:00
●圧迫感がない約17帖の広々LDK。窓からは陽光をたっぷり採り込み、明るく快適な団らん空間となっております。
●平日のご案内も可能です。お気軽にお問合せ下さいませ。
●経験豊かなスタッフが分譲地だけでなく学校、スーパー、公園と周辺環境も合わせてご案内致します。
- 大泉学園店/小倉 樹
- 窓からは陽光をたっぷり採り込み、明るく快適な団らん空間となっております!
平日のご案内も可能です。お気軽に…
- 価 格
-
8,999万円<税込>
- 交 通
- 西武池袋線『大泉学園』駅 徒歩12分
西武新宿線『上石神井』駅 バス11分「学芸大付属前」停歩7分
- 所在地
- 東京都練馬区東大泉6丁目16-24
- 土地面積
- 106.92m²
- 建物面積
- 103.97m²
- 間取り
- 4LDK
(+WIC、土間収納) - 完成年月
- 2026年3月
-
オープンハウス開催中! 2026年4月4日(土)〜2026年4月12日(日) 11:00〜16:00
●約19.6帖のゆとりを確保した広々LDK
●洋服選びが楽しいウォークインクローゼット
●リビング全体が見渡せる対面式キッチン
●時短・節水の食洗機付システムキッチン
●全居室収納付き、お部屋をスッキリ保てます
●全室2面採光、風通しの良いお部屋です
●玄関には多彩に使える土間収納を設置
●朝の支度時や就寝時に役立つ各階トイレ
●生活至便な周辺環境も合わせてご案内いたします!
- 八王子店/大木 直也
- 【建物完成済】カースペース並列2台駐車可能!新設された道路はお車の通り抜けもございませんのでご安心です♪室内…
- 価 格
-
2,999万円<税込>
- 交 通
- JR中央線『西八王子』駅 バス18分「諏訪神社」停歩3分
JR横浜線『八王子』駅 バス27分「諏訪神社」停歩3分
- 所在地
- 東京都八王子市諏訪町25-3
- 土地面積
- 125.01m²
- 建物面積
- 98.94m²
- 間取り
- 3SLDK
(全棟/+WIC、…) - 完成年月
- 2026年1月
-
予約制見学会開催中! 2026年4月4日(土)〜2026年4月12日(日) 11:00〜16:00
●建築会社を自由にセレクトできる土地分譲で理想の暮らしを叶えて下さい
●ハウスメーカーからプランまでフルオーダーで自由にマイホームがつくれる、建築条件のない宅地分譲
●見学はしたいけど、なかなか時間が取れない…そんな方に出勤前や仕事終わりにマイホームを見学できるサポートをいたします。
- 大泉学園店/非々 慎平
- 西武池袋線「大泉学園」駅 徒歩24分!ハウスメーカーからプランまでフルオーダーで自由にマイホームがつくれる、…
- 価 格
-
3,780万円〜4,180万円
- 交 通
- 西武池袋線『大泉学園』駅 徒歩24分
都営大江戸線『光が丘』駅 バス33分「坂下」停歩3分
- 所在地
- 東京都練馬区大泉学園町5丁目
- 土地面積
- 80.77m²〜80.77m²
- 土地権利
- 所有権
- 現況
- 更地
- 建築条件
- 建築条件なし
-
オープンハウス開催中! 2026年3月28日(土)〜2026年4月5日(日) 11:00〜16:00
●西武池袋線「石神井公園」駅 バス13分「橋戸小学校」停歩2分
●暮らしの質を高める住空間。 ZEH水準の快適住宅
●家族の集まるLDKはゆったり約18.5帖
●後片付けの救世主! 食洗機付きシステムキッチン
●雨の日の強い味方!浴室換気乾燥機付きユニットバスで洗濯物が乾かせます。
●太陽光をエネルギーに換える「太陽光発電」でエコな暮らしを!
- 大泉学園店/田倉 光一郎
- 西武池袋線「石神井公園」駅 バス13分「橋戸小学校」停歩2分。
広々18.5帖のリビングでゆったりできます…
- 価 格
-
5,990万円<税込>
- 交 通
- 西武池袋線『石神井公園』駅 バス13分「橋戸小学校」停歩2分
東京メトロ有楽町線『地下鉄成増』駅 バス16分「大泉町二丁目」停歩3分
- 所在地
- 東京都練馬区土支田3丁目
- 土地面積
- 103.84m²
- 建物面積
- 95.64m²
- 間取り
- 4LDK
- 完成年月
- 2025年12月
-
現地見学会開催中! 2026年3月28日(土)〜2026年4月5日(日) 11:00〜16:00
●「大泉学園」駅徒歩34分に加え、バス便利用で「和光」駅にもアクセスでき、行動範囲が大きく広げられる立地です。
● お子様の足でも徒歩約5分(約332m)。目の行き届く距離にある小学校なら、通学を見守るご家族も安心ですね。
●隙間のないなめらかな人造大理石の一体型システムキッチン
●充実した新たな生活を、「あったらいいな」がある、この地から始めてみませんか?鮮やかな青空と暮らすこの土地で・・・
- 大泉学園店/田倉 光一郎
- 経験豊かなスタッフが分譲地だけでなく学校、スーパー、公園と周辺環境も合わせてご案内致します。
お客様お一人…
- 価 格
-
5,980万円〜6,280万円<税込>
- 交 通
- 西武池袋線『石神井公園』駅 バス17分「大泉町四丁目」停歩7分
東京メトロ有楽町線『和光市』駅 バス21分「大泉町四丁目」停歩6分
- 所在地
- 東京都練馬区大泉町3丁目28-8
- 土地面積
- 119m²〜129.53m²
- 建物面積
- 103.26m²〜103.26m²
- 間取り
- 4LDK〜4LDK
(1号棟+SIC) - 完成年月
- 2026年4月
-
予約制見学会開催中! 2026年4月4日(土)〜2026年4月12日(日) 11:00〜16:00
●西武拝島線「武蔵砂川」駅 徒歩19分
●家族が揃って食事できるゆとりある大きさのLDK約16.8帖
●ご家族の様子がわかり、会話も楽しめる対面式システムキッチン
●床下には収納スペースも確保。収納が豊富な住まいです。
●大容量のウォークインクローゼットでお部屋をスッキリきれいに保てます。
●各階にトイレがあると、階段の上り下りをせずに済むため就寝時なども便利です。
- 立川店/山田 竜一
- 日当たりの良さそうな南向きの新築一戸建住宅です。昭和記念公園も近く、立川駅までもフラットな地域ですので自転車…
- 価 格
-
4,750万円<税込>
- 交 通
- 西武拝島線『武蔵砂川』駅 徒歩19分
多摩都市モノレール『砂川七番』駅 徒歩21分
- 所在地
- 東京都立川市砂川町1丁目
- 土地面積
- 104.27m²
- 建物面積
- 83.3m²
- 間取り
- 3LDK
- 完成年月
- 2025年5月
-
現地見学会開催中! 2026年4月4日(土)〜2026年4月12日(日) 11:00〜16:00
●西武拝島線「武蔵砂川」駅 徒歩18分
●ハウスメーカーからプランまでフルオーダーで自由にマイホームがつくれる、建築条件のない宅地分譲
●建築条件はございませんので、ライフスタイルに合わせた自由なマイホームづくりが可能です。
●充実した新たな生活を、「あったらいいな」がある、この地から始めてみませんか?鮮やかな青空と暮らすこの土地で・・。
●平日のご案内も可能です。まずはお気軽にお問合せ下さいませ。
- 立川店/山田 亮太
- 毎週、土・日・祝日の11:00~16:00に現地見学会を開催中。営業スタッフが現地でお客様のご来場をお待ちし…
- 価 格
-
1,710万円
- 交 通
- 西武拝島線『武蔵砂川』駅 徒歩18分
多摩都市モノレール『桜街道』駅 徒歩23分
- 所在地
- 東京都武蔵村山市大南3丁目5
- 土地面積
- 100.06m²
- 土地権利
- 所有権
- 現況
- 更地
- 建築条件
- 建築条件なし
-
現地見学会開催中! 2026年4月4日(土)〜2026年4月12日(日) 11:00〜16:00
●JR南武線「谷保」駅 徒歩7分
●ハウスメーカーからプランまでフルオーダーで自由にマイホームがつくれる、建築条件のない宅地分譲
●フリースタイル分譲地で、個性あふれる住まいを実現いたしませんか?
●充実した新たな生活を、「あったらいいな」がある、この地から始めてみませんか?鮮やかな青空と暮らすこの土地で・・・。
●周辺は落ち着いた雰囲気の住宅地です。小さなお子様がいるご家庭も安心です。
- 立川店/山田 亮太
- 毎週、土・日・祝日の11:00~16:00に現地見学会を開催中。営業スタッフが現地でお客様のご来場をお待ちし…
- 価 格
-
4,780万円〜5,080万円
- 交 通
- JR南武線『谷保』駅 徒歩7分
JR南武線『西府』駅 徒歩18分
- 所在地
- 東京都国立市谷保4319
- 土地面積
- 121.03m²〜121.05m²
- 土地権利
- 所有権
- 現況
- 更地
- 建築条件
- 建築条件なし
-
オープンハウス開催中! 2026年4月4日(土)〜2026年4月12日(日) 11:00〜16:00
●後片付けの手間を削減し、趣味の時間や家族との時間を増やせる食器洗い乾燥機を標準装備
●換気機能によってバスルーム内のカビの発生を抑制できます。夜間や雨天時の洗濯物の乾燥に便利な乾燥機能も装備。
●居住スペースを邪魔しない床下は隠れた収納スペース。特に乾燥した冬の時期の保管に活躍、効率的な利用で収納力アップ!
●住まいの事なら地元で豊富な実績を誇る、地域密着の藤和ハウスへお任せ下さい!
- 立川店/山田 亮太
- スマイルタウン玉川上水12期「MONO RESORT」は、「Simple&Stylish」をデザインコンセプ…
- 価 格
-
3,880万円〜4,580万円<税込>
- 交 通
- 西武拝島線『武蔵砂川』駅 徒歩23分〜24分
JR中央線『立川』駅 バス18分「新海道」停歩2分
- 所在地
- 東京都武蔵村山市大南1丁目172‐2
- 土地面積
- 115.04m²〜123.39m²
- 建物面積
- 88.18m²〜98.12m²
- 間取り
- 3LDK〜4LDK
- 完成年月
- 2025年10月
-
現地見学会開催中! 2026年4月4日(土)〜2026年4月12日(日) 11:00〜16:00
●西武拝島線「武蔵砂川」駅 徒歩13分
●フリースタイル分譲地で、個性あふれる住まいを実現いたしませんか?
●建築条件はございませんので、ライフスタイルに合わせた自由なマイホームづくりが可能です。
●充実した新たな生活を、「あったらいいな」がある、この地から始めてみませんか?
鮮やかな青空と暮らすこの土地で・・・。
●平日のご案内も可能です。まずはお気軽にお問合せ下さいませ。
- 立川店/渡部 敏哉
- お好きな間取りで快適な住まいプランがご検討可能な宅地分譲の土地情報です。ご希望内容を反映したプランと御見積書…
- 価 格
-
3,150万円〜3,680万円
- 交 通
- 西武拝島線『武蔵砂川』駅 徒歩13分
多摩都市モノレール『玉川上水』駅 徒歩19分
- 所在地
- 東京都立川市砂川町4丁目60-2
- 土地面積
- 120m²〜130m²
- 土地権利
- 所有権
- 現況
- 更地
- 建築条件
- 建築条件なし
-
現地見学会開催中! 2026年4月4日(土)〜2026年4月12日(日) 11:00〜16:00
●我が家に合った暮らしを追及できるフリープラン対応の建築条件付き土地です。
●条件内であれば自由に設計可能。注文住宅の「選ぶ楽しさ」×建売の「安心な価格」まさに注文住宅と建売の好いとこ取り!
●物件の事、諸費用の事など、小さな疑問もお気軽にご連絡・ご相談下さい。
●お住まい探しは、家の良し悪しだけでなく周辺環境も重要なポイントです。ぜひ一度お客様の目でご覧ください。
- 立川店/渡部 敏哉
- 毎週、土・日・祝日の11:00~16:00に現地見学会を開催中。営業スタッフが現地でお客様のご来場をお待ちし…
- 価 格
-
3,190万円〜3,490万円
- 交 通
- JR中央線『国立』駅 バス6分「変電所前」停歩10分
西武国分寺線『鷹の台』駅 徒歩25分
- 所在地
- 東京都立川市若葉町3丁目59-5
- 土地面積
- 115.11m²〜120.11m²
- 土地権利
- 所有権
- 現況
- 更地
- 建築条件
- 建築条件付き
-
現地見学会開催中! 2026年4月4日(土)〜2026年4月12日(日) 11:00〜16:00
●ご家族の様子がわかり、会話も楽しめる対面式システムキッチン
●各居室にはクローゼットを完備し、家具を置くスペースが確保しやすい設計がされております。
●住まいの事なら地元で豊富な実績を誇る、地域密着の藤和ハウスへお任せ下さい!
- 立川店/山田 亮太
- 毎週、土・日・祝日の11:00~16:00に現地見学会を開催中。営業スタッフが現地でお客様のご来場をお待ちし…
- 価 格
-
4,390万円<税込>
- 交 通
- JR中央線『国立』駅 徒歩30分
西武拝島線『東大和市』駅 徒歩32分
- 所在地
- 東京都立川市若葉町1丁目31‐1
- 土地面積
- 91.7m²
- 建物面積
- 73.34m²
- 間取り
- 3LDK
- 完成年月
- 2026年4月
-
現地見学会開催中! 2026年4月4日(土)〜2026年4月12日(日) 11:00〜16:00
●床暖房で足元ぽかぽか
●家族が揃って食事できるゆとりある大きさのLDK15帖 以上
●ご家族の様子がわかり、会話も楽しめる対面式システムキッチン
●全居室南向きで明るく、冬場でも太陽の日差しで室内ぽかぽかです!
●大容量のウォークインクローゼットでお部屋をスッキリきれいに保てます。
●使い勝手の良い固定階段式小屋裏収納は、シーズンオフの荷物もたっぷり収納できます。
- 立川店/山田 亮太
- 周辺環境はもちろん、日当たりや設備仕様など、実際に行ってみないと分からないことも多くございます。営業担当がご…
- 価 格
-
5,640万円〜5,680万円<税込>
- 交 通
- 西武拝島線『東大和市』駅 徒歩10分
JR中央線『立川』駅 バス26分「武蔵野美術大学」停歩9分
- 所在地
- 東京都小平市小川町1丁目336
- 土地面積
- 127m²〜127.8m²
- 建物面積
- 99.97m²〜102.18m²
- 間取り
- 3LDK〜3LDK
- 完成年月
- 2025年9月
-
予約制見学会開催中! 2026年4月4日(土)〜2026年4月12日(日) 11:00〜16:00
●多摩都市モノレール「砂川七番」駅 徒歩3分
●家族が揃って食事できるゆとりある大きさのLDK16帖以上
●南向きのバルコニーは日差しもたっぷり注ぎ、お洗濯物もよく乾きます。
●全居室収納スペース付き
●大容量のシューズインクロークで玄関もスッキリ
●窓付きで換気もできちゃう納戸
●ゆったり1坪サイズの浴室で1日の疲れをリセット
- 立川店/山田 亮太
- 多摩都市モノレール「砂川七番」駅 徒歩3分!
毎週、土・日・祝日の11:00~16:00に予約制見学会を開…
- 価 格
-
4,980万円<税込>
- 交 通
- 多摩都市モノレール『砂川七番』駅 徒歩3分
多摩都市モノレール『玉川上水』駅 徒歩11分
- 所在地
- 東京都立川市柏町3丁目
- 土地面積
- 100.78m²
- 建物面積
- 91.9m²
- 間取り
- 1LDK
- 完成年月
- 2026年2月
-
現地見学会開催中! 2026年4月4日(土)〜2026年4月12日(日) 11:00〜16:00
●希望を叶える為に参考プランをご用意しております♪
●一戸建ての多いエリアのため、静かで落ち着いた雰囲気の街並みです
●物件の事、諸費用の事など、小さな疑問もお気軽にご相談下さい!
●平日のご案内も可能です。まずはお気軽にお問合せ下さいませ
- 立川店/山田 亮太
- 毎週、土・日・祝日の11:00~16:00に現地見学会を開催中。営業スタッフが現地でお客様のご来場をお待ちし…
- 価 格
-
3,250万円<税込>
- 交 通
- JR中央線『国立』駅 徒歩30分
JR中央線『国立』駅 バス12分「高木町」停歩7分
- 所在地
- 東京都立川市若葉町1丁目
- 土地面積
- 115.98m²
- 土地権利
- 所有権
- 現況
- 更地
- 建築条件
- 建築条件付き
-
現地見学会開催中! 2026年4月4日(土)〜2026年4月12日(日) 11:00〜16:00
●建築条件はございませんので、ライフスタイルに合わせた自由なマイホームづくりが可能です。
●フリースタイル分譲地で、個性あふれる住まいを実現いたしませんか?
●充実した新たな生活を、「あったらいいな」がある、この地から始めてみませんか?鮮やかな青空と暮らすこの土地で・・・。
●周辺は落ち着いた雰囲気の住宅地です。小さなお子様がいるご家庭も安心です。
- 立川店/山田 亮太
- 毎週、土・日・祝日の11:00~16:00に現地見学会を開催中。営業スタッフが現地でお客様のご来場をお待ちし…
- 価 格
-
4,780万円〜4,880万円
- 交 通
- 西武拝島線『玉川上水』駅 徒歩13分
多摩都市モノレール『砂川七番』駅 徒歩13分
- 所在地
- 東京都立川市幸町5丁目109
- 土地面積
- 125.66m²〜128.31m²
- 土地権利
- 所有権
- 現況
- 更地
- 建築条件
- 建築条件なし
-
現地見学会開催中! 2026年4月4日(土)〜2026年4月12日(日) 11:00〜16:00
●フリースタイル分譲地で、個性あふれる住まいを実現いたしませんか?
●建築条件はございませんので、ライフスタイルに合わせた自由なマイホームづくりが可能です。
●充実した新たな生活を、「あったらいいな」がある、この地から始めてみませんか?鮮やかな青空と暮らすこの土地で・・・。
●周辺は落ち着いた雰囲気の住宅地です。小さなお子様がいるご家庭も安心です。
- 立川店/山田 亮太
- 毎週、土・日・祝日の11:00~16:00に現地見学会を開催中。営業スタッフが現地でお客様のご来場をお待ちし…
- 価 格
-
3,780万円〜4,680万円
- 交 通
- 多摩都市モノレール『泉体育館』駅 徒歩20分
JR中央線『立川』駅 バス21分「榎戸弁天」停歩6分
- 所在地
- 東京都立川市幸町3丁目6
- 土地面積
- 120.04m²〜126.11m²
- 土地権利
- 所有権
- 現況
- 更地
- 建築条件
- 建築条件なし
-
現地見学会開催中! 2026年4月4日(土)〜2026年4月12日(日) 11:00〜16:00
●建築条件はございません、ライフスタイルに合わせた自由なマイホームづくりが可能です
●ハウスメーカーから建物プランまで、あなたの「夢」を「カタチ」にできる
フリースタイル分譲地で、夢のマイホームを建築してみませんか?
●住まいの事なら地元で豊富な実績を誇る、地域密着の当社へお任せ下さい!
●平日のご案内も可能です、まずはお気軽にお問合せ下さいませ
- 立川店/山田 亮太
- 毎週、土・日・祝日の11:00~16:00に現地見学会を開催中。営業スタッフが現地でお客様のご来場をお待ちし…
- 価 格
-
6,980万円〜7,480万円
- 交 通
- JR中央線『立川』駅 徒歩11分
多摩都市モノレール『立川南』駅 徒歩10分
- 所在地
- 東京都立川市柴崎町1丁目14‐10
- 土地面積
- 110m²〜134.2m²
- 土地権利
- 所有権
- 現況
- 更地
- 建築条件
- 建築条件なし
-
現地見学会開催中! 2026年4月4日(土)〜2026年4月12日(日) 11:00〜16:00
●充実した新たな生活を、「あったらいいな」がある、この地から始めてみませんか?鮮やかな青空と暮らすこの土地で・・。
●周辺は落ち着いた雰囲気の住宅地です。小さなお子様がいるご家庭も安心です。
●我が家に合った暮らしを追及できるフリープランの建築条件付き土地で、夢のマイホームを建築してみませんか?
●平日のご案内も可能です。まずはお気軽にお問合せ下さいませ。
- 立川店/渡部 敏哉
- 毎週、土・日・祝日の11:00~16:00に現地見学会を開催中。営業スタッフが現地でお客様のご来場をお待ちし…
- 価 格
-
3,190万円〜3,790万円
- 交 通
- JR中央線『国立』駅 徒歩29分
西武拝島線『東大和市』駅 徒歩34分
- 所在地
- 東京都立川市若葉町2丁目30-3
- 土地面積
- 115m²〜206.5m²
- 土地権利
- 所有権
- 現況
- 更地
- 建築条件
- 建築条件付き
-
現地見学会開催中! 2026年4月4日(土)〜2026年4月12日(日) 11:00〜16:00
●JR中央線「立川」駅 徒歩10分
●エコジョーズで省エネを実現
●キッチンには家事時間を短縮する食洗機付き
●空気を汚さず暖かい床暖房
●コミュニケーション重視のリビングイン階段
●ご家族の様子がわかり、会話も楽しめる対面式システムキッチン
●窓付きで換気もできちゃう納戸
●全居室収納スペース付き
●愛車を守るビルトインガレージ!アウトドア用品のお手入れにも便利です!
- 立川店/山田 亮太
- 毎週、土・日・祝日の11:00~16:00に現地見学会を開催中。営業スタッフが現地でお客様のご来場をお待ちし…
- 価 格
-
6,499万円<税込>
- 交 通
- JR中央線『立川』駅 徒歩10分
JR南武線『西国立』駅 徒歩13分
- 所在地
- 東京都立川市錦町2丁目9-4
- 土地面積
- 60.15m²
- 建物面積
- 97.84m²
- 間取り
- 1LDK
- 完成年月
- 2026年1月
-
現地見学会開催中! 2026年4月4日(土)〜2026年4月12日(日) 11:00〜16:00
●我が家に合った暮らしを追及できるフリープランの建築条件付き土地で、夢のマイホームを建築してみませんか?
●夢に描いたわが家。あなたの「想い」を「カタチ」にするフリー設計分譲地
●理想の暮らしを実現する為にはどんな間取りが良いか。希望を叶える為に参考プランをご用意しておりますので、是非お役立て下さい。
- 立川店/渡部 敏哉
- 夢に描いたわが家。あなたの「想い」を「カタチ」にするフリー設計分譲地。前面道路幅も約5mあるので、全体として…
- 価 格
-
3,880万円
- 交 通
- JR南武線『西府』駅 徒歩14分
JR南武線『谷保』駅 徒歩17分
- 所在地
- 東京都府中市西府町3丁目27-10
- 土地面積
- 112.81m²
- 土地権利
- 所有権
- 現況
- 造成中
- 建築条件
- 建築条件付き
-
現地見学会開催中! 2026年4月4日(土)〜2026年4月12日(日) 11:00〜16:00
●フリースタイル分譲地で、個性あふれる住まいを実現いたしませんか?
●建築会社を自由にセレクトできる土地分譲で理想の暮らしを叶えて下さい
●充実した新たな生活を、「あったらいいな」がある、この地から始めてみませんか?鮮やかな青空と暮らすこの土地で・・・。
●周辺は落ち着いた雰囲気の住宅地です。小さなお子様がいるご家庭も安心です。
●平日のご案内も可能です。まずはお気軽にお問合せ下さいませ。
- 立川店/静間 透
- 毎週、土・日・祝日の11:00~16:00に現地見学会を開催中。営業スタッフが現地でお客様のご来場をお待ちし…
- 価 格
-
4,680万円
- 交 通
- JR中央線『立川』駅 バス9分「昭和第一学園」停歩3分
多摩都市モノレール『立飛』駅 徒歩20分
- 所在地
- 東京都立川市栄町2丁目52-20
- 土地面積
- 129.24m²
- 土地権利
- 所有権
- 現況
- 更地
- 建築条件
- 建築条件なし
-
現地見学会開催中! 2026年4月4日(土)〜2026年4月12日(日) 11:00〜16:00
●我が家に合った暮らしを追及できるフリープランの建築条件付き土地で、夢のマイホームを建築してみませんか?
●理想の暮らしを実現する為にはどんな間取りが良いか。希望を叶える為に参考プランをご用意しておりますので、是非お役立て下さい。
●充実した新たな生活を、「あったらいいな」がある、この地から始めてみませんか?鮮やかな青空と暮らすこの土地で・・・。
- 立川店/山田 亮太
- 夢に描いたわが家。あなたの「想い」を「カタチ」にするフリー設計分譲地。前面道路幅も約5mあるので、全体として…
- 価 格
-
5,180万円
- 交 通
- JR南武線『西府』駅 徒歩14分
JR南武線『谷保』駅 徒歩16分
- 所在地
- 東京都府中市西府町3丁目26-23
- 土地面積
- 265.85m²
- 土地権利
- 所有権
- 現況
- 更地
- 建築条件
- 建築条件付き
-
現地見学会開催中! 2026年4月4日(土)〜2026年4月12日(日) 11:00〜16:00
*~ 全棟 ≪大型WIC≫ 付き!収納充実の全3邸 ~*
●全居室、廊下等に収納スペースを設けた、収納重視の間取りとなっています
●LDKには大きな窓が施され、明るさと通風を確保した快適な空間です
●ご家族の様子がわかり、会話も楽しめる対面式システムキッチン
●窓付き浴室はしっかり換気ができていつも清潔に♪
●洗面室・浴室・キッチンがコンパクトにまとまっているので、効率よく家事ができます
- 立川店/渡部 敏哉
- 全棟土地面積130平米以上のゆとりのある広さの全3棟です。
・長期優良住宅
・カースペース2台駐車可能(…
- 価 格
-
4,780万円〜4,880万円<税込>
- 交 通
- 西武拝島線『武蔵砂川』駅 徒歩19分
多摩都市モノレール『玉川上水』駅 徒歩20分
- 所在地
- 東京都立川市砂川町7丁目
- 土地面積
- 140.91m²〜144.16m²
- 建物面積
- 107.65m²〜109.3m²
- 間取り
- 4LDK〜4LDK
(全棟/+WIC、…) - 完成年月
- 2026年4月
-
現地見学会開催中! 2026年4月4日(土)〜2026年4月12日(日) 11:00〜16:00
●南向きのバルコニーは日差しもたっぷり注ぎ、お洗濯物もよく乾きます。
●大容量のウォークインクローゼットでお部屋をスッキリきれいに保てます。
●全居室収納スペース付き
●ご家族の様子がわかり、会話も楽しめる対面式システムキッチン
●LDKには大きな窓が施され、明るさと通風を確保した快適な空間です。
●太陽光をエネルギーに換える「太陽光発電」でエコな暮らしを!
- 立川店/静間 透
- 物件の事、諸費用の事など、小さな疑問もお気軽にご連絡・ご相談下さい。
- 価 格
-
4,480万円<税込>
- 交 通
- 西武拝島線『玉川上水』駅 徒歩13分
多摩都市モノレール『桜街道』駅 徒歩10分
- 所在地
- 東京都武蔵村山市大南5丁目20-5
- 土地面積
- 106.59m²
- 建物面積
- 85.07m²
- 間取り
- 3LDK
(+WIC) - 完成年月
- 2026年4月
-
現地見学会開催中! 2026年4月4日(土)〜2026年4月12日(日) 11:00〜17:30
●LDKは約16帖の広さで、ソファーを置いて寛げます
●南側の窓から日差しが射し込む、明るく快適なLDK
●会話を楽しみながら、家事ができる対面式システムキッチン
●南向きのバルコニーは日差しもたっぷり注ぎ、お洗濯物もよく乾きます
●お部屋の整理整頓に役立つ収納は、全居室に設置
●明るく通風良好な全室2面採光
- 価 格
-
4,590万円<税込>
- 交 通
- 西武拝島線『西武立川』駅 徒歩9分
西武拝島線『武蔵砂川』駅 徒歩27分
- 所在地
- 東京都立川市一番町2丁目
- 土地面積
- 105.13m²
- 建物面積
- 82.8m²
- 間取り
- 3LDK
- 完成年月
- 2026年5月
-
予約制見学会開催中! 2026年4月4日(土)〜2026年4月12日(日) 11:00〜16:00
●JR中央線「国立」駅 徒歩12分
●綺麗な整形地のため、思い描いているイメージをカタチにしやすい土地
●建築会社を自由にセレクトできる土地分譲で理想の暮らしを叶えて下さい
●参考プランのご用意もございます。もちろんフリープランで建築可能!
- 立川店/山田 亮太
- 東京都国立市は、「文教地区」に指定された美しい街並みが最大の魅力です。大学通りの桜や銀杏並木が四季を彩り、治…
- 価 格
-
6,798万円〜6,798万円
- 交 通
- JR中央線『国立』駅 徒歩12分
JR南武線『西国立』駅 徒歩18分
- 所在地
- 東京都国立市中1丁目
- 土地面積
- 89.39m²〜90.04m²
- 土地権利
- 所有権
- 現況
- 上物有
- 建築条件
- 建築条件なし
-
現地見学会開催中! 2026年4月4日(土)〜2026年4月12日(日) 11:00〜16:00
●ご家族の様子がわかり、会話も楽しめる対面式システムキッチン
●家族が揃って食事できるゆとりある大きさのLDK約21帖
●家族が自然と顔を合わせるリビングイン階段
●大容量のウォークインクローゼットでお部屋をスッキリきれいに保てます。
●各階にトイレがあると、階段の上り下りをせずに済むため就寝時なども便利です。
●南向きのバルコニーは日差しもたっぷり注ぎ、お洗濯物もよく乾きます。
- 立川店/山田 亮太
- 毎週、土・日・祝日の11:00~16:00に現地見学会を開催中。営業スタッフが現地でお客様のご来場をお待ちし…
- 価 格
-
5,599万円<税込>
- 交 通
- 西武拝島線『東大和市』駅 徒歩15分
西武拝島線『小川』駅 徒歩25分
- 所在地
- 東京都東大和市新堀3丁目12-14
- 土地面積
- 122.21m²
- 建物面積
- 108.96m²
- 間取り
- 4LDK
(+WIC、SIC) - 完成年月
- 2026年6月
-
予約制見学会開催中! 2026年4月4日(土)〜2026年4月12日(日) 11:00〜16:00
●建築条件はございませんので、ライフスタイルに合わせた自由なマイホームづくりが可能です。
●思い描いていた理想の家を、この土地で実現させてみませんか?
●新生活は徒歩10分の「東大和市」駅から始めませんか?
●参考プランの無料作成も承らせていただきます。
●周辺環境と合わせてご案内いたします。
●平日のご案内も可能です。まずはお気軽にお問合せくださいませ。
- 立川店/渡部 敏哉
- 経験豊かなスタッフが分譲地だけでなく学校、スーパー、公園と周辺環境も合わせてご案内致します。
- 価 格
-
3,680万円
- 交 通
- 西武拝島線『東大和市』駅 徒歩10分
- 所在地
- 東京都小平市小川町1丁目
- 土地面積
- 127.8m²
- 土地権利
- 所有権
- 現況
- 上物有
- 建築条件
- 建築条件なし
-
現地見学会開催中! 2026年4月4日(土)〜2026年4月12日(日) 11:00〜17:30
●我が家に合った暮らしを追及できるフリープランの分譲地です。ぜひ皆様の「こんな家に住みたい!」をお聞かせ下さい。
●理想をかなえる自由設計の土地!ぜひ皆様の「こんな家に住みたい!」をお聞かせ下さい。
●平日のご案内も可能です。まずはお気軽にお問合せ下さいませ。
- 立川店/渡部 敏哉
- 立川市砂川町8丁目に全13区画の新たな街区が誕生します!
周辺環境もあわせてご案内いたします。ぜひ、お気軽…
- 価 格
-
2,440万円〜3,640万円
- 交 通
- 西武拝島線『武蔵砂川』駅 徒歩12分
JR中央線『立川』駅 バス14分「砂川町八丁目」停歩3分
- 所在地
- 東京都立川市砂川町8丁目
- 土地面積
- 115.01m²〜124.1m²
- 土地権利
- 所有権
- 現況
- 更地
- 建築条件
- 建築条件付き
-
現地見学会開催中! 2026年4月4日(土)〜2026年4月12日(日) 11:00〜16:00
●家族が揃って食事できるゆとりある大きさのLDK15帖以上
●ご家族の様子がわかり、会話も楽しめる対面式システムキッチン
●南向きのバルコニーは日差しもたっぷり注ぎ、お洗濯物もよく乾きます。
●大容量のウォークインクローゼットでお部屋をスッキリきれいに保てます。
●充実した新たな生活を、「あったらいいな」がある、この地から始めてみませんか?鮮やかな青空と暮らすこの土地で・・・。
- 立川店/渡部 敏哉
- 毎週、土・日・祝日の11:00~16:00に現地見学会を開催中。営業スタッフが現地でお客様のご来場をお待ちし…
- 価 格
-
4,190万円〜4,690万円<税込>
- 交 通
- JR中央線『国立』駅 バス6分「変電所前」停歩10分
JR中央線『立川』駅 バス24分「若葉町団地」停歩6分
- 所在地
- 東京都立川市若葉町3丁目59-5
- 土地面積
- 115.1m²〜116.9m²
- 建物面積
- 89.42m²〜91.5m²
- 間取り
- 3LDK〜4LDK
- 完成年月
- 2026年7月
-
現地見学会開催中! 2026年3月28日(土)〜2026年4月5日(日) 11:00〜16:00
●理想の暮らしを追求できる条件付売地
●思い描いていた理想の家を、この土地で実現させてみませんか?
●注文住宅ほどはこだわらないが、家族の意見や好みを取り入れた家にしたい
●家族構成や生活スタイルに合わせてセミオーダーで建築可能
●新築一戸建て、建売をお探しの方にもオススメです
- 大泉学園店/非々 慎平
- 駅までバス便ですが、お天気の良い日には健康のためウォーキングがてら歩くのもオススメです。周辺環境もあわせてご…
- 価 格
-
4,980万円
- 交 通
- 西武池袋線『大泉学園』駅 バス27分「大泉学園町五丁目」停歩1分
東京メトロ有楽町線『地下鉄成増』駅 バス24分「大泉郵便局」停歩10分
- 所在地
- 東京都練馬区大泉学園町5丁目29-6
- 土地面積
- 135.3m²
- 土地権利
- 所有権
- 現況
- 更地
- 建築条件
- 建築条件付き
-
現地見学会開催中! 2026年3月28日(土)〜2026年4月5日(日) 11:00〜16:00
*・* 断熱性能を高めた、 ZEH水準の快適住宅 *・*
●静音性や省エネ性に優れ、時間短縮に活躍する食器洗浄乾燥機
●約24帖以上のゆったりリビング
家族でテーブルを囲む素敵な時間をお愉しみ下さい
●床暖房で足元ぽかぽか
●釣り・キャンプ・ゴルフ用品など、多趣味なご家族には土間収納が便利
●リビングにいるご家族を見渡せる対面キッチン
- 大泉学園店/非々 慎平
- 西武池袋線「大泉学園」駅 徒歩12分!暮らしの質を高める住空間。ZEH水準の快適住宅◎キッチンにはエコと家事…
- 価 格
-
9,699万円〜9,999万円<税込>
- 交 通
- 西武池袋線『大泉学園』駅 徒歩12分
西武新宿線『上石神井』駅 バス9分「第五上石神井住宅」停歩6分
- 所在地
- 東京都練馬区東大泉6丁目16
- 土地面積
- 108.35m²〜110.38m²
- 建物面積
- 107.64m²〜109.71m²
- 間取り
- 2SLDK〜4LDK
(全棟+土間収納 …) - 完成年月
- 2026年8月
-
現地見学会開催中! 2026年3月28日(土)〜2026年4月5日(日) 10:30〜16:00
◆都営大江戸線の始発駅「光が丘」駅より徒歩18分
◆全区画30坪超えのゆとりある土地
◆我が家に合った暮らしを追及できるフリープランの建築条件付き土地
◆全区画に参考プランをご用意いたしました。もちろんフリープランで建築可能!
- 大泉学園店/非々 慎平
- 都営大江戸線始発駅の「光が丘」駅まで徒歩18分。
全6区画のフリープラン対応住宅です。
ご希望の間取りで…
- 価 格
-
5,490万円〜5,790万円
- 交 通
- 都営大江戸線『光が丘』駅 徒歩18分
東京メトロ有楽町線『地下鉄成増』駅 徒歩25分
- 所在地
- 東京都練馬区土支田1丁目15
- 土地面積
- 110m²〜110.01m²
- 土地権利
- 所有権
- 現況
- 更地
- 建築条件
- 建築条件付き
-
オープンハウス開催中! 2026年3月28日(土)〜2026年4月5日(日) 11:00〜16:00
●西武池袋線「石神井公園」駅 徒歩23分!
●長期優良住宅♪
●太陽光発電付き物件
●繰り返す地震に効果を発揮する制震ダンパーが標準装備!地震の揺れからご家族を守ります
●来客時にも便利なカースペース2台可(車種による)
●リビングに床暖房があるので足元ぽかぽか、家族の集まる空間を暖めます。
- 大泉学園店/小倉 樹
- 急行が停車する西武池袋線「石神井公園」駅 徒歩23分♪制震ダンパーが標準装備!リビングに床暖房があるので足元…
- 価 格
-
7,280万円<税込>
- 交 通
- 西武池袋線『石神井公園』駅 徒歩23分
都営大江戸線『光が丘』駅 徒歩25分
- 所在地
- 東京都練馬区谷原6丁目23‐13
- 土地面積
- 115.6m²
- 建物面積
- 100.61m²
- 間取り
- 4LDK
(+WIC、ワーク…) - 完成年月
- 2026年3月
-
予約制見学会開催中! 2026年3月28日(土)〜2026年4月5日(日) 11:00〜16:00
●建築条件はございませんので、ライフスタイルに合わせた自由なマイホームづくりが可能です。
■ハウス会■
当社オリジナル注文住宅サポートシステム「ハウス会」で、信頼のおける建築会社のご紹介も承ります。プレゼン見積もり等お気軽にお問合せ下さい。
■セレシス■
- 大泉学園店/非々 慎平
- ■予約制見学会開催!!■ハウスメーカーからプランまでフルオーダーで自由にマイホームがつくれる、建築条件のない…
- 価 格
-
5,890万円〜6,490万円
- 交 通
- 西武池袋線『富士見台』駅 徒歩7分
西武新宿線『下井草』駅 徒歩16分
- 所在地
- 東京都練馬区富士見台2丁目
- 土地面積
- 85.24m²〜89.04m²
- 土地権利
- 所有権
- 現況
- 更地
- 建築条件
- 建築条件なし
-
予約制見学会開催中! 2026年3月28日(土)〜2026年4月5日(日) 11:00〜16:00
◆西武池袋線「保谷」駅 徒歩14分
◆角地につき開放的な立地
◆運転、駐車が苦手な方にも嬉しい前面道路6m!
◆大容量ウォークインクローゼット・シューズインクローク付き
◆タッチレス水栓や食洗機など設備が整ったハイグレードシステムキッチンを採用
◆床暖房で足元ぽかぽか(リビング)
◆ライフスタイルに合わせて4LDKから5LDKへ間取り変更可能
- 大泉学園店/非々 慎平
- 西武池袋線「保谷」駅 徒歩14分♪断熱性能を高めた、ZEH基準の住まい◎リビングに床暖房があるので足元ぽかぽ…
- 価 格
-
7,699万円<税込>
- 交 通
- 西武池袋線『保谷』駅 徒歩14分
西武新宿線『東伏見』駅 バス6分「保谷駅南口」停歩14分
- 所在地
- 東京都練馬区南大泉6丁目
- 土地面積
- 96.44m²
- 建物面積
- 96.41m²
- 間取り
- 4LDK
(+備蓄倉庫、WI…) - 完成年月
- 2026年1月
-
予約制見学会開催中! 2026年3月28日(土)〜2026年4月5日(日) 11:00〜16:00
●開放感のある東南角地
●家族の集まるLDKはゆったり約16.1帖
●リビング全体が見渡せる対面式キッチン
●調味料や消耗品のストックに便利なパントリー
●コミュニケーション重視のリビングイン階段
●キッチンには食器洗浄乾燥機、浄水器を完備
●毎日のお洗濯が苦にならない浴室暖房乾燥機
●生活時間の違う家族に便利な追焚き機能付き
●防犯に役立つTVモニター付インターフォン
- 大泉学園店/非々 慎平
- 一度、現地でのご見学はいかがでしょうか。
いつでもご対応出来ますので
お気軽にご連絡下さい!
物件のご…
- 価 格
-
5,999万円<税込>
- 交 通
- 西武池袋線『大泉学園』駅 徒歩24分
西武新宿線『武蔵関』駅 バス30分「住宅前(練馬区)」停歩13分
- 所在地
- 東京都練馬区大泉学園町3丁目
- 土地面積
- 88.74m²
- 建物面積
- 88.6m²
- 間取り
- 3LDK
(+パントリー) - 完成年月
- 2026年2月
-
予約制見学会開催中! 2026年3月28日(土)〜2026年4月5日(日) 11:00〜16:00
●前面道路はゆとりの約6m。車の出し入れも楽々です
●さまざまな用途に利用できるロフトつき
●キッチンには家事時間を短縮する食洗機付き
●いつでもおいしいお水が飲める浄水器一体型水栓も完備
●リビングにいるご家族を見渡せる対面キッチン
●南向きのバルコニーは日差しもたっぷり注ぎ、お洗濯物もよく乾きます
●全居室収納スペース付き
- 大泉学園店/非々 慎平
- 南側が開けているため、お日様の日差しもサンサンと降り注ぎます。さまざまな用途に利用できるロフトつき♪各居室に…
- 価 格
-
6,690万円〜7,090万円<税込>
- 交 通
- 西武新宿線『武蔵関』駅 徒歩19分
西武池袋線『保谷』駅 徒歩20分
- 所在地
- 東京都練馬区南大泉1丁目
- 土地面積
- 80.04m²〜85.47m²
- 建物面積
- 79.9m²〜84.87m²
- 間取り
- 3LDK〜4LDK
(全棟+ロフト) - 完成年月
- 2026年3月
-
予約制見学会開催中! 2026年3月28日(土)〜2026年4月5日(日) 11:00〜16:00
◆おすすめ設備仕様◆
・床暖房で足元ぽかぽか
・ゆったり一坪サイズの浴室
・ウォークインクローゼットは、お洋服等がたくさん収納できて便利です。
・窓付きで換気もできちゃう納戸
◆アクセス◆
都営大江戸線『光が丘』駅 徒歩15分
- 大泉学園店/非々 慎平
- ◆ZEH水準住宅◆床暖房で足元ぽかぽか♪ゆったり一坪サイズの浴室!ウォークインクローゼット、土間収納など収納…
- 価 格
-
9,499万円<税込>
- 交 通
- 都営大江戸線『光が丘』駅 徒歩15分
西武池袋線『石神井公園』駅 バス18分「土支田八幡前」停歩11分
- 所在地
- 東京都練馬区土支田2丁目
- 土地面積
- 113.47m²
- 建物面積
- 112.61m²
- 間取り
- 3LDK
(+土間収納、納戸…) - 完成年月
- 2026年4月
-
現地見学会開催中! 2026年4月4日(土)〜2026年4月12日(日) 10:30〜16:00
~住宅性能評価W取得!温水式床暖房・網戸標準装備!~
●京王井の頭線「永福町」駅 徒歩10分
●床暖房で足元ぽかぽか
●さまざまな用途に使えるロフトつき
●タッチレス水栓つき
●LDKは勾配天井により開放的な空間です
- 荻窪店/梅崎 薫
- 【2駅3路線が徒歩12分圏内】
京王井の頭線「永福町」駅より徒歩10分!
京王線・東急世田谷線「下高井戸…
- 価 格
-
9,980万円<税込>
- 交 通
- 京王井の頭線『永福町』駅 徒歩10分
京王線『下高井戸』駅 徒歩12分
- 所在地
- 東京都杉並区永福2丁目
- 土地面積
- 77.47m²
- 建物面積
- 92.12m²
- 間取り
- 3LDK
(+ロフト) - 完成年月
- 2026年7月
-
現地見学会開催中! 2026年4月4日(土)〜2026年4月12日(日) 10:30〜16:00
~低炭素住宅~
■□設備・構造□■
・耐震+制震 繰り返す地震に効果を発揮する制震ダンパー!
・太陽光発電パネル設置!
・家族の集まるLDKはゆったり約18帖!
・キッチンから見渡せるリビングダイニングで、お料理中も会話が弾みます。
・小屋裏収納は、シーズンオフの荷物もたっぷり収納できます。
- 荻窪店/梅崎 薫
- JR中央線「荻窪」駅 徒歩9分!リビングはゆったり約18帖~♪周辺環境はもちろん、日当たりや設備仕様など、実…
- 価 格
-
1億1,780万円〜1億4,180万円<税込>
- 交 通
- JR中央線『荻窪』駅 徒歩9分
JR総武線『荻窪』駅 徒歩11分
- 所在地
- 東京都杉並区天沼2丁目15-16
- 土地面積
- 103.08m²〜110.11m²
- 建物面積
- 102.06m²〜103.46m²
- 間取り
- 4LDK〜4LDK
(A号棟/+SIC…) - 完成年月
- 2026年5月
-
現地見学会開催中! 2026年4月4日(土)〜2026年4月12日(日) 10:30〜16:00
『富士見ヶ丘』駅 徒歩10分♪近隣にコンビニやスーパーあり!
一戸建ての多いエリアのため、静かで落ち着いた雰囲気の街並みです。
セミオーダー型住宅のご提案です。
「こんな部屋を作りたい」「こんな風に暮らしたい」というお客様の夢をぜひお聞かせください。
◆アクセス◆
京王井の頭線『富士見ヶ丘』駅 徒歩10分
京王井の頭線『高井戸』駅 徒歩15分
- 荻窪店/梅崎 薫
- ◆現地見学会開催中◆~セミオーダー型住宅のご提案です~
周辺は落ち着いた雰囲気の住宅地♪
平日のご案内も…
- 価 格
-
6,490万円〜8,490万円
- 交 通
- 京王井の頭線『富士見ヶ丘』駅 徒歩10分
京王井の頭線『高井戸』駅 徒歩15分
- 所在地
- 東京都杉並区宮前1丁目6-1
- 土地面積
- 77.08m²〜81.22m²
- 土地権利
- 所有権
- 現況
- 更地
- 建築条件
- 建築条件付き
-
現地見学会開催中! 2026年4月4日(土)〜2026年4月12日(日) 10:30〜16:00
◆おすすめ設備・仕様◆
・さまざまな用途に利用できる小屋裏収納
・収納力豊富なウォークインクローゼット
・家族との会話も弾む対面式キッチン
・プライバシー性の高い2階リビング
・ゆったり1坪サイズの浴室
◆アクセス◆
西武新宿線『上井草』駅 徒歩15分
JR総武線『西荻窪』駅 バス5分「今川三丁目」停歩1分
西武新宿線『上石神井』駅 徒歩21分
- 荻窪店/梅崎 薫
- ◆現地見学会開催中!!◆小屋裏収納やウォークインクローゼットなど収納豊富なお住まいです♪周辺もあわせてご案内…
- 価 格
-
9,480万円<税込>
- 交 通
- 西武新宿線『上井草』駅 徒歩15分
JR総武線『西荻窪』駅 バス5分「今川三丁目」停歩1分
- 所在地
- 東京都杉並区今川4丁目28-7
- 土地面積
- 78.89m²
- 建物面積
- 78.57m²
- 間取り
- 3LDK
(+WIC、小屋裏…) - 完成年月
- 2026年10月
-
オープンハウス開催中! 2026年4月4日(土)〜2026年4月12日(日) 10:30〜16:00
◆おすすめ設備仕様◆
・ルーフバルコニーにイスとテーブルを並べれば、
プライベートなカフェスペースとなります。
・床暖房で足元ぽかぽか!
・プライバシー重視の2階リビング
・一坪サイズの浴室
・シューズインクローゼット
・対面式キッチン
◆アクセス◆
JR中央線・JR総武線『西荻窪』駅 徒歩12分
JR中央線・JR総武線・東京メトロ丸ノ内線『荻窪』駅 徒歩15分
- 荻窪店/梅崎 薫
- ★毎週【土・日・祝日】オープンハウス開催★
床暖房など充実の設備仕様♪
周辺もあわせてご案内いたします。…
- 価 格
-
1億4,800万円<税込>
- 交 通
- JR中央線『西荻窪』駅 徒歩12分
JR総武線『西荻窪』駅 徒歩12分
- 所在地
- 東京都杉並区西荻北1丁目2-15付近
- 土地面積
- 72.12m²
- 建物面積
- 139.53m²
- 間取り
- 5LDK
(+SIC) - 完成年月
- 2026年2月
-
現地見学会開催中! 2026年4月4日(土)〜2026年4月12日(日) 10:30〜16:00
◆おすすめ設備・仕様◆
・太陽光パネル+ 蓄電池で電気代を節約
・食器洗浄乾燥機、浄水器一体型水栓を搭載したシステムキッチン
・衣類やバッグなど大量に収納できる大型のウォークインクローゼット
・いざという時の保存食材や災害備蓄品などを収納できる便利な床下収納
・電気自動車の充電の際に必要な200V の専用コンセント
・外出や旅行中でも郵便物や荷物を受け取ることができる宅配ボックス付き
- 荻窪店/梅崎 薫
- ZEH水準住宅♪太陽光パネル+ 蓄電池で電気代を節約◎ウォークインクローゼットなど収納豊富なお住まいです!周…
- 価 格
-
1億2,180万円<税込>
- 交 通
- 西武池袋線『桜台』駅 徒歩6分
西武有楽町線『新桜台』駅 徒歩6分
- 所在地
- 東京都練馬区桜台1丁目36
- 土地面積
- 98.41m²
- 建物面積
- 125.26m²
- 間取り
- 2SLDK
(+WIC、DEN) - 完成年月
- 2026年6月
-
予約制見学会開催中! 2026年3月28日(土)〜2026年4月5日(日) 11:00〜16:00
●西武池袋線「大泉学園」駅 徒歩10分
●後片付けの手間を削減し、趣味の時間や家族との時間を増やせる食器洗い乾燥機を標準装備
●いつでもおいしいお水が飲める浄水器一体型水栓も完備
●雨天時の洗濯物や浴室内のカビ防止としても活躍する浴室換気乾燥機
●大容量のウォークインクローゼットでお部屋をスッキリきれいに保てます
●全居室収納スペース付き!
●周辺環境も合わせてご案内いたします
- 大泉学園店/非々 慎平
- 西武池袋線「大泉学園」駅 徒歩10分です♪リビングに床暖房があるので足元ぽかぽか、家族の集まる空間を暖めます…
- 価 格
-
8,799万円<税込>
- 交 通
- 西武池袋線『大泉学園』駅 徒歩10分
西武新宿線『武蔵関』駅 バス11分「学芸大附属前」停歩10分
- 所在地
- 東京都練馬区東大泉7丁目
- 土地面積
- 100.61m²
- 建物面積
- 112.2m²
- 間取り
- 2SLDK
(+WIC) - 完成年月
- 2026年1月
-
オープンハウス開催中! 2026年3月28日(土)〜2026年4月5日(日) 11:00〜16:00
*・*―――断熱性能を高めた、 ZEH水準の快適住宅 ―――*・*
●全40棟のビッグタウン♪
●長期優良住宅
●いつでもおいしいお水が飲める浄水器一体型水栓も完備
●浴室換気乾燥機付きユニットバス!
●温水洗浄機能付きトイレ
●床下には収納スペースも確保♪
●防犯に役立つTVモニター付インターフォン
●同時期に生活をスタートさせるご家族の多い分譲地は、困ったときも心強い存在になりそうですね!
- 大泉学園店/非々 慎平
- 全40棟の大型分譲地ならではの多彩なバリエーションの間取りで、ご家族皆様のライフスタイルに合った邸宅がきっと…
- 価 格
-
3,680万円〜4,380万円<税込>
- 交 通
- 西武池袋線『大泉学園』駅 バス17分「片山二丁目」停歩12分
西武池袋線『ひばりヶ丘』駅 バス15分「あけぼの住宅前」停歩14分
- 所在地
- 埼玉県新座市池田4丁目4-8
- 土地面積
- 105.19m²〜110.31m²
- 建物面積
- 94.4m²〜100.4m²
- 間取り
- 3LDK〜4LDK
(14・18・31…) - 完成年月
- 2025年11月
-
予約制見学会開催中! 2026年4月4日(土)〜2026年4月12日(日) 10:30〜17:30
\\ 新規分譲 7区画 //
■家族や仲間が集うLDKは約16~18.5帖あり、ゆったりと寛げる空間です
■採光溢れるリビングで、家族団らんのひと時をお過ごし下さい
■ビルトイン食洗機を標準完備し、家事時間が短縮できます
■隙間のないなめらかな人造大理石の一体型システムキッチン
■三面鏡付きの洗面台。鏡の裏にも収納があり、歯ブラシや化粧品等もすっきり収納できます
- 久米川店/加藤 卓也
- 周辺環境はもちろん、日当たりや設備仕様など、実際に行ってみないと分からないことも多くございます。営業担当がご…
- 価 格
-
3,990万円〜4,490万円<税込>
- 交 通
- 西武多摩湖線『武蔵大和』駅 徒歩8分
西武西武園線『西武園』駅 徒歩25分
- 所在地
- 東京都東村山市廻田町2丁目
- 土地面積
- 115.02m²〜120.02m²
- 建物面積
- 90.18m²〜92.34m²
- 間取り
- 3LDK〜4LDK
- 完成年月
- 2025年12月
-
予約制見学会開催中! 2026年4月4日(土)〜2026年4月12日(日) 10:30〜17:30
●敷地面積はゆとりある110㎡以上!
●4LDKの間取りでプライベート空間を満喫!
●ご家族の様子がわかり、会話も楽しめる対面式システムキッチン
●南向きのバルコニーは日差しもたっぷり注ぎ、お洗濯物もよく乾きます。
●マイカーを2台所有されているご家庭に嬉しいカースペース2台駐車可(車種による)
- 久米川店/岡田 孝憲
- お住まい探しは、家の良し悪しだけでなく周辺環境も重要なポイントです。ぜひ一度お客様の目でご覧ください。
- 価 格
-
4,690万円<税込>
- 交 通
- 西武新宿線『東村山』駅 徒歩21分
西武国分寺線『東村山』駅 徒歩21分
- 所在地
- 東京都東村山市久米川町2丁目
- 土地面積
- 120.15m²
- 建物面積
- 95.63m²
- 間取り
- 4LDK
(D号棟/+パント…) - 完成年月
- 2026年2月
-
予約制見学会開催中! 2026年4月4日(土)〜2026年4月12日(日) 10:30〜17:30
【複数路線ご利用いただける便利な立地】
JR武蔵野線『新秋津』駅 徒歩10分 / 西武池袋線『秋津』駅 徒歩14分 他
●暮らしの質を高める住空間。ZEH水準の快適住宅
●住宅性能評価取得済み
●中でも耐震等級は最も高いランク取得
●省エネ性能ラベル取得
●一戸建ての多いエリアのため、静かで落ち着いた雰囲気の街並みです
●複数のスーパーが徒歩圏内で、毎日のお買い物に便利です
- 久米川店/岡田 孝憲
- 藤和ハウス久米川店にて予約制見学会を開催中!お住まい探しは、家の良し悪しだけでなく周辺環境も重要なポイントで…
- 価 格
-
5,790万円<税込>
- 交 通
- JR武蔵野線『新秋津』駅 徒歩10分
西武池袋線『秋津』駅 徒歩14分
- 所在地
- 東京都東村山市秋津町2丁目
- 土地面積
- 119.34m²
- 建物面積
- 103.08m²
- 間取り
- 4LDK
(1号棟/+WIC…) - 完成年月
- 2026年4月
-
現地見学会開催中! 2026年4月4日(土)〜2026年4月12日(日) 10:30〜17:30
*~ 建築条件なし / 複数のバス停が徒歩圏内で広がるアクセス ~*
所沢・新所沢街道沿いには商業施設が点在しており生活利便性良好です♪
◆ハウス会の紹介
「注文住宅をもっと身近に」そんな想いをこめて、信頼できる建築会社で組織した
当社オリジナルの注文住宅建築システム「ハウス会」もご利用可能です。
◆セレシスの紹介
当社オリジナルの注文住宅サポートシステム「セレシス」で、
- 久米川店/加藤 卓也
- 藤和ハウスが提携している信頼できる建築会社のご紹介も可能です!注文住宅を建てたいけど、まだ建築会社が決まって…
- 価 格
-
3,180万円〜3,280万円
- 交 通
- 西武池袋線『清瀬』駅 バス11分「下里団地」停歩4分
西武新宿線『久米川』駅 バス11分「全生園角」停歩6分
- 所在地
- 東京都東村山市青葉町1丁目
- 土地面積
- 110.01m²〜110.01m²
- 土地権利
- 所有権
- 現況
- 更地
- 建築条件
- 建築条件なし
-
オープンハウス開催中! 2026年4月4日(土)〜2026年4月12日(日) 11:00〜17:00
●西武新宿線・国分寺線・西武園線「東村山」駅 徒歩約17分
●分譲地内の開発道路は5mあるので、車の出し入れも楽々です。
●保育園や幼稚園、小中学校が徒歩圏内
●さらに公園も近くにあるため、子育て環境充実のエリアです♪
●同時期に生活をスタートさせるご家族の多い分譲地は、困ったときも心強い存在になりそうですね!
各棟、個性的な間取りでご家族皆様のニーズにこたえます。
- 久米川店/岡田 孝憲
- 日々の生活を豊かに、暮らしを心地良くする先進の設備。
建物完成済のため、いつでもご内覧可能です。ぜひ実物を…
- 価 格
-
4,880万円<税込>
- 交 通
- 西武西武園線『東村山』駅 徒歩17分
西武新宿線『東村山』駅 徒歩17分
- 所在地
- 東京都東村山市久米川町3丁目15-16
- 土地面積
- 114m²
- 建物面積
- 100.19m²
- 間取り
- 3LDK
(2・3号棟/+W…) - 完成年月
- 2026年2月
-
予約制見学会開催中! 2026年4月4日(土)〜2026年4月12日(日) 10:30〜17:30
◆おすすめ設備仕様◆
・ZEH水準住宅!
・コミュニケーション重視のリビングイン階段
・一坪サイズの浴室♪
・床暖房で足元ぽかぽかです。
・対面式キッチン+食洗器付き
・土間収納、ウォークインクローゼットありの収納豊富なお住まいです。
・上部吹抜により開放感あり
◆アクセス◆
西武新宿線・西武西武園線・西武国分寺線『東村山』駅 徒歩19分
- 久米川店/海老原 浩二
- 収納充実の間取りです!
周辺環境と併せご案内致します。お気軽にお問い合わせ下さいませ!
- 価 格
-
4,999万円〜5,199万円<税込>
- 交 通
- 西武新宿線『東村山』駅 徒歩19分
西武西武園線『東村山』駅 徒歩19分
- 所在地
- 東京都東村山市諏訪町1丁目
- 土地面積
- 120.76m²〜120.88m²
- 建物面積
- 105.18m²〜105.72m²
- 間取り
- 3LDK〜4LDK
(全棟/+土間収納…) - 完成年月
- 2026年4月
-
予約制見学会開催中! 2026年4月4日(土)〜2026年4月12日(日) 10:30〜17:30
*~ 閑静な住宅街 / 前面道路約6.0m ~*
西武新宿線&西武拝島線『小平』駅 徒歩23分
徒歩3分ほどの距離にバス停「ガスミュージアム入口」もございます
バス便のご利用で多方面へアクセス可能なうれしい立地♪
◆いつでもおいしいお水が飲める浄水器一体型水栓も完備
◆浴室換気乾燥機は梅雨の時期等、なかなか乾かない洗濯物を干すのに役立ちます!
- 久米川店/西條 航
- ◎西武新宿線&西武拝島線『小平』駅 徒歩23分 ◎徒歩3分にバス停もございます
◎お気軽にお問い合わせく…
- 価 格
-
5,799万円<税込>
- 交 通
- 西武新宿線『小平』駅 徒歩23分
西武拝島線『小平』駅 徒歩23分
- 所在地
- 東京都小平市大沼町4丁目
- 土地面積
- 103.58m²
- 建物面積
- 122.55m²
- 間取り
- 3LDK
- 完成年月
- 2026年4月
-
予約制見学会開催中! 2026年4月4日(土)〜2026年4月12日(日) 10:30〜17:30
●西武多摩湖線「武蔵大和」駅 徒歩約16分
●バス便で西武新宿線「久米川」駅も利用可能です。
●小屋裏収納付きの3LDK
●約18.2帖のゆとりあるリビング
●WICやSICなど収納が充実した間取りです。
●カースぺース2台あり(車種による)
- 久米川店/海老原 浩二
- 南道路整形地のため日当たり良好です!
シューズクロゼットのある広々玄関、固定階段で上がれる小屋裏収納、広い…
- 価 格
-
4,280万円<税込>
- 交 通
- 西武多摩湖線『武蔵大和』駅 徒歩16分
西武多摩湖線『八坂』駅 徒歩28分
- 所在地
- 東京都東村山市富士見町3丁目
- 土地面積
- 114.59m²
- 建物面積
- 97.91m²
- 間取り
- 3LDK
(+WIC、SIC…) - 完成年月
- 2026年6月
-
予約制見学会開催中! 2026年4月4日(土)〜2026年4月12日(日) 10:30〜17:30
●西武新宿線「久米川」駅まで徒歩約10分の好立地
●ZEH水準の省エネ住宅の誕生です☆彡
●ご家族が多いファミリーに嬉しい4LDKの間取り
●ゆとりある21帖超のLDK
- 久米川店/加藤 卓也
- 西武新宿線「久米川」駅まで徒歩10分!全3棟のZEH水準の省エネ住宅の誕生です。どうぞお気軽にお問い合わせ下…
- 価 格
-
5,999万円〜6,099万円<税込>
- 交 通
- 西武新宿線『久米川』駅 徒歩10分
西武拝島線『萩山』駅 徒歩19分
- 所在地
- 東京都東村山市恩多町3丁目
- 土地面積
- 114.86m²〜116.24m²
- 建物面積
- 108.06m²〜108.47m²
- 間取り
- 4LDK〜4LDK
(1・2号棟/+S…) - 完成年月
- 2026年6月
-
予約制見学会開催中! 2026年4月4日(土)〜2026年4月12日(日) 10:30〜17:30
●ご家族が多いファミリーに嬉しい全棟4LDKの間取りです。
●リビングにいるご家族を見渡せる対面キッチン
●1階にはファミリークロークを設置しました(4号棟は除く)
●水回りをコンパクトにまとめているので、家事動線良好
●近隣にはスーパーやドラッグストア、コンビニが多数ありお買い物環境充実の立地です。
●周辺は落ち着いた雰囲気の住宅地です。小さなお子様がいるご家庭も安心♪
- 久米川店/岡田 孝憲
- 藤和ハウス久米川店にて現地見学会を開催中! 物件の事、諸費用の事など、どんなに小さな疑問でもお気軽にご相談下…
- 価 格
-
4,190万円〜4,890万円<税込>
- 交 通
- 西武新宿線『東村山』駅 徒歩18分
西武国分寺線『東村山』駅 徒歩18分
- 所在地
- 東京都東村山市久米川町2丁目
- 土地面積
- 114.62m²〜117.17m²
- 建物面積
- 102.06m²〜106.92m²
- 間取り
- 4LDK〜4LDK
(1・2・3・5号…) - 完成年月
- 2026年5月
-
現地見学会開催中! 2026年4月4日(土)〜2026年4月12日(日) 10:30〜17:30
●「武蔵大和」駅徒歩7分に加え、バス便利用で主要駅の「立川」駅にもアクセスでき、行動範囲が大きく広げられる立地です。
●フリースタイル分譲地で、個性あふれる住まいを実現いたしませんか?
●理想の暮らしを実現する為にはどんな間取りが良いか。希望を叶える為に参考プランをご用意しておりますので、是非お役立て下さい。
- 久米川店/岡田 孝憲
- 経験豊かなスタッフが分譲地だけでなく学校、スーパー、公園と周辺環境も合わせてご案内致します。
お客様お一人…
- 価 格
-
2,780万円〜3,580万円<税込>
- 交 通
- 西武多摩湖線『武蔵大和』駅 徒歩7分
西武新宿線『東村山』駅 徒歩23分
- 所在地
- 東京都東村山市廻田町3丁目
- 土地面積
- 110.05m²〜121.07m²
- 土地権利
- 所有権
- 現況
- 更地
- 建築条件
- 建築条件なし
-
現地見学会開催中! 2026年4月4日(土)〜2026年4月12日(日) 10:30〜17:30
*~ ZEH水準の省エネ住宅♪ 建物・地盤保証10年 ~*
4LDK+WIC・並列2台駐車可能なカースペース(車種による)
●設備仕様
・24時間換気
・浴室乾燥機
・1坪ユニットバス
・全居室クローゼット
・浄水器
・在来工法
・ハンドシャワー付き洗面台
・ビルドイン食器洗浄機
・床下収納
・TVモニタ付きインターホン
・手すり付き階段
・玄関ミラー 他
- 久米川店/岡田 孝憲
- 見学はしたいけど、なかなか時間が取れない・・・そんな方に出勤前や仕事終わりにマイホームを見学できるサポートを…
- 価 格
-
5,999万円<税込>
- 交 通
- 西武拝島線『東大和市』駅 徒歩14分
多摩都市モノレール『桜街道』駅 徒歩24分
- 所在地
- 東京都東大和市南街1丁目
- 土地面積
- 134.31m²
- 建物面積
- 107.65m²
- 間取り
- 4LDK
(+WIC) - 完成年月
- 2026年6月
-
現地見学会開催中! 2026年4月4日(土)〜2026年4月12日(日) 10:30〜17:30
●対面式のカウンターキッチンは、いつでもご家族を感じられる空間作りの重要ポイントになりそうです。
●約17.6帖のゆったりリビング。家族でテーブルを囲む素敵な時間をお愉しみ下さい。
●奥行のあるウォークインクローゼットでたっぷり収納できます!
●リビングに床暖房があるので足元ぽかぽか、家族の集まる空間を暖めます。
●花粉症の時期は外干しできない!そんなご家庭に便利な浴室換気乾燥機!
- 久米川店/山口 美羽
- 西武拝島線「東大和市」駅 徒歩13分!周辺もあわせてご案内いたします。お気軽にお問い合わせください。
- 価 格
-
5,699万円<税込>
- 交 通
- 西武拝島線『東大和市』駅 徒歩14分
- 所在地
- 東京都小平市小川町1丁目
- 土地面積
- 110m²
- 建物面積
- 87.96m²
- 間取り
- 3SLDK
(+WIC) - 完成年月
- 2026年5月
-
現地見学会開催中! 2026年4月4日(土)〜2026年4月12日(日) 10:30〜17:30
自然と利便性が調和した住環境が魅力の東村山市 ・‥…━━━━☆
◆建築条件なし / 全区画約40坪以上のゆとりある敷地
ライフスタイルに合わせた自由なマイホームづくりが可能です。
◆幅員約5mの新設道路
全体としての見通しがよく、すれ違いや車を出し入れする際も安心です。
◆ハウス会
- 久米川店/岡田 孝憲
- 「夢は注文住宅!でも注文住宅って何から手をつければいいの?」 そんな時は、ぜひ藤和ハウスへご相談下さい! …
- 価 格
-
3,480万円〜3,880万円
- 交 通
- 西武新宿線『東村山』駅 徒歩14分
西武国分寺線『東村山』駅 徒歩14分
- 所在地
- 東京都東村山市野口町3丁目
- 土地面積
- 132.61m²〜146.25m²
- 土地権利
- 所有権
- 現況
- 造成中
- 建築条件
- 建築条件なし
-
現地見学会開催中! 2026年4月4日(土)〜2026年4月12日(日) 10:30〜17:30
●対面式のカウンターキッチンは、いつでもご家族を感じられる空間作りの重要ポイントになりそうです。
●隙間のないなめらかな人造大理石の一体型システムキッチン
●来客時や駐輪スペースとしても利用可能なカースペース2台可(車種による)
●キッチンにはエコと家事時間短縮、一石二鳥の食洗機付です。
●幼い子供がいると汚れものが多く、いつでも洗濯物を干せるのが嬉しい浴室換気乾燥機!
- 久米川店/西條 航
- ◎小平駅徒歩12分の好立地!
◎敷地面積約120㎡と広々しております。
充実の設備仕様をぜひご説明できれ…
- 価 格
-
5,790万円〜6,390万円<税込>
- 交 通
- 西武新宿線『小平』駅 徒歩12分
西武拝島線『小平』駅 徒歩12分
- 所在地
- 東京都小平市仲町403-5
- 土地面積
- 120.47m²〜120.61m²
- 建物面積
- 94.6m²〜96.46m²
- 間取り
- 4LDK〜4LDK
(1号棟/+パント…) - 完成年月
- 2026年6月
-
予約制見学会開催中! 2026年3月28日(土)〜2026年4月5日(日) 11:00〜16:00
*・*―――断熱性能を高めた、 ZEH水準の快適住宅 ―――*・*
●家族の集まるLDKはゆったり約25.2帖
●空気を汚さず暖かい床暖房
●キッチンには家事時間を短縮する食洗機付き
●いつでもおいしいお水が飲める浄水器一体型水栓も完備
●全居室収納スペース付き
●床下には収納スペースも確保。収納が豊富な住まいです
●釣り・キャンプ・ゴルフ用品など、多趣味なご家族には土間収納が便利
- 大泉学園店/非々 慎平
- 断熱性能を高めた、ZEH基準の住まい◎西武池袋線「中村橋」駅 徒歩12分!家族や仲間が集うLDKは約25.2…
- 価 格
-
9,199万円<税込>
- 交 通
- 西武池袋線『中村橋』駅 徒歩12分
都営大江戸線『練馬春日町』駅 徒歩13分
- 所在地
- 東京都練馬区向山4丁目
- 土地面積
- 105.35m²
- 建物面積
- 121.23m²
- 間取り
- 3LDK
(+土間収納、備蓄…) - 完成年月
- 2026年2月
-
予約制見学会開催中! 2026年3月28日(土)〜2026年4月5日(日) 11:00〜16:00
◆バス便が豊富で多方面へアクセス可!
◆小屋裏収納など収納豊富な間取りです
◆床暖房を完備したリビング
◆食洗機があるので家事を時短できます
◆エコジョーズで光熱費を節約!
- 大泉学園店/非々 慎平
- 全棟4棟中2棟完成致しました。
いつでも内見可能です。
LDK17帖以上の対面キッチンのため、キッチンか…
- 価 格
-
6,080万円〜6,180万円<税込>
- 交 通
- 都営大江戸線『光が丘』駅 バス14分「土支田二丁目」停歩11分
西武池袋線『大泉学園』駅 バス21分「もみじ山」停歩4分
- 所在地
- 東京都練馬区大泉町2丁目
- 土地面積
- 93m²〜93.3m²
- 建物面積
- 85.86m²〜100.83m²
- 間取り
- 2SLDK〜3LDK
(A・B・C・D号…) - 完成年月
- 2025年4月
-
現地見学会開催中! 2026年3月28日(土)〜2026年4月5日(日) 11:00〜16:00
●急行が停車する西武池袋線「石神井公園」駅 徒歩25分!
●大容量のファミリーウォークインクローゼットでお部屋をスッキリきれいに保てます
●全居室収納スペース付き
●全居室2面採光で明るいお部屋
●南向きのバルコニーは日差しもたっぷり注ぎ、お洗濯物もよく乾きます
●約18.1帖のゆったりリビング
家族でテーブルを囲む素敵な時間をお愉しみ下さい♪
●コミュニケーション重視のリビングイン階段
- 大泉学園店/非々 慎平
- 西武池袋線「石神井公園」駅 徒歩25分!各居室にはクローゼットを完備し、家具を置くスペースが確保しやすい設計…
- 価 格
-
6,290万円<税込>
- 交 通
- 西武池袋線『石神井公園』駅 徒歩25分
都営大江戸線『光が丘』駅 徒歩27分
- 所在地
- 東京都練馬区土支田3丁目16-22
- 土地面積
- 109.07m²
- 建物面積
- 91.59m²
- 間取り
- 2SLDK
(+FWIC) - 完成年月
- 2026年9月
-
現地見学会開催中! 2026年3月28日(土)〜2026年4月5日(日) 11:00〜16:00
\家族みんなで創る、楽しむ、自由設計分譲地!/
■運転・駐車しやすい前面道路6m
■全区画ゆとりの31坪超え
■思い描いているイメージをカタチにしやすい綺麗な整形地
■全区画参考プランをご用意しました!
- 大泉学園店/非々 慎平
- マイナスイオンいっぱいの緑豊かな地で思いきり深呼吸!爽やかな毎日をお過ごしください。同現場内に新築分譲住宅が…
- 価 格
-
3,690万円〜4,190万円
- 交 通
- 西武池袋線『大泉学園』駅 バス15分「久保新田」停歩6分
都営大江戸線『光が丘』駅 バス36分「四面塔稲荷」停歩8分
- 所在地
- 東京都練馬区西大泉4丁目18
- 土地面積
- 104.02m²〜110.02m²
- 土地権利
- 所有権
- 現況
- 更地
- 建築条件
- 建築条件付き
-
現地見学会開催中! 2026年4月4日(土)〜2026年4月12日(日) 10:30〜16:00
●京王線「柴崎」駅徒歩15分~16分
●建築条件はございませんので、ライフスタイルに合わせた自由なマイホームづくりが可能です。
●ハウスメーカーから建物プランまで、あなたの「夢」を「カタチ」にできるフリースタイル分譲地で、夢のマイホームを建築してみませんか?
●同時期に生活をスタートさせるご家族の多い分譲地は、困ったときも心強い存在になりそうですね!
- 調布店/木下 淳一
- 調布市佐須町に全35棟の大型開発分譲地が誕生します!毎週【土曜日・日曜日・祝日】現地見学会開催!平日のご案内…
- 価 格
-
5,190万円〜5,490万円
- 交 通
- 京王線『柴崎』駅 徒歩15分〜16分
京王線『調布』駅 バス6分「佐須」停歩10分〜11分
- 所在地
- 東京都調布市佐須町5丁目16‐1
- 土地面積
- 107.03m²〜113.05m²
- 土地権利
- 所有権
- 現況
- 更地
- 建築条件
- 建築条件なし
-
現地見学会開催中! 2026年4月4日(土)〜2026年4月12日(日) 10:30〜16:00
●間取りや色を変更可能な『フリープラン対応住宅』のご紹介です♪建売住宅では決して叶わない、無理であると諦めていた夢のマイホームを一緒に実現してみませんか?
●条件内であれば自由に設計可能。注文住宅の「選ぶ楽しさ」×建売の「安心な価格」まさに注文住宅と建売のいいとこ取り♪
●建物参考プランをご用意しておりますので、是非お役立て下さい。
- 調布店/木下 淳一
- 調布市深大寺北町に全5区画の建築条件付売地が誕生!毎週【土曜日・日曜日・祝日】現地見学会中です!物件のことは…
- 価 格
-
4,490万円
- 交 通
- 京王線『調布』駅 バス15分「調布北高前」停歩5分
JR中央線『吉祥寺』駅 バス19分「調布北高前」停歩4分
- 所在地
- 東京都調布市深大寺北町5丁目20-4、5
- 土地面積
- 110.22m²
- 土地権利
- 所有権
- 現況
- 更地
- 建築条件
- 建築条件付き
-
現地見学会開催中! 2026年4月4日(土)〜2026年4月12日(日) 10:30〜16:00
●京王線「国領」駅徒歩7分の好立地!
●特急の停車する「調布」駅も徒歩圏内です☆
●南道路で日当たり良好な立地◎
●戸建住宅が立ち並ぶ住宅地。静かな時間の流れ。ゆっくりと傾きを変えていく陽の光が清楚な家々を色鮮やかに演出してくれます。
●最寄りの国領駅周辺には、スーパー・ドラッグストア・本屋など便利な施設が充実!
- 調布店/木下 淳一
- 京王線「国領」駅徒歩7分!全2棟新築戸建のご紹介です。毎週【土曜日・日曜日・祝日】現地見学会中です!物件のこ…
- 価 格
-
8,998万円<税込>
- 交 通
- 京王線『国領』駅 徒歩7分
京王線『布田』駅 徒歩10分
- 所在地
- 東京都調布市八雲台1丁目41-5
- 土地面積
- 112.34m²
- 建物面積
- 89.57m²
- 間取り
- 4LDK
- 完成年月
- 2026年2月
-
現地見学会開催中! 2026年4月4日(土)〜2026年4月12日(日) 10:30〜16:00
*・*―――断熱性能を高めた、ZEH基準の住まい ―――*・*
●京王線「調布」駅 バス9分「北ノ台小学校」停歩7分
●バルコニーは二部屋分の長さがあり、洗濯物やシーツ類など干すのに便利な広さです
また南向きのため日差しも行き届き、洗濯物もよく乾きます
●ウォークインクローゼットは、お洋服等がたくさん収納できて便利です
●全居室収納スペース付き
●家族が自然と顔を合わせるリビングイン階段
- 調布店/荒井 亨
- 調布市深大寺東町の新築分譲住宅が全1棟で登場!毎週【土曜日・日曜日・祝日】現地見学会中です!物件のことはもち…
- 価 格
-
5,480万円<税込>
- 交 通
- 京王線『調布』駅 バス9分「北ノ台小学校」停歩7分
京王線『布田』駅 バス10分「北ノ台小学校」停歩7分
- 所在地
- 東京都調布市深大寺東町6丁目13‐31
- 土地面積
- 100.95m²
- 建物面積
- 80.32m²
- 間取り
- 3LDK
(+WIC) - 完成年月
- 2026年2月
-
現地見学会開催中! 2026年4月4日(土)〜2026年4月12日(日) 10:30〜16:00
●京王線「布田駅」徒歩15分
●特急停車の京王線「調布」駅徒歩17分
●家族構成や生活スタイルに合わせて、セミオーダーで建築可能
●注文住宅の「選ぶ楽しさ」×建売の「安心な価格」まさに注文住宅と建売のいいとこ取り♪
●建物参考プランをご用意しておりますので、是非お役立て下さい
- 調布店/木下 淳一
- 調布市染地1丁目に全4区画の建築条件付き売地が誕生☆京王線「布田」駅徒歩15分!物件のことはもちろん、周辺環…
- 価 格
-
4,290万円
- 交 通
- 京王線『布田』駅 徒歩15分
京王線『調布』駅 徒歩17分
- 所在地
- 東京都調布市染地1丁目13-11、12
- 土地面積
- 111.51m²
- 土地権利
- 所有権
- 現況
- 更地
- 建築条件
- 建築条件付き
-
現地見学会開催中! 2026年4月4日(土)〜2026年4月12日(日) 10:30〜16:00
●忙しい朝や遅い帰宅時にも嬉しい「柴崎」駅徒歩6分
●約20帖+約4.2帖のゆったりリビング。家族でテーブルを囲む素敵な時間をお愉しみ下さい
●家事をしながらご家族との会話も楽しめる対面システムキッチンは食洗機・浄水器完備
●さまざまな用途に利用できる小屋根裏収納つき♪
- 調布店/木下 淳一
- 調布市柴崎1丁目全1棟の新築分譲住宅が登場!毎週【土曜日・日曜日・祝日】現地見学会中です!物件のことはもちろ…
- 価 格
-
8,999万円<税込>
- 交 通
- 京王線『柴崎』駅 徒歩6分
京王線『つつじヶ丘』駅 徒歩16分
- 所在地
- 東京都調布市柴崎1丁目65‐4
- 土地面積
- 101.97m²
- 建物面積
- 122.39m²
- 間取り
- 3LDK
(+小屋裏収納、備…) - 完成年月
- 2026年5月
-
現地見学会開催中! 2026年4月4日(土)〜2026年4月12日(日) 10:30〜16:00
●京王線「柴崎」駅徒歩14分~16分♪
●建売の安心感×注文住宅の楽しさ。カラーセレクトで叶える理想の空間
●「こんな部屋のお色にしたい」「こんな風に暮らしたい」というお客様の夢をぜひお聞かせください
●整備された街区、近隣に広がる美しい自然たち。空間のみのこだわりだけではなく、ここに暮らす方々にとって素敵な環境や快適な暮らしを実現します。
- 調布店/木下 淳一
- 調布市佐須町に全35棟の大型開発分譲地が誕生します!毎週【土曜日・日曜日・祝日】現地見学会開催!平日のご案内…
- 価 格
-
5,014万円〜5,402万円
- 交 通
- 京王線『柴崎』駅 徒歩15分
京王線『調布』駅 バス6分「佐須」停歩9分〜10分
- 所在地
- 東京都調布市佐須町5丁目16‐1
- 土地面積
- 110.02m²〜110.1m²
- 土地権利
- 所有権
- 現況
- 更地
- 建築条件
- 建築条件付き
-
現地見学会開催中! 2026年4月4日(土)〜2026年4月12日(日) 10:30〜16:00
●京王線「布田」駅徒歩9分
●京王線「国領」駅徒歩10分
●学校や買い物施設も近く恵まれた住環境
●家族構成や生活スタイルに合わせてセミオーダーで建築可能
●建物参考プランをご用意しておりますので、是非お役立て下さい
●理想の暮らしを追及できる建築条件付き土地で、夢のマイホームを建築してみませんか
- 調布店/荒井 亨
- 京王線「布田」駅 徒歩9分の好立地♪毎週【土曜日・日曜日・祝日】現地見学会中です!物件のことはもちろん、周辺…
- 価 格
-
6,140万円
- 交 通
- 京王線『布田』駅 徒歩9分
京王線『国領』駅 徒歩10分
- 所在地
- 東京都調布市国領町5丁目56-13
- 土地面積
- 110m²
- 土地権利
- 所有権
- 現況
- 更地
- 建築条件
- 建築条件付き
-
現地見学会開催中! 2026年4月4日(土)〜2026年4月12日(日) 10:30〜16:00
●「調布北高前」バス停より徒歩5~6分。バス便の利用で京王・中央線にアクセス可能な立地
●約17帖のゆったりリビング。家族でテーブルを囲む素敵な時間をお愉しみ下さい
●家事をしながらご家族との会話も楽しめる対面システムキッチン
●パントリーがあればキッチン回りが乱雑にならず、料理も効率良くできます
- 調布店/荒井 亨
- 調布市深大寺北町5丁目に新築分譲住宅が登場!毎週【土曜日・日曜日・祝日】現地見学会中です!物件のことはもちろ…
- 価 格
-
5,390万円<税込>
- 交 通
- 京王線『調布』駅 バス15分「調布北高前」停歩6分
JR中央線『吉祥寺』駅 バス19分「調布北高前」停歩5分
- 所在地
- 東京都調布市深大寺北町5丁目20-4、5
- 土地面積
- 110.22m²
- 建物面積
- 87.48m²
- 間取り
- 4LDK
(+パントリー) - 完成年月
- 2026年8月
-
現地見学会開催中! 2026年4月4日(土)〜2026年4月12日(日) 10:30〜16:00
●京王線「西調布」駅 徒歩14分
●クリーンな太陽エネルギーを活かす太陽光発電システムを搭載
●敷地面積155平米を超えるゆったりプラン
●家族の集まるLDKはゆったり約20帖以上
●居室のサッシにはペアガラスを採用。断熱性が高いことにより、省エネや結露対策にもなります
●床下には収納スペースも確保。収納が豊富な住まいです
- 調布店/木下 淳一
- 飛田給3丁目に全2棟の新築戸建が登場☆毎週【土曜日・日曜日・祝日】現地見学会中です!物件のことはもちろん、周…
- 価 格
-
6,290万円<税込>
- 交 通
- 京王線『西調布』駅 徒歩13分
京王線『調布』駅 バス13分「上石原三丁目」停歩3分
- 所在地
- 東京都調布市飛田給3丁目47-6、8
- 土地面積
- 155.58m²
- 建物面積
- 96.39m²
- 間取り
- 4LDK
- 完成年月
- 2026年5月
-
現地見学会開催中! 2026年4月4日(土)〜2026年4月12日(日) 10:30〜16:00
●京王線「布田」駅 徒歩9分の好立地
●断熱性能を高めた、 ZEH水準の快適住宅
●約17.12帖のゆったりリビング。家族でテーブルを囲む素敵な時間をお愉しみ下さい
●バルコニーがある2階に水回りを配置し家事動線も快適
- 調布店/荒井 亨
- 京王線「布田」駅 徒歩9分。全居室南向きの明るい設計!毎週【土曜日・日曜日・祝日】現地見学会中です!物件のこ…
- 価 格
-
6,390万円<税込>
- 交 通
- 京王線『布田』駅 徒歩9分
京王線『国領』駅 徒歩15分
- 所在地
- 東京都調布市染地2丁目18-1
- 土地面積
- 104.97m²
- 建物面積
- 83.64m²
- 間取り
- 2SLDK
(+パントリー、リ…) - 完成年月
- 2026年6月
-
現地見学会開催中! 2026年4月4日(土)〜2026年4月12日(日) 10:30〜16:00
●小田急小田原線「成城学園前」駅徒歩12分
●綺麗な整形地のため、思い描いているイメージをカタチにしやすい土地
●建築条件はございませんので、ライフスタイルに合わせた自由なマイホームづくりが可能
●南道路につき、日当たり良好!お日様の日差しもサンサンと降り注ぎます
●当社オリジナルの注文住宅サポートシステム「セレシス」で、信頼のおける大手ハウスメーカーのご紹介も承ります
- 仙川店/土屋 賢治
- 世田谷区成城8丁目に全1区画の宅地分譲地が登場!毎週【土曜日・日曜日・祝日】現地見学会中です!物件のことはも…
- 価 格
-
1億2,250万円
- 交 通
- 小田急小田原線『成城学園前』駅 徒歩12分
小田急小田原線『喜多見』駅 徒歩22分
- 所在地
- 東京都世田谷区成城8丁目11-3
- 土地面積
- 113.13m²
- 土地権利
- 所有権
- 現況
- 更地
- 建築条件
- 建築条件なし
-
現地見学会開催中! 2026年4月4日(土)〜2026年4月12日(日) 10:30〜16:00
●LDKは無垢の美しさと、機能性のハイブリッド突板仕様
●水回りには、タカラスタンダードの住宅設備を採用した品のある住まい
●LDK・玄関ホールにはエコカラットが施工されます
多孔質セラミックスが脱臭・調湿機能で快適な湿度に保とうとします
●断熱性能を高めた、 ZEH水準の快適住宅
- 仙川店/土屋 賢治
- 京王線「千歳烏山」駅 徒歩15分!毎週【土曜日・日曜日・祝日】現地見学会開催!物件のことはもちろん、周辺環境…
- 価 格
-
1億1,599万円〜1億2,099万円<税込>
- 交 通
- 京王線『千歳烏山』駅 徒歩14分〜15分
京王線『芦花公園』駅 徒歩23分
- 所在地
- 東京都世田谷区上祖師谷2丁目13-16
- 土地面積
- 118.87m²〜118.88m²
- 建物面積
- 93.98m²〜96.47m²
- 間取り
- 3LDK〜3LDK
(全棟/+WIC、…) - 完成年月
- 2026年5月
-
現地見学会開催中! 2026年4月4日(土)〜2026年4月12日(日) 10:30〜16:00
●建売の安心感×注文住宅の楽しさ。カラーセレクトで叶える理想の空間
●「こんな部屋のお色にしたい」「こんな風に暮らしたい」というお客様の夢をぜひお聞かせください
●敷地面積約125平米を超える全9区画の開発分譲地。整備された街区、近隣に広がる美しい自然たちが快適な暮らしを実現します
- 仙川店/土屋 賢治
- 狛江市駒井町3丁目に全9区間の開発分譲地が登場!毎週【土曜日・日曜日・祝日】現地見学会中です!物件のことはも…
- 価 格
-
4,390万円〜5,590万円
- 交 通
- 小田急小田原線『和泉多摩川』駅 バス5分「駒井」停歩3分〜4分
小田急小田原線『狛江』駅 バス9分「駒井」停歩3分〜4分
- 所在地
- 東京都狛江市駒井町3丁目42付近
- 土地面積
- 125.04m²〜125.06m²
- 土地権利
- 所有権
- 現況
- 更地
- 建築条件
- 建築条件付き
-
現地見学会開催中! 2026年4月4日(土)〜2026年4月12日(日) 10:30〜17:00
●西武新宿線「西武柳沢」駅 徒歩14分
●南側が開けているため、お日様の日差しもサンサンと降り注ぎます。
●前面道路5mなので、運転が少し苦手な方でも運転・駐車がしやすそうですね。
●収納量ばっちりのウォークインクローゼット!この機会に古い家具とはお別れできるかも!?
●土間収納にはアウトドアやガーデニンググッズを保管できて、玄関を綺麗に保てます。
- 田無店/小川 基文
- ★西武新宿線『西武柳沢駅』徒歩14分、『田無駅』まで 徒歩19分、ZEH水準住宅ローン控除対象物件、駐車スペ…
- 価 格
-
8,199万円<税込>
- 交 通
- 西武新宿線『西武柳沢』駅 徒歩14分
西武新宿線『田無』駅 徒歩19分
- 所在地
- 東京都西東京市保谷町5丁目15‐5
- 土地面積
- 156.99m²
- 建物面積
- 112.2m²
- 間取り
- 4LDK
(+WIC、土間収納) - 完成年月
- 2026年6月
-
現地見学会開催中! 2026年4月4日(土)〜2026年4月12日(日) 10:30〜17:30
●ビルトイン食洗機を標準完備し、家事時間が短縮できます。
●雨天時の洗濯物や浴室内のカビ防止としても活躍する浴室換気乾燥機
●使い勝手の良いロフトは、シーズンオフの荷物もたっぷり収納できます。
●ご家族の様子がわかり、会話も楽しめる対面式システムキッチン
●各居室にはクローゼットを完備し、家具を置くスペースが確保しやすい
設計がされております。
- 田無店/小川 基文
- 3面採光の明るいリビングが魅力的な一邸です。新学期に新たな気持ちで生活を始められるようお手伝いさせていただき…
- 価 格
-
5,090万円<税込>
- 交 通
- 西武新宿線『田無』駅 徒歩16分
西武新宿線『西武柳沢』駅 徒歩24分
- 所在地
- 東京都西東京市北原町3丁目6-17
- 土地面積
- 88.89m²
- 建物面積
- 70.9m²
- 間取り
- 3LDK
(+ロフト) - 完成年月
- 2026年3月
-
現地見学会開催中! 2026年4月4日(土)〜2026年4月12日(日) 10:30〜16:30
■□おすすめ設備仕様□■
・I.D.S工法の採用により地震に強い家を実現
・大容量のウォークインクローゼットで
お部屋をスッキリきれいに保てます。
・対面式システムキッチン+食洗器
・雨天時の洗濯物や浴室内のカビ防止としても活躍する浴室換気乾燥機
・ゆったり寛げる1坪タイプのユニットバスで、疲れたからだを癒してあげて下さい。
・シューズクロークはベビーカーやゴルフバッグなどが収納できます。
- 清瀬店/松浦 剛志
- 全21区画の開発分譲地内の新築戸建です。近隣にモデル棟がございます!是非、建物の質感を実際にご覧になりません…
- 価 格
-
4,590万円<税込>
- 交 通
- 西武池袋線『清瀬』駅 バス10分「全生園南」停歩5分
西武新宿線『久米川』駅 バス16分「全生園南」停歩5分
- 所在地
- 東京都清瀬市竹丘3丁目23
- 土地面積
- 120.1m²
- 建物面積
- 99.37m²
- 間取り
- 4LDK
(8号棟/+WIC) - 完成年月
- 2026年1月
-
オープンハウス開催中! 2026年4月4日(土)〜2026年4月12日(日) 10:30〜16:30
■□おすすめ設備仕様□■
・ビルトイン食洗器
・スライドキッチン
・人工大理石シンク
・浴室乾燥機
・三面鏡化粧台
・1坪タイプのユニットバス
- 清瀬店/松浦 剛志
- 幅員5mの開発分譲地内の新築分譲住宅全5棟!広々とした120㎡超の区画が魅力です。
詳細はお気軽にお問合せ…
- 価 格
-
4,380万円〜4,680万円<税込>
- 交 通
- 西武池袋線『清瀬』駅 徒歩24分
JR武蔵野線『新座』駅 バス22分「下田」停歩7分
- 所在地
- 東京都清瀬市中里4丁目815
- 土地面積
- 120.03m²〜125.72m²
- 建物面積
- 99.98m²〜103.09m²
- 間取り
- 4LDK〜4LDK
- 完成年月
- 2026年1月
-
オープンハウス開催中! 2026年4月4日(土)〜2026年4月12日(日) 10:30〜16:30
~ZEH水準の省エネ住宅~
≪おすすめ設備仕様≫
・太陽光発電システム搭載
・耐震等級3の地震に強い家
・ライフスタイルの変化に対応可能な構造
・浴室暖房乾燥機
・食洗器
・ワイドバルコニー
・一坪サイズの浴室
・18.75帖のゆったりリビング
・各居室は2面採光
・全居室収納スペース付き
- 清瀬店/平田 義樹
- ZEH水準の省エネで快適な住宅!地震に強い耐震等級3の建物です。
平日のご案内も可能ですので、お気軽にお…
- 価 格
-
4,290万円<税込>
- 交 通
- 西武池袋線『清瀬』駅 徒歩20分
JR武蔵野線『新座』駅 バス25分「けやき通り」停歩6分
- 所在地
- 東京都清瀬市中里3丁目882-28
- 土地面積
- 119.91m²
- 建物面積
- 93.98m²
- 間取り
- 4LDK
- 完成年月
- 2026年2月
-
オープンハウス開催中! 2026年4月4日(土)〜2026年4月12日(日) 10:30〜16:30
◆23帖超のゆったりリビング!家族でテーブルを囲む素敵な時間をお愉しみ下さい。
- 清瀬店/松浦 剛志
- 2駅3路線利用可能!明るく解放感のある広々リビングで新生活が始まります。
平日のご案内も可能ですので、お気…
- 価 格
-
5,699万円<税込>
- 交 通
- 西武池袋線『所沢』駅 徒歩12分
西武新宿線『所沢』駅 徒歩12分
- 所在地
- 埼玉県所沢市大字北秋津270-7
- 土地面積
- 100.39m²
- 建物面積
- 99.78m²
- 間取り
- 3LDK
- 完成年月
- 2026年1月
-
現地見学会開催中! 2026年4月4日(土)〜2026年4月12日(日) 10:30〜16:00
◆全18区画の開発分譲地!ライフプランを是非お聞かせください。
◆37坪超のゆとりある敷地ですので、カースペース2台分確保や庭付きのプラン等ご検討できます。
◆建築条件付売地なので、ライフスタイルに合わせたマイホームづくりが可能です。
- 清瀬店/松浦 剛志
- 建築条件付き売地全18区画!全区画ともに広々とした37坪超の区画が魅力です。
詳細はお気軽にお問合せくださ…
- 価 格
-
1,890万円〜2,590万円
- 交 通
- JR武蔵野線『新座』駅 徒歩28分
西武池袋線『清瀬』駅 バス14分「団地センター」停歩9分
- 所在地
- 東京都清瀬市下宿2丁目
- 土地面積
- 124.21m²〜128.11m²
- 土地権利
- 所有権
- 現況
- 更地
- 建築条件
- 建築条件付き
-
現地見学会開催中! 2026年4月4日(土)〜2026年4月12日(日) 10:30〜16:00
◆全18世帯が集う開発分譲地内の新築分譲住宅全5棟が先行販売となりました。
◆太陽光をエネルギーに換える「太陽光発電」でエコな暮らしを!
◆来客時や駐輪スペースとしても利用可能なカースペース2台可(車種による)
- 清瀬店/松浦 剛志
- 全18区画の開発分譲地内、全5棟の新築分譲の販売が開始となりました。
詳細はお気軽にお問合せください。 近…
- 価 格
-
3,490万円〜3,890万円<税込>
- 交 通
- JR武蔵野線『新座』駅 徒歩28分
西武池袋線『清瀬』駅 バス14分「団地センター」停歩9分
- 所在地
- 東京都清瀬市下宿2丁目
- 土地面積
- 125.1m²〜125.41m²
- 建物面積
- 99.98m²〜103.09m²
- 間取り
- 4LDK〜5LDK
- 完成年月
- 2026年8月
-
現地見学会開催中! 2026年4月4日(土)〜2026年4月12日(日) 10:30〜16:00
◆思い描いているイメージをカタチにしやすい区画の土地
◆約43坪~約50坪のゆとりある敷地ですので、お庭も確保できそうですね。
- 清瀬店/松浦 剛志
- 全区画がゆったり広々!光輝く太陽と清瀬の風が吹き抜ける、ゆとりある4区画の暮らし。
平日のご案内も可能です…
- 価 格
-
2,980万円〜3,280万円
- 交 通
- 西武池袋線『清瀬』駅 バス10分「大林組技術研究所」停歩5分
JR武蔵野線『新座』駅 バス19分「下清戸」停歩11分
- 所在地
- 東京都清瀬市下清戸4丁目
- 土地面積
- 135.05m²〜167.8m²
- 土地権利
- 所有権
- 現況
- 更地
- 建築条件
- 建築条件なし
-
現地見学会開催中! 2026年4月4日(土)〜2026年4月12日(日) 10:30〜16:00
◆思い描いているイメージをカタチにしやすい区画の土地
◆約36坪~約43坪のゆとりある敷地ですので、お庭も確保できそうですね。
- 清瀬店/松浦 剛志
- 『第一種低層住居専用地域の静穏』全区画36坪以上のゆとりが、理想の間取りを叶える。
平日のご案内も可能です…
- 価 格
-
2,680万円〜3,080万円
- 交 通
- 西武池袋線『清瀬』駅 バス13分「下清戸」停歩3分〜4分
JR武蔵野線『新座』駅 バス19分「下清戸」停歩3分〜4分
- 所在地
- 東京都清瀬市下清戸1丁目
- 土地面積
- 120.26m²〜143.06m²
- 土地権利
- 所有権
- 現況
- 更地
- 建築条件
- 建築条件なし
-
現地見学会開催中! 2026年4月4日(土)〜2026年4月12日(日) 11:00〜16:00
《おすすめ設備・仕様》
●太陽光発電搭載物件
●家族が揃って食事できるゆとりある大きさのLDK約16帖以上
●隙間のないなめらかな人造大理石の一体型システムキッチン
●ビルトイン食洗機は毎日の家事を軽減させてくれます
●パントリーやリビング収納など、あったら嬉しいがある間取りです
●洗面化粧台のボウルは汚れにくく、幅も広めでお掃除も楽々
《駐車スペース》
- 日野店/町田 琢巳
- 京王線「百草園」駅徒歩8分と駅チカ立地に4LDKの新邸2棟が誕生します!
来客時にも嬉しいカースペース2台…
- 価 格
-
4,990万円〜5,690万円<税込>
- 交 通
- 京王線『百草園』駅 徒歩8分
京王線『聖蹟桜ヶ丘』駅 徒歩18分
- 所在地
- 東京都日野市落川
- 土地面積
- 114.93m²〜129.98m²
- 建物面積
- 91.08m²〜99.16m²
- 間取り
- 4LDK〜4LDK
(A号棟/+パント…) - 完成年月
- 2026年4月
-
オープンハウス開催中! 2026年4月4日(土)〜2026年4月12日(日) 11:00〜16:00
\ 近所に大型ショッピングモールあり! /
\ 嬉しい♪駐車スペース2 台あり! /
●家族の集まるLDKはゆったり約20.2帖
●床暖房で足元ぽかぽか
●家族が自然と顔を合わせるリビングイン階段
●使いやすくスタイリッシュなシステムキッチンには、
毎日お使いになる方の視点が存分に活かされています
●ビルトイン食洗機を標準完備し、家事時間が短縮できます
●キッチン横にある収納は食品等のストックに便利です
- 日野店/町田 琢巳
- 大きなソファーを置いても圧迫感がない約20.2帖の広々LDK。
窓からは陽光をたっぷり採り込み、明るく快適…
- 価 格
-
5,099万円<税込>
- 交 通
- JR中央本線『豊田』駅 徒歩23分
JR八高線『北八王子』駅 徒歩17分
- 所在地
- 東京都日野市日野台4丁目
- 土地面積
- 105.56m²
- 建物面積
- 102.55m²
- 間取り
- 4LDK
(+WIC×2、土…) - 完成年月
- 2026年1月
-
オープンハウス開催中! 2026年4月4日(土)〜2026年4月12日(日) 11:00〜16:00
【ZEH水準の快適住宅】
*~*設備ポイント*~*
●足元ぽかぽか床暖房付き
●料理中も会話が弾むカウンターキッチン
●ストックに便利なキッチンパントリー
●家事の時間を短縮するエコな食洗機
●いつでもおいしいお水が飲める浄水器一体型水栓
●リビング収納には、お子様の本やおもちゃを格納できます
●奥行のあるウォークインクローゼットでたっぷり収納できます!
●ベビーカーやゴルフバッグも置ける土間収納
- 日野店/町田 琢巳
- 暮らしの質を高める住空間。 ZEH水準の快適住宅。
ターミナル駅の「高幡不動」駅徒歩14分!ショッピングや…
- 価 格
-
6,499万円<税込>
- 交 通
- 京王線『高幡不動』駅 徒歩14分
多摩都市モノレール『万願寺』駅 徒歩13分
- 所在地
- 東京都日野市万願寺6丁目33-18
- 土地面積
- 140.07m²
- 建物面積
- 108.88m²
- 間取り
- 3LDK
(1号棟/+納戸、…) - 完成年月
- 2026年3月
-
現地見学会開催中! 2026年4月4日(土)〜2026年4月12日(日) 11:00〜16:00
◎耐震性・省エネ性能に優れた長期優良住宅
◎京王線「百草園」駅 徒歩6分の駅チカ
≪↓物件ポイント↓≫
●クリーンな太陽エネルギーを活かす太陽光発電システム搭載
●来客時にも便利な駐車2台可能(車種による)
●南向きのバルコニーで日当たり良好
●キッチンから見渡せるリビングダイニングで、お料理中も会話が弾みます
●床下には収納スペースも確保。収納が豊富な住まいです
●全居室収納スペース付き
- 日野店/渡部 敏哉
- 「百草園」駅 徒歩6分の駅近物件のご紹介です。
太陽光をエネルギーに換える「太陽光発電」でエコな暮らしを!…
- 価 格
-
4,990万円〜5,690万円<税込>
- 交 通
- 京王線『百草園』駅 徒歩6分
京王線『聖蹟桜ヶ丘』駅 徒歩22分
- 所在地
- 東京都日野市落川2207-2
- 土地面積
- 120.48m²〜120.57m²
- 建物面積
- 94.08m²〜95.43m²
- 間取り
- 3SLDK〜4LDK
- 完成年月
- 2026年3月
-
現地見学会開催中! 2026年4月4日(土)〜2026年4月12日(日) 11:00〜16:00
●京王線「百草園」駅 徒歩6分の駅チカです!
●家族が自然と顔を合わせるリビングイン階段。
●使い勝手のいいシステムキッチンには浄水機能付き。
●ゆったり1坪サイズの浴室で1日の疲れをリセット。
●居室のサッシには断熱性が高いペアガラスを採用。
●前面道路幅は約6m。見通しがよく車の出入庫も安心です。
●駅周辺にはスーパー・ドラッグストア・コンビニエンスストアなど
暮らしに便利な商業施設が揃っています。
- 日野店/渡部 敏哉
- 忙しい朝や遅い帰宅時にも嬉しい「百草園」駅徒歩6分!耐震等級3の地震に強い家が誕生します。
周辺環境も合わ…
- 価 格
-
3,990万円〜4,490万円<税込>
- 交 通
- 京王線『百草園』駅 徒歩6分
京王線『聖蹟桜ヶ丘』駅 徒歩21分
- 所在地
- 東京都日野市落川604-1
- 土地面積
- 91.68m²〜94.84m²
- 建物面積
- 72.44m²〜75.76m²
- 間取り
- 3LDK〜3LDK
- 完成年月
- 2026年5月
-
現地見学会開催中! 2026年4月4日(土)〜2026年4月12日(日) 11:00〜16:00
\太陽光発電搭載物件・エコな暮らしを叶えます!/
●多摩都市モノレール「甲州街道」駅 徒歩4分
●小学校徒歩10分・保育園9分と教育施設至近の立地♪
●約6m道路面につき車の出し入れも楽々
●来客時にも便利な駐車2台可能(車種による)
●南向きワイドスパンの広々LDKが魅力
●ご家族団らんの対面式キッチンにはビルトイン食洗機を標準完備
●浴室換気乾燥暖房機付きの為、冬も快適、入浴後もカラっと清潔
- 日野店/町田 琢巳
- スーパー・ドラッグストア・小学校徒歩10分圏内!
甲州街道駅より徒歩4分、この恵まれたロケーションによる幸…
- 価 格
-
5,498万円〜5,998万円<税込>
- 交 通
- 多摩都市モノレール『甲州街道』駅 徒歩4分
JR中央線『日野』駅 徒歩21分
- 所在地
- 東京都日野市大字日野986-1
- 土地面積
- 132m²〜144m²
- 建物面積
- 105.35m²〜107.2m²
- 間取り
- 3LDK〜4LDK
(全居室/+WIC…) - 完成年月
- 2026年4月
-
オープンハウス開催中! 2026年4月4日(土)〜2026年4月12日(日) 11:00〜16:00
●家族や仲間が集うLDKは約17.4帖
●収納力豊富なウォークインクローゼット
●食洗機は水仕事を軽減するとともに、手洗いに比べ節水効果も期待できます。
●雨の日の強い味方!浴室換気乾燥機付きユニットバスで洗濯物が乾かせます。
●面道路幅も16mあるので、全体としての見通しがよく、すれ違いや車を出し入れする際も安心です。
- 日野店/仁科 一之
- 【京王永山駅】【小田急永山】徒歩15分の好立地!
貴重な立地での物件です!
京王線、小田急線も利用可能な…
- 価 格
-
5,480万円<税込>
- 交 通
- 京王相模原線『京王永山』駅 徒歩15分
小田急多摩線『小田急永山』駅 徒歩16分
- 所在地
- 東京都多摩市豊ヶ丘1丁目35-28
- 土地面積
- 81.18m²
- 建物面積
- 112.65m²
- 間取り
- 2SLDK
(+WIC) - 完成年月
- 2026年4月
-
予約制見学会開催中! 2026年4月4日(土)〜2026年4月12日(日) 11:00〜16:00
\南側6m道路に面する6棟の新邸/
●太陽光をエネルギーに換える「太陽光発電」標準搭載
●調理中もご家族の様子がわかる対面式システムキッチン
●雨の日の強い味方!浴室換気乾燥機付きユニットバス
●来客時や駐輪スペースとして利用可能なカースペース2台可(車種による)
●前面道路6mのため見通しも良く運転のしやすい立地
●荷物が多くてもスマートに帰宅できるピタットKey
●地震に強いI.D.S工法
- 日野店/町田 琢巳
- 京王線・多摩都市モノレールの2路線利用可能な「高幡不動」駅まで徒歩14分!
太陽光発電搭載の新築分譲住宅6…
- 価 格
-
5,580万円〜5,680万円<税込>
- 交 通
- 京王線『高幡不動』駅 徒歩14分
京王線『百草園』駅 徒歩8分
- 所在地
- 東京都日野市落川
- 土地面積
- 105.22m²〜105.53m²
- 建物面積
- 97.7m²〜102.47m²
- 間取り
- 4LDK〜4LDK
- 完成年月
- 2026年5月
-
予約制見学会開催中! 2026年4月4日(土)〜2026年4月12日(日) 11:00〜16:00
●京王線「高幡不動」駅まで平坦で徒歩10分!
●京王線・多摩都市モノレールの2路線利用可能な立地。
●周辺にはドラッグストアや飲食店が揃う住みよい環境です。
●前面道路は歩道もありお子様のいる家庭にも安心です。
●2階にリビングを設置することで道路や外からの視線が届きにくい、
プライバシー性の高いリビングでゆっくりと寛ぐことができます。
●WIC×2部屋分と大容量の収納が可能な間取りです。
- 日野店/町田 琢巳
- 毎週、土・日・祝日の11:00~16:00に現地見学会を開催中。
営業スタッフが現地でお客様のご来場をお待…
- 価 格
-
4,980万円<税込>
- 交 通
- 京王線『高幡不動』駅 徒歩10分
多摩都市モノレール『高幡不動』駅 徒歩10分
- 所在地
- 東京都日野市三沢3丁目
- 土地面積
- 86.75m²
- 建物面積
- 96.98m²
- 間取り
- 4LDK
- 完成年月
- 2026年8月
-
現地見学会開催中! 2026年4月4日(土)〜2026年4月12日(日) 11:00〜16:00
◎敷地面積ゆとりの約143平米以上!
◎『万願寺』駅 徒歩7分/『高幡不動』駅 徒歩17分
●セミオーダー型住宅のご提案です。
「こんな部屋を作りたい」「こんな風に暮らしたい」
というお客様の夢をぜひお聞かせください。
●全区画に参考プランをご用意いたしました。
●一戸建ての多いエリアのため、静かで落ち着いた雰囲気の街並みです。
- 日野店/町田 琢巳
- 多摩都市モノレール「万願寺」駅7分に加え、京王線特急停車駅の「高幡不動」駅も徒歩17分です♪
高幡不動駅周…
- 価 格
-
3,780万円〜3,780万円
- 交 通
- 多摩都市モノレール『万願寺』駅 徒歩7分
京王線『高幡不動』駅 徒歩17分
- 所在地
- 東京都日野市石田1丁目26-5付近
- 土地面積
- 143.2m²〜143.22m²
- 土地権利
- 所有権
- 現況
- 更地
- 建築条件
- 建築条件付き
-
現地見学会開催中! 2026年4月4日(土)〜2026年4月12日(日) 10:30〜17:00
●家族が自然と顔を合わせるリビングイン階段
●会話を楽しみながら、家事が出来る対面式システムキッチン
●和室は、来客時のゲストルームやお子様のお昼寝など様々な用途で利用できます
●玄関がきれいに片付くシューズインクローゼット
●衣類の収納に役立つクローゼットは、全居室に設置があります
●ガーデニングや家庭菜園、星空観察も楽しめる屋上バルコニー
- 田無店/小川 基文
- 西武新宿線「小平」駅徒歩約7分。西武多摩湖線「青梅街道」駅も利用でき、国分寺駅経由で立川方面へのアクセスも快…
- 価 格
-
8,390万円〜8,490万円<税込>
- 交 通
- 西武新宿線『小平』駅 徒歩7分
西武多摩湖線『青梅街道』駅 徒歩15分
- 所在地
- 東京都小平市仲町172-10
- 土地面積
- 142.88m²〜142.88m²
- 建物面積
- 113.85m²〜114.26m²
- 間取り
- 4LDK〜5LDK
(1号棟+SIC …) - 完成年月
- 2026年3月
-
オープンハウス開催中! 2026年4月4日(土)〜2026年4月12日(日) 11:00〜16:00
最終2棟!
◎京王線「百草園」駅 徒歩8分◎
●LDKには大きな窓が施され、明るさと通風を確保した快適な空間です
●隙間のないなめらかな人造大理石の一体型システムキッチン
●シューズインクローゼットやWICを備えた収納豊富な間取り
●大型分譲地ならではの多彩なバリエーションの間取りで、
ご家族皆様のライフスタイルに合った邸宅がきっと見つかると思います
日野市三沢に全9区画の新たな街区が誕生!
同時期に生活をスタートさせるご家族の多い分譲地は、困ったときも心強い存在になりそうですね!
ぜひ、お気軽にお問い合わせくださいませ。
- 価 格
-
5,480万円〜5,680万円<税込>
- 交 通
- 京王線『百草園』駅 徒歩8分
京王線『高幡不動』駅 徒歩15分〜16分
- 所在地
- 東京都日野市三沢1095-3
- 土地面積
- 130.19m²〜131.42m²
- 建物面積
- 103.68m²〜103.68m²
- 間取り
- 4LDK〜4LDK
- 完成年月
- 2026年2月
-
現地見学会開催中! 2026年4月4日(土)〜2026年4月12日(日) 11:00〜16:00
\ 全28区画のビックコミュニティが誕生♪ /
◎「高幡不動」駅 徒歩15~16分
京王線・多摩都市モノレール・京王動物園線の3路線利用可能!
●お好きな間取りで理想のマイホームを建ててみませんか?
●建築条件はございませんので、
ライフスタイルに合わせた自由なマイホームづくりが可能です。
●同時期に生活をスタートさせるご家族の多い分譲地は、
困ったときも心強い存在になりそうですね!
日野市大字上田に全28区画の新たな街区が誕生いたします。
ターミナル駅の「高幡不動」駅が最寄り駅!
ショッピングやお出かけのアクセスも良好で、休日の行動範囲が広がります。
- 価 格
-
2,990万円〜3,990万円
- 交 通
- 京王線『高幡不動』駅 徒歩15分〜16分
JR中央線『日野』駅 バス13分「町屋」停歩5分
- 所在地
- 東京都日野市大字上田481-1
- 土地面積
- 133.03m²〜136.06m²
- 土地権利
- 所有権
- 現況
- 更地
- 建築条件
- 建築条件なし
-
オープンハウス開催中! 2026年4月4日(土)〜2026年4月12日(日) 11:00〜16:00
●多摩都市モノレール「甲州街道」駅 徒歩6~7分!
●南向きのバルコニーは日差しもたっぷり注ぎ、お洗濯物もよく乾きます。
●対面キッチンを採用したリビングは明るく開放感を主として設計しました。一日の中で一番長く家族が集まる場所だから機能性と利便性を重視しました。
経験豊かなスタッフが分譲地だけでなく学校、スーパー、公園と周辺環境も合わせてご案内致します。
お客様お一人お一人のご要望に沿ったご提案をさせて頂きます。
- 価 格
-
4,490万円〜5,490万円<税込>
- 交 通
- 多摩都市モノレール『甲州街道』駅 徒歩6分〜7分
JR中央線『国立』駅 バス37分「万願荘」停歩2分
- 所在地
- 東京都日野市大字日野7773-1
- 土地面積
- 120.04m²〜140.05m²
- 建物面積
- 93.42m²〜95.58m²
- 間取り
- 3LDK〜4LDK
(10・19・26…) - 完成年月
- 2026年4月
-
現地見学会開催中! 2026年4月4日(土)〜2026年4月12日(日) 11:00〜16:00
\モデル棟が完成しました!/
【全32区画のビッグコミュニティが誕生♪】
●多摩都市モノレール「甲州街道」駅 徒歩6分!
●フリースタイル分譲地で、個性あふれる住まいを実現いたしませんか?
●希望を叶える為に参考プランをご用意しております♪
●同時期に生活をスタートさせるご家族の多い分譲地は、困ったときも心強い存在になりそうですね
同現場内にモデル棟がございます!どのような建物が建つか具体的にイメージできますので、ぜひご内見くださいませ。
お客様お一人お一人のご要望に沿ったご提案をさせて頂きます。お気軽にお問合せくださいませ。
- 価 格
-
3,540万円
- 交 通
- 多摩都市モノレール『甲州街道』駅 徒歩6分
JR中央線『立川』駅 バス37分「万願荘」停歩2分
- 所在地
- 東京都日野市大字日野7773-1
- 土地面積
- 120.05m²
- 土地権利
- 所有権
- 現況
- 更地
- 建築条件
- 建築条件付き
-
現地見学会開催中! 2026年4月4日(土)〜2026年4月12日(日) 10:30〜16:00
●JR南武線「西府」駅徒歩19分~20分の立地!
●来客時にも便利な駐車2台可能(車種による)
●約16帖以上のゆったりリビング。家族でテーブルを囲む素敵な時間をお愉しみ下さい
●対面式のカウンターキッチンは、いつでもご家族を感じられる空間作りの重要ポイントになりそうです
●いつでもおいしいお水が飲める浄水器一体型水栓も完備
●雨天時の洗濯物や浴室内のカビ防止としても活躍する浴室換気乾燥機
- 府中店/平川 賢和
- JR南武線「西府」駅徒歩19分~20分の立地に大型開発分譲地が誕生!毎週【土曜日・日曜日・祝日】現地見学会開…
- 価 格
-
4,490万円〜5,190万円<税込>
- 交 通
- JR南武線『西府』駅 徒歩19分〜20分
JR南武線『谷保』駅 徒歩23分〜24分
- 所在地
- 東京都府中市日新町5丁目15付近
- 土地面積
- 110.02m²〜117.02m²
- 建物面積
- 87.35m²〜93.57m²
- 間取り
- 4LDK〜4LDK
(B・C・H・J/…) - 完成年月
- 2026年2月
-
オープンハウス開催中! 2026年4月4日(土)〜2026年4月12日(日) 11:00〜16:00
\ 日野市平山4丁目 全14区画 ビックコミュニティが誕生! /
●長期優良住宅認定物件
●「I.D.S工法」採用の地震に強い家!
●京王線「平山城址公園」駅まで徒歩8分
●南向きのバルコニーは日差しもたっぷり注ぎ、お洗濯物もよく乾きます
●4LDKの間取りでプライベート空間を満喫!
●前面道路はゆとりの5~6m。車の出し入れも楽々です
●来客時にも便利な駐車2台可能(車種による)
- 日野店/渡部 敏哉
- 日野市平山4丁目に全14区画の新たな街区が誕生します!
京王線「平山城址公園」駅 徒歩9分とアクセス良好!…
- 価 格
-
4,180万円〜5,080万円<税込>
- 交 通
- 京王線『平山城址公園』駅 徒歩9分
多摩都市モノレール『多摩センター』駅 バス19分「平山橋」停歩8分
- 所在地
- 東京都日野市平山4丁目22-6
- 土地面積
- 120.16m²〜129.79m²
- 建物面積
- 95.22m²〜102.68m²
- 間取り
- 4LDK〜4LDK
(1.4.5.6.…) - 完成年月
- 2026年3月
-
現地見学会開催中! 2026年4月4日(土)〜2026年4月12日(日) 10:30〜16:00
●来客時や駐輪スペースとしても利用可能なカースペース2台可(車種による)
●約15帖以上のゆったりリビング。家族でテーブルを囲む素敵な時間をお愉しみ下さい。
●キッチンから見渡せるリビングダイニングで、お料理中も会話が弾みます
●ウォークインクローゼットは、お洋服等がたくさん収納できて便利です。
●静音性や省エネ性に優れ、時間短縮に活躍する食器洗浄乾燥機
- 府中店/平川 賢和
- 府中市四谷2丁目に新築分譲住宅が全4棟で登場!建物完成しておりますので、ご内覧可能です。周辺環境も含めてご案…
- 価 格
-
5,280万円〜5,380万円<税込>
- 交 通
- JR南武線『西府』駅 徒歩19分〜20分
京王線『中河原』駅 徒歩17分
- 所在地
- 東京都府中市四谷2丁目43‐9
- 土地面積
- 110.01m²〜110.01m²
- 建物面積
- 99.36m²〜99.37m²
- 間取り
- 4LDK〜4LDK
(1号棟/+WIC…) - 完成年月
- 2025年12月
-
現地見学会開催中! 2026年4月4日(土)〜2026年4月12日(日) 10:30〜16:00
●西武多摩川線「多磨」駅より徒歩18分の立地
●京王線「多磨霊園」駅徒歩18分~19分
●隙間のないなめらかな人造大理石の一体型システムキッチン
●約16帖のゆったりリビング。家族でテーブルを囲む素敵な時間をお愉しみ下さい
●休日にまとめ買いをするご家庭はパントリーがあると便利
●換気機能によってバスルーム内のカビの発生を抑制できます。夜間や雨天時の洗濯物の乾燥に便利な乾燥機能も装備
- 府中店/平川 賢和
- 府中市多磨町に全7棟の新築分譲住宅が誕生!LDKは約16帖以上の広さ☆温水洗浄便座、シャワー付洗面化粧台、浴…
- 価 格
-
4,990万円〜6,290万円<税込>
- 交 通
- 西武多摩川線『多磨』駅 徒歩18分
京王線『多磨霊園』駅 徒歩18分〜19分
- 所在地
- 東京都府中市多磨町2丁目29‐13付近
- 土地面積
- 113.28m²〜120.06m²
- 建物面積
- 90.26m²〜96.04m²
- 間取り
- 3SLDK〜4LDK
(4号棟/+WIC…) - 完成年月
- 2026年2月
-
現地見学会開催中! 2026年4月4日(土)〜2026年4月12日(日) 10:30〜16:00
●JR南武線「西府」駅徒歩9分
●思い描くライフスタイルを自由にカタチにする自由設計分譲地
●我が家に合った暮らしを追及できるフリープランの建築条件付き土地で、夢のマイホームを建築してみませんか?
●セミオーダー型住宅のご提案です。「こんな部屋を作りたい」「こんな風に暮らしたい」というお客様の夢をぜひお聞かせください。
- 府中店/平川 賢和
- 府中市分梅町の建築条件付売地が登場です!建築条件付売地は注文住宅と建売住宅のいいとこ取り♪毎週【土曜・日曜・…
- 価 格
-
5,690万円〜5,990万円
- 交 通
- JR南武線『西府』駅 徒歩9分
京王線『分倍河原』駅 徒歩13分〜14分
- 所在地
- 東京都府中市分梅町3丁目41‐1
- 土地面積
- 120.1m²〜122.32m²
- 土地権利
- 所有権
- 現況
- 更地
- 建築条件
- 建築条件付き
-
現地見学会開催中! 2026年4月4日(土)〜2026年4月12日(日) 10:30〜16:00
●約18帖以上のゆったりリビング。家族でテーブルを囲む素敵な時間をお愉しみ下さい。
●1階よりも光が差し込みやすい2階にリビングを設置することで、明るいリビングを実現!
●リビングからキッチンが見えるので、小さなお子様もママの様子が見えて安心ですね。
●食後の片付けもラクに、毎日の家事を時短できるようキッチンに食洗機を内蔵しました。
- 府中店/平川 賢和
- 京王線・JR南武線「分倍河原」駅徒歩5分!約18帖以上のLDKに床暖房で家族団らんの場があたたかく過ごせます…
- 価 格
-
7,199万円〜7,199万円<税込>
- 交 通
- 京王線『分倍河原』駅 徒歩5分
JR南武線『分倍河原』駅 徒歩5分
- 所在地
- 東京都府中市分梅町1丁目10‐16
- 土地面積
- 82.1m²〜82.78m²
- 建物面積
- 93.24m²〜94.29m²
- 間取り
- 2SLDK〜2SLDK
(全棟/+備蓄倉庫…) - 完成年月
- 2026年3月
-
現地見学会開催中! 2026年4月4日(土)〜2026年4月12日(日) 10:30〜16:00
●京王線「多磨霊園」駅徒歩14分!
●約16帖以上のゆったりリビング。家族でテーブルを囲む素敵な時間をお愉しみ下さい。
●いつでもおいしいお水が飲める浄水器一体型水栓も完備
●パントリーがあればキッチン回りが乱雑にならず、料理も効率良くできます
●幼い子供がいると汚れものが多く、いつでも洗濯物を干せるのが嬉しい浴室換気乾燥機!
- 府中店/平川 賢和
- 府中市是政に全4区画の新築分譲住宅が誕生!毎週【土曜日・日曜日・祝日】現地見学会開催!物件のことはもちろん、…
- 価 格
-
5,090万円〜5,590万円<税込>
- 交 通
- 京王線『多磨霊園』駅 徒歩14分
西武多摩川線『是政』駅 徒歩12分
- 所在地
- 東京都府中市是政2丁目12‐72
- 土地面積
- 107.62m²〜116.01m²
- 建物面積
- 93.98m²〜100.6m²
- 間取り
- 4LDK〜4LDK
(1号棟/+WIC…) - 完成年月
- 2026年3月
-
現地見学会開催中! 2026年4月4日(土)〜2026年4月12日(日) 10:30〜16:00
●建築条件はございませんので、ライフスタイルに合わせた自由なマイホームづくりが可能です。
●フリースタイル分譲地で、個性あふれる住まいを実現いたしませんか?
- 府中店/平川 賢和
- 京王線「中河原」駅より徒歩19分の立地に全4区画の宅地分譲が誕生!建築条件はございませんので、お好きなハウス…
- 価 格
-
2,980万円〜3,480万円
- 交 通
- 京王線『中河原』駅 徒歩19分〜20分
京王線『聖蹟桜ヶ丘』駅 徒歩24分〜25分
- 所在地
- 東京都府中市四谷3丁目48-32
- 土地面積
- 102.09m²〜104.06m²
- 土地権利
- 所有権
- 現況
- 更地
- 建築条件
- 建築条件なし
-
現地見学会開催中! 2026年4月4日(土)〜2026年4月12日(日) 10:30〜16:00
●京王線・JR南武線「分倍河原」駅徒歩13分!
●約18帖超のゆったりリビング。家族でテーブルを囲む素敵な時間をお愉しみ下さい。
●キッチンから見渡せるリビングダイニングで、お料理中も会話が弾みます
●静音性や省エネ性に優れ、時間短縮に活躍する食器洗浄乾燥機
●釣り・キャンプ・ゴルフ用品など、多趣味なご家族には土間収納が便利
- 府中店/平川 賢和
- 毎週【土曜日・日曜日・祝日】現地見学会開催!京王線・JR南武線が利用可能な「分倍河原」駅徒歩13分の立地。L…
- 価 格
-
6,599万円〜7,299万円<税込>
- 交 通
- 京王線『分倍河原』駅 徒歩13分
JR南武線『分倍河原』駅 徒歩13分
- 所在地
- 東京都府中市分梅町5丁目40‐8
- 土地面積
- 121.36m²〜121.48m²
- 建物面積
- 95.82m²〜96.44m²
- 間取り
- 3SLDK〜4LDK
(全棟/+土間収納 ) - 完成年月
- 2026年3月
-
現地見学会開催中! 2026年4月4日(土)〜2026年4月12日(日) 10:30〜16:00
●京王線・京王競馬場線「東府中」駅徒歩15分
●京王線「多磨霊園」駅徒歩15分
●約15帖以上のゆったりリビング。家族でテーブルを囲む素敵な時間をお愉しみ下さい。
●リビングからキッチンが見えるので、小さなお子様もママの様子が見えて安心ですね。
●いつでもおいしいお水が飲める浄水器一体型水栓も完備
●雨天時の洗濯物や浴室内のカビ防止としても活躍する浴室換気乾燥機
- 府中店/平川 賢和
- 京王線「東府中」駅より徒歩15分の立地!府中市若松町の全4棟新築分譲住宅☆毎週【土曜日・日曜日・祝日】現地見…
- 価 格
-
5,790万円<税込>
- 交 通
- 京王線『東府中』駅 徒歩15分
京王線『多磨霊園』駅 徒歩15分
- 所在地
- 東京都府中市若松町3丁目10‐7
- 土地面積
- 101.26m²
- 建物面積
- 80.58m²
- 間取り
- 2SLDK
(2号棟/+WIC…) - 完成年月
- 2026年2月
-
現地見学会開催中! 2026年4月4日(土)〜2026年4月12日(日) 10:30〜16:00
●来客時や駐輪スペースとしても利用可能なカースペース2台可(車種による)
●家族が揃って食事できるゆとりある大きさのLDK約16.6帖
●雨天時の洗濯物や浴室内のカビ防止としても活躍する浴室換気乾燥機
●きれいでさわやか、ウォシュレット付きトイレ
●ビルトイン食洗機を標準完備し、家事時間が短縮できます。
●TVモニター付きインターホンのため訪問者がひと目で分かります
- 府中店/平川 賢和
- 西部多摩川線 競艇場前駅まで徒歩9分、京王線 多磨霊園駅まで徒歩11分も2路線利用可能な物件です。
南向き…
- 価 格
-
5,899万円〜6,099万円<税込>
- 交 通
- 西武多摩川線『競艇場前』駅 徒歩9分
京王線『多磨霊園』駅 徒歩11分
- 所在地
- 東京都府中市小柳町2丁目38-7
- 土地面積
- 106.03m²〜107.01m²
- 建物面積
- 84.43m²〜85.54m²
- 間取り
- 3LDK〜3LDK
(1号棟/+WIC) - 完成年月
- 2026年4月
-
現地見学会開催中! 2026年4月4日(土)〜2026年4月12日(日) 10:30〜17:00
●対面式のカウンターキッチンは、いつでもご家族を感じられる空間作りの重要ポイントになりそうです。
●隙間のないなめらかな人造大理石の一体型システムキッチン
●家族や仲間が集うLDKは約17.5帖あり、ゆったりと寛げる空間です。
●家族が集まるリビングに階段を設ける事で、自然と家族のコミュニケーションが広がります。
●平日のご案内も可能です。まずはお気軽にお問合せ下さいませ。
- 田無店/小川 基文
- ☆西武新宿線「西武柳沢」駅徒歩11分の好立地!3面採光のリビングに4部屋の洋室のプランです。街並みなども併せ…
- 価 格
-
5,480万円<税込>
- 交 通
- 西武新宿線『西武柳沢』駅 徒歩11分
西武新宿線『東伏見』駅 徒歩18分
- 所在地
- 東京都西東京市保谷町1丁目5-29
- 土地面積
- 93.89m²
- 建物面積
- 87.68m²
- 間取り
- 4LDK
- 完成年月
- 2026年3月
-
オープンハウス開催中! 2026年4月4日(土)〜2026年4月12日(日) 10:30〜17:00
●来客時や駐輪スペースとしても利用可能な並列カースペース2台可(車種による)
●空気を汚さず暖かい床暖房
●浴室は換気・乾燥・暖房機付きで、入浴前も入浴後も快適です
●奥行のあるウォークインクローゼットでたっぷり収納できます!
●家族との会話も弾む対面式キッチン
●食洗機は水仕事を軽減するとともに、手洗いに比べ節水効果も期待できます
- 田無店/小川 基文
- ■西武多摩湖線「一橋学園」駅 徒歩12分
■4LDK+カースペース
■周辺環境も含めてご案内いたします!…
- 価 格
-
5,699万円<税込>
- 交 通
- 西武多摩湖線『一橋学園』駅 徒歩12分
西武新宿線『小平』駅 徒歩17分
- 所在地
- 東京都小平市仲町563-28
- 土地面積
- 119.21m²
- 建物面積
- 95.22m²
- 間取り
- 4LDK
(+WIC、土間収納) - 完成年月
- 2026年1月
-
現地見学会開催中! 2026年4月4日(土)〜2026年4月12日(日) 10:30〜17:00
●家族が揃って食事できるゆとりある大きさのLDK約19.6帖
●ご家族の様子がわかり、会話も楽しめる対面式システムキッチン
●ビルトイン食洗機を標準完備し、家事時間が短縮できます。
●いつでもおいしいお水が飲める浄水器も完備
●納戸は収納としてだけでなくテレワークにも活用できます。
クローズドな空間だから仕事にも集中できますね!
- 田無店/小川 基文
- ご見学の際は周辺環境も合わせてご案内いたします。
ぜひお気軽にお問い合わせください。
- 価 格
-
7,499万円<税込>
- 交 通
- 西武新宿線『田無』駅 徒歩5分
西武新宿線『西武柳沢』駅 徒歩21分
- 所在地
- 東京都西東京市南町4丁目9-1
- 土地面積
- 88.02m²
- 建物面積
- 104.78m²
- 間取り
- 2SLDK
(+備蓄倉庫) - 完成年月
- 2026年1月
-
現地見学会開催中! 2026年4月4日(土)〜2026年4月12日(日) 10:30〜17:00
●西武新宿線「田無」駅徒歩9分
●大きな吹き抜けで明るく開放感のある2階リビング
●衣類の収納に便利なウォークインクローゼット
●使いやすくスタイリッシュなシステムキッチンには、毎日お使いになる方の視点が存分に活かされています。
●ゆったり1坪サイズの浴室で1日の疲れをリセット
●ぜひお気軽にご連絡・ご相談ください!
- 田無店/野村 智一
- 田無駅徒歩9分の好立地に全1棟の新築戸建。土地約31坪・建物134㎡超のゆとりある間取り。駅近と住空間を両立…
- 価 格
-
7,499万円<税込>
- 交 通
- 西武新宿線『田無』駅 徒歩9分
西武新宿線『西武柳沢』駅 徒歩25分
- 所在地
- 東京都西東京市田無町6丁目
- 土地面積
- 104.04m²
- 建物面積
- 134.8m²
- 間取り
- 2SLDK
(+S(納戸)・W…) - 完成年月
- 2026年3月
-
現地見学会開催中! 2026年4月4日(土)〜2026年4月12日(日) 10:30〜17:00
●乾燥しすぎず、埃も舞わずハウスダストが少ないクリーンな室内をキープする床暖房
●雨の日の強い味方!浴室換気乾燥機付きユニットバスで洗濯物が乾かせます。
●システムキッチンはビルトイン浄水器、食器洗浄乾燥機などの設備が整っています。
●ウォークインクローゼットは、お洋服等がたくさん収納できて便利です。
●釣り・キャンプ・ゴルフ用品など、多趣味なご家族には土間収納が便利
- 田無店/小川 基文
- ZEH水準住宅!
機能性と快適さを兼ね備えた一戸建て
収納豊富な間取りは子育て世代に優しい住まい
- 価 格
-
7,499万円<税込>
- 交 通
- 西武新宿線『西武柳沢』駅 徒歩15分
西武新宿線『東伏見』駅 徒歩21分
- 所在地
- 東京都西東京市保谷町6丁目24‐19
- 土地面積
- 135.68m²
- 建物面積
- 109.09m²
- 間取り
- 4LDK
(+WIC、土間収納) - 完成年月
- 2026年3月
-
現地見学会開催中! 2026年4月4日(土)〜2026年4月12日(日) 11:00〜16:00
●家族や仲間が集うLDKは約20帖あり、ゆったりと寛げる空間です。
●ご家族の様子がわかり、会話も楽しめる対面式システムキッチン
●キッチンにはパントリーがあり、食品などをしっかりストックできます。
●全居室2面採光で明るいお部屋
●各居室にはクローゼットを完備し、家具を置くスペースが確保しやすい設計がされております。
- 八王子店/渡部 敏哉
- 毎週、土・日・祝日の11:00~16:00に現地見学会を開催中。営業スタッフが現地でお客様のご来場をお待ちし…
- 価 格
-
4,890万円<税込>
- 交 通
- JR中央線『西八王子』駅 徒歩20分
JR横浜線『八王子』駅 バス16分「多賀公園入口」停歩3分
- 所在地
- 東京都八王子市元本郷町4丁目18
- 土地面積
- 109.59m²
- 建物面積
- 92.34m²
- 間取り
- 3SLDK
- 完成年月
- 2026年6月
-
オープンハウス開催中! 2026年4月4日(土)〜2026年4月12日(日) 11:00〜16:00
●JR中央線「八王子」駅徒歩14分
●約15.63帖のゆったりリビング、家族でテーブルを囲む素敵な時間をお愉しみ下さい
●キッチンからリビング全体が見渡せ、目の離せない小さなお子様の様子を見ながら家事ができます
●風通しの良い全室2面採光
●全居室に収納スペース有
●見学はしたいけど、なかなか時間が取れない・・・そんな方に出勤前や仕事終わりにマイホームを見学できるサポートをいたします
- 八王子店/森田 信育
- リビング約15.5坪で快適に生活できます!完成物件なのでいつでも見学可能です!お客様お一人お一人のご要望に沿…
- 価 格
-
4,490万円<税込>
- 交 通
- JR中央線『八王子』駅 徒歩14分
JR横浜線『八王子』駅 徒歩14分
- 所在地
- 東京都八王子市本町22‐11
- 土地面積
- 69.81m²
- 建物面積
- 104.53m²
- 間取り
- 2SLDK
(+S) - 築年月
- 2024年5月
-
オープンハウス開催中! 2026年4月4日(土)〜2026年4月12日(日) 11:00〜16:00
●使いやすくスタイリッシュなシステムキッチンには、毎日お使いになる方の視点が存分に活かされています。
●お食事やお茶の準備中でもお子様に目が届き、ご家族と会話を楽しめる家族思いの対面式キッチンです。
●各居室にはクローゼットを完備し、家具を置くスペースが確保しやすい設計がされております。
●平日のご案内も可能です。まずはお気軽にお問合せ下さいませ。
- 八王子店/森田 信育
- 毎週、土・日・祝日の11:00~16:00にオープンハウスを開催中。営業スタッフが現地でお客様のご来場をお待…
- 価 格
-
2,680万円<税込>
- 交 通
- JR中央線『西八王子』駅 バス25分「神戸会館入口」停歩6分
京王高尾線『高尾』駅 バス17分「慈根寺」停歩12分
- 所在地
- 東京都八王子市弐分方町138-1
- 土地面積
- 147.41m²
- 建物面積
- 95.22m²
- 間取り
- 4LDK
(1・2・3号棟+…) - 完成年月
- 2025年9月
-
オープンハウス開催中! 2026年4月4日(土)〜2026年4月12日(日) 11:00〜16:00
●京王線『京王八王子』駅徒歩11分、中央線『八王子』駅徒歩12分♪
●前面道路ゆとりの約5m!
●家族の集まるLDKはゆったり約18.1帖
●ご家族の様子がわかり、会話も楽しめる対面式システムキッチン
●収納量ばっちりのウォークインクローゼット!
●各居室にはクローゼットを完備
- 八王子店/渡部 敏哉
- 毎週、土・日・祝日の11:00~16:00にオープンハウスを開催中。営業スタッフが現地でお客様のご来場をお待…
- 価 格
-
5,099万円<税込>
- 交 通
- 京王線『京王八王子』駅 徒歩11分
JR中央線『八王子』駅 徒歩12分
- 所在地
- 東京都八王子市子安町1丁目55-2
- 土地面積
- 99.38m²
- 建物面積
- 94.41m²
- 間取り
- 4LDK
(+WIC) - 完成年月
- 2025年11月
-
オープンハウス開催中! 2026年4月4日(土)〜2026年4月12日(日) 11:00〜16:00
●「長期優良住宅×耐震等級3×断熱等級6」の新築全3棟
●来客時にも便利な駐車2台可能(車種による)
●ご家族の様子がわかり、会話も楽しめる対面式システムキッチン
●TVモニター付きインターホンのため訪問者がひと目で分かります
●周辺環境と合わせてご案内いたします
●物件や諸費用の事など、小さな疑問もお気軽にご相談下さい!
- 八王子店/森田 信育
- 毎週、土・日・祝日の11:00~16:00に現地見学会を開催中。営業スタッフが現地でお客様のご来場をお待ちし…
- 価 格
-
3,280万円〜3,280万円<税込>
- 交 通
- JR中央本線『高尾』駅 バス20分「川原宿」停歩5分
- 所在地
- 東京都八王子市下恩方町931
- 土地面積
- 158.89m²〜158.95m²
- 建物面積
- 91.5m²〜93.73m²
- 間取り
- 3LDK〜3LDK
(1号棟+WIC …) - 完成年月
- 2026年3月
-
オープンハウス開催中! 2026年4月4日(土)〜2026年4月12日(日) 11:00〜16:00
【スクール情報】
八王子市立いずみの森義務教育学校まで約530m
●JR中央線「八王子」駅 徒歩12分
●家族の集まるLDKはゆったり約17.25帖
●ご家族の様子がわかり、会話も楽しめる対面式システムキッチン
●各居室にはクローゼットを完備
●物件の事、諸費用の事など、小さな疑問も担当までお気軽にご連絡・ご相談下さい。
- 八王子店/大木 直也
- 「八王子」駅徒歩12分の好立地!毎週、土・日・祝日の11:00~16:00に現地見学会を開催中。営業スタッフ…
- 価 格
-
5,599万円<税込>
- 交 通
- JR中央線『八王子』駅 徒歩12分
京王線『京王八王子』駅 徒歩12分
- 所在地
- 東京都八王子市子安町1丁目38-3
- 土地面積
- 92.99m²
- 建物面積
- 91.49m²
- 間取り
- 4LDK
- 完成年月
- 2026年3月
-
オープンハウス開催中! 2026年4月4日(土)〜2026年4月12日(日) 11:00〜16:00
●システムキッチンには、毎日お使いになる方の視点が存分に活かされています。
●ご家族やお友達とのお食事やティータイムを楽しめる対面キッチン。
●雨天時の洗濯物や浴室内のカビ防止としても活躍する浴室換気乾燥機
●シャワードレッサーで寝ぐせ直しも楽ちん!
- 八王子店/森田 信育
- 京王線【京王八王子駅】徒歩16分です!コンビニ・スーパーも徒歩10分圏内にございますので生活利便性があります…
- 価 格
-
4,499万円〜4,499万円<税込>
- 交 通
- 京王線『京王八王子』駅 徒歩16分
JR中央線『八王子』駅 徒歩24分
- 所在地
- 東京都八王子市大和田町3丁目11-9
- 土地面積
- 124.39m²〜142.63m²
- 建物面積
- 100.44m²〜106.92m²
- 間取り
- 4LDK〜4LDK
(全棟+WIC、パ…) - 完成年月
- 2025年11月
-
オープンハウス開催中! 2026年4月4日(土)〜2026年4月12日(日) 11:00〜16:00
●雨の日の強い味方!浴室換気乾燥機付きユニットバスで洗濯物が乾かせます。
●いつでもおいしいお水が飲める浄水器一体型水栓も完備
●後片付けの救世主! 食洗機付きシステムキッチン
●各居室にはクローゼットを完備し、家具を置くスペースが確保しやすい設計がされております。
●ご家族の様子がわかり、会話も楽しめる対面式システムキッチン
- 八王子店/渡部 敏哉
- 毎週、土・日・祝日の11:00~16:00にオープンハウスを開催中。営業スタッフが現地でお客様のご来場をお待…
- 価 格
-
5,399万円<税込>
- 交 通
- JR中央線『八王子』駅 徒歩9分
京王高尾線『京王片倉』駅 徒歩10分
- 所在地
- 東京都八王子市子安町3丁目21‐13
- 土地面積
- 83.35m²
- 建物面積
- 91m²
- 間取り
- 3LDK
- 完成年月
- 2026年1月
-
オープンハウス開催中! 2026年4月4日(土)〜2026年4月12日(日) 11:00〜16:00
●来客時にも便利な駐車2台可能(車種による)
●約20帖のゆとりを確保した広々LDK
●リビング全体が見渡せる対面式キッチン
●キッチン付近の収納はストックを大量に収納可能です
●コミュニケーション重視のリビングイン階段
●ゆとりのウォークインクローゼット付主寝室約9.7帖
●洗濯物もお布団もたっぷり干せる南側のバルコニー
●家族が集まる空間を足元から温める床暖房
- 八王子店/渡部 敏哉
- 毎週、土・日・祝日の11:00~16:00にオープンハウスを開催中。営業スタッフが現地でお客様のご来場をお待…
- 価 格
-
5,199万円<税込>
- 交 通
- 京王相模原線『南大沢』駅 徒歩23分
JR横浜線『橋本』駅 バス20分「日影橋」停歩3分
- 所在地
- 東京都八王子市上柚木691-3
- 土地面積
- 132.04m²
- 建物面積
- 104.5m²
- 間取り
- 4LDK
(+WIC) - 完成年月
- 2025年12月
-
オープンハウス開催中! 2026年4月4日(土)〜2026年4月12日(日) 11:00〜16:00
●あったら嬉しい♪大容量のウォークインクローゼットを完備!
●大容量のシューズインクロークで玄関もスッキリ♪
●自分だけのプライベート時間を確保できるフリースペース。読書・趣味・デスクワーク等に集中できます!
●折り上げ天井の視覚的な効果で、開放感のあるおしゃれなリビング空間を演出できます。
●平日のご案内も可能です。まずはお気軽にお問合せくださいませ。
- 八王子店/森田 信育
- JR横浜線「片倉」駅 徒歩11分!通勤・通学に大変便利です。経験豊かなスタッフが分譲地だけでなく学校、スーパ…
- 価 格
-
5,659万円<税込>
- 交 通
- JR横浜線『片倉』駅 徒歩11分
京王線『北野』駅 徒歩18分
- 所在地
- 東京都八王子市打越町1577-15
- 土地面積
- 233.61m²
- 建物面積
- 106.07m²
- 間取り
- 4LDK
(+WIC、SIC…) - 完成年月
- 2026年1月
-
オープンハウス開催中! 2026年4月4日(土)〜2026年4月12日(日) 11:00〜16:00
●いつでもおいしいお水が飲める浄水器一体型水栓も完備
●家事の時間を短縮する食洗機
●雨の日でも洗濯物が乾かせる浴室乾燥機
●収納力豊富なウォークインクローゼットで、バッグや小物類も片付きます。
●調味料や保存食・食品類を保管しておくためのパントリー付き
●家族との会話も弾む対面式キッチン
●全居室に収納スペース有
●平日のご案内も可能です、まずはお気軽にお問合せ下さいませ
- 八王子店/大木 直也
- 毎週、土・日・祝日の11:00~16:00に現地見学会を開催中。営業スタッフが現地でお客様のご来場をお待ちし…
- 価 格
-
4,895万円〜4,985万円<税込>
- 交 通
- 京王高尾線『山田』駅 徒歩2分
JR中央線『西八王子』駅 徒歩26分
- 所在地
- 東京都八王子市緑町431付近
- 土地面積
- 106.55m²〜118.84m²
- 建物面積
- 94.6m²〜96.59m²
- 間取り
- 3LDK〜3LDK
- 完成年月
- 2026年3月
-
現地見学会開催中! 2026年4月4日(土)〜2026年4月12日(日) 11:00〜16:00
●建築条件はございませんので、ライフスタイルに合わせた自由なマイホームづくりが可能です。
●注文住宅は高いのでは?と不安があるかもしれません。当社オリジナルの注文住宅建築システム「ハウス会」では、お客様のご要望に合わせて最適な建築会社をご紹介させていただきます。
●住まいの事なら地元で豊富な実績を誇る、地域密着の藤和ハウスへお任せ下さい!
- 八王子店/森田 信育
- 毎週、土・日・祝日の11:00~16:00に現地見学会を開催中。営業スタッフが現地でお客様のご来場をお待ちし…
- 価 格
-
2,480万円
- 交 通
- JR中央線『八王子』駅 バス14分「中野山王」停歩8分
京王線『京王八王子』駅 バス13分「中野団地」停歩5分
- 所在地
- 東京都八王子市中野山王1丁目25‐15
- 土地面積
- 203m²
- 土地権利
- 所有権
- 現況
- 更地
- 建築条件
- 建築条件なし
-
現地見学会開催中! 2026年4月4日(土)〜2026年4月12日(日) 11:00〜16:00
●ウォークインクローゼットは、お洋服等がたくさん収納できて便利です。
●来客時や駐輪スペースとしても利用可能なカースペース2台可(車種による)
●家族が揃って食事できるゆとりある大きさのLDK約19.4帖
●雨天時の洗濯物や浴室内のカビ防止としても活躍する浴室換気乾燥機
●TVモニター付きインターホンのため訪問者がひと目で分かります
- 八王子店/森田 信育
- 毎週、土・日・祝日の11:00~16:00に現地見学会を開催中。営業スタッフが現地でお客様のご来場をお待ちし…
- 価 格
-
5,799万円<税込>
- 交 通
- JR中央線『西八王子』駅 徒歩12分
JR横浜線『八王子』駅 バス11分「追分」停歩3分
- 所在地
- 東京都八王子市追分町18-20
- 土地面積
- 135.36m²
- 建物面積
- 100.2m²
- 間取り
- 4LDK
(+WIC) - 完成年月
- 2026年4月
-
オープンハウス開催中! 2026年4月4日(土)〜2026年4月12日(日) 11:00〜16:00
●長期優良住宅につき税制面で優遇が受けられます。
●耐震等級3の地震に強いおうち
●断熱等級6!
●全棟来客時にも便利な駐車2台可能(車種による)
●太陽光発電搭載物件♪
●ご家族の様子がわかり、会話も楽しめる対面式システムキッチン
●雨の日の強い味方!浴室換気乾燥機付きユニットバスで洗濯物が乾かせます。
●平日のご案内も可能です。まずはお気軽にお問合せくださいませ。
- 八王子店/森田 信育
- 毎週、土・日・祝日の11:00~16:00にオープンハウスを開催中。営業スタッフが現地でお客様のご来場をお待…
- 価 格
-
3,080万円〜3,280万円<税込>
- 交 通
- JR中央線『八王子』駅 バス35分「影沢」停歩3分
京王線『京王八王子』駅 バス40分「影沢」停歩3分
- 所在地
- 東京都八王子市川口町3287-5
- 土地面積
- 135.3m²〜193.62m²
- 建物面積
- 92.74m²〜99.36m²
- 間取り
- 3LDK〜4LDK
- 完成年月
- 2026年3月
-
現地見学会開催中! 2026年4月4日(土)〜2026年4月12日(日) 11:00〜16:00
●ハウスメーカーからプランまで自由にマイホームがつくれる宅地分譲
●夢の注文住宅だけど何から決めれば良いか分からない時は、お気軽にご相談ください!
●当社オリジナル「ハウス会」で、信頼と実績の建築会社を紹介可能です
●周辺環境もご案内いたしますので、お気軽にお問い合わせください♪
●物件や諸費用の事など、地域密着の弊社へご相談ください!
- 八王子店/大木 直也
- 毎週、土・日・祝日の11:00~16:00に現地見学会を開催中。営業スタッフが現地でお客様のご来場をお待ちし…
- 価 格
-
2,899万円
- 交 通
- 京王高尾線『山田』駅 徒歩6分
JR中央線『西八王子』駅 徒歩19分
- 所在地
- 東京都八王子市緑町353‐33
- 土地面積
- 108.36m²
- 土地権利
- 所有権
- 現況
- 更地
- 建築条件
- 建築条件なし
-
予約制見学会開催中! 2026年4月4日(土)〜2026年4月12日(日) 11:00〜16:00
●JR中央線、JR横浜線「八王子」駅徒歩15分
●前面道路はゆとりの5m。車の出し入れも楽々です。
●約20帖のゆったりリビング
●リビングにいるご家族を見渡せる対面キッチン
●キッチンには家事時間を短縮する食洗機付き
●シャワードレッサーで寝ぐせ直しも楽ちん!
●大容量のシューズインクロークで玄関もスッキリ
- 八王子店/森田 信育
- JR中央線『八王子』駅徒歩15分!通勤・通学に大変便利です。経験豊かなスタッフが分譲地だけでなく学校、スーパ…
- 価 格
-
5,999万円<税込>
- 交 通
- JR中央線『八王子』駅 徒歩15分
JR横浜線『八王子』駅 徒歩15分
- 所在地
- 東京都八王子市元横山町3丁目
- 土地面積
- 117.32m²
- 建物面積
- 108.86m²
- 間取り
- 4LDK
(+SIC、パント…) - 完成年月
- 2026年6月
-
現地見学会開催中! 2026年4月4日(土)〜2026年4月12日(日) 11:00〜16:00
●隙間のないなめらかな人造大理石の一体型システムキッチン
●居室から直接バルコニーへ出られる為、晴れた日は布団を干すことができます
●全居室収納スペース付き
●各階にトイレがあると、階段の上り下りをせずに済むため就寝時なども便利です
●前面道路はゆとりの5m。車の出し入れも楽々です。
- 八王子店/森田 信育
- 毎週、土・日・祝日の11:00~16:00に現地見学会を開催中。営業スタッフが現地でお客様のご来場をお待ちし…
- 価 格
-
2,790万円〜3,350万円<税込>
- 交 通
- JR中央線『西八王子』駅 バス15分「滝原新橋」停歩8分
JR横浜線『八王子』駅 バス22分「四谷」停歩16分
- 所在地
- 東京都八王子市弐分方町725‐5
- 土地面積
- 124.5m²〜126.6m²
- 建物面積
- 96.21m²〜98.12m²
- 間取り
- 4LDK〜4LDK
- 完成年月
- 2026年4月
-
現地見学会開催中! 2026年4月4日(土)〜2026年4月12日(日) 11:00〜16:00
●たっぷりの日差しや心地良い風が入る、広々としたリビングが魅力。
●家族との会話も弾む対面式キッチン
●来客時にも便利な駐車2台可能(車種による)
●各居室は2面採光により、明るく開放的な空間となっています。
●各居室にはクローゼットを完備し、家具を置くスペースが確保しやすい設計がされております。
- 八王子店/森田 信育
- 毎週、土・日・祝日の11:00~16:00に現地見学会を開催中。営業スタッフが現地でお客様のご来場をお待ちし…
- 価 格
-
2,690万円〜3,190万円<税込>
- 交 通
- JR中央線『西八王子』駅 バス19分「二分方小学校」停歩6分
京王高尾線『高尾』駅 バス22分「高尾駅北口」停歩8分
- 所在地
- 東京都八王子市弐分方町732付近
- 土地面積
- 124.52m²〜150.64m²
- 建物面積
- 90.98m²〜98.95m²
- 間取り
- 4LDK〜4LDK
- 完成年月
- 2026年5月
-
現地見学会開催中! 2026年4月4日(土)〜2026年4月12日(日) 11:00〜16:00
●JR八高線「北八王子」駅 徒歩9分!
●理想をかなえる自由設計の土地!ぜひ皆様の「こんな家に住みたい!」をお聞かせ下さい。
●平日のご案内も可能です。まずはお気軽にお問合せ下さいませ。
●物件の事、諸費用の事など、小さな疑問もお気軽にご連絡・ご相談下さい。
●お住まい探しは、家の良し悪しだけでなく周辺環境も重要なポイントです。ぜひ一度お客様の目でご覧ください。
- 八王子店/森田 信育
- 毎週、土・日・祝日の11:00~16:00に現地見学会を開催中。営業スタッフが現地でお客様のご来場をお待ちし…
- 価 格
-
1,980万円<税込>
- 交 通
- JR八高線『北八王子』駅 徒歩9分
JR中央線『豊田』駅 徒歩23分
- 所在地
- 東京都八王子市高倉町25-19
- 土地面積
- 59.38m²
- 土地権利
- 所有権
- 現況
- 更地
- 建築条件
- 建築条件付き
-
現地見学会開催中! 2026年4月4日(土)〜2026年4月12日(日) 10:30〜16:00
●西武多摩川線「多磨」駅徒歩15分
●建築条件はございませんので、ライフスタイルに合わせた自由なマイホームづくりが可能です
●ハウスメーカーから建物プランまで、あなたの「夢」を「カタチ」にできるフリースタイル分譲地
●何から決めれば良いか分からない時は、お気軽にご相談ください♪
- 府中店/平川 賢和
- 分譲地だけでなく、周辺環境も合わせてご案内致します。
お客様のご要望に沿ったご提案をさせて頂きますので、お…
- 価 格
-
2,990万円〜3,390万円
- 交 通
- 西武多摩川線『多磨』駅 徒歩15分
西武多摩川線『白糸台』駅 徒歩22分
- 所在地
- 東京都府中市紅葉丘2丁目39-9
- 土地面積
- 87.39m²〜89.2m²
- 土地権利
- 所有権
- 現況
- 更地
- 建築条件
- 建築条件なし
-
現地見学会開催中! 2026年4月4日(土)〜2026年4月12日(日) 10:30〜16:00
●京王線「武蔵野台」駅徒歩6分
●西武多摩川線「白糸台」駅徒歩6分
●家族が揃って食事できるゆとりある大きさのLDK約17帖以上
●キッチンから見渡せるリビングダイニングで、お料理中も会話が弾みます
●雨天時の洗濯物や浴室内のカビ防止としても活躍する浴室換気乾燥機
●納戸は窓が控えめで日光の影響を受けにくく、洋服や本の日焼けを気にせず保管することができます
- 府中店/平川 賢和
- 「武蔵野台」駅・「白糸台」駅より徒歩6分の立地に新築分譲住宅が誕生します!毎週【土曜日・日曜日・祝日】現地見…
- 価 格
-
6,790万円<税込>
- 交 通
- 京王線『武蔵野台』駅 徒歩6分
西武多摩川線『白糸台』駅 徒歩6分
- 所在地
- 東京都府中市白糸台3丁目2‐11
- 土地面積
- 74.73m²
- 建物面積
- 120.88m²
- 間取り
- 3SLDK
(1号棟/+WIC) - 完成年月
- 2026年2月
-
現地見学会開催中! 2026年4月4日(土)〜2026年4月12日(日) 10:30〜16:00
●JR南武線「西府」駅徒歩16分!
●約18帖以上のゆったりリビング。家族でテーブルを囲む素敵な時間をお愉しみ下さい。
●対面式のカウンターキッチンは、いつでもご家族を感じられる空間作りの重要ポイントになりそうです。
●換気機能によってバスルーム内のカビの発生を抑制できます。夜間や雨天時の洗濯物の乾燥に便利な乾燥機能も装備。
●温水洗浄機能付きトイレで清潔にご使用いただけます。
- 府中店/平川 賢和
- JR南武線「西府」駅より徒歩16分の立地に新築分譲住宅が誕生!毎週【土曜日・日曜日・祝日】現地見学会開催!周…
- 価 格
-
4,690万円〜4,990万円<税込>
- 交 通
- JR南武線『西府』駅 徒歩16分
JR南武線『谷保』駅 徒歩21分
- 所在地
- 東京都府中市日新町4丁目34‐6
- 土地面積
- 131.35m²〜131.6m²
- 建物面積
- 95.58m²〜100.44m²
- 間取り
- 4LDK〜4LDK
(3号棟/+パント…) - 完成年月
- 2026年2月
-
現地見学会開催中! 2026年4月4日(土)〜2026年4月12日(日) 10:30〜16:00
●ご家族が集うリビングは広さゆったり約15帖以上☆
●家族との会話も弾む対面式システムキッチンは浄水器完備
●南向きバルコニーは洗濯物もよく乾きます♪
●温水洗浄便機能付きトイレで清潔にご使用いただけます。
●浴室暖房乾燥機を備えた1坪サイズのゆったりバスルーム
●各居室に収納スペース完備!
●TVモニター付きインターホンのため訪問者がひと目で分かります
- 府中店/平川 賢和
- 府中市日新町3丁目に新たな街並みが誕生します!毎週【土曜日・日曜日・祝日】現地見学会開催中☆周辺環境も含めて…
- 価 格
-
5,250万円〜5,590万円<税込>
- 交 通
- JR南武線『西府』駅 徒歩12分〜13分
京王線『中河原』駅 徒歩19分〜20分
- 所在地
- 東京都府中市日新町3丁目3
- 土地面積
- 105.02m²〜110.26m²
- 建物面積
- 86.53m²〜99.19m²
- 間取り
- 4LDK〜4LDK
- 完成年月
- 2026年3月
-
現地見学会開催中! 2026年4月4日(土)〜2026年4月12日(日) 10:30〜16:00
●開放感ある対面式キッチンに立てば、リビングで寛ぐ家族の表情を確認することができます。
●隙間のないなめらかな人造大理石の一体型システムキッチン
●さまざまな用途に利用できるロフトつき
●浴室換気乾燥機を使用すると浴室がジメジメしないので、お掃除が楽になるというメリットもございます!
●キッチンにはエコと家事時間短縮、一石二鳥の食洗機付です。
- 府中店/平川 賢和
- ◆京王線『多磨霊園』徒歩10分・『東府中』徒歩12分の好立地!
◆周辺環境も含めてご案内いたします、まずは…
- 価 格
-
5,390万円〜5,580万円<税込>
- 交 通
- 京王線『多磨霊園』駅 徒歩10分
京王線『東府中』駅 徒歩12分
- 所在地
- 東京都府中市是政1丁目49-13
- 土地面積
- 97.28m²〜103.3m²
- 建物面積
- 77.76m²〜82.15m²
- 間取り
- 3LDK〜3LDK
(1号棟/+ロフト…) - 完成年月
- 2026年3月
-
予約制見学会開催中! 2026年4月4日(土)〜2026年4月12日(日) 10:30〜16:00
●京王線「武蔵野台」駅徒歩9分
●西武多摩川線「白糸台」駅徒歩6分~7分
●我が家に合った暮らしを追及できるフリープランの建築条件付き土地で、夢のマイホームを建築してみませんか?
●セミオーダー型住宅のご提案です。「こんな部屋を作りたい」「こんな風に暮らしたい」というお客様の夢をぜひお聞かせください。
- 府中店/平川 賢和
- 京王線「武蔵野台」駅より徒歩9分・西武多摩川線「白糸台」駅より徒歩6分~7分の立地に開発分譲地が登場!夢の間…
- 価 格
-
5,240万円〜5,840万円
- 交 通
- 京王線『武蔵野台』駅 徒歩9分
西武多摩川線『白糸台』駅 徒歩6分〜7分
- 所在地
- 東京都府中市白糸台2丁目
- 土地面積
- 115m²〜122.01m²
- 土地権利
- 所有権
- 現況
- 更地
- 建築条件
- 建築条件付き
-
現地見学会開催中! 2026年4月4日(土)〜2026年4月12日(日) 10:30〜16:00
●JR中央線・武蔵野線「西国分寺」駅徒歩18分
●京王線「府中」駅バス23分「北山町四丁目」停歩3分
●約18帖のゆったりリビング。家族でテーブルを囲む素敵な時間をお愉しみ下さい。
●1階よりも光が差し込みやすい2階にリビングを設置することで、明るいリビングを実現!
●静音性や省エネ性に優れ、時間短縮に活躍する食器洗浄乾燥機
●隙間のないなめらかな人造大理石の一体型システムキッチン
- 府中店/平川 賢和
- JR中央線・武蔵野線「西国分寺」駅徒歩18分!浴室換気乾燥機・食洗機・小屋裏収納などの設備が充実!周辺環境も…
- 価 格
-
5,980万円<税込>
- 交 通
- JR中央線『西国分寺』駅 徒歩18分
JR武蔵野線『西国分寺』駅 徒歩18分
- 所在地
- 東京都府中市北山町4丁目25‐11
- 土地面積
- 101.54m²
- 建物面積
- 80.58m²
- 間取り
- 3LDK
(+小屋裏収納) - 完成年月
- 2026年2月
-
予約制見学会開催中! 2026年4月4日(土)〜2026年4月12日(日) 10:30〜16:00
●忙しい朝や遅い帰宅時にも嬉しい京王線「武蔵野台」駅より徒歩1分~2分
●条件内であれば自由に設計可能。注文住宅の「選ぶ楽しさ」×建売の「安心な価格」まさに注文住宅と建売のいいとこ取り
●同時期に生活をスタートさせるご家族の多い分譲地は、困ったときも心強い存在になりそうですね
●南道路につき日当たり良好です
●新築一戸建て、建売をお探しの方にもオススメです
- 府中店/平川 賢和
- ◆京王線「武蔵野台」駅より徒歩1分~2分の好立地!
◆全4区画の建築条件付売地が誕生!建築条件付売地は建売…
- 価 格
-
3,950万円〜4,250万円
- 交 通
- 京王線『武蔵野台』駅 徒歩1分〜2分
西武多摩川線『白糸台』駅 徒歩7分〜8分
- 所在地
- 東京都府中市白糸台4丁目
- 土地面積
- 75m²〜81.27m²
- 土地権利
- 所有権
- 現況
- 更地
- 建築条件
- 建築条件付き
-
現地見学会開催中! 2026年4月4日(土)〜2026年4月12日(日) 10:30〜16:00
●JR南武線「谷保」駅徒歩19分~20分!
●我が家に合った暮らしを追及できるフリープランの建築条件付き土地で、夢のマイホームを建築してみませんか?
●セミオーダー型住宅のご提案です。「こんな部屋を作りたい」「こんな風に暮らしたい」というお客様の夢をぜひお聞かせください。
- 府中店/平川 賢和
- 府中市西原町に全7区画の建築条件付売地が登場!多くの商業施設が揃う都会の利便性と武蔵台公園等の自然豊かな公園…
- 価 格
-
2,890万円
- 交 通
- JR南武線『谷保』駅 徒歩19分
JR武蔵野線『北府中』駅 徒歩22分
- 所在地
- 東京都府中市西原町2丁目27‐4
- 土地面積
- 128.23m²
- 土地権利
- 所有権
- 現況
- 更地
- 建築条件
- 建築条件付き
-
現地見学会開催中! 2026年4月4日(土)〜2026年4月12日(日) 10:30〜16:00
●京王線「多磨霊園」駅徒歩14分!
●約15帖以上のゆったりリビング。家族でテーブルを囲む素敵な時間をお愉しみ下さい。
●乾燥しすぎず、埃も舞わずハウスダストが少ないクリーンな室内をキープする床暖房
●会話の弾む対面キッチンは自然とご家族の中心に。家族団らんの時間が増えることでしょう。
●静音性や省エネ性に優れ、時間短縮に活躍する食器洗浄乾燥機
- 府中店/平川 賢和
- 長期優良住宅認定対象物件!京王線「多磨霊園」駅より徒歩14分の立地です。全棟床暖房・食洗器完備の充実の設備!…
- 価 格
-
5,990万円〜6,390万円<税込>
- 交 通
- 京王線『多磨霊園』駅 徒歩14分
京王線『東府中』駅 徒歩15分〜16分
- 所在地
- 東京都府中市若松町3丁目20‐14
- 土地面積
- 108.31m²〜115.28m²
- 建物面積
- 83.42m²〜83.83m²
- 間取り
- 2SLDK〜3LDK
(2・3号棟/+S…) - 完成年月
- 2026年3月
-
現地見学会開催中! 2026年4月4日(土)〜2026年4月12日(日) 10:30〜16:00
●雨天時の洗濯物や浴室内のカビ防止としても活躍する浴室換気乾燥機
●排気熱を上手に使って、少ないガス消費で効率よくお湯を沸かすエコジョーズ
●いつでもおいしいお水が飲める浄水器も完備
●きれいでさわやか、ウォシュレット付きトイレ
●ビルトイン食洗機を標準完備し、家事時間が短縮できます。
●ウォークインクローゼットは、お洋服等がたくさん収納できて便利です。
- 府中店/平川 賢和
- 府中市浅間町に新築分譲住宅が誕生します!毎週【土曜・日曜・祝日】現地見学会開催中!物件のことはもちろん、周辺…
- 価 格
-
6,799万円〜6,999万円<税込>
- 交 通
- 京王線『東府中』駅 徒歩23分
西武多摩川線『多磨』駅 徒歩24分
- 所在地
- 東京都府中市浅間町4丁目10-15
- 土地面積
- 134.33m²〜136.74m²
- 建物面積
- 103.37m²〜105.37m²
- 間取り
- 3SLDK〜5LDK
(1号棟+WIC/…) - 完成年月
- 2026年3月
-
予約制見学会開催中! 2026年4月4日(土)〜2026年4月12日(日) 11:00〜17:00
*~全18区画の大型現場が誕生~*
一部新築分譲住宅としての販売スタートです!
◎駅までは平坦で歩きやすい道
◎見通しの良い5m開発道路
◎33坪超えのゆとりある敷地
●各棟、個性的な間取りでご家族皆様のニーズにこたえます
●平日のご案内も可能です。お気軽にお問合せ下さいませ。
●学校、スーパー、公園と周辺環境も合わせてご案内します!
JR中央線「国立」駅 徒歩17分!同時期に生活をスタートさせるご家族の多い分譲地は、困ったときも心強い存在になりそうですね!物件の事、諸費用の事など、小さな疑問もお気軽にご連絡・ご相談下さい♪
- 価 格
-
7,690万円〜7,990万円<税込>
- 交 通
- JR中央線『国立』駅 徒歩17分
JR中央線『西国分寺』駅 徒歩20分
- 所在地
- 東京都国立市東3丁目
- 土地面積
- 110m²〜110.02m²
- 建物面積
- 87.48m²〜87.48m²
- 間取り
- 4LDK〜4LDK
(8号棟+WIC …) - 完成年月
- 2026年8月
-
予約制見学会開催中! 2026年4月4日(土)〜2026年4月12日(日) 11:00〜17:00
*~全18区画の大型現場が誕生~*
◎駅までは平坦で歩きやすい道
◎見通しの良い5m開発道路
◎全区画33坪超えのゆとりある敷地
●あなたの「想い」を「カタチ」にするフリー設計分譲地
●ご予算に合わせた建築会社・プランをご提案いたします。
●ぜひ皆様の「こんな家に住みたい!」をお聞かせ下さい。
●平日のご案内も可能です。お気軽にお問合せ下さいませ。
全18区画の大型現場が誕生♪ 全区画33坪超えにつき二世帯住宅の建築も可能です。
間取り作成やハウスメーカーのお探しもサポートいたします♪
物件のこと・費用のことなど、まずはお気軽にお問い合わせください!
- 価 格
-
5,990万円〜6,590万円
- 交 通
- JR中央線『国立』駅 徒歩17分
JR中央線『西国分寺』駅 徒歩20分
- 所在地
- 東京都国立市東3丁目
- 土地面積
- 110m²〜110.03m²
- 土地権利
- 所有権
- 現況
- 更地
- 建築条件
- 建築条件なし
-
予約制見学会開催中! 2026年4月4日(土)〜2026年4月12日(日) 11:00〜17:00
●前面道路幅員6m・16m
●安心の公道接道
我が家に合った暮らしを追及できるフリープランの分譲地です。ぜひ皆様の「こんな家に住みたい!」をお聞かせ下さい。
- 国分寺店/榎本 信吾
- ○全6区画・条件付き売地
○お好きな間取りを実現できるフリー設計分譲地
○モデルハウスのご案内も可能!
…
- 価 格
-
2,490万円〜2,990万円
- 交 通
- 西武拝島線『東大和市』駅 徒歩21分
西武国分寺線『鷹の台』駅 徒歩22分
- 所在地
- 東京都小平市上水新町1丁目
- 土地面積
- 102.35m²〜119m²
- 土地権利
- 所有権
- 現況
- 更地
- 建築条件
- 建築条件付き
-
予約制見学会開催中! 2026年4月4日(土)〜2026年4月12日(日) 11:00〜17:00
【徒歩約3分圏内に谷保駅・小学校・スーパー・ドラッグストア・公園あり・恵まれた住環境】
■セミオーダー型住宅のご提案です。「こんな部屋を作りたい」「こんな風に暮らしたい」というお客様の夢をぜひお聞かせください。
■思い描くライフスタイルを自由にカタチにする自由設計分譲地
■家族みんなで創る、楽しむ、自由設計分譲地!
- 国分寺店/永宮 卓
- □駅近く、用途の良い土地です。
□住宅用地や2世帯住宅等、色々と建築が可能な土地になりますので、
□平日…
- 価 格
-
3,990万円
- 交 通
- JR南武線『谷保』駅 徒歩3分
JR南武線『矢川』駅 徒歩20分
- 所在地
- 東京都国立市富士見台1丁目
- 土地面積
- 83.05m²
- 土地権利
- 所有権
- 現況
- 更地
- 建築条件
- 建築条件付き
-
予約制見学会開催中! 2026年4月4日(土)〜2026年4月12日(日) 11:00〜17:00
【「鷹の台」駅 徒歩15分・条件のない145.27平米のゆとりある敷地】
■「夢は注文住宅!でも注文住宅って何から手をつければいいの?」そんな時は、ぜひ藤和ハウスへご相談下さい!
■綺麗な整形地のため、思い描いているイメージをカタチにしやすい土地
■建築条件はございませんので、ライフスタイルに合わせた自由なマイホームづくりが可能です
■約145.27平米のゆとりある敷地ですので、広いお庭も確保できそうですね
- 国分寺店/榎本 信吾
- ■西武国分寺線「鷹の台」駅 徒歩15分
■建築条件のない敷地
■約145.27平米のゆとりある敷地
■…
- 価 格
-
4,380万円
- 交 通
- 西武国分寺線『鷹の台』駅 徒歩16分
西武拝島線『小川』駅 徒歩26分
- 所在地
- 東京都小平市小川町1丁目
- 土地面積
- 145.27m²
- 土地権利
- 所有権
- 現況
- 更地
- 建築条件
- 建築条件なし
-
予約制見学会開催中! 2026年4月4日(土)〜2026年4月12日(日) 11:00〜17:00
\建物完成済み物件です♪/
●収納力豊富なウォークインクローゼットで、バッグや小物類も片付きます
●来客時にも便利な駐車2台可能(車種による)
●家事の時間を短縮するエコな食洗機
●使用頻度の少ない調味料や保存食・食品類を保管しておくためのパントリー
●カウンターキッチン越しでの会話が、家族団らんのスタートです。
●隙間のないなめらかな人造大理石の一体型システムキッチン
- 国分寺店/榎本 信吾
- ●西武多摩湖線「一橋学園」駅 徒歩4分
●前面道路はゆとりの約5.45m。車の出し入れも楽々です♪
●…
- 価 格
-
6,380万円<税込>
- 交 通
- JR中央線『国立』駅 バス9分「富士本三丁目」停歩4分
JR中央線『国立』駅 徒歩23分
- 所在地
- 東京都国分寺市新町2丁目
- 土地面積
- 129.88m²
- 建物面積
- 109.75m²
- 間取り
- 4LDK
(+WIC・パント…) - 完成年月
- 2026年2月
-
予約制見学会開催中! 2026年4月4日(土)〜2026年4月12日(日) 11:00〜17:00
●全居室南向きで明るく、冬場でも太陽の日差しで室内ぽかぽかです!
●家族や仲間が集うLDKは約16.25帖あり、ゆったりと寛げる空間です。
●開放感ある対面式キッチンに立てば、リビングで寛ぐ家族の表情を確認することができます。
●隙間のないなめらかな人造大理石の一体型システムキッチン
●全居室収納スペース付き
●キッチンの床下収納は、パントリー代わりのストック場所としても活用できます!
- 国分寺店/榎本 信吾
- ■住環境・街並みなど、ネットに掲載されてない情報もお知らせします!
■お客様と二人三脚にて、お客様のための…
- 価 格
-
5,380万円<税込>
- 交 通
- 西武多摩湖線『一橋学園』駅 徒歩17分
JR中央線『国分寺』駅 徒歩22分
- 所在地
- 東京都小平市上水南町2丁目
- 土地面積
- 102.08m²
- 建物面積
- 80.32m²
- 間取り
- 3LDK
- 完成年月
- 2026年1月
-
予約制見学会開催中! 2026年4月4日(土)〜2026年4月12日(日) 11:00〜17:00
●土地面積118平米以上
「こんな部屋を作りたい」「こんな風に暮らしたい」というお客様の夢をぜひお聞かせください。
●注文住宅ほどはこだわらないが、家族の意見や好みを取り入れた家にしたい
●新築一戸建て、建売でお探しの方にもおススメです
- 国分寺店/榎本 信吾
- 約35坪以上のゆとりある敷地ですので、広いお庭も確保できそうですね。
見学はしたいけど、なかなか時間が取れ…
- 価 格
-
3,230万円
- 交 通
- 西武新宿線『花小金井』駅 徒歩20分
西武新宿線『小平』駅 徒歩24分
- 所在地
- 東京都小平市鈴木町1丁目
- 土地面積
- 118.72m²
- 土地権利
- 所有権
- 現況
- 更地
- 建築条件
- 建築条件付き
-
予約制見学会開催中! 2026年4月4日(土)〜2026年4月12日(日) 11:00〜17:00
~全棟長期優良住宅!太陽光設置!~
●JR武蔵野線「新小平」駅 徒歩7分!
●来客時にも便利な駐車2台可能(車種による)
●家事の時間を短縮するエコな食洗機
●家族の集まるLDKはゆったり約15帖以上!
●全居室収納スペース付き
●床下には収納スペースも確保。収納が豊富な住まいです
- 国分寺店/榎本 信吾
- 建物完成済みです!JR武蔵野線「新小平」駅徒歩7分、車種によりますがカースペース2台置けます!
- 価 格
-
5,790万円<税込>
- 交 通
- JR武蔵野線『新小平』駅 徒歩7分
西武多摩湖線『青梅街道』駅 徒歩8分
- 所在地
- 東京都小平市小川町2丁目
- 土地面積
- 112.5m²
- 建物面積
- 87.36m²
- 間取り
- 3LDK
- 完成年月
- 2026年2月
-
予約制見学会開催中! 2026年4月4日(土)〜2026年4月12日(日) 11:00〜17:00
■ハウスメーカーからプランまでフルオーダーで自由にマイホームがつくれる、建築条件のない宅地分譲
■フリースタイル分譲地で、個性あふれる住まいを実現いたしませんか?
■家族みんなで創る、楽しむ、自由設計分譲地!
■住まいの事なら地元で豊富な実績を誇る、地域密着の藤和ハウスへお任せ下さい!
- 国分寺店/榎本 信吾
- ■ハウスメーカーからプランまでフルオーダーで自由にマイホームがつくれる、建築条件のない宅地分譲
■家族み…
- 価 格
-
3,900万円〜4,500万円
- 交 通
- JR中央線『立川』駅 バス18分「若葉町団地」停歩6分
西武国分寺線『鷹の台』駅 徒歩21分
- 所在地
- 東京都国分寺市北町4丁目
- 土地面積
- 118.06m²〜140.27m²
- 土地権利
- 所有権
- 現況
- 造成中
- 建築条件
- 建築条件なし
-
現地見学会開催中! 2026年4月4日(土)〜2026年4月12日(日) 11:00〜17:00
■セミオーダー型住宅のご提案です。「こんな部屋を作りたい」「こんな風に暮らしたい」というお客様の夢をぜひお聞かせください。
■前面道路5mなので、運転が少し苦手な方でも運転・駐車がしやすそうですね。
■お住まい探しは、家の良し悪しだけでなく周辺環境も重要なポイントです。ぜひ一度お客様の目でご覧ください。
■思い描いていた理想の家を、この土地で実現させてみませんか?
- 国分寺店/榎本 信吾
- □JR中央線「国立」駅 徒歩圏内
□建築条件付きのセミオーダーの土地
□全区画116~平米120平米以上…
- 価 格
-
4,150万円〜4,700万円
- 交 通
- JR中央線『国立』駅 徒歩24分
多摩都市モノレール『立飛』駅 徒歩28分
- 所在地
- 東京都国分寺市西町3丁目27-33
- 土地面積
- 120.38m²〜125.13m²
- 土地権利
- 所有権
- 現況
- 更地
- 建築条件
- 建築条件付き
-
予約制見学会開催中! 2026年4月4日(土)〜2026年4月12日(日) 11:00〜17:00
*・* 断熱性能を高めた、 ZEH水準の快適住宅 *・*
●建物完成済み!いつでもご内覧可能です♪
●家族の集まるLDKはゆったり約19.7帖
●キッチンには家事時間を短縮する食洗機付き
●床暖房で足元ぽかぽか
●床下には収納スペースも確保。収納が豊富な住まいです
●いつでも洗濯物を干せるのが嬉しい浴室換気乾燥機!
●ゆったり寛げる1坪タイプのユニットバスで、疲れたからだを癒してあげて下さい
- 国分寺店/榎本 信吾
- 暮らしの質を高める住空間。ZEH水準の快適住宅♪「国分寺」駅徒歩28分と少し距離はございますが、毎日の通勤通…
- 価 格
-
6,299万円<税込>
- 交 通
- JR中央線『国分寺』駅 徒歩28分
西武多摩湖線『国分寺』駅 徒歩28分
- 所在地
- 東京都小金井市貫井南町5丁目
- 土地面積
- 118.23m²
- 建物面積
- 94.4m²
- 間取り
- 4LDK
- 完成年月
- 2026年2月
-
予約制見学会開催中! 2026年4月4日(土)〜2026年4月12日(日) 11:00〜17:00
【駅近く「新小平」駅 徒歩7分♪充実した周辺環境・全棟106平米以上のゆとりある敷地!】
≪設備・性能・おすすめポイント≫
■家事の時間を短縮するエコな食洗機
■床暖房で足元ぽかぽか
■隙間のないなめらかな人造大理石の一体型システムキッチン
■ご家族の様子がわかり、会話も楽しめる対面式システムキッチン
■採光溢れるリビングで、家族団らんのひと時をお過ごし下さい
- 国分寺店/榎本 信吾
- ■全7棟
■全棟106平米以上のゆとりある敷地
■JR武蔵野線「新小平」駅 徒歩7分♪
■平日のご案内…
- 価 格
-
5,590万円〜6,290万円<税込>
- 交 通
- JR武蔵野線『新小平』駅 徒歩7分
西武拝島線『小川』駅 徒歩12分
- 所在地
- 東京都小平市小川東町5丁目
- 土地面積
- 106.77m²〜107.09m²
- 建物面積
- 82.59m²〜85.28m²
- 間取り
- 2SLDK〜3LDK
(全棟+SIC、1…) - 完成年月
- 2026年6月
-
予約制見学会開催中! 2026年4月4日(土)〜2026年4月12日(日) 11:00〜17:00
●断熱性能を高めた、ZEH基準の住まい
●全居室南向きで明るく、室内ぽかぽかです!
●アイデア次第で使い方広がるロフト収納
●掃除道具や季節用品等がしまえる廊下収納
●リビング全体が見渡せる対面式キッチン
●キッチン付近に設けた勝手口は、ゴミ出しなどがスムーズにできて便利
●家事の時短になり便利な食洗機付き
●毎日のお洗濯が苦にならない浴室乾燥機
- 国分寺店/永宮 卓
- ◆JR南部線「谷保」駅 徒歩11分の好立地
◆断熱性能を高めた、ZEH基準の住まい
◆全居室南向きで明…
- 価 格
-
5,290万円<税込>
- 交 通
- JR南武線『谷保』駅 徒歩11分
JR南武線『西府』駅 徒歩23分
- 所在地
- 東京都府中市西原町4丁目
- 土地面積
- 97.84m²
- 建物面積
- 77.84m²
- 間取り
- 3LDK
(+ロフト) - 完成年月
- 2025年11月
-
予約制見学会開催中! 2026年4月4日(土)〜2026年4月12日(日) 11:00〜17:00
【徒歩9分圏内に揃う利便性に優れた住環境♪】
■西武拝島線「小川」駅 徒歩9分
■使いやすくスタイリッシュなシステムキッチンには、毎日お使いになる方の視点が存分に活かされています。
■家族との会話も弾む対面式キッチン
■家族が毎日顔を合わせられるよう階段はリビング内に設けました。
■お住まい探しは、家の良し悪しだけでなく周辺環境も重要なポイントです。ぜひ一度お客様の目でご覧ください。
- 国分寺店/永宮 卓
- □西武拝島線「小川」駅 徒歩9分
□各棟約30坪以上のゆとりある敷地♪
□小学校まで徒歩約6分
□平日…
- 価 格
-
5,180万円〜5,880万円<税込>
- 交 通
- 西武拝島線『小川』駅 徒歩9分
西武国分寺線『小川』駅 徒歩9分
- 所在地
- 東京都小平市小川町1丁目
- 土地面積
- 102.16m²〜110.61m²
- 建物面積
- 79.48m²〜86.94m²
- 間取り
- 3LDK〜3LDK
(1号棟/+納戸、…) - 完成年月
- 2026年5月
-
予約制見学会開催中! 2026年4月4日(土)〜2026年4月12日(日) 11:00〜17:00
*・* 断熱性能を高めた、 ZEH水準の快適住宅 *・*
●JR中央線「武蔵小金井」駅 徒歩23分!
●カースペース2台駐車可(車種による)
●床暖房で足元ぽかぽか
●家事の時間を短縮するエコな食洗機
●いつでもおいしいお水が飲める浄水器一体型水栓も完備
●リビングイン階段で自然と家族が集う憩の空間になります
●幼い子供がいると汚れものが多く、いつでも洗濯物を干せるのが嬉しい浴室換気乾燥機!
- 国分寺店/永宮 卓
- 断熱性能を高めた、ZEH基準の住まい◎リビングに床暖房があるので足元ぽかぽか、家族の集まる空間を暖めます。キ…
- 価 格
-
7,198万円〜7,198万円<税込>
- 交 通
- JR中央線『武蔵小金井』駅 徒歩23分
JR中央線『国分寺』駅 徒歩27分
- 所在地
- 東京都小金井市貫井南町1丁目
- 土地面積
- 123.45m²〜123.45m²
- 建物面積
- 97.85m²〜97.85m²
- 間取り
- 4LDK〜4LDK
(全棟+WIC) - 完成年月
- 2026年5月
-
予約制見学会開催中! 2026年4月4日(土)〜2026年4月12日(日) 11:00〜17:00
●JR中央線・西武国分寺線・西武多摩湖線「国分寺」駅 徒歩3分の立地♪
●即お引き渡し可能です!
●ペットと暮らす生活。一緒にお散歩へ行く時間が何より癒しのひと時となります。(細則有)
●収納力豊富なウォークインクローゼットで、バッグや小物類も片付きます
●全居室収納スペース付き
●南向きのバルコニーは日差しもたっぷり注ぎ、お洗濯物もよく乾きます
- 国分寺店/永宮 卓
- JR中央線・西武国分寺線・西武多摩湖線「国分寺」駅 徒歩3分!!南向きのバルコニーで日当り良好◎日差しもたっ…
- 価 格
-
7,480万円<税込>
- 交 通
- JR中央線『国分寺』駅 徒歩3分
西武多摩湖線『国分寺』駅 徒歩3分
- 所在地
- 東京都国分寺市南町2丁目
- 専有面積
- 64.52m²
- 所在階
- 地上17階建 3階部分
- 間取り
- 3LDK
(+WIC、リネン庫) - 築年月
- 2012年1月
-
予約制見学会開催中! 2026年4月4日(土)〜2026年4月12日(日) 11:00〜17:00
*・* 断熱性能を高めた、 ZEH水準の快適住宅 *・*
■休日にまとめ買いをするご家庭はパントリーがあると便利
■家族との会話も弾む対面式キッチン
■リビングに大きな窓がある事で、外との一体感が生まれます。空間をより広く見せる役目を果たしているとともに、窓から見える緑、外の景色もデザインに取り込まれているかのようです。
- 国分寺店/永宮 卓
- □JR武蔵野線「新小平」駅 徒歩7分!
□全1棟の新邸宅
□平日のご案内も可能となっております、ぜひお気…
- 価 格
-
5,190万円<税込>
- 交 通
- JR武蔵野線『新小平』駅 徒歩7分
西武多摩湖線『青梅街道』駅 徒歩8分
- 所在地
- 東京都小平市小川東町5丁目
- 土地面積
- 84.01m²
- 建物面積
- 83.83m²
- 間取り
- 3LDK
(+パントリー) - 完成年月
- 2026年7月
-
予約制見学会開催中! 2026年4月4日(土)〜2026年4月12日(日) 11:00〜17:00
●前面道路はゆとりの約5m。車の出し入れも楽々です
●約16帖のゆったりリビング
家族でテーブルを囲む素敵な時間をお愉しみ下さい
●収納力豊富なウォークインクローゼットで、バッグや小物類も片付きます
●全居室収納スペース付き
●さまざまな用途に利用できるロフトつき
●南向きのバルコニーは日差しもたっぷり注ぎ、お洗濯物もよく乾きます
- 国分寺店/榎本 信吾
- JR武蔵野線「新小平」駅 徒歩10分の立地!ウォークインクローゼットは、お洋服等がたくさん収納できて便利です…
- 価 格
-
5,880万円〜6,080万円<税込>
- 交 通
- JR武蔵野線『新小平』駅 徒歩10分
西武拝島線『小川』駅 徒歩10分
- 所在地
- 東京都小平市小川東町1丁目
- 土地面積
- 100.1m²〜100.11m²
- 建物面積
- 79.48m²〜79.49m²
- 間取り
- 3LDK〜3LDK
(全棟+ロフト、W…) - 完成年月
- 2026年6月
-
予約制見学会開催中! 2026年4月4日(土)〜2026年4月12日(日) 11:00〜17:00
【西武国分寺線「恋ヶ窪」駅 徒歩10分♪・生活しやすい環境と間取り設計♪】
■使いやすくスタイリッシュなシステムキッチンには、毎日お使いになる方の視点が存分に活かされています。
■リビングにいるご家族を見渡せる対面キッチン
■お住まい探しは、家の良し悪しだけでなく周辺環境も重要なポイントです。ぜひ一度お客様の目でご覧ください。
- 国分寺店/永宮 卓
- □西武国分寺線「恋ヶ窪」駅 徒歩10分♪
□全4棟
□生活しやすい周辺環境・間取り設計
□いつでもご案…
- 価 格
-
5,590万円〜6,290万円<税込>
- 交 通
- 西武国分寺線『恋ヶ窪』駅 徒歩10分
西武多摩湖線『一橋学園』駅 徒歩22分
- 所在地
- 東京都国分寺市東戸倉1丁目
- 土地面積
- 114.02m²〜125.99m²
- 建物面積
- 84.24m²〜89.1m²
- 間取り
- 2LDK〜4LDK
(+バルコニー、カ…) - 完成年月
- 2026年6月
-
予約制見学会開催中! 2026年4月4日(土)〜2026年4月12日(日) 11:00〜17:00
□綺麗な整形地のため、思い描いているイメージをカタチにしやすい土地
□ハウスメーカーからプランまでフルオーダーで自由にマイホームがつくれる、建築条件のない宅地分譲
□フリースタイル分譲地で、個性あふれる住まいを実現いたしませんか?
□住まいの事なら地元で豊富な実績を誇る、地域密着の当社へお任せ下さい!
- 国分寺店/榎本 信吾
- □JR中央線「国分寺」駅 徒歩20分・西武多摩湖線「一橋学園」駅徒歩15分♪
□建築条件のない整形地
□…
- 価 格
-
4,180万円
- 交 通
- JR中央線『国分寺』駅 徒歩20分
西武多摩湖線『一橋学園』駅 徒歩15分
- 所在地
- 東京都小平市上水南町1丁目
- 土地面積
- 117.03m²
- 土地権利
- 所有権
- 現況
- 上物有
- 建築条件
- 建築条件なし
-
現地見学会開催中! 2026年4月4日(土)〜2026年4月12日(日) 10:30〜16:30
■土地面積:約30坪以上
■物件より15分圏内・学校・スーパー揃う好住環境
■参考プラン・施工例ご案内可能です
■セミオーダー型住宅のご提案です!
■我が家に合った暮らしを追及できるフリープランの建築条件付土地で、夢のマイホームを建築してみませんか?
■周辺環境はもちろん、日当たりなど営業担当がご案内いたしますので、お気軽にお問い合わせください♪
- 東久留米店/加藤 颯汰
- 我が家に合った暮らしを追及できるフリープランの建築条件付き土地で、夢のマイホームを建築してみませんか?
お…
- 価 格
-
2,890万円〜3,290万円
- 交 通
- 西武池袋線『東久留米』駅 バス11分「前沢十字路」停歩7分
西武新宿線『花小金井』駅 バス10分「前沢四丁目」停歩8分
- 所在地
- 東京都東久留米市前沢1丁目
- 土地面積
- 118.96m²〜127.56m²
- 土地権利
- 所有権
- 現況
- 更地
- 建築条件
- 建築条件付き
-
現地見学会開催中! 2026年4月4日(土)〜2026年4月12日(日) 10:30〜16:30
●来客時や駐輪スペースとしても利用可能なカースペース2台可(車種による)
●コミュニケーション重視のリビングイン階段
●空気を汚さず暖かい床暖房
●ご家族の様子がわかり、会話も楽しめる対面式システムキッチン
●ビルトイン食洗機を標準完備し、家事時間が短縮できます。
●ウォークインクローゼットは、お洋服等がたくさん収納できて便利です。
- 東久留米店/加藤 颯汰
- 西武池袋線急行停車駅「ひばりヶ丘」駅 徒歩約4分! 3LDK+2Sにウォークインクローゼットが3か所にあるゆ…
- 価 格
-
8,299万円<税込>
- 交 通
- 西武池袋線『ひばりヶ丘』駅 徒歩4分
西武池袋線『東久留米』駅 徒歩22分
- 所在地
- 東京都西東京市ひばりが丘北4丁目
- 土地面積
- 83.92m²
- 建物面積
- 135.93m²
- 間取り
- 3SLDK
(+WIC×3、納…) - 完成年月
- 2026年5月
-
オープンハウス開催中! 2026年4月4日(土)〜2026年4月12日(日) 10:30〜16:30
●キッチンにはエコと家事時間短縮、一石二鳥の食洗機付です。
●使い勝手の良い小屋裏収納は、シーズンオフの荷物もたっぷり収納できます。
●家族が揃って食事できるゆとりある大きさのLDK約17帖
●各階にトイレがあると、階段の上り下りをせずに済むため就寝時なども便利!
●ウォークインクローゼットや小屋裏収納などが、日々の暮らしやすさをアップしてくれます
- 東久留米店/加藤 颯汰
- ●繰り返す地震に効果を発揮する制震ダンパーが標準装備!地震の揺れからご家族を守ります
●物件の事、諸費用…
- 価 格
-
4,190万円<税込>
- 交 通
- 西武新宿線『久米川』駅 徒歩21分
西武新宿線『小平』駅 徒歩20分
- 所在地
- 東京都東久留米市柳窪4丁目
- 土地面積
- 112.69m²
- 建物面積
- 89.09m²
- 間取り
- 3LDK
(+WIC、小屋裏…) - 完成年月
- 2026年1月
-
現地見学会開催中! 2026年4月4日(土)〜2026年4月12日(日) 10:30〜17:00
≪ 建物のプレゼンをさせていただきますので、実際の完成イメージを思い描いていただくことができます!≫
●コミュニケーション重視のリビングイン階段
●LDKはゆったり約17.6帖
●エコと家事時間短縮、一石二鳥の食洗機付です
●リビングにいるご家族を見渡せる対面システムキッチン
●ゆったり1坪サイズの浴室で1日の疲れをリセット
●浴室換気乾燥機は梅雨の時期等、なかなか乾かない洗濯物を干すのに役立ちます!
- 東久留米店/伊藤 淳
- 西武池袋線「東久留米」駅 徒歩13分・新築戸建ての登場です!お気軽にお問い合わせくださいませ。
- 価 格
-
5,498万円<税込>
- 交 通
- 西武池袋線『東久留米』駅 徒歩13分
西武池袋線『清瀬』駅 徒歩21分
- 所在地
- 東京都東久留米市氷川台2丁目
- 土地面積
- 108.43m²
- 建物面積
- 100m²
- 間取り
- 3LDK
(+WIC) - 完成年月
- 2026年4月
-
現地見学会開催中! 2026年4月4日(土)〜2026年4月12日(日) 10:30〜17:00
●南西角地のため開放感のある立地
●約17.5帖のゆとりを確保した広々LDK
●コミュニケーション重視のリビングイン階段
●洋服選びが楽しいウォークインクローゼット
●リビング全体が見渡せる対面式キッチン
●ゆったり寛げる1坪タイプのユニットバス
●浴室換気乾燥機は梅雨の時期等、なかなか乾かない洗濯物を干すのに役立ちます!
●朝の支度時や就寝時に役立つ各階トイレ
●全居室南向きで明るく、室内ぽかぽかです!
- 東久留米店/加藤 颯汰
- 南西角地につき陽当たり良好です!現地のご案内や周辺環境のご説明もエリアに詳しい藤和ハウスにお任せください♪
- 価 格
-
5,780万円<税込>
- 交 通
- 西武池袋線『保谷』駅 バス14分「青嵐台」停歩2分
西武池袋線『保谷』駅 徒歩23分
- 所在地
- 東京都西東京市北町3丁目
- 土地面積
- 108.97m²
- 建物面積
- 87.14m²
- 間取り
- 3LDK
- 完成年月
- 2026年2月
-
現地見学会開催中! 2026年4月4日(土)〜2026年4月12日(日) 10:30〜17:00
≪建物のプレゼンをさせていただきますので、実際の完成イメージを思い描いていただくことができます。お気軽にお問合せ下さい≫
●LDKはゆったり約16.5~18帖
●ご家族の様子がわかり、会話も楽しめる対面式システムキッチン
●使用頻度の少ない調味料や保存食・食品類を保管しておくためのパントリー
●ゆったり1坪サイズの浴室で1日の疲れをリセット
●花粉症の時期は外干しできない!そんなご家庭に便利な浴室換気乾燥機
- 東久留米店/加藤 颯汰
- 東久留米市前沢に全3棟の新築戸建てが誕生いたします!4月完成予定!お気軽にお問い合わせくださいませ♪
- 価 格
-
3,980万円〜4,480万円<税込>
- 交 通
- 西武新宿線『花小金井』駅 バス8分「新青梅街道」停歩8分
西武新宿線『花小金井』駅 徒歩29分
- 所在地
- 東京都東久留米市前沢5丁目
- 土地面積
- 84.8m²〜90m²
- 建物面積
- 85.28m²〜88.59m²
- 間取り
- 3LDK〜3LDK
(1号棟・3号棟/…) - 完成年月
- 2026年4月
-
現地見学会開催中! 2026年4月4日(土)〜2026年4月12日(日) 10:30〜17:00
●西武池袋線「東久留米」駅 バス6分「神明社」停歩5分
●いつでもおいしいお水が飲める浄水器一体型水栓も完備
●換気機能によってバスルーム内のカビの発生を抑制できます。夜間や雨天時の洗濯物の乾燥に便利な乾燥機能も装備。
●ご家族で入れる1坪タイプの浴室、ご家族の第二の憩いの場所に!
●温水洗浄機能付きトイレで清潔にご使用いただけます。
- 東久留米店/加藤 颯汰
- 2月完成致しました!2台並列駐車可能♪周辺環境等併せてご案内致しますので、お気軽にお問い合わせくださいませ。
- 価 格
-
4,380万円<税込>
- 交 通
- 西武池袋線『東久留米』駅 バス6分「神明社」停歩5分
- 所在地
- 東京都東久留米市中央町3丁目
- 土地面積
- 110.47m²
- 建物面積
- 87.48m²
- 間取り
- 3LDK
- 完成年月
- 2026年2月
-
現地見学会開催中! 2026年4月4日(土)〜2026年4月12日(日) 10:30〜17:00
●ご家族の様子がわかり、会話も楽しめる対面式システムキッチン
●浴室換気乾燥機は梅雨の時期等、なかなか乾かない洗濯物を干すのに役立ちます
●防犯に役立つTVモニター付インターフォン
●ウォークインクローゼットは、お洋服等がたくさん収納できて便利です
●各居室収納スペース付き
●遮熱性の高いLow‐E複層ガラスを採用、夏冬の冷暖房効率を高めます
●物件より15分圏内に小中学校・保育園・スーパーが揃う好住環境
- 東久留米店/伊藤 淳
- 中央町6丁目に全1棟の新築戸建てが登場致します!施工例もご案内致しますので、お気軽にお問い合わせくださいませ。
- 価 格
-
3,690万円<税込>
- 交 通
- 西武池袋線『東久留米』駅 徒歩23分
西武池袋線『東久留米』駅 バス12分「前沢宿」停歩5分
- 所在地
- 東京都東久留米市中央町6丁目
- 土地面積
- 82.75m²
- 建物面積
- 65.88m²
- 間取り
- 3LDK
(+小屋裏収納) - 完成年月
- 2026年8月
-
現地見学会開催中! 2026年4月4日(土)〜2026年4月12日(日) 10:30〜17:00
■「保谷」駅徒歩24分(バス便あり)
■物件より10分圏内に小中学校・保育園・スーパー揃う好住環境
■ハウスメーカーからプランまでフルオーダーで自由にマイホームがつくれる、建築条件のない宅地分譲
■「夢は注文住宅!でも注文住宅って何から手をつければいいの?」 そんな時は、ぜひ藤和ハウスへご相談下さい!
■周辺環境はもちろん、日当たりなど営業担当がご案内いたしますので、お気軽にお問い合わせください♪
- 価 格
-
3,980万円〜5,180万円
- 交 通
- 西武池袋線『保谷』駅 徒歩24分
西武池袋線『保谷』駅 バス6分「荒井竹」停歩2分
- 所在地
- 東京都西東京市中町6丁目1
- 土地面積
- 87.5m²〜127.5m²
- 土地権利
- 所有権
- 現況
- 更地
- 建築条件
- 建築条件なし
-
予約制見学会開催中! 2026年4月4日(土)〜2026年4月12日(日) 10:30〜17:00
≪お探しの物件に出会うためには、早めのご確認をオススメします。未完成の今のうちにぜひお問合せをお待ちしております≫
●便利な駐車2台可能(車種による)
●約18帖のゆったりリビング
●ご家族の様子がわかる対面式システムキッチン
●玄関はシューズクローク付き♪ペット用品やスポーツ用品・ベビーカーなど、
外で使用し汚れているものをお家に上げることなく保管することができます
●各居室2面採光で明るいお部屋
- 東久留米店/佐藤 奈美恵
- ★土地面積 約30.3坪のゆとりの4LDK♪★間口12m以上×奥行7.8m以上の整形地&南側4.2m公道に面…
- 価 格
-
3,748万円<税込>
- 交 通
- 西武池袋線『東久留米』駅 バス7分「東久留米団地」停歩8分
JR武蔵野線『新座』駅 バス20分「西堀」停歩5分
- 所在地
- 埼玉県新座市西堀2丁目
- 土地面積
- 100.54m²
- 建物面積
- 99.78m²
- 間取り
- 4LDK
(+SIC、WIC) - 完成年月
- 2026年4月
-
現地見学会開催中! 2026年4月4日(土)〜2026年4月12日(日) 10:30〜17:00
【お探しの物件に出会うためには、早めのご確認をオススメします。未完成の今のうちにぜひお問合せをお待ちしております。】
●安心の長期優良住宅
●太陽パネル搭載
●来客時にも便利な駐車2台可能(車種による)
●LDKはゆったり約19~24.5帖
●コミュニケーション重視のリビングイン階段
●ご家族団らんの対面式システムキッチン
●エコと家事時間短縮、一石二鳥の食洗機付き
●全居室2面採光・収納スペース付き
- 東久留米店/伊藤 淳
- 西武池袋線「清瀬」駅 徒歩12分・東久留米市小山5丁目に全5棟の新築戸建てが登場致します!まだまだ建築中です…
- 価 格
-
5,930万円〜6,080万円<税込>
- 交 通
- 西武池袋線『清瀬』駅 徒歩12分
西武池袋線『東久留米』駅 徒歩24分
- 所在地
- 東京都東久留米市小山5丁目5
- 土地面積
- 123.45m²〜123.46m²
- 建物面積
- 95.22m²〜95.64m²
- 間取り
- 3LDK〜4LDK
- 完成年月
- 2026年4月
-
現地見学会開催中! 2026年4月4日(土)〜2026年4月12日(日) 10:30〜17:00
●お探しの物件に出会うためには、早めのご確認をオススメします
●未完成の今のうちにぜひお問合せをお待ちしております!
●家族が自然と顔を合わせるリビングイン階段
●きれいでさわやか、ウォシュレット付きトイレ
●キッチンから見渡せるリビングダイニングで、お料理中も会話が弾みます
●雨の日の強い味方!浴室換気乾燥機付きユニットバスで洗濯物が乾かせます
- 東久留米店/伊藤 淳
- お探しの物件に出会うためには、早めのご確認をオススメします。未完成の今のうちにぜひお問合せをお待ちしておりま…
- 価 格
-
4,280万円<税込>
- 交 通
- 西武池袋線『東久留米』駅 徒歩19分
西武池袋線『東久留米』駅 バス10分「神明社」停歩6分
- 所在地
- 東京都東久留米市中央町3丁目
- 土地面積
- 93.44m²
- 建物面積
- 74.52m²
- 間取り
- 2SLDK
(+ロフト) - 完成年月
- 2025年12月
-
現地見学会開催中! 2026年4月4日(土)〜2026年4月12日(日) 10:30〜17:00
●駐車並列3台可能(車種による)
●家族の集まるLDKはゆったり約18.4帖!床暖房つき!
●エコジョーズで省エネを実現
●ウォークインクローゼットは、お洋服等がたくさん収納できて便利です。
●土間収納にはアウトドアやガーデニンググッズを保管できて、玄関を綺麗に保てます。
●キッチンには家事時間を短縮する食洗機付き
●防犯に役立つTVモニター付インターフォン
- 東久留米店/伊藤 淳
- 敷地面積約175.35平米!駐車並列3台可能(車種による)~LDKはゆったり約18.4帖!ウォークインクロー…
- 価 格
-
6,499万円<税込>
- 交 通
- 西武池袋線『保谷』駅 徒歩22分
西武池袋線『保谷』駅 バス11分「青嵐台」停歩2分
- 所在地
- 東京都西東京市北町3丁目3-24
- 土地面積
- 175.35m²
- 建物面積
- 108.94m²
- 間取り
- 4LDK
(+土間収納、リネ…) - 完成年月
- 2025年11月
-
予約制見学会開催中! 2026年4月4日(土)〜2026年4月12日(日) 10:30〜17:00
●土地面積約45坪
●約21帖のゆったりリビング
●ご家族団らんの対面システムキッチン
●ゆったり1坪サイズの浴室で1日の疲れをリセット
●雨の日の強い味方!浴室換気乾燥機付きユニットバスで洗濯物が乾かせます
●奥行のあるウォークインクローゼットでたっぷり収納できます!
●各居室2面採光で明るいお部屋
- 東久留米店/黛 勝建
- 土地面積約45坪の広さの新築戸建てが登場致しました!残すところ外構のみ!ご見学お待ちしております♪
- 価 格
-
6,480万円<税込>
- 交 通
- 西武新宿線『花小金井』駅 徒歩23分
西武多摩湖線『一橋学園』駅 徒歩30分
- 所在地
- 東京都小平市鈴木町1丁目
- 土地面積
- 149.4m²
- 建物面積
- 106.1m²
- 間取り
- 4LDK
(+WIC) - 完成年月
- 2026年4月
-
現地見学会開催中! 2026年4月4日(土)〜2026年4月12日(日) 10:30〜17:00
●約18.1帖のゆったりリビング。家族でテーブルを囲む素敵な時間をお愉しみ下さい
●各居室にはアクセントクロスを採用しお洒落な空間を演出
●パントリーは災害用の備蓄品を置く場所としても活用できます
●大容量のシューズインクロークで玄関もスッキリ
●キッチンには家事時間を短縮する食洗機付き
●雨天時の洗濯物や浴室内のカビ防止としても活躍する浴室換気乾燥機
- 東久留米店/加藤 颯汰
- 全3棟、ご好評につき残りわずか!
18.1帖と十分な広さのLDK、収納豊富な間取りでゆったりとお住まい頂け…
- 価 格
-
4,090万円<税込>
- 交 通
- 西武池袋線『東久留米』駅 バス13分「前沢十字路」停歩8分
西武池袋線『ひばりヶ丘』駅 バス12分「前沢二丁目」停歩5分
- 所在地
- 東京都東久留米市前沢1丁目1‐15
- 土地面積
- 131.9m²
- 建物面積
- 89.63m²
- 間取り
- 3LDK
(+パントリー、S…) - 完成年月
- 2026年5月
-
現地見学会開催中! 2026年4月4日(土)〜2026年4月12日(日) 10:30〜17:00
≪建物のプレゼン・施工例のご案内をさせていただきますので、実際の完成イメージを思い描いていただくことができます≫
●LDKはゆったり約16.5~18帖
●コミュニケーション重視のリビングイン階段
●リビングにいるご家族を見渡せる対面システムキッチン
●使用頻度の少ない調味料や保存食・食品類を保管しておくためのパントリー
●雨天時の洗濯物や浴室内のカビ防止としても活躍する浴室換気乾燥機
- 東久留米店/伊藤 淳
- 完成前ですがご見学できます!通常ではなかなか見ることのできない建物構造も、建築中だからこそご覧になれます。 …
- 価 格
-
4,090万円〜4,290万円<税込>
- 交 通
- 西武池袋線『東久留米』駅 バス8分「前沢宿」停歩8分
西武新宿線『花小金井』駅 バス13分「前沢宿」停歩8分
- 所在地
- 東京都東久留米市下里1丁目2
- 土地面積
- 110.11m²〜110.12m²
- 建物面積
- 86.94m²〜95.63m²
- 間取り
- 3SLDK〜4LDK
- 完成年月
- 2025年12月